Industrieweg 48 7061 AS Terborg

80m2
Wonen
4
Kamers
302m2
Perceel
1954
Bouwjaar
Industrieweg 48, 7061 AS Terborg

Deze aantrekkelijk geprijsde starterswoning met een diepe tuin heeft 3 slaapkamers. Gelegen aan een doorgaande weg gelegen op loopafstand diverse voorzieningen. De woning heeft een woonoppervlakte van ongeveer 80 m2 en bevindt zich op een perceel met een oppervlakte van ruim 300 m2. De woning is gebouwd rond 1954 en heeft energielabel F.
De woning is goed bereikbaar met het centrum van Terborg op loopafstand.

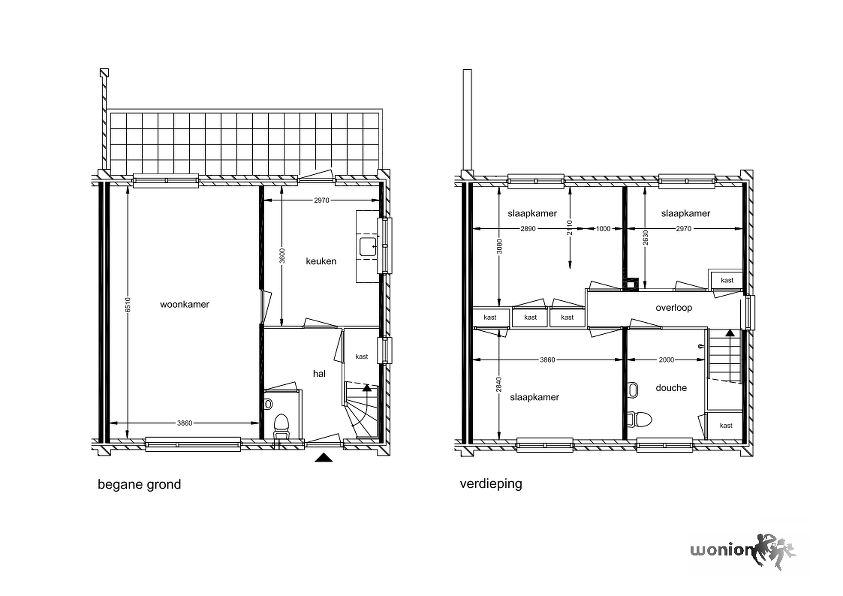
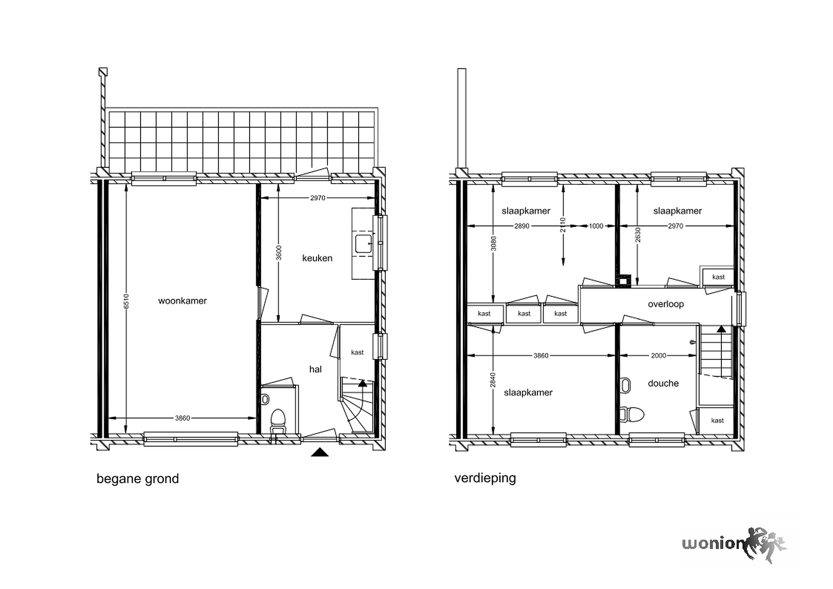
Indeling:
Begane grond
Entree, hal, toilet, trapopgang, woonkamer, keuken.
1e verdieping
Overloop, luik naar de onbevloerde bergzolder, 3 slaapkamers waarvan 2 met vaste kasten, badkamer met douchehoek, wastafel en 2e toilet

Koopsom   € 270.000,- k.k.

Kenmerken:
Achtertuin  Zuid-Oost georiënteerd
Bouwjaar  1954
CV ketel  Bosch HR combiketel (bouwjaar 2012)
Opp kavel  302 m2

Woonkamer  25,13 m2
Keuken  10,69 m2
Slaapkamer 1 7,21 
Slaapkamer 2 11,56 
Slaapkamer 3 12,20




Achtertuin  19 x 9 mtr
Woonopp  80 m2
Inhoud in m3   215m3

Bijzonderheden:
- Minimaal 6% van de koopsom wordt door koper aantoonbaar geïnvesteerd in verduurzamingsmaatregelen. Dit om de huidige lage energetische waarde (energielabel F) te verbeteren;

Er is geen inventarislijst aanwezig. De woning wordt conform de verkoopfoto’s opgeleverd.

Koper heeft een zelfbewoningsplicht van minimaal twee jaar.

Verkoper is niet de bewoner geweest.

Er is een bouwtechnisch rapport aanwezig.

Aanvaarding in overleg (op korte termijn mogelijk).

Om bepaalde groepen een betere kans te geven op een koopwoning hanteren we hiervoor bepaalde voorwaarden. De voorwaarden voor het zoeken naar geschikte kandidaten bij verkoop zijn (in deze volgorde):
1. Huurders van sociale huurwoningen in de gemeente Oude IJsselstreek;
2. Starters op de koopmarkt;
3. Overig.
Zijn er meerdere kandidaten die voldoen aan één bovenstaande voorwaarden, dan wordt er gegund door middel van loting.
Heeft u interesse in een bezichtiging dan kunt u zich tot 4 november 12:00 uur aanmelden voor een bezichtiging. U kunt zich aanmelden voor een bezichtiging, door te reageren via de mail r.hovens@wonion.nl. Toont u na deze datum en tijd interesse, dan komt u op een reservelijst te staan. Voldoet u niet aan één van bovenstaande voorwaarden, dan kunt u zich niet aanmelden voor een bezichtiging.
Lees meer

Kenmerken

Overdracht

Prijs per m2
€ 3.375
Aangeboden sinds
7 oktober 2025
Status
Beschikbaar
Aanvaarding
In overleg

Bouw

Soort woonhuis
Eengezinswoning, twee-onder-een-kap woning
Soort bouw
Bestaande bouw
Bouwjaar
1954
Soort dak
Zadeldak
Staat van onderhouden binnen
Goed
Staat van onderhouden buiten
Goed

Oppervlakte en inhoud

Perceeloppervlakte
302 m2
Inhoud van de woning
215 m3

Indeling

Aantal kamers
4
Aantal slaapkamers
3
Aantal woonlagen
3
Voorzieningen
Tuin

Buitenruimte

Balkon
Nee
Schuur/berging
Nee

Maandlasten berekenen

De maandlasten voor je woning bestaan uit meer dan alleen de hypotheeklasten. Hieronder vind je een overzicht van de bijkomende kosten en lasten. Zo weet je precies wat je huis per maand gaat kosten. En met de handige vergelijkers kun je ook nog eens snel de beste deals sluiten!

  • Kaart
  • Streetview