Verkocht

Boskampstraat 25 5931 GP Tegelen

134m2
Wonen
4
Kamers
152m2
Perceel
2003
Bouwjaar
Aan de rand van de Maas, in de geliefde woonomgeving “Het Maasveld” in Tegelen, bevindt zich deze bijzondere en tot in perfectie afgewerkte woning. Een combinatie van stijl, comfort en oog voor detail, waarbij werkelijk alles met zorg en gevoel voor esthetiek is uitgevoerd.De woning is in 2022 volledig en hoogwaardig gerenoveerd. Luxe materialen, verfijnde afwerkingen en een doordachte indeling maken deze woning volledig instapklaar. De indrukwekkende loftkamer in de toren biedt een panoramisch uitzicht over de uitlopers van de Maas.

Indeling:

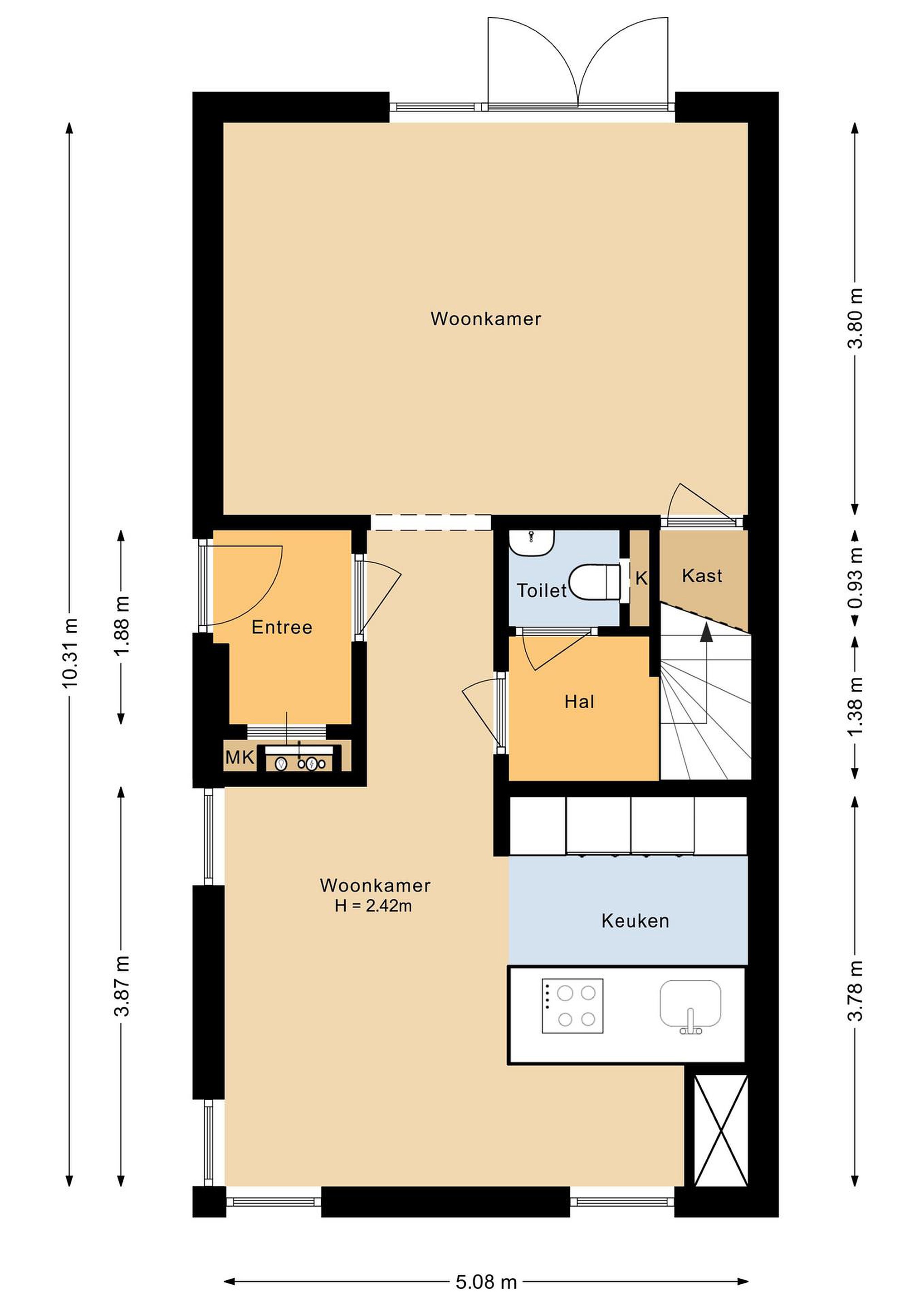
Begane grond
De entree aan de zijkant leidt naar een verzorgde hal met garderobe en meterkast. Een loopdeur geeft toegang tot de woonkamer en keuken.
De woonkamer (ca.22m2), gelegen aan de tuinzijde, heeft veel lichtinval. Grote raampartijen en een vierluik met dubbele openslaande deuren creëren een naadloze verbinding tussen binnen en buiten, dit versterkt het gevoel van ruimte.
Aan de voorzijde bevindt zich de exclusieve leefkeuken (ca.19,5m2), die in semi-open verbinding staat met de woonkamer. Het royale kookeiland met keramisch werkblad in marmerlook vormt het hart van de ruimte en is uitgerust met hoogwaardige apparatuur, waaronder een zone-instelbare inductiekookplaat met geïntegreerde afzuiging, een Quooker, vaatwasser en wijnklimaatkast.
De op maat gemaakte kastenwand, uitgevoerd van vloer tot plafond, biedt niet alleen heel veel bergruimte, maar huisvest tevens alle denkbare inbouwapparatuur zoals een grote koelkast, diepvries, combi oven-magnetron, oven en warmhoudlade. Vanuit de keuken is er een vrij uitzicht over een veld met bomen en de omliggende uiterwaarden.
De gehele begane grond is afgewerkt met een hoogwaardige, lichte PVC-vloer die perfect aansluit bij de moderne en warme uitstraling van de woning.

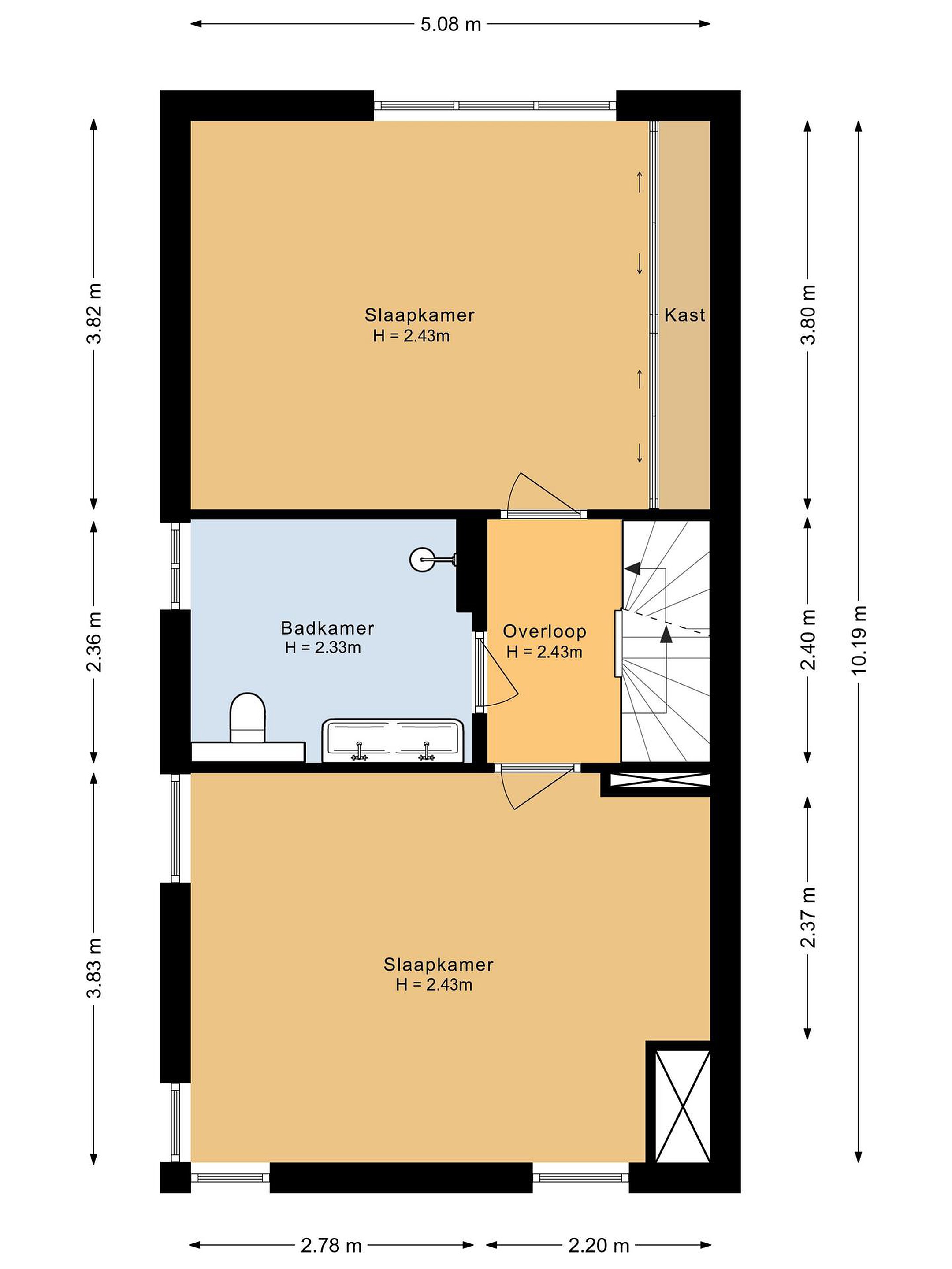
Eerste verdieping:
Op de eerste verdieping bevinden zich twee royale slaapkamers (ca.19,5m2). De slaapkamer aan de voorzijde biedt een prachtig uitzicht over het Maaslandschap. De master bedroom aan de achterzijde is voorzien van een grote vaste kastenwand.
De luxe stijlvolle badkamer (ca.6,5m2) is in 2022 volledig vernieuwd en uitgevoerd met hoogwaardige materialen. De badkamer beschikt een wastafel met lades en dubbele waskommen, een bijpassende spiegelkastenwand, een ruime inloopdouche met inbouwkranen, een zwevend toilet, designradiator en verfijnde details zoals inbouwverlichting en maatwerk shutters. De badkamer is voorzien van een ventilatievenster en mechanische afzuiging.

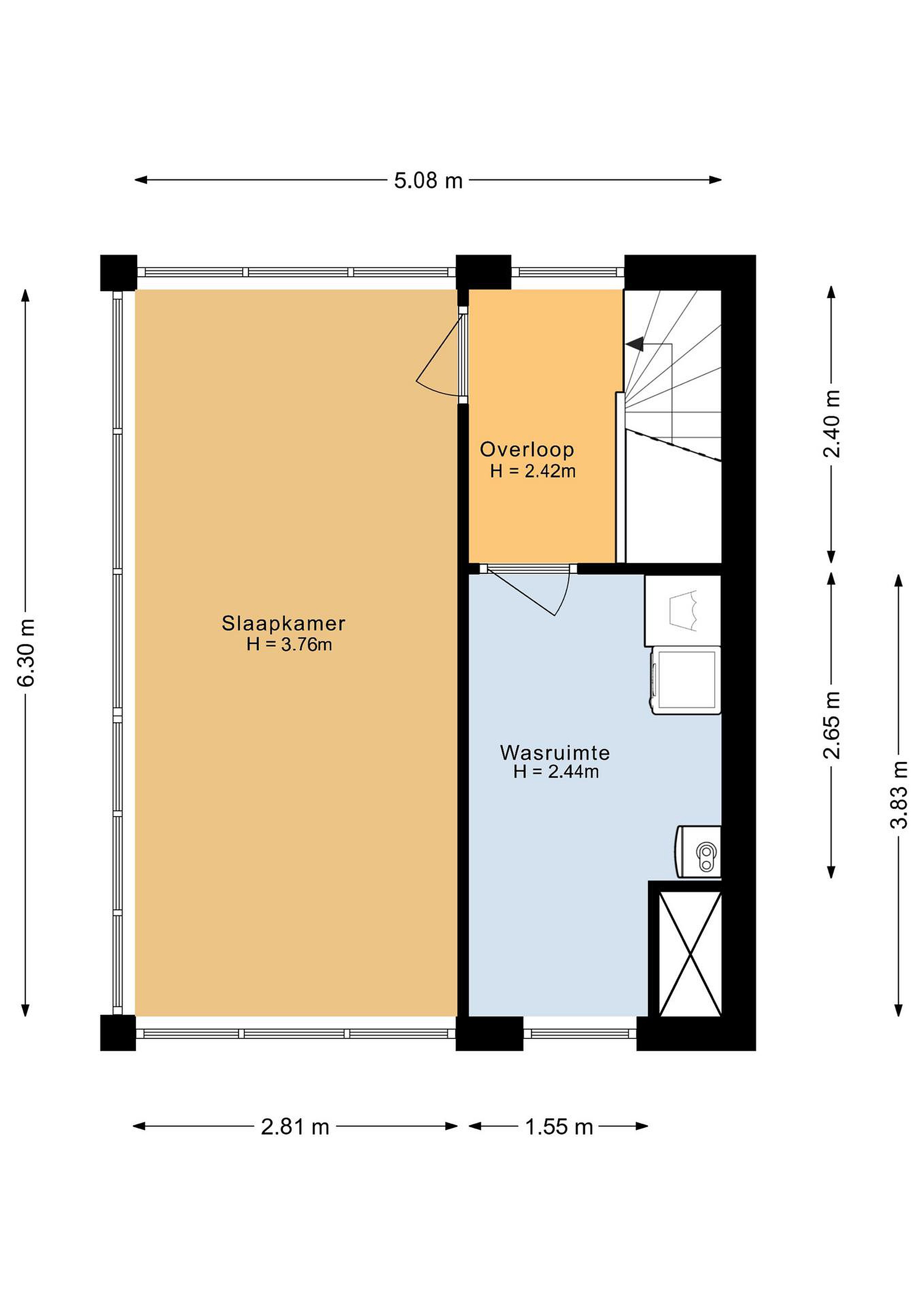
2e verdieping:
Via een vaste trap bereikt u de volwaardige zolderverdieping.
Hier bevindt zich de spectaculaire loftkamer in de toren: een lichte, open ruimte met hoge plafonds en glaswanden. Perfect als slaapkamer/ werkruimte of atelier (ca.18m2)
De ruimte is voorzien van airconditioning (koelen en verwarmen).Daarnaast is er een aparte was-/CV-ruimte (ca.9m2) met aansluitingen voor de wasmachine en droger. WTW-installatie en veel bergruimte. De wasruimte is voorzien van een groot ventilatievenster.

Tuin/garage:
De buitenruimte is met dezelfde zorg en aandacht vormgegeven als het interieur. De zonnige patio-achtertuin, volledig vernieuwd in 2022, biedt een perfecte balans tussen comfort en onderhoudsgemak.
De royale overkapping aan de achterzijde zorgt dat je al vroeg in het jaar buiten kunt zitten. Het kunstgazon en de strakke afwerking zorgen voor een verzorgd geheel. Het grote elektrische zonnescherm en de aanwezige voorzieningen zoals elektra, water en verlichting maken deze tuin tot een volwaardige verlenging van de woonruimte. Het uitvalscherm rijkt tot aan de overkapping indien gewenst.
De garage (ca.16,5m2), bereikbaar via de tuin én oprit, is voorzien van een elektrische sectionaalpoort en biedt ruime mogelijkheden voor opslag of hobby. In de garage zijn aansluitingen voor een eventuele koelkast of diepvries en er is veel opbergmogelijkheid.

Algemeen:
- Bouwjaar: 2003
- Inhoud ca. 497m3, woonoppervlakte ca. 135m2, externe bergruimte ca. 16m2, perceeloppervlakte 152m2
- Volledig gerenoveerd in 2022
- Woonoppervlakte: ca. [invullen] m2
- Energielabel A
- Dak-, spouw- en vloerisolatie
- HR-glas
- CV-ketel (Nefit, 11-2025)
- WTW-installatie (2025)
- Airco (2025)
De ligging nabij de Maas maakt deze woning extra bijzonder. Hier woont u in alle rust, omringd door natuur en ruimte, terwijl voorzieningen, uitvalswegen en het centrum binnen handbereik liggen. Een perfecte balans tussen privacy en bereikbaarheid.

Vraagprijs: € 529.000,- k.k.

Lees meer

Verkoopgeschiedenis

Aangeboden sinds
23 maart 2026
Verkoopdatum
16 april 2026
Looptijd
24 dagen

Kenmerken

Overdracht

Prijs per m2
€ 3.921
Aangeboden sinds
23 maart 2026
Status
Verkocht
Aanvaarding
In overleg

Bouw

Soort woonhuis
Eengezinswoning, hoek woning
Soort bouw
Bestaande bouw
Bouwjaar
2003
Soort dak
Plat dak
Staat van onderhouden binnen
Uitstekend
Staat van onderhouden buiten
Uitstekend

Oppervlakte en inhoud

Perceeloppervlakte
152 m2
Inhoud van de woning
496 m3
Oppervlakte externe bergruimte
16 m2

Indeling

Aantal kamers
4
Aantal slaapkamers
3
Aantal woonlagen
3
Voorzieningen
Tuin, ventilatie, kabel-tv, buitenzonwering, airconditioning, schuifpui

Buitenruimte

Balkon
Nee
Schuur/berging
Nee

Maandlasten berekenen

De maandlasten voor je woning bestaan uit meer dan alleen de hypotheeklasten. Hieronder vind je een overzicht van de bijkomende kosten en lasten. Zo weet je precies wat je huis per maand gaat kosten. En met de handige vergelijkers kun je ook nog eens snel de beste deals sluiten!

  • Kaart
  • Streetview