Dieterderweg 74 6114 JM Susteren

166m2
Wonen
5
Kamers
487m2
Perceel
1922
Bouwjaar
Sfeervol wonen met ruimte, comfort en karakter – instapklare vrijstaande woning nabij het centrum van Susteren
Aan de Dieterderweg, op korte afstand van het centrum van Susteren, ligt deze zeer ruime en uitstekend onderhouden vrijstaande woning met aanbouw, garage, oprit en een fraai aangelegde tuin. Deze karakteristieke woning uit 1922 is door de jaren heen volledig gemoderniseerd, met behoud van authentieke details zoals glas-in-loodramen en een stijlvolle trapopgang. Het resultaat: een perfecte combinatie van charme en hedendaags wooncomfort.
Indeling:

Souterrain:

Praktische en ruime provisiekelder (ca. 21m2), ideaal voor opslag.

Begane grond:

Via de entree betreedt u de hal met toegang tot de kelder, trapopgang en de royale woonkamer.
De ruime woonkamer is voorzien van een fraaie parketvloer, een gezellige houtkachel en grote raampartijen die zorgen voor een aangename lichtinval.
De sfeervolle, aangebouwde keuken vormt het hart van de woning. Deze is uitgerust met vloerverwarming, een plavuizenvloer en een moderne, luxe keukenopstelling met diverse inbouwapparatuur zoals een inductiekookplaat, afzuigkap, combi-oven, vaatwasser en koelkast.
De grote schuifpui biedt direct toegang tot het overdekte terras en de tuin, waardoor binnen en buiten naadloos in elkaar overlopen.
Aansluitend bevindt zich een praktische achterhal met toegang tot:
- een modern toilet met hangcloset en fonteintje
- de bijkeuken met witgoedaansluitingen
- de inpandige garage met bergzolder

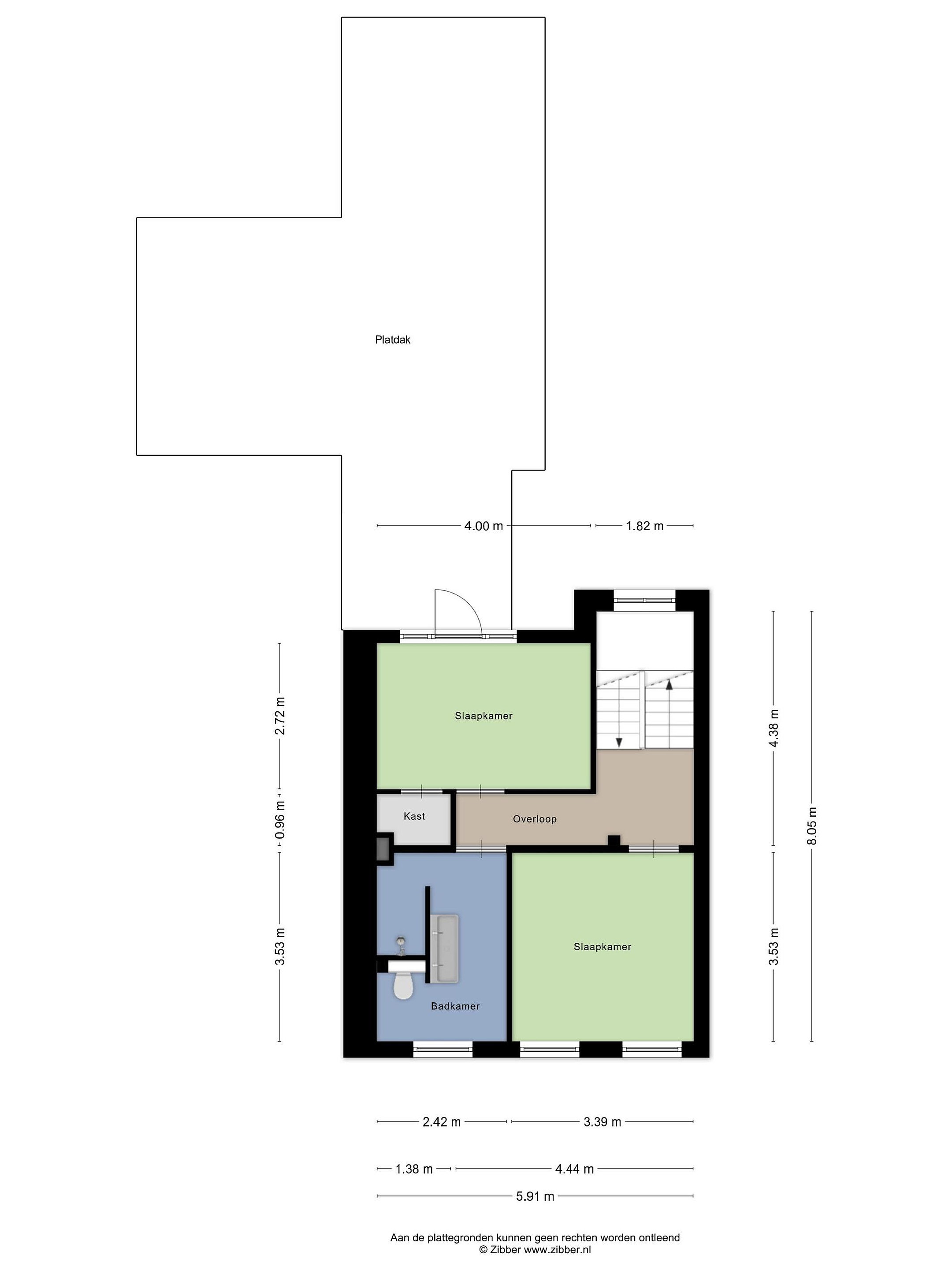
Eerste verdieping:

Hier bevinden zich twee ruime slaapkamers, beiden voorzien van een nette laminaatvloer.
De moderne badkamer is compleet uitgevoerd met een inloopdouche, tweede toilet en een dubbel wastafelmeubel.

Tweede verdieping:

Via een vaste trap bereikt u de tweede verdieping. De overloop geeft toegang tot nog eens twee volwaardige slaapkamers, eveneens afgewerkt met laminaatvloeren en praktische bergruimte (schuifkasten).
Daarnaast bevindt zich hier een bergruimte met HR combi cv-ketel.

Tuin en buitenruimte:

De woning beschikt over een ruime oprit met parkeergelegenheid op eigen terrein en een garage. Ook is er extra parkeermogelijkheid aan de achterzijde van de woning.

De sfeervolle achtertuin is verzorgd aangelegd en voorzien van een mooie overkapping en een ruime Douglas houten tuinberging (ca. 4.40 meter bij 4.90 meter). Dankzij meerdere toegangen (via keuken, bijkeuken, zij- en achterpoort) is de tuin optimaal bereikbaar.

Bijzonderheden:

- Vrijstaande woning met 4 slaapkamers
- Volledig gemoderniseerd en instapklaar
- Vernieuwde, luxe keuken en badkamer
- Ruime woonkamer met veel lichtinval
- Provisiekelder ca. 21 m2
- Authentieke details (glas-in-lood, trapopgang)
- Garage en ruime oprit + extra parkeergelegenheid
- Fraai aangelegde tuin met overkapping en berging ( ca. 22m2)
- Gelegen op een uitstekende locatie nabij het centrum, het treinstation, basisschool en diverse winkels. Bovendien zijn de uitvalswegen en de A2 snel en gemakkelijk bereikbaar.
- Nieuw geïsoleerd dak (2017)
, Energielabel C
________________________________________
Kortom: een verrassend ruime, karaktervolle en moderne woning op een fijne locatie – klaar om zo te betrekken.
Details
INFORMATIE
Algemeen: De gegevens en eventuele plattegronden in deze documentatie zijn zo
correct mogelijk weergegeven, opdat u zich kunt oriënteren omtrent het object. De
informatie is met zorg samengesteld en uit ons inziens betrouwbare bron afkomstig. Ten
aanzien van de juistheid ervan kunnen wij echter geen aansprakelijkheid aanvaarden.
Eventuele bijgesloten tekeningen zijn ter indicatie en kunnen afwijken van de werkelijke
situatie.
Indicatie maten: De gehanteerde Meetinstructie is gebaseerd op de NEN2580. De
Meetinstructie is bedoeld om een eenduidige manier van meten toe te passen voor het
geven van een indicatie van de gebruiksoppervlakte. De opgegeven meetuitkomsten
zijn indicatief en kunnen niet als een garantie worden gezien. De Meetinstructie sluit
verschillen in meetuitkomsten niet uit, door bijvoorbeeld interpretatieverschillen,
afrondingen of beperkingen bij het uitvoeren van de meting en mede als gevolg van het
gegeven dat Peters & Jacobs makelaardij geen professioneel inmeter is.
Onderzoeksplicht: De koper / geïnteresseerde heeft een onderzoeksplicht. U mag voor
eigen rekening een bouwkundige keuring laten verrichten / dan wel adviseurs
raadplegen om een goed inzicht te verkrijgen over de staat en het gebruik van deze
onroerende zaak.
Bieding uitbrengen: Het bod dat u wilt uitbrengen kunt u doorgeven aan de makelaar.
Waarborgsom: De waarborgsom/bankgarantie bedraagt 10% van de koopsom en is
een uitdrukkelijk onderdeel van de koopovereenkomst. De koper dient deze binnen 3
dagen na het vervallen van eventuele ontbindende voorwaarde bij de transporterende
notaris te deponeren.
De koopovereenkomst / schriftelijkheidsvereiste: Zodra er een overeenstemming is
tussen de koper en verkoper over de koopsom, de opleveringsdatum en alle overige
voorwaarden, wordt door de makelaar een koopovereenkomst opgemaakt, geheel
conform het VBO-model. Uitdrukkelijk wordt gesteld dat de koop van de woning met
betrekking tot deze onroerende zaak pas tot stand is gekomen nadat alle partijen de
koopovereenkomst hebben getekend, de “schriftelijkheidvereiste” is in deze van
toepassing.
De oplevering: Vóór de eigendomsoverdracht bij de notaris zal er een laatste inspectie
plaatsvinden om te controleren of de woning wordt afgeleverd zoals afgesproken. Hierbij
worden ook de meterstanden genoteerd.
Uiteraard kan het zijn dat er nog vragen of onduidelijkheden zijn, laat het ons
even weten.
Wij helpen u graag!

Lees meer

Kenmerken

Overdracht

Prijs per m2
€ 3.789
Aangeboden sinds
22 april 2026
Status
Beschikbaar
Aanvaarding
In overleg

Bouw

Soort woonhuis
Eengezinswoning, vrijstaande woning
Soort bouw
Bestaande bouw
Bouwjaar
1922
Soort dak
Zadeldak
Staat van onderhouden binnen
Goed
Staat van onderhouden buiten
Goed

Oppervlakte en inhoud

Perceeloppervlakte
487 m2
Inhoud van de woning
767 m3
Oppervlakte externe bergruimte
22 m2
Oppervlakte gebouwgebonden buitenruimten
15 m2
Oppervlakte overige inpandige ruimten
41 m2

Indeling

Aantal kamers
5
Aantal slaapkamers
4
Aantal woonlagen
4
Voorzieningen
Tuin, schuur/berging, dakraam

Buitenruimte

Balkon
Nee
Schuur/berging
Ja

Maandlasten berekenen

De maandlasten voor je woning bestaan uit meer dan alleen de hypotheeklasten. Hieronder vind je een overzicht van de bijkomende kosten en lasten. Zo weet je precies wat je huis per maand gaat kosten. En met de handige vergelijkers kun je ook nog eens snel de beste deals sluiten!

  • Kaart
  • Streetview