Verkocht

Burgemeester Sterkstraat 8 3243 AE Stad aan 't Haringvliet

88m2
Wonen
5
Kamers
150m2
Perceel
1923
Bouwjaar
Karakteristieke twee-onder-een-kapwoning uit 1920 met verrassend veel ruimte!
In het rustige en gemoedelijke Stad aan ’t Haringvliet bieden wij u deze charmante tweekapper uit 1920 aan. De woning is door de jaren heen netjes onderhouden en voorzien van diverse aanpassingen, zonder het authentieke karakter uit het oog te verliezen. De gebruiksoppervlakte wonen bedraagt ca. 88 m2, met daarnaast nog 11 m2 overige inpandige ruimte en 23 m2 externe bergruimte.
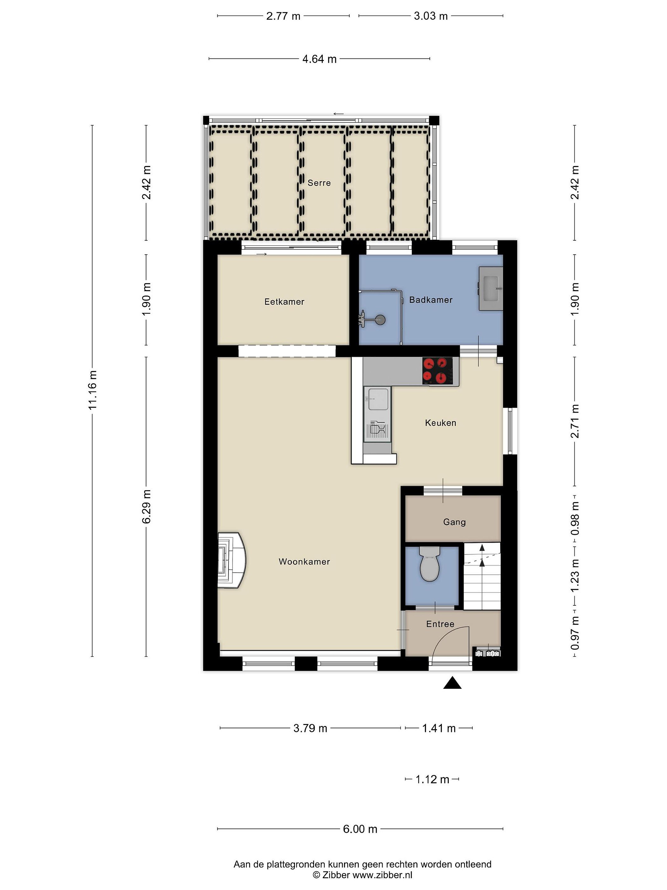
Begane grond
Via de entree komt u in de hal met meterkast, toilet en trapopgang. De woonkamer met veel lichtinval biedt voldoende ruimte voor een zit- en eethoek. Aansluitend bevindt zich de halfopen keuken (eind jaren '90), voorzien van diverse inbouwapparatuur. De kelder is toegankelijk via de keuken, ideaal als provisieruimte. Verder vindt u op de begane grond een badkamer met douche, wastafel en witgoedaansluitingen, en een heerlijke serre/tuinkamer aan de achterzijde: een fijne plek om te ontspannen met uitzicht op de tuin.

Eerste verdieping
Overloop met toegang tot drie slaapkamers, waarvan twee met dakkapel. Op de overloop bevindt zich tevens de CV-opstelling (2021).

Tweede verdieping
Via een vlizotrap is de bergzolder bereikbaar, perfect voor het opslaan van seizoensspullen.

Tuin
De ruime achtertuin beschikt over meerdere opstallen, waaronder een stenen berging met verdieping, een tweede berging, en zelfs een volière, een leuke extra voor dierenliefhebbers of hobbyisten.

Details
- Bouwjaar: 1920
- Perceeloppervlakte: ca. 200 m2
- Gedeeltelijk voorzien van dubbele beglazing
- CV-ketel uit 2021
- Schuur met zolder
- Rustige ligging in een kindvriendelijke omgeving

Bent u op zoek naar een sfeervolle en ruime woning met karakter én potentie? Neem dan snel contact op voor een bezichtiging.

Lees meer

Verkoopgeschiedenis

Aangeboden sinds
8 augustus 2025
Verkoopdatum
10 oktober 2025
Looptijd
2 maanden

Kenmerken

Overdracht

Prijs per m2
€ 3.337
Aangeboden sinds
8 augustus 2025
Status
Verkocht
Aanvaarding
In overleg

Bouw

Soort woonhuis
Eengezinswoning, twee-onder-een-kap woning
Soort bouw
Bestaande bouw
Bouwjaar
1923
Soort dak
Dwarskap
Staat van onderhouden binnen
Goed
Staat van onderhouden buiten
Goed

Oppervlakte en inhoud

Perceeloppervlakte
150 m2
Inhoud van de woning
352 m3
Oppervlakte externe bergruimte
23 m2
Oppervlakte overige inpandige ruimten
11 m2

Indeling

Aantal kamers
5
Aantal slaapkamers
3
Aantal woonlagen
3
Voorzieningen
Tuin, schuur/berging, kabel-tv, schuifpui

Buitenruimte

Balkon
Nee
Schuur/berging
Ja

Maandlasten berekenen

De maandlasten voor je woning bestaan uit meer dan alleen de hypotheeklasten. Hieronder vind je een overzicht van de bijkomende kosten en lasten. Zo weet je precies wat je huis per maand gaat kosten. En met de handige vergelijkers kun je ook nog eens snel de beste deals sluiten!

  • Kaart
  • Streetview