Verkocht

Speerpuntkreek 12 3206 GM Spijkenisse

113m2
Wonen
4
Kamers
125m2
Perceel
1982
Bouwjaar
Gasloos, instapklaar en klaar voor de toekomst!
Welkom aan de Speerpuntkreek 12 in Spijkenisse.

Deze moderne woning is in 2019 en 2024 volledig gerenoveerd en biedt alles wat je zoekt: vloerverwarming op de gehele begane grond, een warmtepomp, 14 zonnepanelen, energielabel A+, een eigen oprit met laadpaal én vrij uitzicht over groen zonder inkijk.

Met drie ruime slaapkamers, waarvan één luxe zolderkamer met eigen douche en toilet, een zonnige tuin op het zuidwesten en een hoogwaardige afwerking, hoef je hier alleen nog maar te verhuizen.

Nieuwsgierig geworden? Dat snappen wij helemaal!

Maak snel een afspraak voor een persoonlijke bezichtiging, wij laten je deze duurzame en comfortabele woning graag zien.

Bel of mail voor een afspraak. Wij zijn alle dagen van de week bereikbaar.
Begane grond
Begane grond:
Via de eigen oprit en voortuin bereik je de entree van de woning. In de hal bevinden zich het moderne toilet (2023), de trapopgang en de toegang tot de woonkamer en keuken.

De woonkamer is licht en ruim dankzij de grote schuifpui naar de zonnige achtertuin. De gehele begane grond is voorzien van vloerverwarming en strak afgewerkt. De moderne open keuken beschikt over diverse inbouwapparatuur en voldoende kastruimte en vormt een mooi geheel met de woonkamer.

De achtertuin is gelegen op het zuidwesten, is in 2021 aangelegd, onderhoudsvriendelijk betegeld en voorzien van een overkapping en een achterom. Hier geniet je in alle rust van het vrije, groene uitzicht.

Via de voortuin is tevens de voormalige berging bereikbaar, die nu is ingericht als volledig geïsoleerde wasruimte. Deze ruimte beschikt over elektrische vloerverwarming, een wasmachineaansluiting, plek voor een droger, extra bergruimte en een wastafel.

Eerste verdieping:
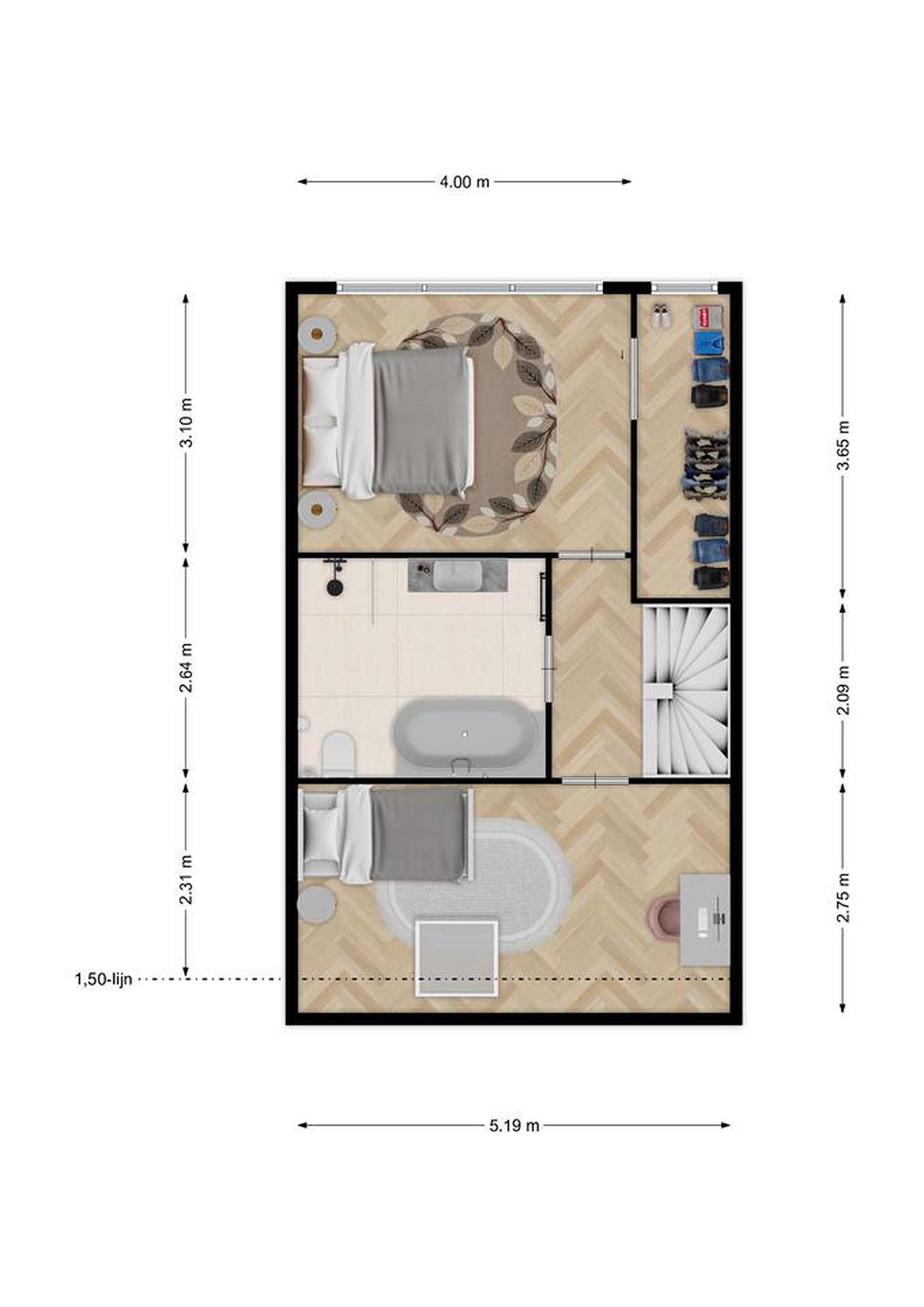
Op de eerste verdieping bevinden zich twee ruime slaapkamers. De slaapkamer aan de voorzijde is voorzien van een dakraam (2023). De slaapkamer aan de achterzijde beschikt over een praktische inloopkast.

De moderne badkamer (2024) is strak uitgevoerd en voorzien van een inloopdouche, toilet, wastafelmeubel en mechanische ventilatie.

Tweede verdieping:
De tweede verdieping is ingericht als royale derde slaapkamer. Dankzij de grote dakkapel is dit een bijzonder ruime en lichte kamer. Hier vind je tevens een eigen douche, toilet en wastafelmeubel, wat deze verdieping perfect maakt als master bedroom. Daarnaast is hier een airco geplaatst (2024) die kan koelen én verwarmen.

Bijzonderheden:
- Volledig gerenoveerd in 2019 en 2024
- Gasloos wonen met warmtepomp
- Energielabel A+
- 14 zonnepanelen
- Vloerverwarming op de gehele begane grond
- Kunststof kozijnen met HR++ glas
- Drie ruime slaapkamers
- Luxe zolderkamer met eigen douche en toilet
- Eigen oprit met elektrische laadpaal (blijft achter)
- Vrij uitzicht over groen, geen inkijk
- Zonnige tuin op het zuidwesten
- Oplevering: Zo snel mogelijk

Afmetingen:
- Woonkamer en keuken: ca. 44 m2
- Slaapkamer 1: ca. 17 m2
- Slaapkamer 2: ca. 23 m2
- Slaapkamer 3 (zolder): ca. 25 m2
- Badkamer: ca. 8 m2

Alle verstrekte informatie moet beschouwd worden als een uitnodiging tot het doen van een bod of om in onderhandeling te treden. Er kunnen geen rechten worden ontleend aan deze woninginformatie.

Lees meer

Verkoopgeschiedenis

Aangeboden sinds
16 januari 2026
Verkoopdatum
6 april 2026
Looptijd
3 maanden

Kenmerken

Overdracht

Prijs per m2
€ 4.204
Aangeboden sinds
16 januari 2026
Status
Verkocht
Aanvaarding
In overleg

Bouw

Soort woonhuis
Eengezinswoning, tussen woning
Soort bouw
Bestaande bouw
Bouwjaar
1982
Soort dak
Zadeldak
Staat van onderhouden binnen
Goed
Staat van onderhouden buiten
Goed

Oppervlakte en inhoud

Perceeloppervlakte
125 m2
Inhoud van de woning
280 m3
Oppervlakte externe bergruimte
4 m2

Indeling

Aantal kamers
4
Aantal slaapkamers
3
Aantal woonlagen
3
Voorzieningen
Tuin, ventilatie, kabel-tv, glasvezel, buitenzonwering, airconditioning, schuifpui, dakraam

Buitenruimte

Balkon
Nee
Schuur/berging
Nee

Maandlasten berekenen

De maandlasten voor je woning bestaan uit meer dan alleen de hypotheeklasten. Hieronder vind je een overzicht van de bijkomende kosten en lasten. Zo weet je precies wat je huis per maand gaat kosten. En met de handige vergelijkers kun je ook nog eens snel de beste deals sluiten!

  • Kaart
  • Streetview