Verkocht OV

Weserlaan 50 5691 MJ Son en Breugel

145m2
Wonen
5
Kamers
269m2
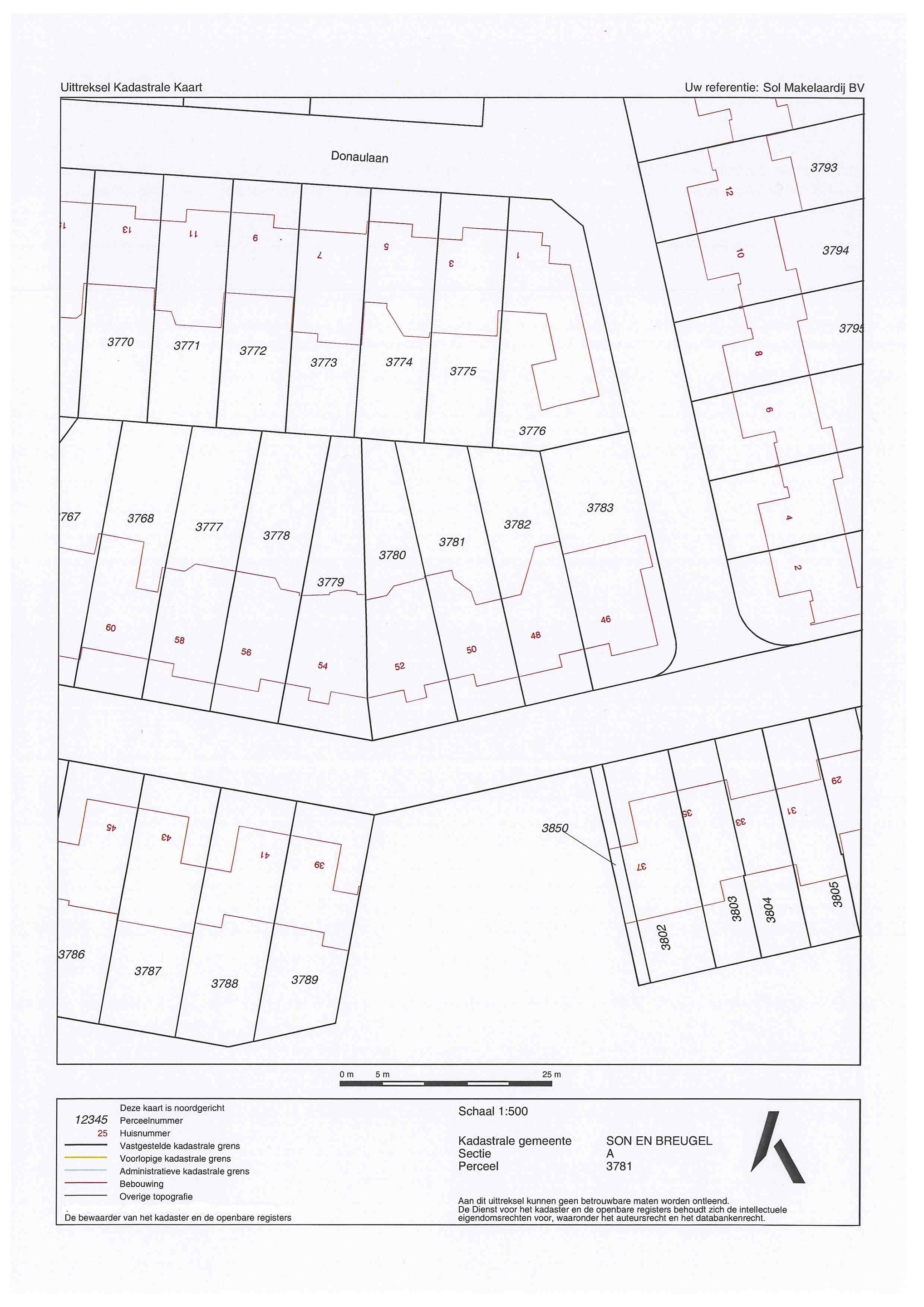
Perceel
1988
Bouwjaar
Welkom in deze ruime en sfeervolle geschakelde twee-onder- een-kap woning voorzien van 4 slaapkamers, garage, leefkeuken en zonnige verzorgde tuin!
Daarnaast bijzonder energiezuinig en top gelegen in de kindvriendelijke gewilde wijk “De Gentiaan” mét vrij uitzicht aan voorzijde.
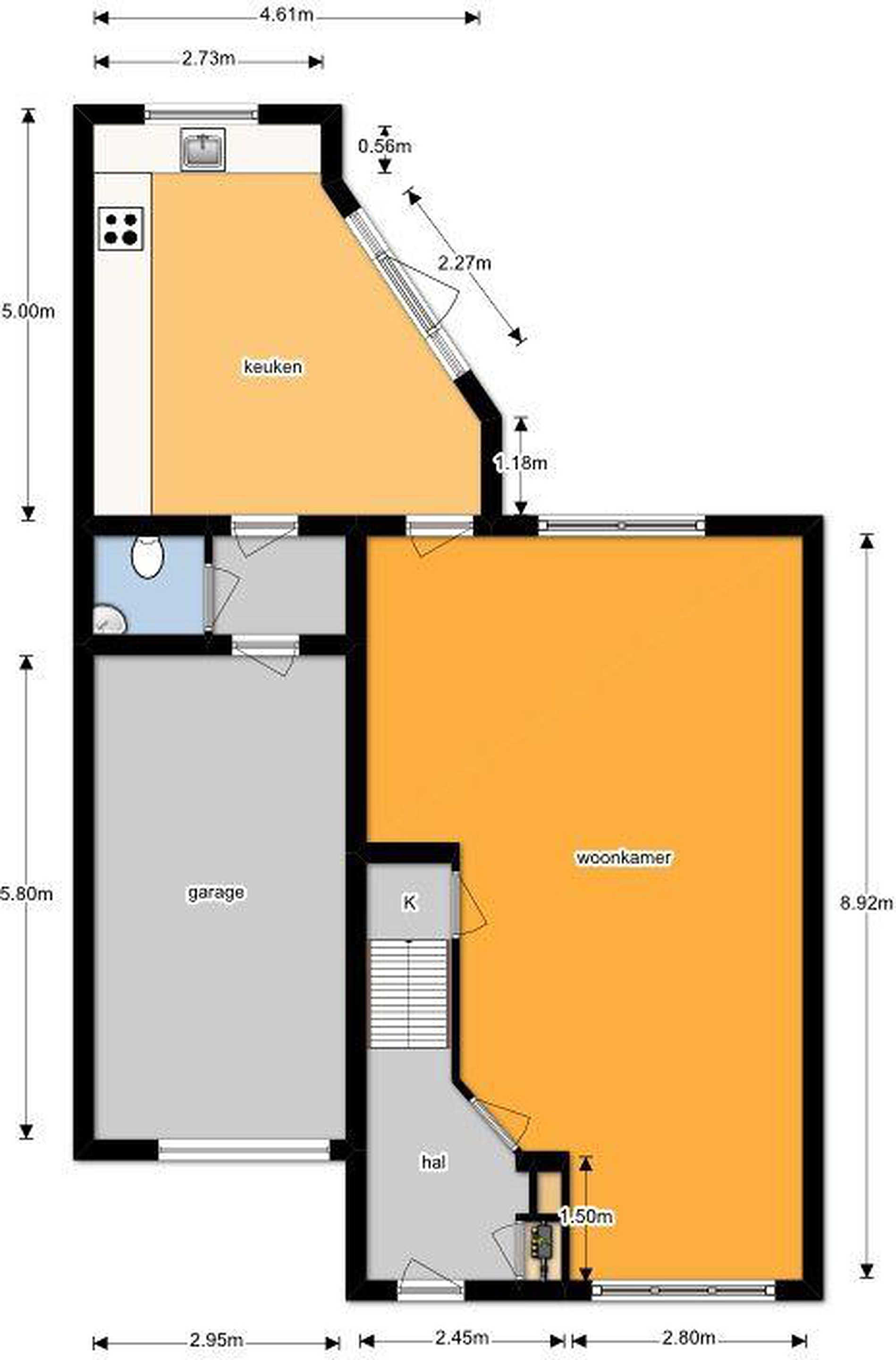
Begane grond
Begane grond:
Via de voortuin komt u bij de entree. De ontvangsthal is voorzien van een houten vloer (beuken), de wanden deels zijn afgewerkt met behang en deels met lambrisering. Hier bevindt zich tevens de meterkast en de trapopgang naar de eerste verdieping. Vanuit de hal betreedt u de woonkamer. Deze is sfeervol afgewerkt en heeft een houten vloer, gestucte wanden en een stucwerk plafond. Grote raampartijen aan voor- en achterzijde. Daarnaast beschikt de
woonkamer over een praktische trapkast, die tevens ruimte biedt voor een garderobe. Aansluitend bereikt u de royale leefkeuken. De sfeervolle keuken is voorzien van een tegelvloer, gestucte wanden en inbouwspots boven het werkblad. De ruime hoekopstelling beschikt over en vierpits gaskookplaat, afzuigkap, koelkast (Liebherr), een combi-oven, anderhalve spoelbak met mengkraan en close-in boiler (Daalderop). Daarnaast een groot werkblad, diverse onder- en
bovenkasten en een praktische carrouselkast. Middels achterdeur met plissé hordeur bereikt u de tuin. Grenzend aan de keuken bevindt zich een extra portaaltje, in gebruik als bijkeuken. Hier treft u een extra werkblad en kastruimte. Vanuit deze ruimte heeft u toegang tot de garage en tot de toiletruimte, die grotendeels is betegeld en is voorzien van een toilet en een fonteintje.



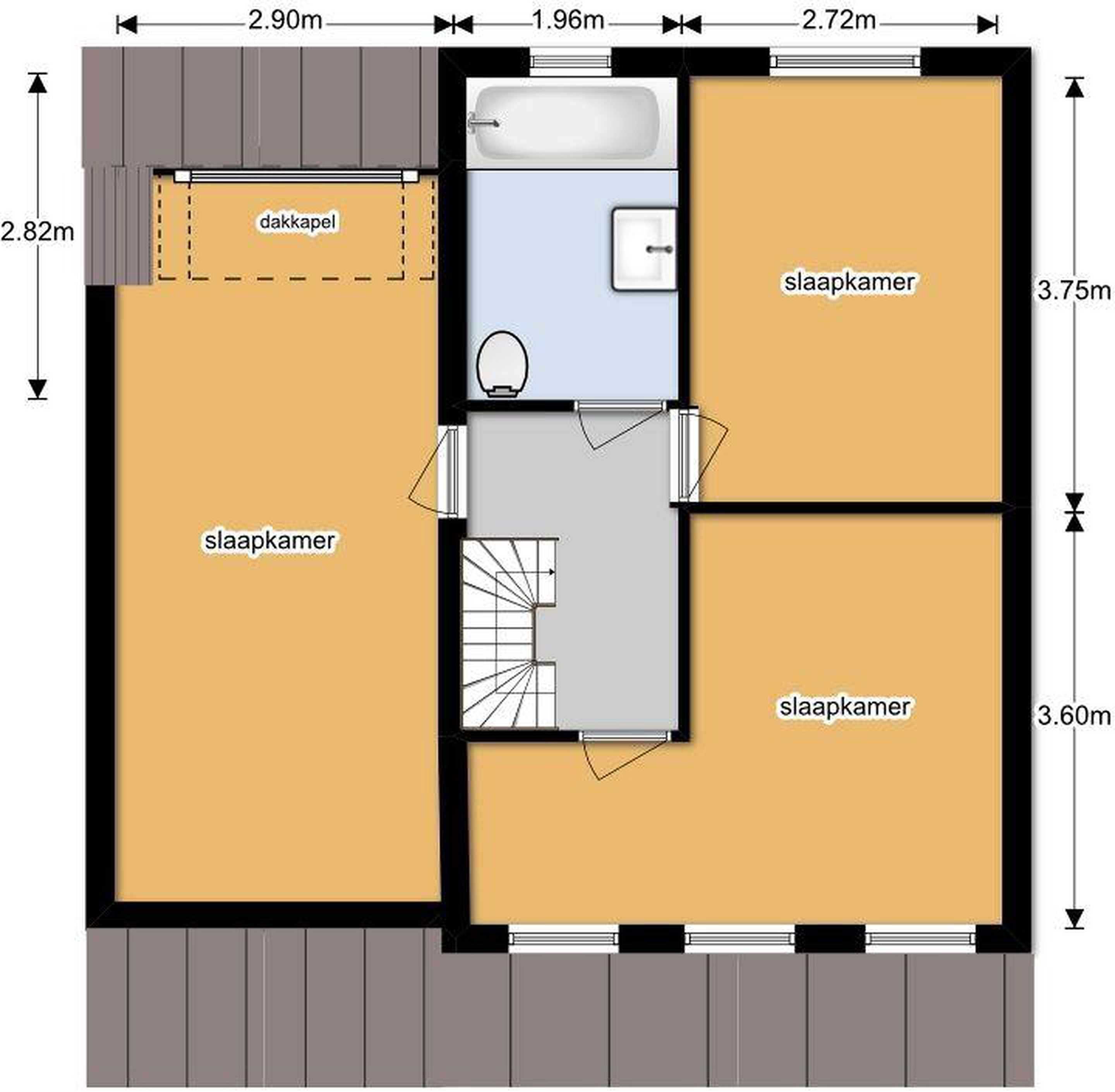
Eerste verdieping
Via de trap bereikt u de overloop op de eerste verdieping. Deze is afgewerkt met een laminaatvloer en de wanden zijn deels voorzien van structuurbehang en deels stucwerk. Aan de voorzijde bevindt zich een ruime slaapkamer, voorzien van een laminaatvloer, gestucte wanden en een structuurplafond.
De tweede, eveneens royale slaapkamer is gelegen aan de achterzijde en beschikt ook over een laminaatvloer. De wanden zijn hier deels afgewerkt met behang en deels gestuct. De grote kunststof dakkapel zorgt voor extra ruimte en een mooi uitzicht op de tuin. Daarnaast zijn er praktische bergkasten gecreëerd, wat zorgt voor extra opberggemak. De derde slaapkamer is eveneens keurig afgewerkt met een laminaatvloer en gestucte wanden. De badkamer is volledig betegeld en uitgevoerd met een ligbad met regendouche met thermostatische kraan (Grohe 2025), een vrijdragend toilet en een badmeubel met vaste wastafel. Tevens is de badkamer voorzien van een designradiator, mechanische ventilatie en een extra opbergmeubel.

Tweede verdieping
Middels de vaste trap bereikt u de tweede etage. Hier komt u uit op een ruime, open zolderverdieping die verrassend veel mogelijkheden biedt. De vloer is netjes afgewerkt met laminaat en de wanden zijn voorzien van structuurbehang wanden. Op het voorste gedeelte bevindt zich de omvormer ten behoeve van de zonnepanelen. Tevens treft u hier de aansluitingen voor de wasapparatuur en de recent vernieuwde CV-ketel met een extra hybride warmtepomp (beide REMEHA 2025). In het achterste gedeelte, de zolderkamer, zorgt een groot Velux dakvenster voor een prettige lichtinval. Daarnaast is er volop bergruimte aanwezig achter
de knieschotten en zijn er extra kasten gecreëerd, waardoor de ruimte optimaal wordt benut.

Tuin
De royale privacy biedende achtertuin is verzorgd aangelegd. Direct aan de woning bevindt zich een groot terras, verder is de tuin ingericht met een speelgazon, borders met vaste beplanting, vijverpartij, pergola en achter in de tuin bevind zich een tweede terras en houten tuinhuis voor extra opbergmogelijkheden, tevens zijn er in de tuin op verschillende plekken stroomvoorzieningen.


Details
- Een kindvriendelijke en rustige omgeving nabij bossen, sport etc.
- Vrij uitzicht aan voorzijde.
- Energielabel A.
- 10 zonnepanelen aan voorzijde 2019.
- Leefkeuken met grote raampartijen.
- Ruime privacy biedende achtertuin.
- 4 slaapkamers.
- CV-ketel met een extra hybride warmtepomp (REMEHA 2025). (+/- 200 m3 gasverbruik per jaar)
- Aansluiting aanwezig voor opladen elektrische auto (nader overeen te komen).
- Extra keukenblok in garage met afvoer en close-in boiler.
- Schilderwerk buitenzijde 2023.
- Vernieuwde meterkast met 3-fase aansluiting. (2025)
- Zeer nette woning!

Locatie:
Deze woning is rustig gelegen in gewilde en kindvriendelijke wijk ‘de Gentiaan’ met vrij uitzicht aan voorzijde. Zeer centraal ten opzichte van sportvoorzieningen, supermarkt, spa faciliteiten, basisscholen, natuurgebieden en openbaar vervoer. Tevens op korte afstand van uitvalswegen zoals de A50 en A2.

Lees meer

Kenmerken

Overdracht

Prijs per m2
€ 3.621
Aangeboden sinds
24 maart 2026
Status
Verkocht onder voorbehoud
Aanvaarding
In overleg

Bouw

Soort woonhuis
Eengezinswoning, geschakelde twee-onder-een-kap woning
Soort bouw
Bestaande bouw
Bouwjaar
1988
Soort dak
Zadeldak
Staat van onderhouden binnen
Goed
Staat van onderhouden buiten
Goed

Oppervlakte en inhoud

Perceeloppervlakte
269 m2
Inhoud van de woning
476 m3
Oppervlakte overige inpandige ruimten
17 m2

Indeling

Aantal kamers
5
Aantal slaapkamers
4
Aantal woonlagen
3
Voorzieningen
Tuin, schuur/berging, kabel-tv, dakraam

Buitenruimte

Balkon
Nee
Schuur/berging
Ja

Maandlasten berekenen

De maandlasten voor je woning bestaan uit meer dan alleen de hypotheeklasten. Hieronder vind je een overzicht van de bijkomende kosten en lasten. Zo weet je precies wat je huis per maand gaat kosten. En met de handige vergelijkers kun je ook nog eens snel de beste deals sluiten!

  • Kaart
  • Streetview