Verkocht

Drentelaan 26 5691 KT Son en Breugel

129m2
Wonen
5
Kamers
216m2
Perceel
1970
Bouwjaar
Aan een rustig en groen opgezet woonhofje, in de populaire wijk ‘de Gentiaan’, ligt deze verrassend ruime eengezinswoning met een uitbouw (keuken) aan de achterzijde, 4 slaapkamers én een garage. De woning biedt u volop ruimte en een fijne tuin met optimale privacy.
Hoewel de woning toe is aan wat modernisering, is alles aanwezig om hier heel prettig te wonen.
Dé ideale kans om er helemaal úw thuis van te maken!
Begane grond
Begane grond:
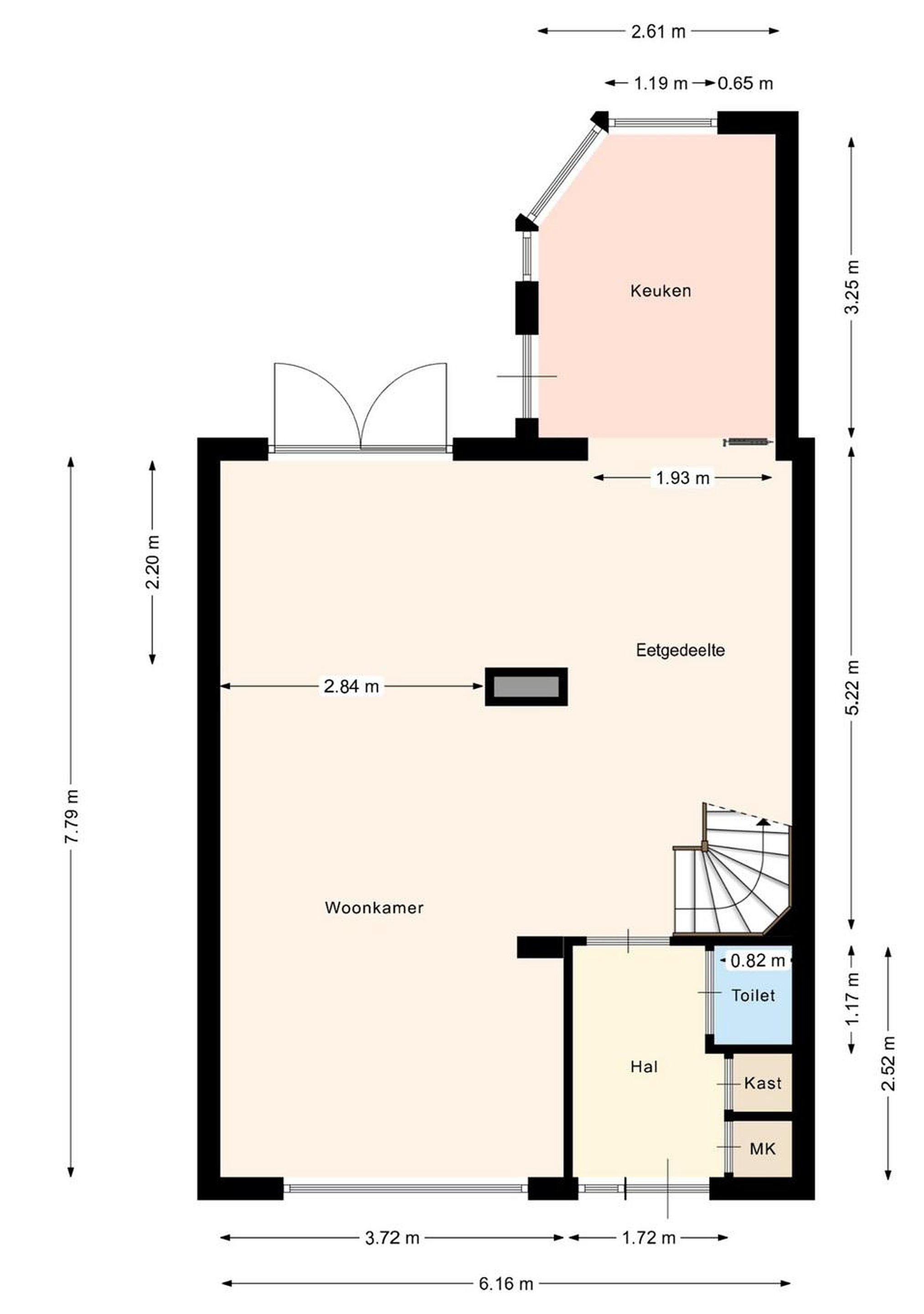
Via de voortuin bereikt u de overdekte entree. U komt binnen in de ontvangsthal, afgewerkt met een houten vloer, gestucte wanden en plafond. Hier vindt u de meterkast, een handige inbouwkast en een deels betegelde toiletruimte met staand toilet en fonteintje. De hal biedt toegang tot de woonkamer.
De lichte woonkamer vormt het hart van het huis. De ruimte is afgewerkt met dezelfde houten vloer, gestucte wanden en stucwerk plafond. Aan de achterzijde bieden openslaande deuren toegang tot de tuin – heerlijk veel daglicht én een directe verbinding met buiten. De trap naar de verdieping is op een subtiele manier in de ruimte verwerkt.
De keuken, gelegen in de uitbouw, is uitgevoerd in een nette praktische U-opstelling (Ikar) met lichte tegelvloer en inbouwspotjes. Hier kookt u met plezier dankzij de aanwezige inbouwapparatuur: 4-pits gaskookplaat, afzuigkap, combi-oven en vaatwasser (apparatuur grotendeels van Bosch). Daarnaast is er voldoende kastruimte en via de loopdeur staat u zo in de tuin.

Eerste verdieping
Overloop met tochtsluis. Op deze verdieping bevinden zich 3 slaapkamers respectievelijk 14.2m2, 12.6m2 en 9.4m2 groot.
Slaapkamer 1 (voorzijde) is voorzien van tapijt, behang wanden en stucwerk plafond. Slaapkamer 2 (achterzijde) met laminaatvloer en stucwerk wanden/plafond. Slaapkamer 3 (achterzijde) is afgewerkt met tapijt, behang wanden, stucwerk plafond en beschikt over een grote schuifwandkast.
De badkamer is volledig betegeld en compleet ingericht met een lichtbad, een aparte douche, een vrijdragend toilet, vaste wastafel, een handdoekenradiator en een lamellenplafond met inbouwspots.

Tweede verdieping
De tweede verdieping bereikt u via een vaste trap en biedt verrassend veel extra ruimte. U komt boven op de voorzolder, afgewerkt met tapijt, gestucte wanden en een lamellenplafond.
CV-/wasruimte met de aansluitingen t.b.v. de wasapparatuur en de opstelling van de HR-combiketel (Vaillant, bouwjaar 2023). Extra bergkamer met omvormer t.b.v. de zonnepanelen.
Slaapkamer 4 is voorzien van een dakkapel, laminaatvloer, gestucte wanden, lamellenplafond en bergruimte achter praktische schuifwandkasten.

Tuin
De achtertuin is grotendeels bestraat en daardoor onderhoudsvriendelijk. Er is een groot terras direct aan huis, een buitenkraan, en diverse vaste beplanting zorgt voor groen. Achterin de tuin bevindt zich de ruime garage.

Garage:
De stenen garage (6.2m bij 3.1m) is voorzien van elektra, loopdeur naar de tuin en een stalen kanteldeur met geïntegreerde loopdeur aan de achterzijde. Ideaal als bergruimte, klusplek of voor het stallen van fietsen of een auto.

Details
- Rustige ligging aan kindvriendelijk hofje in zeer gewilde wijk “de gentiaan”.
- Op korte afstand van allerhande voorzieningen zoals scholen (LO), winkels, sportaccommodaties en uitvalswegen.
- Vier slaapkamers!
- Heerlijke ruime living door uitbouw aan achterzijde (keuken).
- Garage.
- 9 zonnepanelen.
- Kruipruimte geïsoleerd met parels.
- Koper dient rekening te houden met moderniseringskosten, hier is in de prijsstelling rekening mee gehouden, het voordeel is dat u dit geheel naar eigen smaak kunt verwezenlijken.
- Diepe achtertuin!

Locatie:
Deze woning is gelegen aan een kindvriendelijk hofje in zeer gewilde, ruim opgezette, groene wijk “De Gentiaan” met voldoende parkeergelegenheid en de mogelijkheid voor het opladen van uw elektrische auto voor uw deur. Nabij de bossen, op korte fietsafstand van het centrum Son, verschillende soorten sportaccommodaties, supermarkt en scholen (LO). Eveneens nabij uitvalswegen A2 en A50 én op circa 10 autominuten van centrum Eindhoven.

Lees meer

Verkoopgeschiedenis

Aangeboden sinds
10 februari 2026
Verkoopdatum
7 april 2026
Looptijd
2 maanden

Kenmerken

Overdracht

Prijs per m2
€ 3.062
Aangeboden sinds
10 februari 2026
Status
Verkocht
Aanvaarding
In overleg

Bouw

Soort woonhuis
Eengezinswoning, tussen woning
Soort bouw
Bestaande bouw
Bouwjaar
1970
Soort dak
Zadeldak
Staat van onderhouden binnen
Goed
Staat van onderhouden buiten
Goed

Oppervlakte en inhoud

Perceeloppervlakte
216 m2
Inhoud van de woning
414 m3
Oppervlakte externe bergruimte
19 m2

Indeling

Aantal kamers
5
Aantal slaapkamers
4
Aantal woonlagen
3
Voorzieningen
Tuin, kabel-tv

Buitenruimte

Balkon
Nee
Schuur/berging
Nee

Maandlasten berekenen

De maandlasten voor je woning bestaan uit meer dan alleen de hypotheeklasten. Hieronder vind je een overzicht van de bijkomende kosten en lasten. Zo weet je precies wat je huis per maand gaat kosten. En met de handige vergelijkers kun je ook nog eens snel de beste deals sluiten!

  • Kaart
  • Streetview