Sommelsdijkse Haven 12 3245 MA Sommelsdijk

126m2
Wonen
7
Kamers
108m2
Perceel
2007
Bouwjaar
Ruime, instapklare gezinswoning met maar liefst 6 slaapkamers, zonnige achtertuin en 11 zonnepanelen – gelegen in een rustige en kindvriendelijke woonwijk.

Ben je op zoek naar een verrassend ruime woning waar je met het hele gezin comfortabel kunt wonen? Dan is deze goed onderhouden eengezinswoning uit 2007 zeker een bezichtiging waard. De woning beschikt over een lichte woonkamer met open keuken, zes slaapkamers verdeeld over twee verdiepingen, een complete badkamer en een ruime zolder met veel extra bergruimte.

Daarnaast is de woning voorzien van 11 zonnepanelen (2022) en is de voortuin in 2024 opnieuw aangelegd. In de achtertuin, op het zuiden, kun je heerlijk genieten van het buitenleven.

De woning ligt in een rustige straat met voldoende parkeergelegenheid en op korte afstand van winkels, scholen, sportvoorzieningen en uitvalswegen.
Begane grond
Entree met hal, meterkast, toiletruimte met fonteintje en trapopgang naar de eerste verdieping.
De lichte woonkamer is tuingericht en beschikt over grote raampartijen en een deur naar de achtertuin, waardoor er veel natuurlijk licht binnenvalt. De ruimte biedt voldoende plaats voor een royale zithoek en een gezellige eethoek.
Aan de voorzijde bevindt zich de open keuken in L-opstelling, voorzien van diverse inbouwapparatuur zoals een gaskookplaat, afzuigkap, oven/magnetron en een vaatwasser (2018).

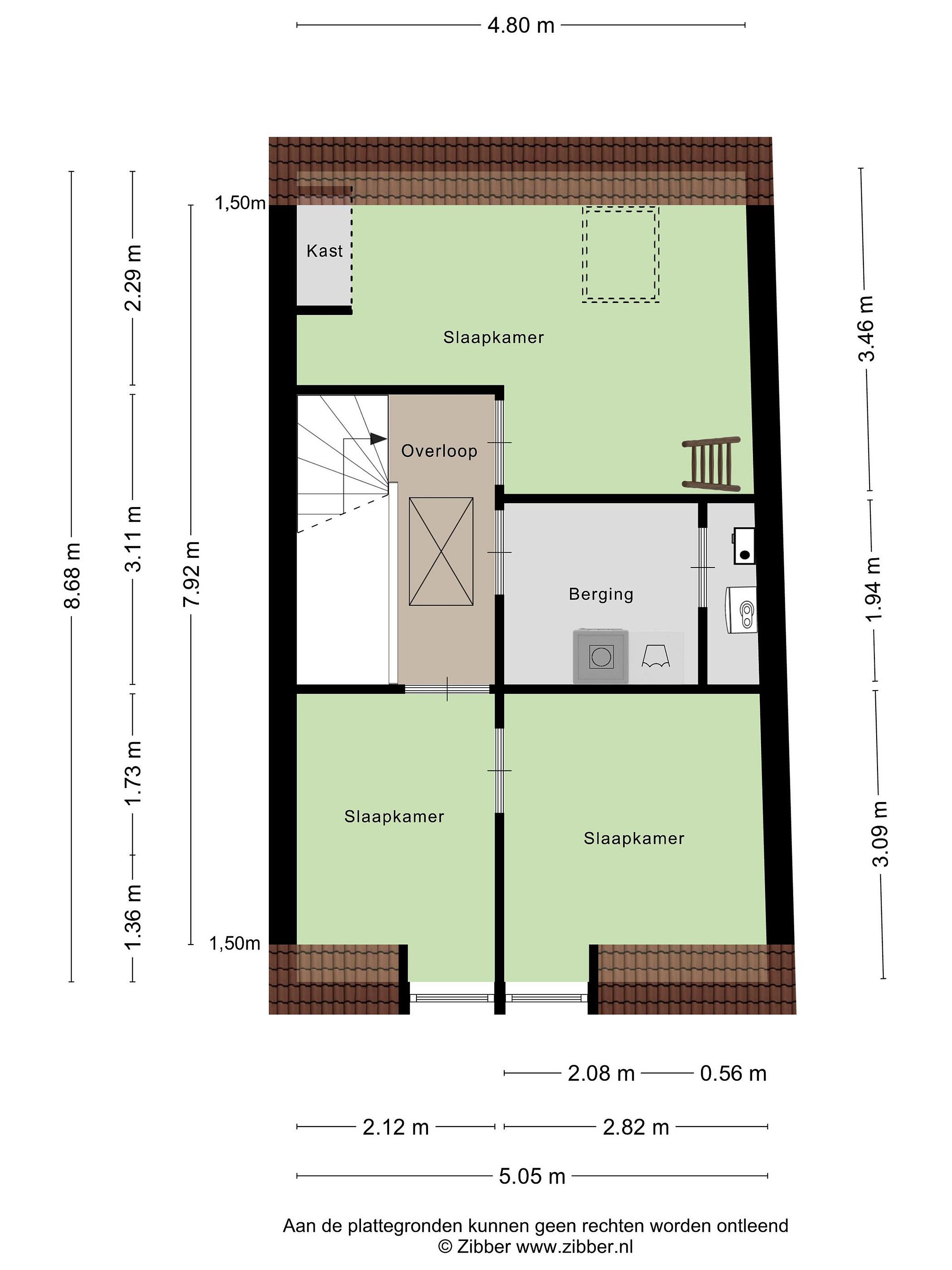
Eerste verdieping
Eerste verdieping
Overloop met toegang tot drie slaapkamers en de badkamer.
 Slaapkamer 1: ruime hoofdslaapkamer over de volledige breedte van de woning.
 Slaapkamer 2: goede slaapkamer, geschikt als kinder- of werkkamer.
 Slaapkamer 3: compacte slaapkamer, ideaal als kinderkamer, kantoor of inloopkast.
De badkamer is compleet uitgevoerd met een ligbad met douche, wastafel, toilet, radiator en mechanische ventilatie.

Tweede verdieping
Tweede verdieping
Ook deze verdieping biedt verrassend veel ruimte met drie extra slaapkamers en een praktische berging/wasruimte met aansluitingen voor wasapparatuur.
 Slaapkamer 4: royale slaapkamer met veel lichtinval.
 Slaapkamer 5: fijne slaapkamer, perfect als werk- of hobbykamer.
 Slaapkamer 6: eveneens geschikt als kinder- of logeerkamer.

Tuin
De achtertuin is verzorgd aangelegd en biedt een fijne plek om te ontspannen. Daarnaast beschikt het over een elektrisch zonnescherm en een druppelslang voor het bewateren van plantenbakken.
Hier kun je vrijwel het hele seizoen comfortabel buiten zitten.
De voortuin is in april 2024 opnieuw aangelegd met jaarrond bloeiende bloemen.

Details
 Bouwjaar 2007
 6 slaapkamers
 11 zonnepanelen (370 Wp) geplaatst in 2022
 Voortuin nieuw aangelegd in 2024
 Elektrisch zonnescherm aanwezig
 Buitenschilderwerk 2023
 Keuken met inbouwapparatuur, o.a. vaatwasser (2018)
 Zolder met ruime vliering
 Rustige en kindvriendelijke woonomgeving

Lees meer

Kenmerken

Overdracht

Prijs per m2
€ 3.710
Aangeboden sinds
20 maart 2026
Status
Beschikbaar
Aanvaarding
In overleg

Bouw

Soort woonhuis
Eengezinswoning, tussen woning
Soort bouw
Bestaande bouw
Bouwjaar
2007
Soort dak
Dwarskap
Staat van onderhouden binnen
Goed
Staat van onderhouden buiten
Goed

Oppervlakte en inhoud

Perceeloppervlakte
108 m2
Inhoud van de woning
494 m3
Oppervlakte externe bergruimte
9 m2
Oppervlakte overige inpandige ruimten
13 m2

Indeling

Aantal kamers
7
Aantal slaapkamers
6
Aantal woonlagen
4
Voorzieningen
Tuin, schuur/berging, ventilatie, kabel-tv, buitenzonwering, dakraam

Buitenruimte

Balkon
Nee
Schuur/berging
Ja

Maandlasten berekenen

De maandlasten voor je woning bestaan uit meer dan alleen de hypotheeklasten. Hieronder vind je een overzicht van de bijkomende kosten en lasten. Zo weet je precies wat je huis per maand gaat kosten. En met de handige vergelijkers kun je ook nog eens snel de beste deals sluiten!

  • Kaart
  • Streetview