Thorbeckestraat 24 3762 SN Soest

100m2
Wonen
5
Kamers
120m2
Perceel
1994
Bouwjaar
Instapklaar, energiezuinig en verrassend ruim: jouw nieuwe thuis aan de Thorbeckestraat 24. Op zoek naar een comfortabele gezinswoning met vier slaapkamers, een A-label én zonnepanelen? Dan zit je hier helemaal goed. Deze goed onderhouden tussenwoning uit 1994 biedt je een fijne mix van ruimte, rust en duurzaamheid – en dat op een centrale plek in Soest. Met een woonoppervlakte van 100 m2 en een perceel van 120 m2 is dit een woning waar je met gemak je draai vindt. De sfeer is meteen goed zodra je binnenkomt: een lichte woonkamer met een prettig zicht op de tuin, een moderne open keuken en een nette afwerking zorgen voor een warme, uitnodigende uitstraling. Boven vind je vier slaapkamers, ideaal voor een gezin, logees of een werkplek aan huis.
Qua isolatie en techniek is deze woning helemaal van nu: dak-, gevel- en vloerisolatie, grotendeels HR++ beglazing en deels kunststof kozijnen. Met 8 zonnepanelen op het dak verlaag je bovendien je energielasten en draag je bij aan een duurzamere toekomst. De achtertuin is verzorgd aangelegd, heeft een praktische berging én een achterom – ideaal voor bijvoorbeeld fietsen. Een fijne plek om buiten te zitten, te spelen of te tuinieren, met voldoende privacy en zonder dat je daar veel onderhoud aan hebt. Kortom: een complete woning waar je zó in kunt.

Centrale ligging in de wijk ’t Hart – rustig wonen met alles binnen handbereik
De woning ligt aan een rustige straat in de woonwijk ’t Hart, een centraal gelegen en gewilde buurt in Soest. In de directe omgeving vind je diverse voorzieningen zoals scholen, kinderopvang, sportverenigingen en speeltuinen. Ook voor de dagelijkse boodschappen zit je hier goed: binnen enkele minuten bereik je het winkelgebied aan de Van Weedestraat, met een supermarkt, speciaalzaken en horeca.
Daarnaast zijn de uitvalswegen richting Amersfoort, Utrecht en Hilversum snel bereikbaar, en ook het openbaar vervoer is goed geregeld met meerdere bushaltes en NS-station Soestdijk op korte afstand. Een fijne combinatie van rustig wonen en goede bereikbaarheid.
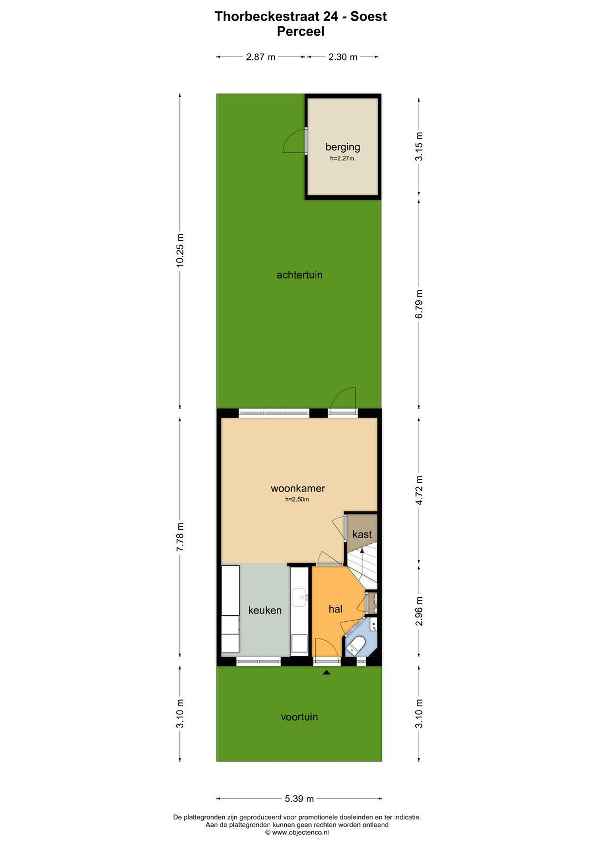
Begane grond
Je komt binnen in een verzorgde hal met toegang tot de meterkast, een nette toiletruimte met fonteintje en de trap naar de eerste verdieping. Vanuit hier loop je door naar de woonkamer en keuken. De tuingerichte woonkamer voelt aangenaam ruim aan dankzij de grote raampartij aan de achterzijde. Je kijkt uit op het groen van de tuin en geniet van veel daglicht. De strakke laminaatvloer en rustige kleurstelling zorgen voor een warme, uitnodigende sfeer – een fijne basis voor elk interieur. Aan de voorzijde van de woning vind je de open keuken. Deze is uitgevoerd in een lichte kleur en voorzien van diverse inbouwapparatuur: een 4-pits inductiekookplaat, vaatwasser, combimagnetron en een koel-vriescombinatie. Alles is overzichtelijk ingedeeld met voldoende kastruimte, zodat koken hier zowel praktisch als plezierig is.

Eerste verdieping
Op de eerste verdieping vind je drie volwaardige slaapkamers, elk met een fijne lichtinval en praktische indeling. Twee van de kamers zijn afgewerkt met een doorlopende laminaatvloer, terwijl de grootste slaapkamer is voorzien van tapijt – comfortabel en sfeervol. Deze hoofdslaapkamer beschikt bovendien over een vaste kast, handig voor kleding of linnengoed. De badkamer is modern en verzorgd, uitgevoerd in neutrale tinten. Je beschikt hier over een ligbad met douchecombinatie, een tweede toilet, een wastafelmeubel en een designradiator. Het raam zorgt voor prettig daglicht en extra ventilatiemogelijkheid.

Tweede verdieping
De tweede verdieping biedt extra woonruimte en praktische voorzieningen. Via de vaste trap bereik je de overloop met toegang tot de wasruimte en cv-opstelling. Hier vind je de aansluitingen voor wasmachine en droger, evenals de gasgestookte cv-ketel van het merk Atag (type A244EC, bouwjaar 2015). Alles netjes weggewerkt in een afgesloten ruimte. De verdieping beschikt verder over een vierde slaapkamer met een prettig formaat en een groot dakraam, wat zorgt voor veel daglicht. Deze kamer is momenteel in gebruik als werkkamer, maar kan uiteraard ook dienstdoen als logeerkamer, hobbyruimte of tienerkamer.
Aansluitend is er een aparte berging met volop plek voor seizoensspullen, koffers of sportuitrusting. Dankzij de slimme indeling en het schuine dak met knieschotten is de beschikbare ruimte optimaal benut.

Tuin
De voortuin ligt gunstig op het zuiden en is netjes aangelegd met onderhoudsarme beplanting en een moderne uitstraling. Een fijne plek voor een zitje in de zon, met net wat meer privacy dan je misschien zou verwachten aan de voorzijde. De achtertuin, gelegen op het noorden, biedt juist weer verkoeling op warme dagen. Dankzij de open ligging is er toch voldoende lichtinval. De tuin is verzorgd aangelegd met een combinatie van bestrating, kunstgras en groene accenten. Achterin bevindt zich een stenen berging met elektra, ideaal voor fietsen, gereedschap of buitenspeelgoed. Extra praktisch is de achterom: handig voor de kliko’s of als je met de fiets thuiskomt via de steeg.




Details
- Instapklare eengezinswoning met A-label
- Gunstig gelegen in de kindvriendelijke wijk ’t Hart in Soest
- Vier volwaardige slaapkamers, ideaal voor gezin, logees of thuiswerk
- Moderne badkamer met ligbad, tweede toilet en daglicht
- Nette afwerking en verzorgd onderhoudsniveau
- Tweede verdieping met wasruimte, berging én extra (slaap)kamer
- Cv-ketel Atag A244EC (2015), gasgestookt
- Dak-, gevel- en vloerisolatie
- Grotendeels HR++ glas en deels kunststof kozijnen
- Voorzien van 8 zonnepanelen
- Voorzijde voorzien van elektrische zonwering: rolluiken boven en een screen op zonne-energie beneden
- Achtertuin met stenen berging, achterom en volop privacy
- Voortuin op het zuiden, achtertuin op het noorden
- Rustige ligging met alle voorzieningen op korte afstand
- Goede bereikbaarheid met zowel auto als openbaar vervoer
- Energielabel, NEN2580 meetrapport en overige documenten beschikbaar in de dataroom (zie brochure)

Lees meer

Kenmerken

Overdracht

Prijs per m2
€ 5.000
Aangeboden sinds
10 oktober 2025
Status
Beschikbaar
Aanvaarding
In overleg

Bouw

Soort woonhuis
Eengezinswoning, tussen woning
Soort bouw
Bestaande bouw
Bouwjaar
1994
Soort dak
Zadeldak
Staat van onderhouden binnen
Goed
Staat van onderhouden buiten
Goed

Oppervlakte en inhoud

Perceeloppervlakte
120 m2
Inhoud van de woning
355 m3
Oppervlakte externe bergruimte
7 m2

Indeling

Aantal kamers
5
Aantal slaapkamers
4
Aantal woonlagen
3
Voorzieningen
Tuin, ventilatie, glasvezel

Buitenruimte

Balkon
Nee
Schuur/berging
Nee

Maandlasten berekenen

De maandlasten voor je woning bestaan uit meer dan alleen de hypotheeklasten. Hieronder vind je een overzicht van de bijkomende kosten en lasten. Zo weet je precies wat je huis per maand gaat kosten. En met de handige vergelijkers kun je ook nog eens snel de beste deals sluiten!

  • Kaart
  • Streetview