Verkocht

Nieuweweg 17 3765 GA Soest

94m2
Wonen
3
Kamers
323m2
Perceel
1929
Bouwjaar
Karakter, ruimte en volop mogelijkheden.
Deze charmante twee-onder-een-kapper biedt je een fijne mix van sfeer, ruimte en potentie. Met een sfeervolle erker aan de voorzijde, een lichte woonkamer, open keuken met bar, een aparte wasruimte en twee ruime slaapkamers boven is de basis dik in orde. De badkamer heeft daglicht en is praktisch ingericht. Buiten geniet je van een zonnige voortuin op het zuidwesten en een besloten achtertuin met overkapping én eigen zwembad. De oprit en vrijstaande garage maken het geheel compleet. Zoek je een huis met karakter én de ruimte om het helemaal naar je hand te zetten? Dan voel je je hier snel thuis.

Rustig wonen met alles dichtbij – én de natuur om de hoek.
Wonen op een plek waar natuur, bereikbaarheid en dagelijkse voorzieningen samenkomen? Dan zit je hier goed. Vanuit huis wandel of fiets je zó richting de uitgestrekte bossen, zandverstuivingen én de Soester Eng – een bijzonder natuurgebied met slingerende wandel- en fietspaden, glooiende akkers en weids uitzicht. Ideaal voor een frisse neus, een ontspannen ommetje of een sportief rondje. Het station Soest-Zuid ligt op loopafstand, waardoor je eenvoudig met de trein reist richting Amersfoort of Utrecht. Ook met de auto ben je snel onderweg dankzij de centrale ligging. Boodschappen doen? Dat kan praktisch om de hoek, net als een snelle haring bij de visboer of een kop koffie bij een van de buurtwinkels. De woning ligt aan een doorgaande weg, wat zorgt voor een goede bereikbaarheid, maar binnen en in de tuin ervaar je vooral rust.

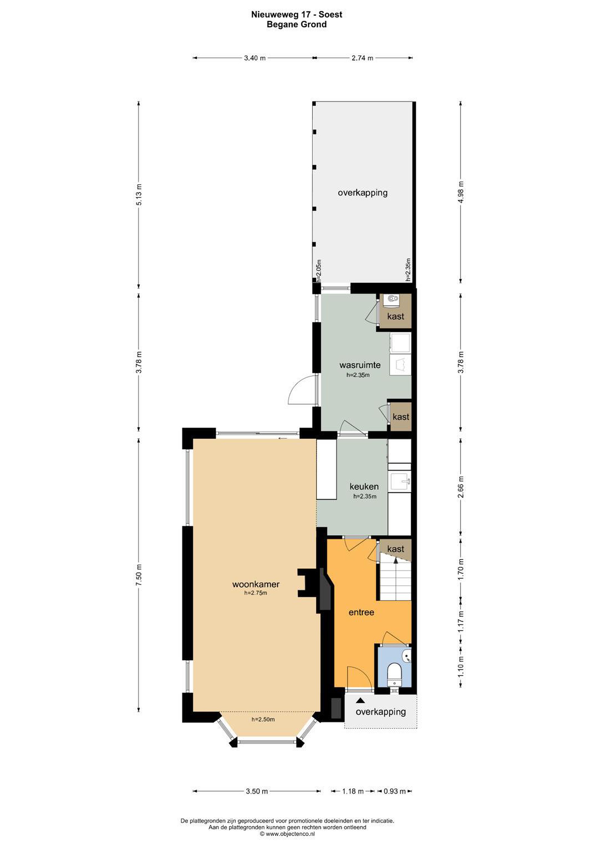
Begane grond
Begane grond – licht, praktisch en met open keuken
Je komt binnen in een nette hal met toegang tot het toilet, een trapkast en de trap naar boven. Vanuit hier loop je door naar de open keuken, die in verbinding staat met de eet- en woonkamer. De keuken is modern en functioneel ingericht, met een 4-pits gaskookplaat, afzuigkap, combi-magnetron, vaatwasser én een Hotto heetwaterkraan. De bar scheidt koken en tafelen op een fijne, informele manier – perfect voor dagelijks gebruik. De woonkamer is verrassend licht, met grote ramen, een schuifpui naar de tuin en een sfeervolle erker aan de voorzijde. De open haard en zichtbare balken geven extra sfeer. Achter de keuken ligt een aparte wasruimte met plek voor de wasmachine, droger en extra opbergruimte. Ook hier heb je toegang tot de tuin. De gehele begane grond is voorzien van een laminaatvloer in houtlook – praktisch en neutraal in stijl. Een prettige, open leefruimte met veel daglicht, praktische indeling en volop gebruiksgemak.

Eerste verdieping
Eerste verdieping – twee slaapkamers en een badkamer met daglicht.
Op de eerste verdieping vind je twee volwaardige slaapkamers, allebei met een goede maatvoering en prettige lichtinval. De slaapkamer aan de voorzijde beschikt over vaste kastruimte en kijkt uit richting de straat. De kamer aan de achterzijde biedt uitzicht op de tuin en het zwembad – een rustige ligging en veel privacy. Op de overloop is een airco-unit geplaatst, waardoor het ook op warme dagen comfortabel blijft. De ruimte is bovendien groot genoeg om er, zoals nu, een extra functie aan te geven. De badkamer is licht dankzij een breed raam en voorzien van een douchecabine en een modern wastafelmeubel. Ook op deze verdieping ligt een laminaatvloer, wat zorgt voor een rustige, doorlopende stijl in de hele woning.

Tuin
Zonnige voortuin en diepe achtertuin met zwembad.
De voortuin is gelegen op het zuidwesten, waardoor je hier in de middag en avond heerlijk van de zon kunt genieten. De achtertuin ligt op het noordoosten en biedt verrassend veel ruimte. De tuin is grotendeels voorzien van kunstgras, wat het onderhoud beperkt en altijd een nette uitstraling geeft. Blikvanger is het zwembad: een Happy-Pool van 7,42 x 3,50 x 1,60 meter – niet verwarmd, maar ideaal voor zomerse verkoeling. Aangrenzend aan de woning bevindt zich een royale, overdekte veranda waar je ook bij minder weer beschut buiten zit. Daarnaast is er een ruime vrijstaande garage, bereikbaar vanaf de oprit naast de woning – ideaal als hobbyruimte, opslag of voor het stallen van fietsen of motor. Een fijne buitenruimte met volop privacy, comfort en gebruiksgemak.

Details
- Woonoppervlakte 94 m2
- Perceel van 323 m2 eigen grond
- Sfeervolle erker aan de voorzijde
- Lichte woonkamer met open haard (lang niet gebruikt) en schuifpui naar de tuin
- Open keuken met bar, 4-pits gaskookplaat, afzuigkap, combi-magnetron, vaatwasser en Hotto heetwaterkraan
- Aparte wasruimte met opstelplek voor wasmachine en droger
- Cv-ketel (Intergas Kombi Kompakt HRE, 2013), geplaatst in de wasruimte en uit het zicht weggewerkt
- Twee volwaardige slaapkamers op de eerste verdieping
- Handige vliering bereikbaar via een aluminium vlizotrap – ideaal voor extra opslagruimte
- Beide slaapkamers zijn voorzien van rolluiken aan de buitenzijde: comfortabel én verduisterend
- Achter de tuin ligt een karakteristieke, monumentale boerderij
- Het dakleer van de bijkeuken is recent vernieuwd – weer een zorg minder.
- Dankzij het royale perceel zijn er – uiteraard in overleg met de gemeente – mogelijkheden voor bijvoorbeeld een mantelzorgwoning of het starten van een praktijk of onderneming aan huis
- Airco op de overloop
- Zonnige voortuin (zuidwest) en diepe achtertuin (noordoost)
- Overdekte veranda én eigen zwembad (Happy-Pool 7,42 x 3,50 x 1,20 m, niet verwarmd)
- Vrijstaande garage aan de zijkant van het perceel
- Parkeren op eigen oprit
- Energielabel E
- Ramen: deels dubbel glas, deels enkel glas; aluminium kozijnen met dubbelglas op twee slaapkamers
- Enkele kozijnen zijn wat ouder en toe aan vervanging. Een mooie kans om dit naar eigen smaak en in lijn met moderne isolatiewaarden aan te pakken – en zo het comfort én de uitstraling van de woning verder te verbeteren
- Verwarming en warm water via combiketel
-Centrale ligging nabij winkels, scholen, sportvoorzieningen en OV.
- Energielabel, NEN2580 meetrapport en overige documenten beschikbaar in de dataroom (zie brochure)


Lees meer

Verkoopgeschiedenis

Aangeboden sinds
24 oktober 2025
Verkoopdatum
5 maart 2026
Looptijd
4 maanden

Kenmerken

Overdracht

Prijs per m2
€ 5.585
Aangeboden sinds
24 oktober 2025
Status
Verkocht
Aanvaarding
In overleg

Bouw

Soort woonhuis
Eengezinswoning, twee-onder-een-kap woning
Soort bouw
Bestaande bouw
Bouwjaar
1929
Soort dak
Zadeldak
Staat van onderhouden binnen
Redelijk
Staat van onderhouden buiten
Redelijk

Oppervlakte en inhoud

Perceeloppervlakte
323 m2
Inhoud van de woning
322 m3
Oppervlakte externe bergruimte
17 m2
Oppervlakte gebouwgebonden buitenruimten
13 m2

Indeling

Aantal kamers
3
Aantal slaapkamers
2
Aantal woonlagen
2
Voorzieningen
Tuin, zwembad, airconditioning, schuifpui

Buitenruimte

Balkon
Nee
Schuur/berging
Nee

Maandlasten berekenen

De maandlasten voor je woning bestaan uit meer dan alleen de hypotheeklasten. Hieronder vind je een overzicht van de bijkomende kosten en lasten. Zo weet je precies wat je huis per maand gaat kosten. En met de handige vergelijkers kun je ook nog eens snel de beste deals sluiten!

  • Kaart
  • Streetview