Verkocht

Korteweg 12 3762 DM Soest

106m2
Wonen
5
Kamers
161m2
Perceel
1971
Bouwjaar
Fijn wonen op een centrale én groene plek.
Welkom aan de Korteweg 12 – een sfeervolle en verrassend ruime tussenwoning waar je zó in kunt. Deze woning is met zorg ingericht en onderhouden, heeft een stijlvolle afwerking en een fijne sfeer die meteen als thuis voelt. Met vier slaapkamers, een moderne keuken en zonnige tuin is dit een heerlijke plek voor wie comfort, ruimte en rust wil combineren. En dat alles in een gezellige, kindvriendelijke buurt met veel groen in de directe omgeving. De voortuin is niet alleen netjes aangelegd, maar ook voorzien van een op maat gemaakte kliko-ombouw – praktisch en strak in het straatbeeld. Binnen stap je een frisse en eigentijdse woonruimte binnen, met veel licht en een mooie verbinding tussen binnen en buiten.

Rust, natuur en gemak binnen handbereik.
Binnen 10 à 15 minuten lopen sta je in natuurgebied De Stulp, een prachtig groen gebied van maar liefst 120 hectare – ideaal voor een ontspannen wandeling of een rondje hardlopen. Ook de Jachthuislaan, populair bij wandelaars en hardlopers, ligt om de hoek. De ligging is bovendien super centraal: winkels zoals de supermarkt, groenteboer en leuke restaurants aan de Burgemeester Grothestraat bereik je in een paar minuten. Liever met het ov? Het busstation Soestdijk-Noord ligt op 11 minuten lopen, en met de fiets ben je in 2 tot 10 minuten bij treinstation Soestdijk, paleis Soestdijk of de omliggende bossen. En pak je de auto, dan zit je zó op de uitvalswegen richting Amsterdam, Utrecht of Hilversum.
Begane grond
Je komt binnen via de hal, waar je toegang hebt tot het toilet, de meterkast en de trap naar de 1ste verdieping. Vanuit de hal stap je door naar het hart van de woning: de open keuken. Deze moderne keuken is uitgevoerd in stijlvol zwart met een houten werkblad en beschikt over een 4-pits gaskookplaat, oven, afzuigkap en een vaatwasser. De open wandplank met sfeervolle verlichting maakt het geheel helemaal af. Vanuit de keuken heb je prettig zicht op de voortuin én de woonkamer, wat zorgt voor een open, sociale sfeer. Ook de trapkast is hier handig bereikbaar — ideaal voor het opbergen van voorraad of schoonmaakspullen.
Direct naast de keuken bevindt zich het eetgedeelte, met openslaande deuren naar de achtertuin. Hier kun je met gemak een royale eettafel kwijt, perfect voor gezellige diners of lange weekendontbijten. Dankzij de grote ramen en de verbinding met buiten is dit een lichte en levendige plek. Aan de voorzijde van de woning ligt de woonkamer: een knusse ruimte met zicht op de voortuin, waar je heerlijk kunt ontspannen. De houten vloer loopt mooi door over de gehele begane grond, met uitzondering van de keuken, en zorgt voor warmte en samenhang in de ruimte. Deze verdieping combineert een praktische indeling met een eigentijdse uitstraling en een uitnodigende sfeer — een fijne plek waar je je meteen thuis voelt.

Eerste verdieping
Op de eerste verdieping vind je drie slaapkamers, een vaste kast op de overloop en een modern afgewerkte badkamer. De indeling is praktisch en de afwerking verzorgd. De slaapkamer aan de voorzijde is ruim opgezet en heeft als extra een eigen wastafelmeubel met spiegel — handig voor dagelijks gebruik. Aan de achterzijde bevinden zich nog twee slaapkamers, elk met een prettige, rustige sfeer. Ideaal voor kinderen, werken vanuit huis of als logeerkamer. De badkamer is eigentijds en compleet uitgevoerd. Met een ruime inloopdouche, een tweede toilet en een dubbel wastafelmeubel is het een comfortabele plek voor het hele gezin. De ingebouwde verlichting en het plafond met wolkendessin geven de ruimte een speels accent, terwijl het raam zorgt voor natuurlijke ventilatie.

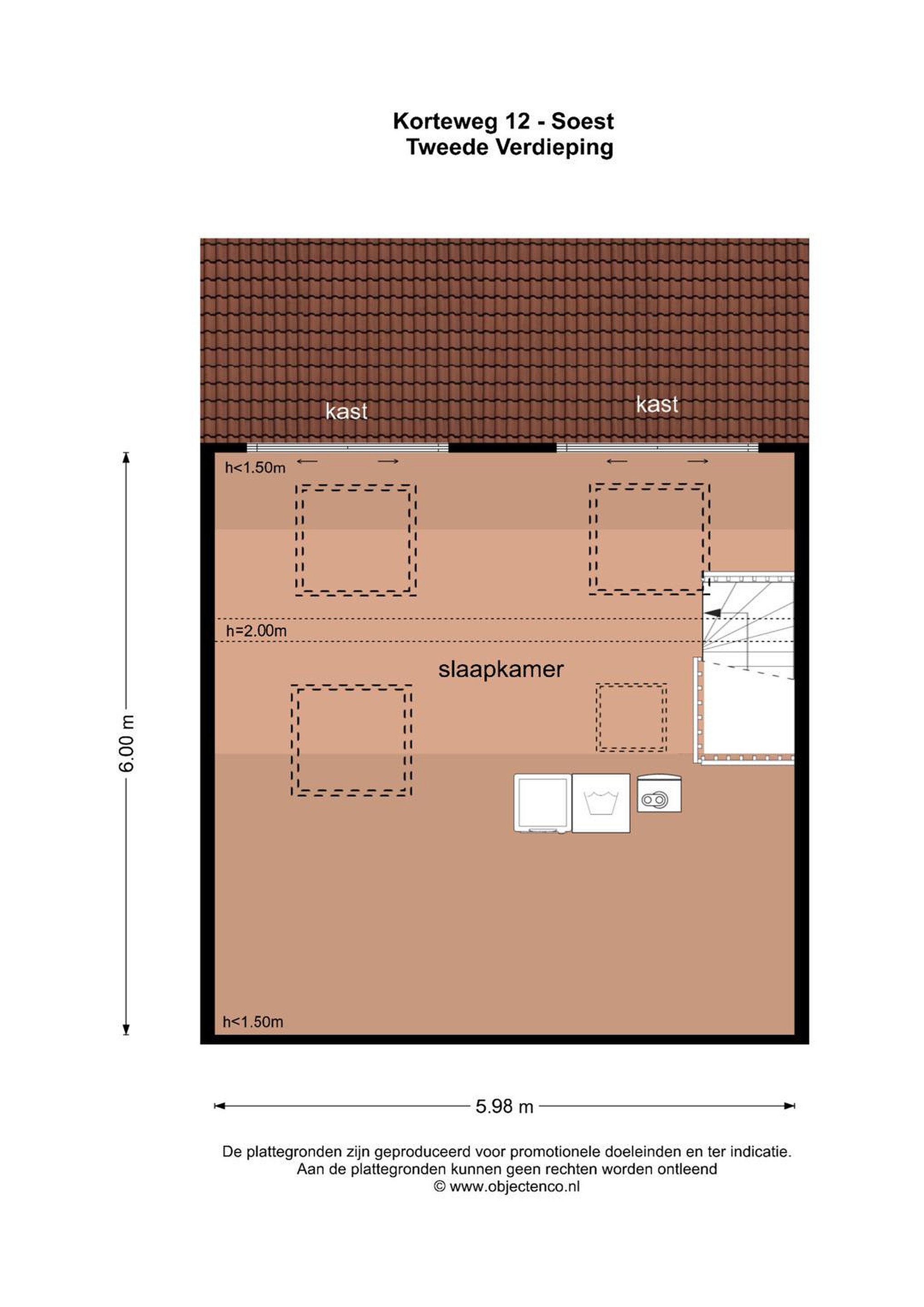
Tweede verdieping
Via een vaste trap kom je op de tweede verdieping: een open, praktische ruimte die je naar wens kunt inrichten. Extra slaapkamer, werkkamer, speelzolder of hobbyruimte — het kan hier allemaal. Voorzien van drie grote Velux dakramen met verduistering, wat zorgt voor prettig daglicht en flexibiliteit in gebruik. Daarnaast is er nog een kleiner, origineel dakraam aanwezig, waardoor er aan beide zijden licht binnenvalt. De ruimte onder het schuine dak is optimaal benut met bergruimte achter de knieschotten. Achterin bevinden zich de aansluitingen voor de wasmachine en droger, samen met de Intergas cv-ketel uit 2010. Een zolder die je veel extra wooncomfort en mogelijkheden biedt — helemaal passend bij een gezinswoning als deze.

Tuin
Zonnige achtertuin en verzorgde voortuin.
Aan de voorzijde van de woning ligt een nette, onderhoudsvriendelijke voortuin op het noorden. De beplanting en bestrating zorgen hier voor een verzorgde eerste indruk en een prettige afstand tot de straat.De achtertuin is een echte blikvanger: gelegen op het zuiden, groen ingericht en keurig onderhouden. Door de ligging geniet je hier volop van de zon — of je nu rustig wilt ontbijten, gezellig wilt borrelen of de kinderen vrij wilt laten spelen. De openslaande deuren vanuit het eetgedeelte zorgen voor een fijne verbinding tussen binnen en buiten. Achterin de tuin bevindt zich een ruime stenen berging, ideaal voor het stallen van fietsen of het opbergen van tuinspullen. De berging is voorzien van elektra en er is ook een buitenstopcontact in de tuin zelf — handig voor verlichting of elektrisch gereedschap. Daarnaast is er een buitenkraan aanwezig, wat het tuinieren net even makkelijker maakt. De achterom maakt het plaatje compleet: praktisch en prettig in het dagelijks gebruik. Een tuin met zon, privacy en gemak — precies wat je zoekt bij een gezinswoning als deze.

Details
- Sfeervolle en instapklare tussenwoning
- Open keuken met inbouwapparatuur
- Houten vloer op de begane grond (excl. keuken)
- Openslaande deuren naar de zonnige achtertuin
- Vier goed bemeten slaapkamers
- Stijlvolle badkamer met inloopdouche en tweede toilet
- Royale zolder met drie Velux dakramen en extra dakraam
- Cv-ketel (Intergas, 2010), wasmachine- en drogeraansluiting op zolder
- Zonnige tuin op het zuiden met berging, elektra, buitenkraan en achterom
- Verzorgde voortuin met op maat gemaakte kliko-ombouw
- Gelegen in een groene, kindvriendelijke buurt
- Op loopafstand van natuurgebied De Stulp, winkels en OV
- 10 SolarEdge-zonnepanelen (geplaatst in 2017 door Zonneplan) wekken jaarlijks duurzame energie op — tot oktober 2025 al 3.200 kWh geproduceerd
- Energielabel B
- Energielabel, NEN2580 meetrapport en overige documenten beschikbaar in de dataroom (zie brochure)

Lees meer

Verkoopgeschiedenis

Aangeboden sinds
31 oktober 2025
Verkoopdatum
30 december 2025
Looptijd
2 maanden

Kenmerken

Overdracht

Prijs per m2
€ 4.717
Aangeboden sinds
31 oktober 2025
Status
Verkocht
Aanvaarding
In overleg

Bouw

Soort woonhuis
Eengezinswoning, tussen woning
Soort bouw
Bestaande bouw
Bouwjaar
1971
Soort dak
Tentdak
Staat van onderhouden binnen
Goed
Staat van onderhouden buiten
Goed

Oppervlakte en inhoud

Perceeloppervlakte
161 m2
Inhoud van de woning
386 m3
Oppervlakte externe bergruimte
9 m2

Indeling

Aantal kamers
5
Aantal slaapkamers
4
Aantal woonlagen
3
Voorzieningen
Tuin, schuur/berging, ventilatie, glasvezel

Buitenruimte

Balkon
Nee
Schuur/berging
Ja

Maandlasten berekenen

De maandlasten voor je woning bestaan uit meer dan alleen de hypotheeklasten. Hieronder vind je een overzicht van de bijkomende kosten en lasten. Zo weet je precies wat je huis per maand gaat kosten. En met de handige vergelijkers kun je ook nog eens snel de beste deals sluiten!

  • Kaart
  • Streetview