Verkocht

Birkstraat 36 3768 HH Soest

97m2
Wonen
4
Kamers
165m2
Perceel
1924
Bouwjaar
Birkstraat 36. Een huis dat klopt. Binnen én buiten.
In het hart van Soest-Zuid, op een plek waar je zo het bos in loopt, een koffie haalt of boodschappen doet, staat deze charmante twee-onder-een-kapwoning. Geen nieuwbouwhuis, maar een karakteristiek huis in een nieuw jasje. Comfortabel, goed ingedeeld én verrassend compleet. Je komt binnen in de hal met toegang tot de lichte woonkamer en de afgesloten keuken aan de achterzijde. Op de eerste verdieping zijn drie volwaardige slaapkamers en een moderne badkamer. De vaste trap brengt je naar de zolder: praktisch als bergruimte en voor de cv-opstelling. Wat je verder mag verwachten? Een welverdiend energielabel A op basis van volledige isolatie. De woning heeft spouwisolatie, vloerisolatie, een volledig vernieuwd geïsoleerd dak (binnen en buiten) en overal tripleglas. Daarbij heeft de woning een verzorgde achtertuin op het westen met overkapping, én parkeren op eigen terrein met camerasysteem. Extra zekerheid wordt geboden door de uitgebreide documentatie, waaronder een recent bouwkundig rapport en het NEN 2580 meetrapport. Alle stukken zijn bij ons op te vragen. Alles klopt, van indeling tot afwerking. Een heerlijk huis waar sfeer, comfort, duurzaamheid en zorgeloos wonen perfect samenkomen. Het huis is instapklaar, je hoeft alleen je spullen te verhuizen.

De ligging maakt het helemaal af. Op loopafstand vind je het winkelcentrum, basisscholen, kinderopvang, sportfaciliteiten en gezellige horeca. Groenliefhebbers zitten goed met de Korte Duinen, het bos en de Soester Engh om de hoek. Ook korenmolen De Windhond ligt op steenworp afstand. Met de auto zit je zó op de A1 of A27 richting Utrecht, Amersfoort of Amsterdam.
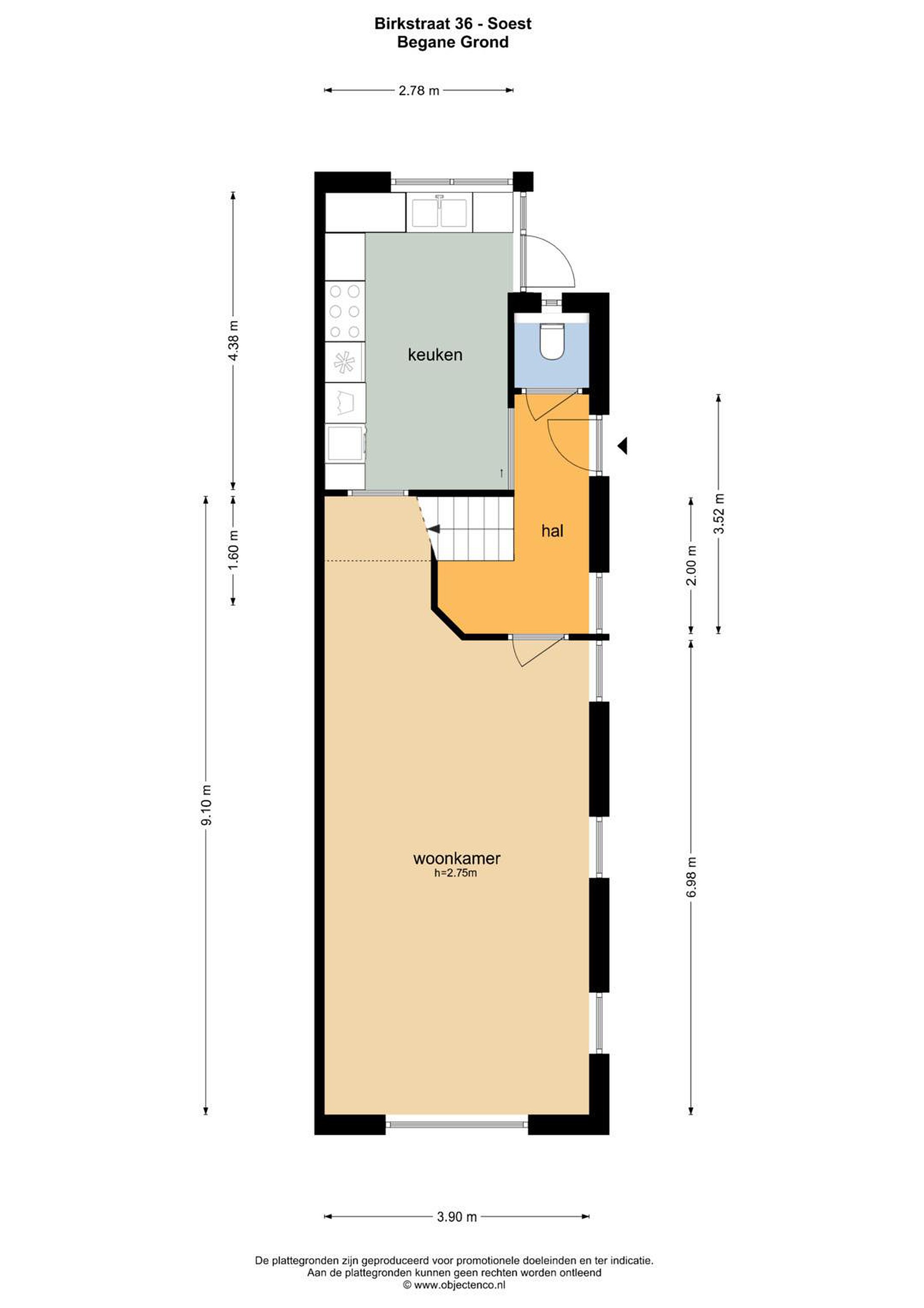
Begane grond
Binnenkomen en je meteen thuis voelen.
Via de zijingang stap je binnen in een centrale hal. Hier vind je het toilet en heb je toegang tot zowel de keuken als de woonkamer. Kom je vanuit de tuin, dan loop je gemakkelijk via de achterdeur de keuken in, handig als je net buiten bent geweest of de boodschappen moet uitpakken. De keuken is slim ingedeeld en voorzien van alles wat je nodig hebt: een Boretti 6-pits gasfornuis met dubbele oven, een afzuigkap, een vaatwasser en aansluitingen voor wasmachine en droger. De woonkamer ligt aan de voorzijde van het huis en is aangenaam licht. Grote ramen zorgen voor veel daglicht, en het hoge plafond van 2,75 meter versterkt het gevoel van ruimte. Een fijne plek om te ontspannen, werken of samen te zijn.

Eerste verdieping
Comfort en kwaliteit.
Op de eerste verdieping vind je drie volwaardige slaapkamers, elk met een prettige lichtinval, een internetaansluiting en een doorlopende laminaatvloer. De ruime dakkapel, uitgevoerd in maranti hardhout met tripleglas, draagt bij aan het comfort én de uitstraling van deze verdieping. Of je nu een ouderslaapkamer, kinderkamer, werkkamer of logeerkamer zoekt, je kunt hier alle kanten op. De badkamer is fris en compleet, met een inloopdouche, wastafelmeubel, tweede toilet en een designradiator.

Tweede verdieping
Slim benut en goed bereikbaar. Via een vaste trap kom je op de zolderverdieping met een vloeroppervlak van 19m2: een praktische ruimte voor opslag, met genoeg plek voor koffers, dozen of seizoensspullen. Ook de cv-installatie (Intergas Xtreme 36) is hier geplaatst. Geen loze meters, maar slim benutte ruimte.

Tuin
Zonnig, verzorgd en verrassend ruim.
De achtertuin ligt op het westen en biedt volop zon in de middag en avond, perfect voor wie graag buiten eet of tot laat geniet van de dag. Achterin vind je een royale, overdekte zitplek: ideaal voor een loungeset of tuintafel, beschut bij elk weertype. Aan de zijkant is een brede oprit met ruimte om te parkeren op eigen terrein. De kliko-ombouw is netjes weggewerkt en draagt bij aan de verzorgde uitstraling. In de voortuin, gelegen op het oosten, geniet je juist van de ochtendzon met een kop koffie.

Details
- Energielabel A, volledig geïsoleerd, spouwmuren, vloer én dak
- Gerenoveerd in 2021, met o.a. een volledig vernieuwd en geïsoleerd dak
- Dakkapel van maranti hardhout, voorzien van tripleglas
- Overige kozijnen van oud Amerikaans eiken, ook met tripleglas
- Brandwerende muren en plafonds
- Parkeren op eigen terrein én een nette ombouw voor de containers
- Laminaatvloeren en designradiatoren in vrijwel de hele woning
- Praktische keuken met Boretti 6-pits gasfornuis, dubbele oven, vaatwasser en
witgoedaansluitingen
- Stijlvolle badkamer met inloopdouche, tweede toilet, wastafelmeubel en designradiator
- Zonnige achtertuin op het westen met overkapping
- Er ligt een vijfpolige kabel naar de overkapping toe, deze is geschikt voor zware apparatuur (klusser)
- Voortuin op het oosten en achtertuin op het westen
- Gelegen in Soest-Zuid, op loopafstand van bos, winkelcentrum, kinderopvang, horeca (o.a. Sabrosa, Vlaai & Zo, Jumbo, De Zoete Verleiding)
- Recent bouwkundig rapport aanwezig
- NEN 2580 meetrapport beschikbaar
- Alle documentatie is bij ons op te vragen

Een instapklaar huis met de uitstraling van vroeger en het comfort van nu. Alles wat je zoekt én iets extra’s. Bel voor een bezichtiging en ervaar het zelf.

Lees meer

Verkoopgeschiedenis

Aangeboden sinds
13 maart 2026
Verkoopdatum
31 maart 2026
Looptijd
18 dagen

Kenmerken

Overdracht

Prijs per m2
€ 5.412
Aangeboden sinds
13 maart 2026
Status
Verkocht
Aanvaarding
In overleg

Bouw

Soort woonhuis
Eengezinswoning, twee-onder-een-kap woning
Soort bouw
Bestaande bouw
Bouwjaar
1924
Soort dak
Zadeldak
Staat van onderhouden binnen
Uitstekend
Staat van onderhouden buiten
Uitstekend

Oppervlakte en inhoud

Perceeloppervlakte
165 m2
Inhoud van de woning
372 m3
Oppervlakte overige inpandige ruimten
5 m2

Indeling

Aantal kamers
4
Aantal slaapkamers
3
Aantal woonlagen
3
Voorzieningen
Tuin, glasvezel

Buitenruimte

Balkon
Nee
Schuur/berging
Nee

Maandlasten berekenen

De maandlasten voor je woning bestaan uit meer dan alleen de hypotheeklasten. Hieronder vind je een overzicht van de bijkomende kosten en lasten. Zo weet je precies wat je huis per maand gaat kosten. En met de handige vergelijkers kun je ook nog eens snel de beste deals sluiten!

  • Kaart
  • Streetview