Verkocht OV

Veemarktplein 9 8601 DA Sneek

81m2
Wonen
3
Kamers
90m2
Perceel
2021
Bouwjaar
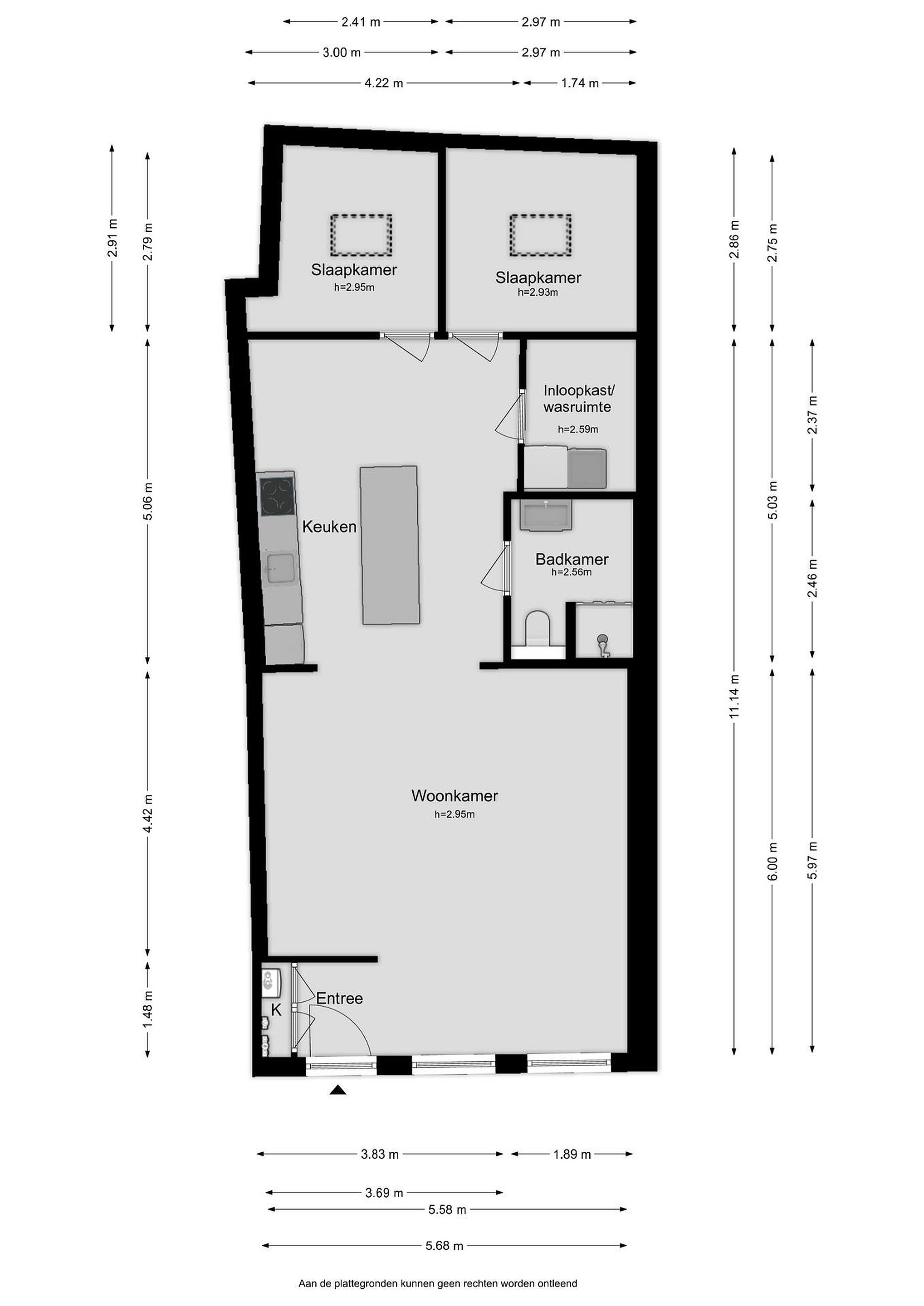
Op zoek naar een mooie eengezinswoning in het centrum van Sneek en op loopafstand van alle voorzieningen? Is ook als appartement te omschrijven! Kom dan kijken bij deze in 2021 gerealiseerde woning. Deze nette en moderne woning is op een mooie locatie gelegen en alles op één niveau waardoor het voor meerdere doelgroepen geschikt is. De woning is modern ingericht met lichte woonkamer, complete keuken en moderne badkamer. Voor de deur is er veel parkeergelegenheid.
Indeling:
Entree, hal met meterkast, garderobe en cv-ruimte, woonkamer, open keuken met inductie kookplaat, afzuigkap, koelkast, vrieskast, vaatwasser en oven, witgoedruimte met inloopkast, badkamer met inloopdouche, wastafel met meubel, toilet, sierradiator, twee slaapkamers.

Neem snel contact met ons op voor een bezichtiging van deze unieke woning.
Details
Aan de voorzijde wordt een stuk grond gehuurd van de gemeente voor € 70,00 per jaar.

Er is een WTW unit aanwezig.

Lees meer

Kenmerken

Overdracht

Prijs per m2
€ 3.679
Aangeboden sinds
27 februari 2026
Status
Verkocht onder voorbehoud
Aanvaarding
In overleg

Bouw

Soort woonhuis
Eengezinswoning, eind woning
Soort bouw
Bestaande bouw
Bouwjaar
2021
Soort dak
Plat dak
Staat van onderhouden binnen
Uitstekend
Staat van onderhouden buiten
Uitstekend

Oppervlakte en inhoud

Perceeloppervlakte
90 m2
Inhoud van de woning
342 m3

Indeling

Aantal kamers
3
Aantal slaapkamers
2
Aantal woonlagen
1
Voorzieningen

Buitenruimte

Balkon
Nee
Schuur/berging
Nee

Maandlasten berekenen

De maandlasten voor je woning bestaan uit meer dan alleen de hypotheeklasten. Hieronder vind je een overzicht van de bijkomende kosten en lasten. Zo weet je precies wat je huis per maand gaat kosten. En met de handige vergelijkers kun je ook nog eens snel de beste deals sluiten!

  • Kaart
  • Streetview