Wiekenas 19 9422 LC Smilde

102m2
Wonen
5
Kamers
431m2
Perceel
1987
Bouwjaar
Instapklare helft van een dubbel woonhuis met garage, riant tuinhuis en energielabel C

In een kindvriendelijke buurt staat aan de Wiekenas 19 deze goed onderhouden helft van een dubbel woonhuis (bouwjaar 1987). Met een woonoppervlakte van ca. 102 m2, een royale zolder, een in 2024 volledig geïsoleerde garage en een sfeervol buitenverblijf (2018), biedt deze woning veel wooncomfort.
Dankzij recente verbeteringen – waaronder HR++ beglazing (2024), buitenschilderwerk (2024) en een vernieuwd toilet (2025) – is het huis instapklaar en energiezuinig (label C).

Indeling
Begane grond
- Entree met meterkast (glasvezel aanwezig)
- Vernieuwd toilet
- Sfeervolle woonkamer met houtkachel en schuifpui naar de tuin
- Leefkeuken met diverse inbouwapparatuur
- Bijkeuken met wasmachine-/drogeraansluiting en doorgang naar buiten én de garage
- Garage (2024): volledig geïsoleerd, gerenoveerd en voorzien van elektrische overheaddeur

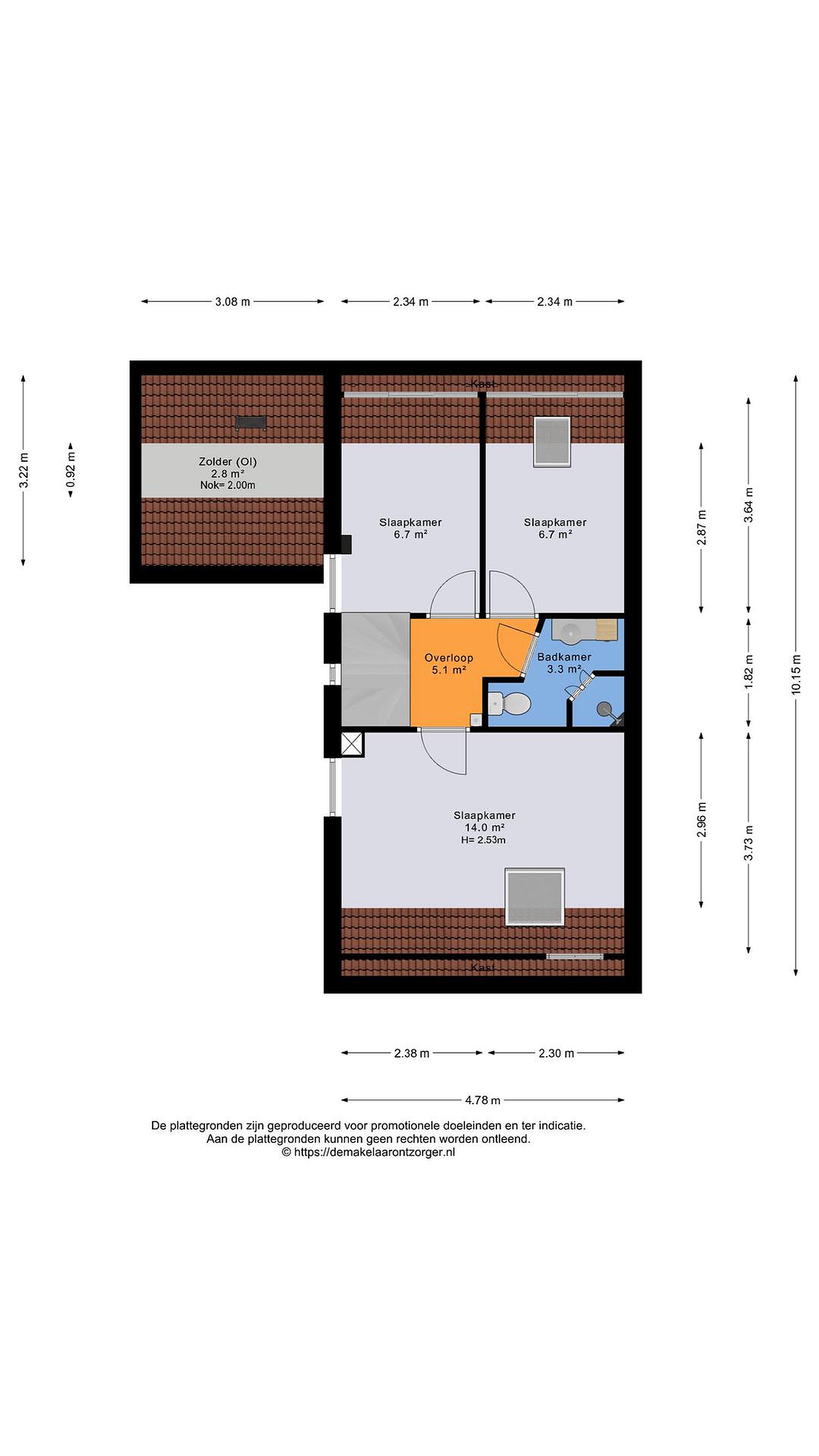
Eerste verdieping
- Overloop
- Drie slaapkamers
- Badkamer met douche en tweede toilet

Tweede verdieping
- Royale zolder, in te richten als vierde slaapkamer, werk- of hobbyruimte


Buiten
De verzorgde tuin biedt veel privacy en beschikt over een ruim buitenverblijf met houtkachel en elektra. Dit buitenverblijf is afsluitbaar met verandazeil, waardoor je er het hele jaar door van kunt genieten. Aan de rechterzijde van de tuin een afdak voor houtopslag.
Bijzonderheden
- Bouwjaar: 1987 | Woonoppervlakte: ca. 102 m2 | Inhoud: ca. 435 m3
- Perceeloppervlakte: 431 m2
- Energielabel C
- CV-combiketel: 2015
- Glasvezel beschikbaar
- Aanvaarding: februari 2026, of eerder in overleg


Ligging
De woning ligt in een rustige straat met veel gezinnen, op korte afstand van winkels, scholen en sportvoorzieningen. Dankzij de centrale ligging zijn Assen en de A28 snel bereikbaar.
Lees meer

Kenmerken

Overdracht

Prijs per m2
€ 3.676
Aangeboden sinds
26 september 2025
Status
Beschikbaar
Aanvaarding
In overleg

Bouw

Soort woonhuis
Eengezinswoning, twee-onder-een-kap woning
Soort bouw
Bestaande bouw
Bouwjaar
1987
Soort dak
Zadeldak
Staat van onderhouden binnen
Uitstekend
Staat van onderhouden buiten
Uitstekend

Oppervlakte en inhoud

Perceeloppervlakte
431 m2
Inhoud van de woning
435 m3

Indeling

Aantal kamers
5
Aantal slaapkamers
4
Aantal woonlagen
3
Voorzieningen
Tuin, kabel-tv, glasvezel, rookkanaal, schuifpui, dakraam

Buitenruimte

Balkon
Nee
Schuur/berging
Nee

Maandlasten berekenen

De maandlasten voor je woning bestaan uit meer dan alleen de hypotheeklasten. Hieronder vind je een overzicht van de bijkomende kosten en lasten. Zo weet je precies wat je huis per maand gaat kosten. En met de handige vergelijkers kun je ook nog eens snel de beste deals sluiten!

  • Kaart
  • Streetview