Verkocht

Spoorstraat 43 4541 AH Sluiskil

95m2
Wonen
4
Kamers
340m2
Perceel
1949
Bouwjaar
Hoekwoning met garage, zonnige tuin, 7 zonnepanelen en moderne keuken

Op een fijne locatie in Sluiskil staat deze keurig onderhouden hoekwoning met vrijstaande garage en ruime, onderhoudsvriendelijke achtertuin. Een ideale gezinswoning met veel licht, comfort en moderne voorzieningen.

Hier woon je op loopafstand van supermarkt, school en het centrum. Bovendien ben je binnen enkele minuten in Terneuzen of richting België. Rustig wonen met alles dichtbij dus.

Indeling

Begane grond
Entree met hal, meterkast, toiletruimte en trapopgang.
De woonkamer is heerlijk licht en voorzien van een laminaatvloer en een schuifpui naar de tuin. De half open keuken is vernieuwd en compleet uitgerust met een inductiekookplaat met geïntegreerde afzuiging, oven, magnetron, vaatwasser, koelkast en een kokend water kraan.
Aansluitend bevindt zich een praktische berging/bijkeuken met wasmachineaansluiting.

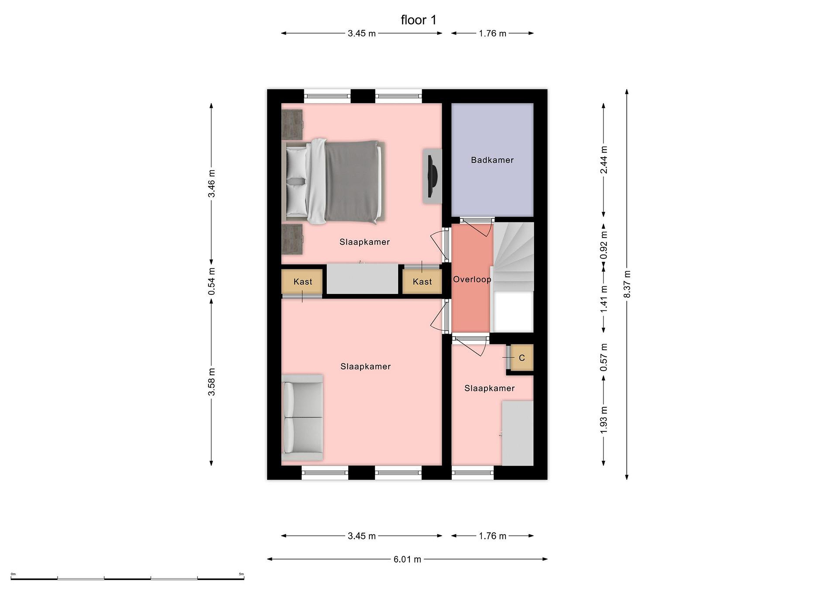
Eerste verdieping
Overloop met toegang tot 3 slaapkamers en een nette, fraai afgewerkte badkamer met ligbad, toilet en wastafelmeubel.

Zolder is bereikbaar d.m.v. een vlizotrap.

Buiten
De ruime achtertuin is onderhoudsvriendelijk aangelegd met kunstgras en biedt volop privacy. Achterin staat een vrijstaande garage, ideaal voor auto, fietsen of extra opslag. Dankzij de hoekligging heb je bovendien extra ruimte en licht rondom de woning.

Bijzonderheden
- Hoekwoning
- Vrijstaande garage
- Ruime achtertuin met kunstgras
- Gedeeltelijk rolluiken
- 7 zonnepanelen
- Energielabel C
- Goed onderhouden en instap klaar
- Voorzieningen op loopafstand
- Schuifpui

De WoonClub
De Makelaar van Zeeuws- Vlaanderen
Lees meer

Verkoopgeschiedenis

Aangeboden sinds
2 februari 2026
Verkoopdatum
24 maart 2026
Looptijd
2 maanden

Kenmerken

Overdracht

Prijs per m2
€ 2.474
Aangeboden sinds
2 februari 2026
Status
Verkocht
Aanvaarding
In overleg

Bouw

Soort woonhuis
Eengezinswoning, hoek woning
Soort bouw
Bestaande bouw
Bouwjaar
1949
Soort dak
Zadeldak
Staat van onderhouden binnen
Goed
Staat van onderhouden buiten
Goed

Oppervlakte en inhoud

Perceeloppervlakte
340 m2
Inhoud van de woning
374 m3
Oppervlakte externe bergruimte
21 m2

Indeling

Aantal kamers
4
Aantal slaapkamers
3
Aantal woonlagen
3
Voorzieningen
Tuin

Buitenruimte

Balkon
Nee
Schuur/berging
Nee

Maandlasten berekenen

De maandlasten voor je woning bestaan uit meer dan alleen de hypotheeklasten. Hieronder vind je een overzicht van de bijkomende kosten en lasten. Zo weet je precies wat je huis per maand gaat kosten. En met de handige vergelijkers kun je ook nog eens snel de beste deals sluiten!

  • Kaart
  • Streetview