Verkocht

Dubbelstraat 211 8556 XH Sloten

94m2
Wonen
4
Kamers
221m2
Perceel
1975
Bouwjaar
In het hart van het prachtige historische Elfstedenstadje Sloten staat deze vrijstaande woning met riante achtertuin op een perceel van 221 m2. Deze karakteristieke woning ademt sfeer aan zowel de binnen- als buitenkant. De authentieke elementen zoals het prachtige balkenplafond en de traditionele visgraatvloer welke is afgewerkt met een bies en rand geven de sfeer aan. Via de openslaande deuren in de woonkamer stap je zo de riante achtertuin in, hier geniet je van de zon of juist van de schaduw onder de oude perenboom, er staat ook nog een vrijstaande geïsoleerde schuur/garage en de tuin is ook via achterom bereikbaar.

In de aanbouw op de begane grond is naast de bijkeuken nog een kleine slaapkamer/kantoor, 1 van de in totaal 3 slaapkamers, de andere 2 slaapkamers bevinden zich op de verdieping, waar ook de badkamer is.

Met de het bakkerswinkeltje naast de deur, de buurtsupermarkt op loopafstand en de restaurants binnen handbereik kun je hier het hele jaar door heerlijk wonen.

Het historische Elfstedenstadje is zomers levendig en in de winter is het er heerlijk rustig. De centrale ligging van het stadje is ook een pluspunt, je bent binnen 15 minuten op de A6 met de randstad op een uur rijafstand, op de fiets door Gaasterland met zijn bossen en meren is een beleving en alle voorzieningen heb je op korte afstand. Je stapt ook zo in je boot en vaart direct het Slotermeer op, the place to be voor watersporters. Kortom een woning op mooie locatie in het hart van het gewilde stadje Sloten, kom snel eens kijken.
Begane grond
We leiden je graag alvast rond:
Nadat we de auto geparkeerd hebben aan de rand van de stad komen we d.m.v. een kleine wandeling door het prachtige Sloten bij de woning en betreden deze via de voordeur. We komen in de lange hal met meterkast, trapopgang en trapkast, rechts bevindt zich de woonkamer met prachtige traditionele visgraatvloer en natuurlijk dat karakteristieke balkenplafond wat een fijne authentieke sfeer geeft. De openslaande deuren aan de achterzijde geven toegang tot de riante achtertuin en terras. De open keuken heeft een U-vormige opstelling en is voorzien van diverse inbouwapparatuur zoals; koelkast, gaskookplaat, afzuigkap en vaatwasser. De bijkeuken bevindt zich achter de keuken en heeft een aansluiting voor de wasmachine en droger, er is tevens een toilet, achter de bijkeuken bevindt zich een kleine slaapkamer/kantoor.

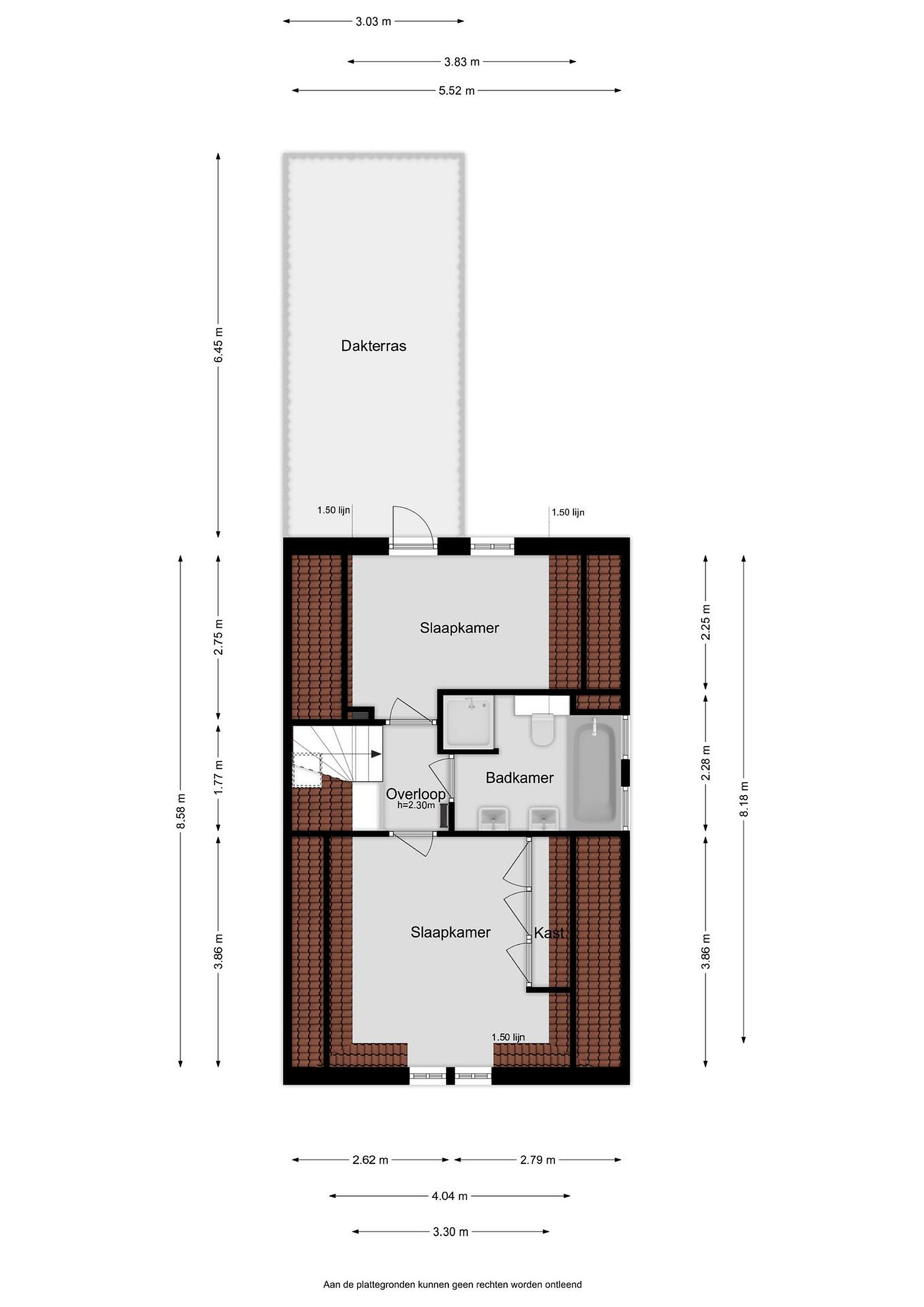
Eerste verdieping
De overloop geeft toegang tot de 2 slaapkamers op de verdieping, de achterste slaapkamer heeft toegang tot het dakterras, de voorste slaapkamer heeft een ruime kastenwand. Er is tevens nog een badkamer met vloerverwarming, douche, ligbad, dubbele wastafel en 2e toilet.

Tweede verdieping
De bergzolder is toegankelijk via een smalle ladder op de overloop.

Details
De woning is traditioneel gebouwd in 1975 en is geïsoleerd d.m.v. dak-, vloer- en spouwisolatie en is grotendeels voorzien van dubbele beglazing in houten kozijnen. De woning wordt verwarmd d.m.v. centrale verwarming, met in de badkamer vloerverwarming, de HR-combiketel is van 2009 en eigendom. De vloer op de begane grond is een betonvloer, de verdiepingsvloeren zijn van hout. De schuur/garage is geïsoleerd d.m.v. dak- en muurisolatie en er is krachtstroom aanwezig. Dankzij de openslaande deuren naar de achterzijde is de ruimte zowel te gebruiken als garage voor een auto, als praktische werkplaats of opslagruimte.

De Dubbelstraat 211 in het kort:
- karakteristieke vrijstaande woning
- beschermd stadsgezicht
- 221 m2 perceeloppervlakte
- 94 m2 woonoppervlakte
- grote tuin met achterom, ook toegankelijk met auto
- vrijstaande geïsoleerde schuur/garage met krachtstroom
- energielabel D
- 3 slaapkamers, waarvan 1 op begane grond
- authentiek balkenplafond
- sfeervol
- veel potentie
- midden in hartje Sloten

Wil je meer weten over het mooie Friese Elfstedenstadje Sloten lees dan hier verder.

Sloten Friesland, Sleat in het Fries, is een vestingstad in Gemeente De Fryske Marren en gelegen in het prachtige Gaasterland. De stad kent veel historie en is de kleinste Elfstedenstad van Friesland. Zomers trekt de stad veel toerisme, Sloten is dan ook gelegen aan het Slotermeer en dwars door de stad ligt de historische gracht. Het Skûtsjesilen wordt zomers o.a. op het Slotermeer gehouden. Sloten is een ideaal startpunt om te varen, wandelen, fietsen, paardrijden etc. De omgeving is water- en bosrijk, voor ieder wat wils. De A6 bereik je binnen 15 minuten en de randstad is op een uur rijafstand.

In Sloten staan de woningen in de historisch kern of net daarbuiten in de nieuwbouwwijk, waarvan een gedeelte met woningen aan het water.
Sloten heeft o.a. een supermarkt, bakker, diverse winkeltjes en diverse horecagelegenheden en restaurants met terrassen aan de historische gracht, diverse havens en bootverhuur. Sloten ligt tussen Balk en Lemmer waar alle overige voorzieningen aanwezig zijn, beide dorpen kennen een uitgebreid winkelassortiment.
Ook heeft Sloten een basisschool en actieve voetbal- en sportvereniging. Het gehele jaar door wordt er van alles georganiseerd. Kortom het is heerlijk wonen in Sloten.

Ben je ook zo enthousiast over Sloten en omgeving aarzel niet en bel ons dan meteen om een afspraak te maken om de woning te bezichtigen.

Lees meer

Verkoopgeschiedenis

Aangeboden sinds
26 september 2025
Verkoopdatum
17 oktober 2025
Looptijd
21 dagen

Kenmerken

Overdracht

Prijs per m2
€ 3.989
Aangeboden sinds
26 september 2025
Status
Verkocht
Aanvaarding
In overleg

Bouw

Soort woonhuis
Eengezinswoning, vrijstaande woning
Soort bouw
Bestaande bouw
Bouwjaar
1975
Soort dak
Zadeldak
Staat van onderhouden binnen
Redelijk
Staat van onderhouden buiten
Redelijk

Oppervlakte en inhoud

Perceeloppervlakte
221 m2
Inhoud van de woning
343 m3
Oppervlakte externe bergruimte
22 m2
Oppervlakte gebouwgebonden buitenruimten
20 m2

Indeling

Aantal kamers
4
Aantal slaapkamers
3
Aantal woonlagen
2
Voorzieningen
Tuin, schuur/berging, glasvezel

Buitenruimte

Balkon
Nee
Schuur/berging
Ja

Maandlasten berekenen

De maandlasten voor je woning bestaan uit meer dan alleen de hypotheeklasten. Hieronder vind je een overzicht van de bijkomende kosten en lasten. Zo weet je precies wat je huis per maand gaat kosten. En met de handige vergelijkers kun je ook nog eens snel de beste deals sluiten!

  • Kaart
  • Streetview