Verkocht

Piet Heinstraat 17 3361 HT Sliedrecht

92m2
Wonen
4
Kamers
106m2
Perceel
1931
Bouwjaar
Ben je op zoek naar een sfeervolle, vrijwel instapklare jaren ’30 2-onder-1-kapwoning op een toplocatie nabij de rivier en het gezellige centrum van Sliedrecht? Dit karaktervolle aanbod ligt in de geliefde ‘Oude Uitbreiding’, op steenworp afstand van de Beneden-Merwede. Met authentieke erker, markiezen en glas-in-loodramen ademt de woning precies die warme sfeer waar veel mensen naar op zoek zijn.

Binnen is de woning verrassend ruim en licht. De L-vormige woonkamer heeft een sfeervol eetgedeelte nabij de erker en een zitgedeelte met open verbinding naar de keuken. Op de eerste etage vind je twee ruime slaapkamers en een complete badkamer met toegang tot het platte dak – ideaal om een dakterras te realiseren. De zolderetage met praktische bergzolder biedt de derde slaapkamer.

Recent is er veel vernieuwd: het bitumen dak (2020), de meterkast (2026) en de achtertuin is in 2021 nieuw aangelegd met keramische tegels en een overkapping. Met airconditioning op beide etages en spouwisolatie is dit een comfortabele woning met authentieke uitstraling.

Kortom: een goed onderhouden, sfeervolle jaren ’30 woning op een toplocatie – helemaal klaar voor jouw woonavontuur.

Je bent van harte welkom voor een bezichtiging!
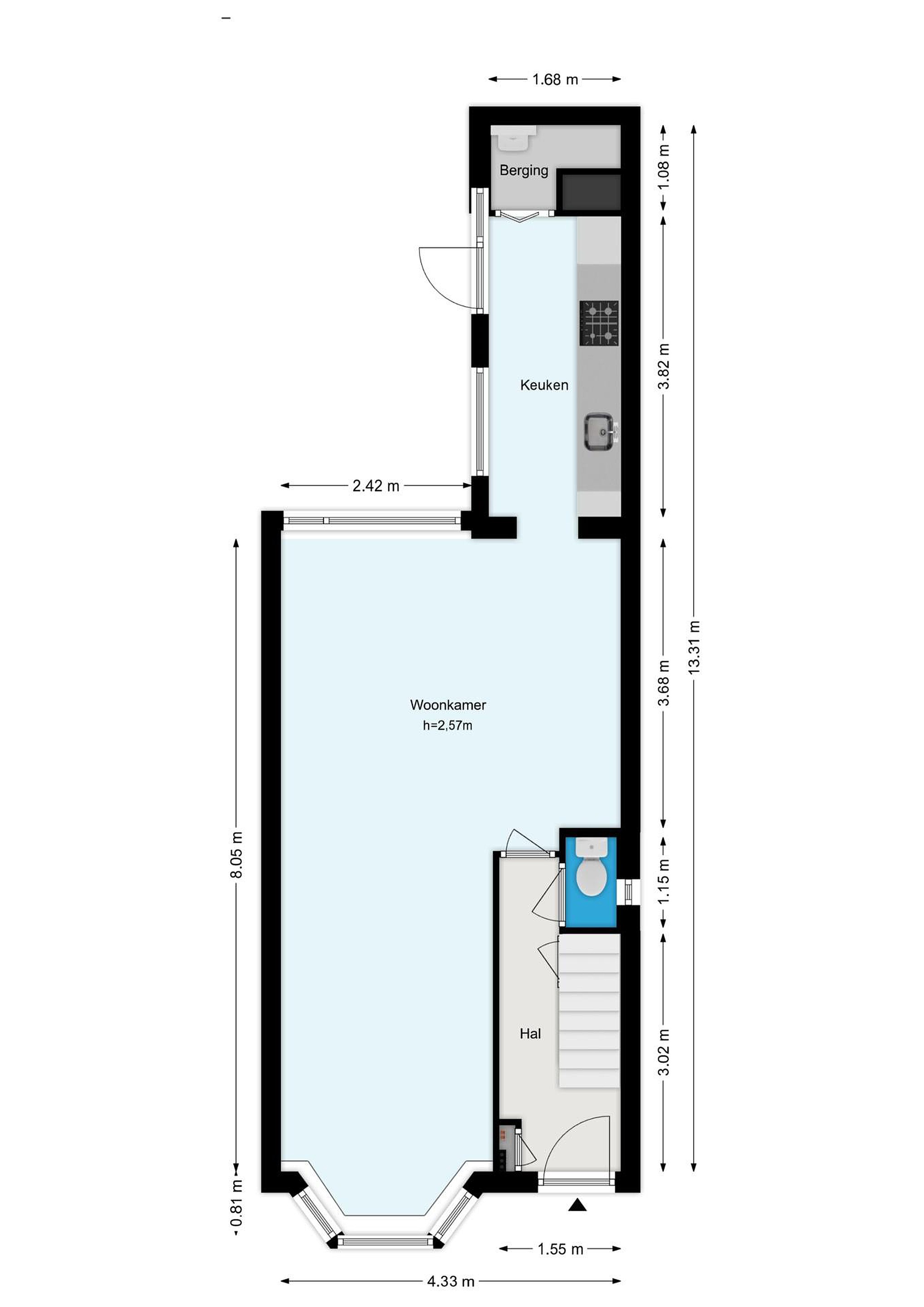
Begane grond
Via de nette entree met meterkast en garderobe kom je in de hal, met een volledig betegelde toiletruimte en een praktische kelder van ca. 4,60 m2 op stahoogte – ideaal voor opslag en proviand. Het hart van de woning is de sfeervolle L-vormige woonkamer. Een prachtige industriële stalen paneeldeur geeft toegang tot deze lichte ruimte met de karakteristieke erker aan de voorzijde, perfect als eetgedeelte. Aan de tuinzijde ligt het gezellige zitgedeelte met open verbinding naar de keuken. De gehele begane grond is voorzien van een hoogwaardige, doorgelegde laminaatvloer in warme houtnerf. De keuken in de aanbouw is functioneel uitgerust met gaskookplaat, koel-vriescombinatie en vaatwasser en biedt directe toegang tot de zonnige achtertuin en een handige berging.

Eerste verdieping
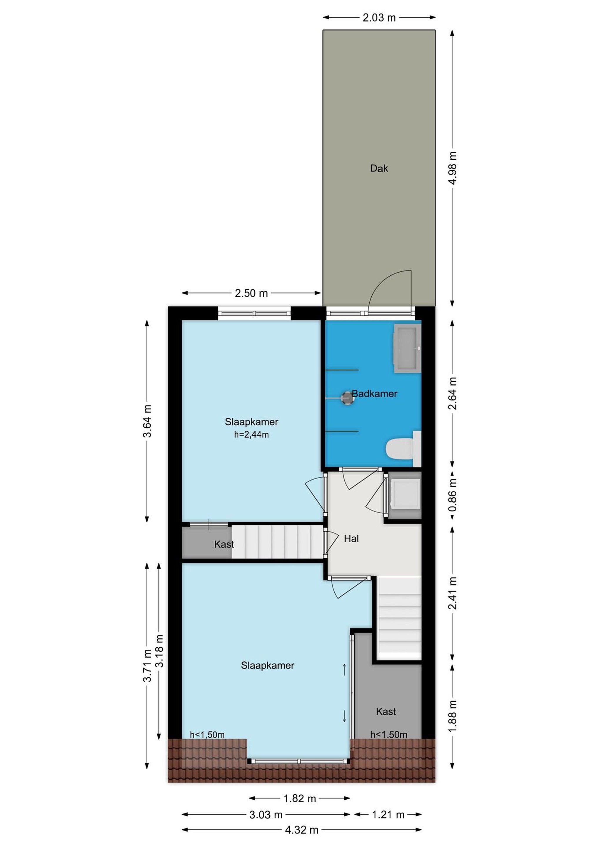
De ruime overloop biedt directe toegang tot twee slaapkamers, de badkamer, een vaste kast met witgoedaansluitingen en de trap naar de zolderetage. De slaapkamer aan de straatzijde is vergroot met een dakkapel, voorzien van airconditioning en een ruime vaste schuifdeurkast. De slaapkamer aan de tuinzijde heeft eveneens een dakkapel, kunststof kozijnen met rolluiken en handige kastruimte onder de trap. De complete badkamer is modern en netjes afgewerkt met een ruime inloopdouche, wastafelmeubel en zwevend toilet. Een groot pluspunt is de directe toegang tot het platte dak boven de aanbouw – ideaal om eenvoudig een fraai dakterras te realiseren.

Tweede verdieping
De zolderetage biedt de derde slaapkamer met dakkapel, dakraam, airconditioning en toegang tot de bergzolder.

Tuin
Voortuin
De voortuin met hekje en de kenmerkende erker met markiezen is volledig bestraat. Via de rondboogdoorgang toegang tot de achtertuin.

Achtertuin
De heerlijke en overwegend zonnige achtertuin, gelegen op het noordwesten is recent volledig en sfeervol vernieuwd. Zo zijn er keramische siertegels gelegd, is de gevelbekleding vernieuwd en is er aan de berging een gezellige overkapping geplaatst. Hier geniet je van de zon van ochtend tot begin middag, met schaduw later op de dag. De achtergevel van de woning is hiernaast uitgerust met een zonnescherm.

Details
- De woning is gelegen op eigen grond.
- De woning beschikt grotendeels over houten kozijnen; op de 1ste etage zijn alle kozijnen aan de achterzijde van kunststof.
- Oplevering ca. juli/augustus 2026.
- De woning beschikt over airconditioning op beide etages.

Alle informatie over deze woning is beschikbaar op:
pietheinstraat17.nl

(bepaalde informatie op bovenstaande site is afgeschermd, neem hiervoor contact op met Makelaardij Stuij & Van Dijk: 0184-630650)

Lees meer

Verkoopgeschiedenis

Aangeboden sinds
20 februari 2026
Verkoopdatum
3 april 2026
Looptijd
één maand

Kenmerken

Overdracht

Prijs per m2
€ 4.239
Aangeboden sinds
20 februari 2026
Status
Verkocht
Aanvaarding
In overleg

Bouw

Soort woonhuis
Eengezinswoning, twee-onder-een-kap woning
Soort bouw
Bestaande bouw
Bouwjaar
1931
Soort dak
Zadeldak
Staat van onderhouden binnen
Goed
Staat van onderhouden buiten
Goed

Oppervlakte en inhoud

Perceeloppervlakte
106 m2
Inhoud van de woning
382 m3
Oppervlakte externe bergruimte
7 m2
Oppervlakte overige inpandige ruimten
12 m2

Indeling

Aantal kamers
4
Aantal slaapkamers
3
Aantal woonlagen
3
Voorzieningen
Tuin, schuur/berging, rolluiken, glasvezel, buitenzonwering, airconditioning, dakraam

Buitenruimte

Balkon
Nee
Schuur/berging
Ja

Maandlasten berekenen

De maandlasten voor je woning bestaan uit meer dan alleen de hypotheeklasten. Hieronder vind je een overzicht van de bijkomende kosten en lasten. Zo weet je precies wat je huis per maand gaat kosten. En met de handige vergelijkers kun je ook nog eens snel de beste deals sluiten!

  • Kaart
  • Streetview