Verkocht

Groenenweer 31 3363 XP Sliedrecht

120m2
Wonen
5
Kamers
148m2
Perceel
1979
Bouwjaar
In de parkachtige en centraal gelegen wijk Weresteijn ligt deze verrassend ruime en energiezuinige woning, waarvan de straatnaam Groenenweer alle eer aandoet!

Met ca. 120 m2 woonoppervlakte, een dakopbouw, vier riante slaapkamers en bergvliering biedt deze woning volop ruimte voor het hele gezin.

Vrijwel alle kozijnen in dit aanbod zijn uitgevoerd in onderhoudsvriendelijk kunststof en voorzien van rolluiken. Bovendien zorgen de 13 zonnepanelen en de goede isolatie voor een A-label, waardoor zowel het milieu als de portemonnee profiteert.

In 2021 zijn de toiletruimte en de badkamer volledig vernieuwd en de nette aangelegde achtertuin met elektrisch zonnescherm biedt zowel zon- als schaduwplekken. Achter op het perceel vind je hier verder een ruime stenen berging en een achterom welke uitkomt op een speeltuin met het daarachter gelegen park.

Diverse voorzieningen als natuurspeeltuin, winkels, scholen, uitvalswegen en openbaar vervoer bevinden zich in de nabije omgeving. Kortom deze woning combineert ruimte, functionaliteit en een uitstekende locatie. Je bent van harte welkom voor een bezichtiging!
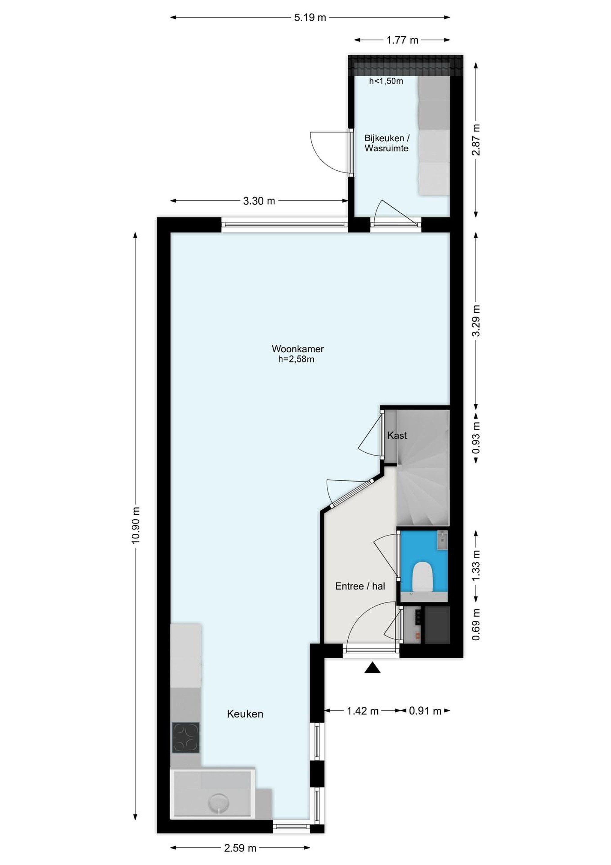
Begane grond
Keurige entree in de hal met de nette toiletruimte (2021) v.v. zwevend toilet en fonteintje, garderobe, meterkast en trapopgang. De L-vormige woonkamer is verdeeld in een zitgedeelte bij de tuinzijde en een eetgedeelte dat grenst aan de open keuken aan de straatzijde. De ruimte biedt een praktische trapkast en aan de achterzijde is er toegang tot het achterportaal met de witgoedaansluitingen. De open keuken is geplaatst in een L‑opstelling met onder andere een inductiekookplaat, vaatwasser en koel‑/ vriescombinatie. Het dakraam zorgt hier voor een prettige lichtinval en zowel de raampartijen aan de straat- als tuinzijde zijn uitgerust met rolluiken.

Eerste verdieping
De overloop biedt toegang tot alle vertrekken en de trapopgang naar de 2de etage. De luxe badkamer (2021) is voorzien van een douchecabine, een wastafel met bijpassend meubel, een designradiator, mechanische ventilatie en een zwevend toilet. Het raam is uitgerust met een rolluik. De grootste slaapkamer, gelegen aan de achterzijde, is voorzien van rolluiken en een praktische vaste kast. De tweede slaapkamer met dakkapel vind je aan de voorzijde van de woning en is voorzien van kunststof kozijnen met rolluik. De derde slaapkamer bevindt zich aan de tuinzijde en is eveneens voorzien van een kunststof kozijn met rolluik.

Tweede verdieping
Vanaf de overloop, voorzien van een Velux-dakraam en bergruimte achter de knieschotten, is er toegang tot de vierde slaapkamer en de technische ruimte. Dankzij de dakopbouw aan de achterzijde is de vierde slaapkamer riant van formaat. Ook deze kamer is uitgerust met kunststof kozijnen en rolluiken. De technische ruimte biedt plek aan de CV-ketel en een trap naar de bovengelegen royale bergvliering met een nokhoogte van ca. 1.28m.

Tuin
De ca. 3 meter diepe voortuin is onderhoudsvriendelijk en geheel betegeld. Van hieruit toegang tot de woning.

Achtertuin
De op het oosten gelegen achtertuin is v.v. een zonnescherm en is grotendeels betegeld met aan weerszijden een plantenborder. Achter op het perceel bevindt zich de stenen berging. Het aansluitende tweede perceel (16 m2) biedt praktische ruimte voor de kliko's en de achterom naar het speeltuintje en het aangrenzende park.

Details
- De woning is, met uitzondering van het dakraam op de tweede etage en de kozijnen van de voor- en achterdeur, volledig voorzien van kunststof kozijnen.
- De woning beschikt over 13 zonnepanelen.
- Het perceel omvat 2 kadastrale nummers met in totaal een oppervlakte van 148 m2 eigen grond.
- Oplevering in overleg (ca. augustus / september 2026)

Alle informatie over deze woning is beschikbaar op:
groenenweer31.nl

(bepaalde informatie op bovenstaande site is afgeschermd, neem hiervoor contact op met Makelaardij Stuij & Van Dijk: 0184-630650)

Lees meer

Verkoopgeschiedenis

Aangeboden sinds
25 februari 2026
Verkoopdatum
21 april 2026
Looptijd
2 maanden

Kenmerken

Overdracht

Prijs per m2
€ 3.458
Aangeboden sinds
25 februari 2026
Status
Verkocht
Aanvaarding
In overleg

Bouw

Soort woonhuis
Eengezinswoning, tussen woning
Soort bouw
Bestaande bouw
Bouwjaar
1979
Soort dak
Samengesteld dak
Staat van onderhouden binnen
Goed
Staat van onderhouden buiten
Goed

Oppervlakte en inhoud

Perceeloppervlakte
148 m2
Inhoud van de woning
445 m3
Oppervlakte externe bergruimte
7 m2

Indeling

Aantal kamers
5
Aantal slaapkamers
4
Aantal woonlagen
4
Voorzieningen
Tuin, schuur/berging, ventilatie, rolluiken, glasvezel, buitenzonwering, dakraam

Buitenruimte

Balkon
Nee
Schuur/berging
Ja

Maandlasten berekenen

De maandlasten voor je woning bestaan uit meer dan alleen de hypotheeklasten. Hieronder vind je een overzicht van de bijkomende kosten en lasten. Zo weet je precies wat je huis per maand gaat kosten. En met de handige vergelijkers kun je ook nog eens snel de beste deals sluiten!

  • Kaart
  • Streetview