Verkocht

Admiraal de Ruyterstraat 45 3361 VB Sliedrecht

82m2
Wonen
5
Kamers
108m2
Perceel
1930
Bouwjaar
Ben je op zoek naar een woning welke authentiek karakter combineert met modern comfort? Dan is dit aanbod echt iets voor jou. Gelegen in de geliefde  ‘Oude Uitbreiding’, dicht bij de rivier en het gezellige centrum van Sliedrecht, is deze woning recent deels gerenoveerd en helemaal klaar om in te trekken.

De woning is op de 1ste etage aan de achterzijde geheel opgetrokken en biedt maar liefst vier slaapkamers. De keuken en badkamer zijn in 2024 volledig vernieuwd. Airconditioning en de nieuwe cv-ketel uit 2024 zorgen voor een aangename temperatuur en lagere energiekosten het hele jaar door. Ook de vloeren op de begane grond zijn recent vernieuwd, waardoor het geheel een frisse en moderne uitstraling heeft.
 
De zonnige ca. 12 meter diepe tuin is gesitueerd op het zonnige zuidwesten en kan nog naar eigen wens worden ingericht. Daarnaast is er een dubbele aangebouwde bergruimte, ideaal voor fietsen, opslag of een klushoekje. 

Kortom, een woning welke het beste van twee werelden biedt: karakter en sfeer van vroeger, gecombineerd met modern gemak en praktische extra’s, klaar om jouw thuis te worden.

Tot snel tijdens een bezichtiging!
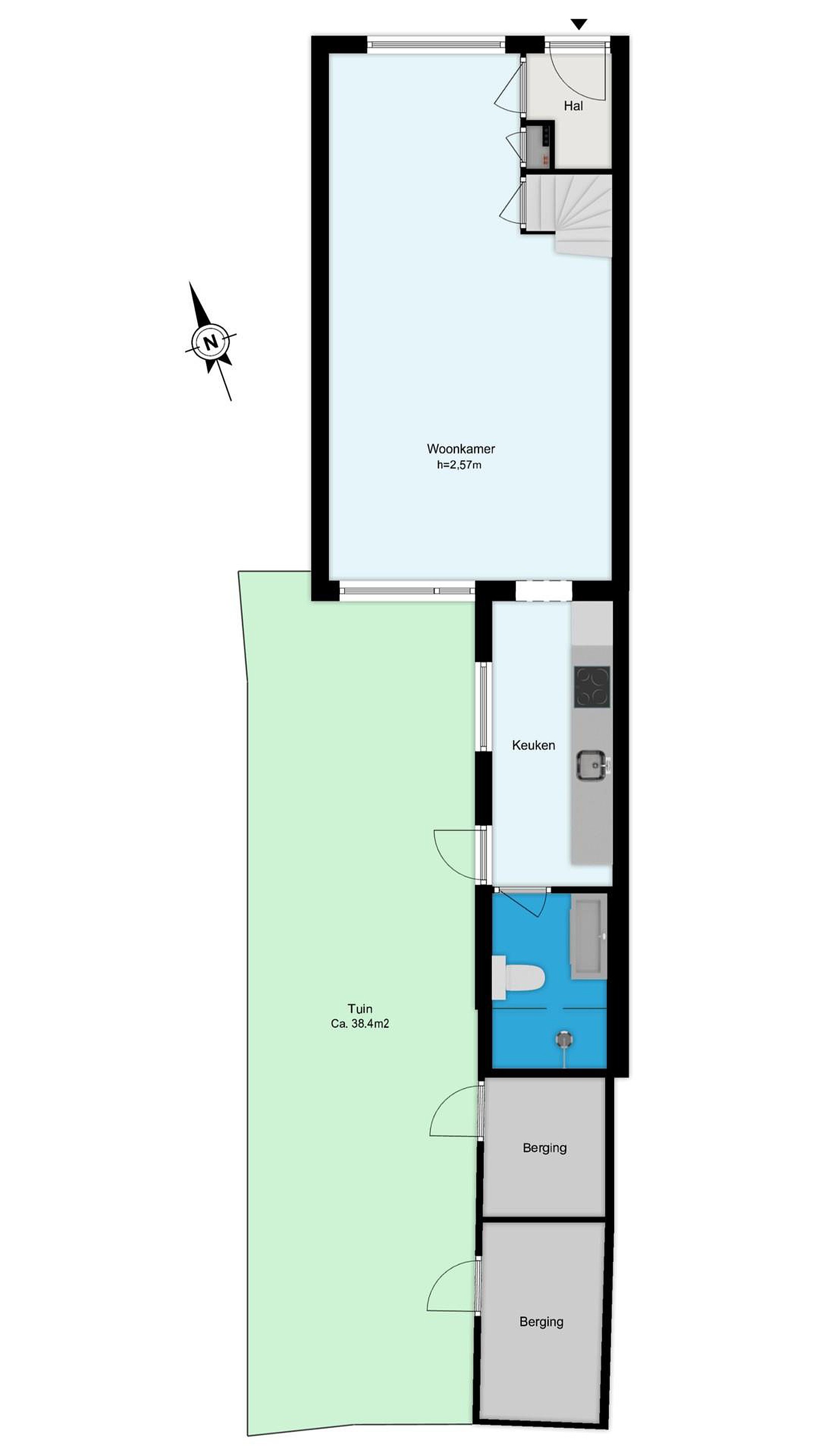
Begane grond
De entree in de hal is voorzien van de garderobe en vaste kastruimte met diverse opbergmogelijkheden. De woonkamer oogt fris en modern, onder meer door het gebruik van heldere kleuren en de recent aangebrachte nieuwe laminaatvloer. Naast de meterkast en de afsluitbare trapopgang naar de etage vind je hier een eetgedeelte aan de straatzijde en een zitgedeelte aan de achterzijde, vanwaar de recent geplaatste keuken via een open doorgang te bereiken is. Deze keuken is in 2024 geplaatst in een parallelle opstelling, waarbij geen kosten noch moeite zijn gespaard. Het geheel oogt eigentijds en beschikt onder meer over een vaatwasser, een koelkast, een inductiekookplaat en een aansluiting voor de wasmachine. Vanuit de keuken is er toegang tot de bergzolder, de badkamer en de achtertuin. De badkamer is eveneens in 2024 vernieuwd en voorzien van onder meer een prachtig wastafelmeubel, een zwevend toilet en een inloopdouche. Daarnaast is de ruimte uitgerust met mechanische ventilatie.

Eerste verdieping
De overloop staat in directe verbinding met de drie slaapkamers op deze etage. De eerste slaapkamer is gelegen aan de volledig opgetrokken achterzijde en voorzien van airconditioning en vaste kastruimte. Ook de tweede slaapkamer ligt aan de achterzijde, beschikt over airconditioning en vaste kastruimte. De derde slaapkamer ligt aan de voorzijde en wordt momenteel gebruikt als inloopkast. De ruimte beschikt over een vaste kast met witgoedaansluitingen en de beklede trapopgang naar de zolderetage.

Tweede verdieping
De vierde slaapkamer beslaat de volledige breedte van de woning en is uitgerust met airconditioning en een Velux-dakraam, waardoor de kamer licht en aangenaam blijft. Tevens bevindt zich hier de CV-ketel (Intergas, 2024).

Tuin
De onderhoudsvriendelijke achtertuin ligt op het zonnige zuidwesten en biedt volop mogelijkheden. De ruimte bestaat momenteel uit een deel kunstgras en het grootste gedeelte betegeling. Hier is er genoeg vrijheid om de tuin naar eigen smaak in te richten. Vanuit de tuin heb je directe toegang tot de twee bergingen, ideaal voor extra opslag, een klusruimte of het creëren van een hobby- of werkruimte. Dankzij de gunstige ligging is de tuin een plek waar je straks kunt ontspannen, genieten van de zon en gezellige momenten kunt beleven met familie en vrienden.

Details
- De woning is gelegen op eigen grond.
- De woning beschikt over houten kozijnen.
- Oplevering ca. juni 2026.

Alle informatie is te vinden op:
admiraalderuyterstraat45.nl

Lees meer

Verkoopgeschiedenis

Aangeboden sinds
30 januari 2026
Verkoopdatum
21 maart 2026
Looptijd
2 maanden

Kenmerken

Overdracht

Prijs per m2
€ 4.573
Aangeboden sinds
30 januari 2026
Status
Verkocht
Aanvaarding
Per datum

Bouw

Soort woonhuis
Eengezinswoning, twee-onder-een-kap woning
Soort bouw
Bestaande bouw
Bouwjaar
1930
Soort dak
Zadeldak
Staat van onderhouden binnen
Goed
Staat van onderhouden buiten
Goed

Oppervlakte en inhoud

Perceeloppervlakte
108 m2
Inhoud van de woning
364 m3
Oppervlakte externe bergruimte
9 m2

Indeling

Aantal kamers
5
Aantal slaapkamers
4
Aantal woonlagen
3
Voorzieningen
Tuin, schuur/berging, dakraam

Buitenruimte

Balkon
Nee
Schuur/berging
Ja

Maandlasten berekenen

De maandlasten voor je woning bestaan uit meer dan alleen de hypotheeklasten. Hieronder vind je een overzicht van de bijkomende kosten en lasten. Zo weet je precies wat je huis per maand gaat kosten. En met de handige vergelijkers kun je ook nog eens snel de beste deals sluiten!

  • Kaart
  • Streetview