Vouerweg 46 6136 AL Sittard

121m2
Wonen
5
Kamers
410m2
Perceel
1954
Bouwjaar
Op een ideale locatie in Sittard is deze instapklare hoekwoning gelegen. De ruim opgezette, goed onderhouden woning beschikt o.a. over 4 slaapkamers, een serre en een vrijstaande stenen garage met sectionaalpoort.
Het centrum, openbaar vervoer, scholen en sportvoorzieningen zijn allen op loop/fietsafstand bereikbaar.
Begane grond
Souterrain: Provisiekelder

Begane grond: Hal/entree met meterkast en modern toilet. Aan de voorzijde is een kantoorruimte gelegen. Vanuit de hal bereikt u de sfeervolle lichte woonkamer.

Bijkeuken/wasruimte voorzien van inloopdouche. Het aansluitpunt voor de wasmachine is hier gesitueerd.

Semi-gesloten leefkeuken welke voorzien is van diverse inbouwapparatuur, te weten: (combi) oven, inductiekookplaat, afzuigkap, koelkast en een vaatwasser. In de keuken bevindt zich een airco-unit die zowel verwarmt als koelt. Vanuit de keuken is middels openslaande deuren de serre toegankelijk. De serre is smaakvol ingericht en door de schuifdeuren is er optimaal tuincontact. In de serre is een airco. Deze koelt alleen.

De tuin is netjes aangelegd en op het Zuidoosten gelegen. In de tuin bevindt zich een border met beplanting.

Vanuit de tuin is er toegang tot de ruime garage. De garage is voorzien van een sectionaalpoort en aan de voorzijde is een oprit gelegen.

1e Verdieping: Overloop met toegang tot 3 slaapkamers en de badkamer. 2 slaapkamers hebben toegang tot een balkon. De volledig betegelde badkamer biedt het comfort van een ligbad (v.v. een glazen douchewand), een wastafel en een muurkast. In de gang hangt een airco, deze koelt alleen.

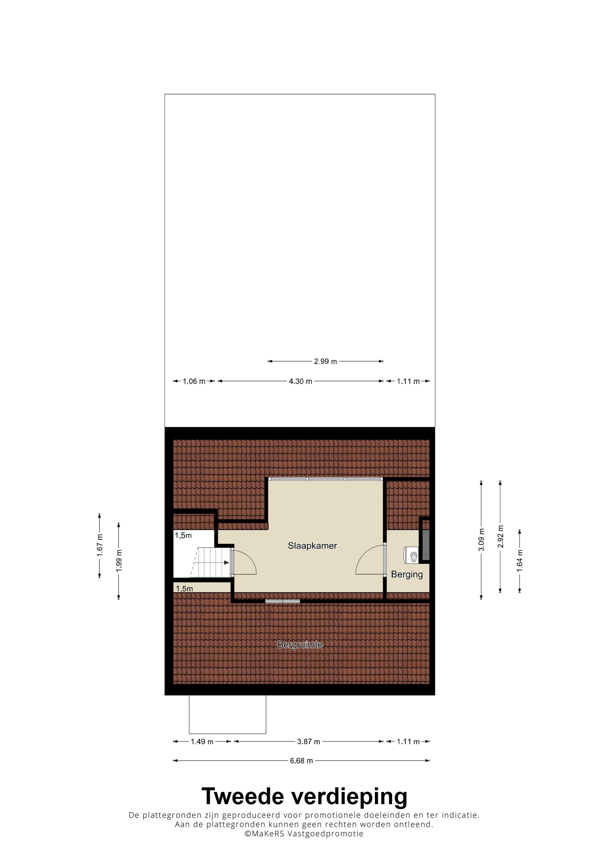
2e verdieping: Middels een vaste trap is er toegang tot de zolder welke voorzien is van een dakkapel. In een separate berging bevindt zich de opstelplaats voor de cv-installatie. Tevens zijn er enkele bergruimtes.

Details
Instapklare woning;
Voorzien van kunststof kozijnen met dubbel glas (HR++); Voorzien van rolluiken;
CV- installatie: Remeha Avanta Ace 35C CW5 / 32 kw / 2022 / eigendom;
Airco’s (serre/gang boven): Carrier / 2009 / eigendom;
Airco (keuken): Midea / 2025 / eigendom.
Beschikt over 16 zonnepanelen: Jinko / 2019 / eigendom;
Voorzien van Visonic alarmsysteem / eigendom.

Deze verkoopinformatie is met de nodige zorgvuldigheid samengesteld. Hierbij zijn wij deels afhankelijk van informatie die wij van derden ontvangen. Aan onjuistheden en/of onvolkomenheden kunt u echter geen rechten ontlenen. Indien bepaalde informatie voor u van wezenlijk belang is dan adviseren wij u deze op juistheid te controleren. Onzerzijds wordt geen aansprakelijkheid aanvaardt voor enige onvolledigheid, onjuistheid of anderszins, dan wel de gevolgen daarvan.

Koper is te allen tijde gerechtigd voor eigen rekening een bouwkundige keuring te (laten) verrichten dan wel andere adviseurs te raadplegen teneinde een goed inzicht te verkrijgen over de staat van onderhoud.

Lees meer

Kenmerken

Overdracht

Prijs per m2
€ 3.512
Aangeboden sinds
8 januari 2026
Status
Beschikbaar
Aanvaarding
In overleg

Bouw

Soort woonhuis
Eengezinswoning, hoek woning
Soort bouw
Bestaande bouw
Bouwjaar
1954
Soort dak
Zadeldak
Staat van onderhouden binnen
Uitstekend
Staat van onderhouden buiten
Uitstekend

Oppervlakte en inhoud

Perceeloppervlakte
410 m2
Inhoud van de woning
571 m3
Oppervlakte externe bergruimte
37 m2
Oppervlakte gebouwgebonden buitenruimten
7 m2
Oppervlakte overige inpandige ruimten
42 m2

Indeling

Aantal kamers
5
Aantal slaapkamers
4
Aantal woonlagen
3
Voorzieningen
Tuin, alarmsysteem, rolluiken, airconditioning, schuifpui, dakraam

Buitenruimte

Balkon
Nee
Schuur/berging
Nee

Maandlasten berekenen

De maandlasten voor je woning bestaan uit meer dan alleen de hypotheeklasten. Hieronder vind je een overzicht van de bijkomende kosten en lasten. Zo weet je precies wat je huis per maand gaat kosten. En met de handige vergelijkers kun je ook nog eens snel de beste deals sluiten!

  • Kaart
  • Streetview