Sint Lambertusstraat 1 6136 XD Sittard

106m2
Wonen
6
Kamers
112m2
Perceel
1922
Bouwjaar
De biedingstermijn voor deze woning sluit op 4 maart 2026 om 23.59 uur.

In de gezellige wijk ‘Overhoven’ is deze hoekwoning gelegen. Ideaal geschikt voor starters alsook senioren gezien de aanwezigheid van een slaapkamer en badkamer op de begane grond. Met in totaal 4 mogelijk 5 slaapkamers is deze woning verrassend ruim te noemen. Daarnaast beschikt de woning o.a. over een ruime keuken en een onderhoudsvrije omsloten tuin.
In de directe omgeving liggen een school, diverse sportfaciliteiten en het centrum is op fietsafstand bereikbaar. Je woont hier rustig, maar met alle dagelijkse voorzieningen binnen handbereik.
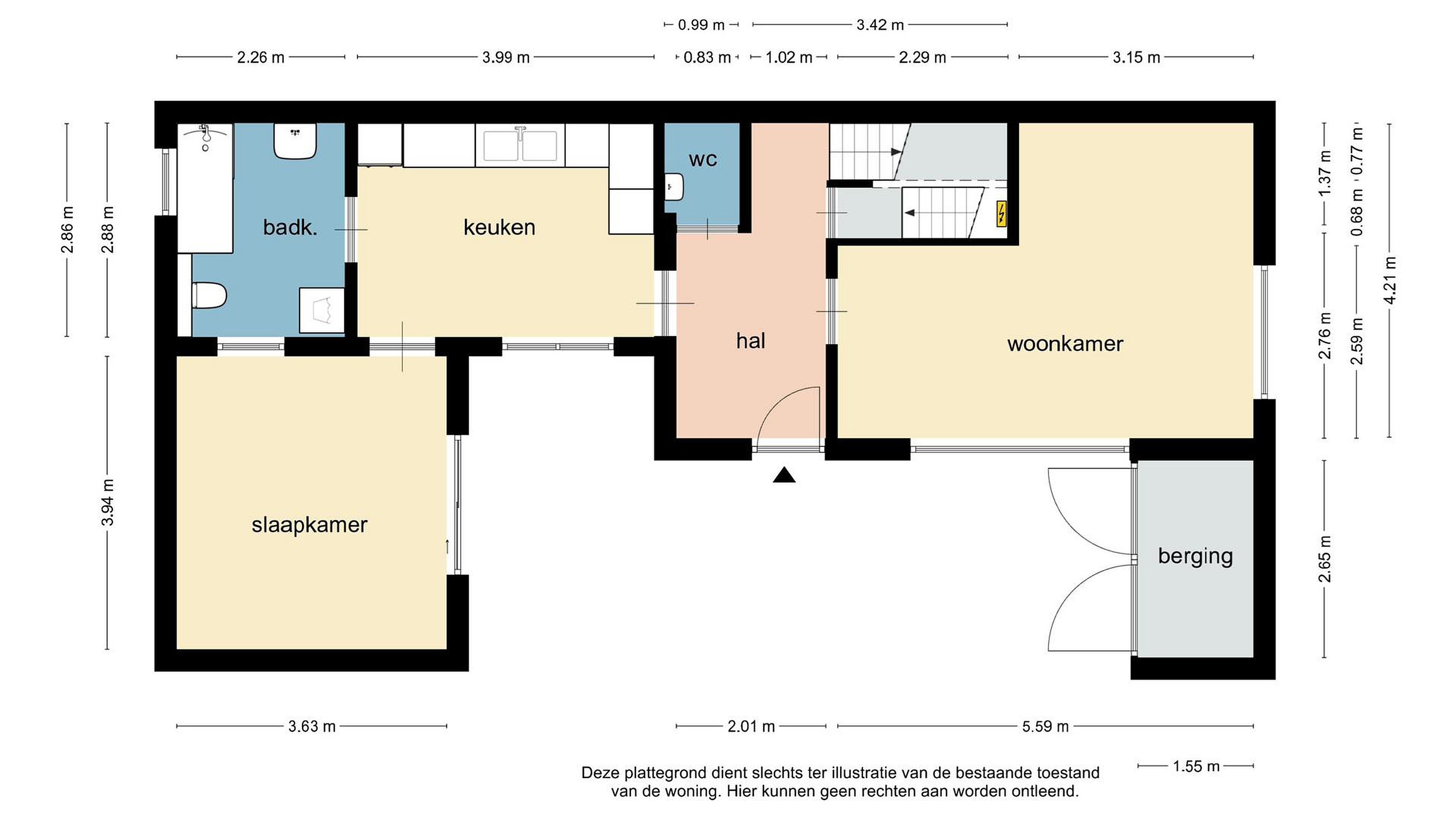
Begane grond
Souterrain:
Praktische provisiekelder.

Begane grond:
Hal, toilet en toegang tot woon/eetkamer aan de ene zijde en de keuken aan de andere zijde. De woning beschikt over een lichte woonkamer. De keuken is voorzien van de volgende inbouwapparatuur: koelkast, gasfornuis, vaatwasser, combi-oven, en een afzuigkap.
Volledig betegelde badkamer welke voorzien is van een ligbad met douchecombinatie, wastafel met opbergmeubel en een toilet. De aansluitingen voor de wasmachine/wasdroger alsmede de cv-installatie bevinden zich hier.

Tuin:
De onderhoudsvrije tuin is volledig beklinkerd. In de tuin bevindt zich een separate houten berging.

1e verdieping:
Overloop, drie slaapkamers (waarvan 1 met inbouwkast).
2e verdieping:
Middels een vaste trap is de 2e verdieping bereikbaar.
Deze kamer kan naar eigen wens ingedeeld worden bv. als extra slaap en/of werkkamer.

Details
Centrale ligging;
Cv-installatie: eigendom / Remeha / 2015;
De woning is grotendeels voorzien van rolluiken;
De woning is voorzien van houten kozijnen met dubbel glas.

Deze verkoopinformatie is met de nodige zorgvuldigheid samengesteld. Hierbij zijn wij deels afhankelijk van informatie die wij van derden ontvangen. Aan onjuistheden en/of onvolkomenheden kunt u echter geen rechten ontlenen. Indien bepaalde informatie voor u van wezenlijk belang is dan adviseren wij u deze op juistheid te controleren. Onzerzijds wordt geen aansprakelijkheid aanvaardt voor enige onvolledigheid, onjuistheid of anderszins, dan wel de gevolgen daarvan.

Koper is te allen tijde gerechtigd voor eigen rekening een bouwkundige keuring te (laten) verrichten dan wel andere adviseurs te raadplegen teneinde een goed inzicht te verkrijgen over de staat van onderhoud.

Lees meer

Kenmerken

Overdracht

Prijs per m2
€ 2.123
Aangeboden sinds
20 februari 2026
Status
Beschikbaar
Aanvaarding
In overleg

Bouw

Soort woonhuis
Eengezinswoning, hoek woning
Soort bouw
Bestaande bouw
Bouwjaar
1922
Soort dak
Zadeldak
Staat van onderhouden binnen
Goed
Staat van onderhouden buiten
Goed

Oppervlakte en inhoud

Perceeloppervlakte
112 m2
Inhoud van de woning
463 m3
Oppervlakte externe bergruimte
4 m2
Oppervlakte overige inpandige ruimten
20 m2

Indeling

Aantal kamers
6
Aantal slaapkamers
5
Aantal woonlagen
4
Voorzieningen
Tuin, schuur/berging, rolluiken, dakraam

Buitenruimte

Balkon
Nee
Schuur/berging
Ja

Maandlasten berekenen

De maandlasten voor je woning bestaan uit meer dan alleen de hypotheeklasten. Hieronder vind je een overzicht van de bijkomende kosten en lasten. Zo weet je precies wat je huis per maand gaat kosten. En met de handige vergelijkers kun je ook nog eens snel de beste deals sluiten!

  • Kaart
  • Streetview