Rijksweg Noord 253 6136 AC Sittard

131m2
Wonen
5
Kamers
165m2
Perceel
1948
Bouwjaar
Op een centrale locatie in ‘Overhoven’ is deze leuke, verrassend ruime tussenwoning gelegen.
De woning is met o.a. 4 slaapkamers, een lichte woonkamer met moderne open keuken en een omsloten tuin de ideale gezinswoning.
Alle dagelijkse voorzieningen zoals winkels, scholen, kinderopvang en sportfaciliteiten zijn snel toegankelijk. Ook de directe uitvalswegen zijn binnen 5 minuten bereikbaar.
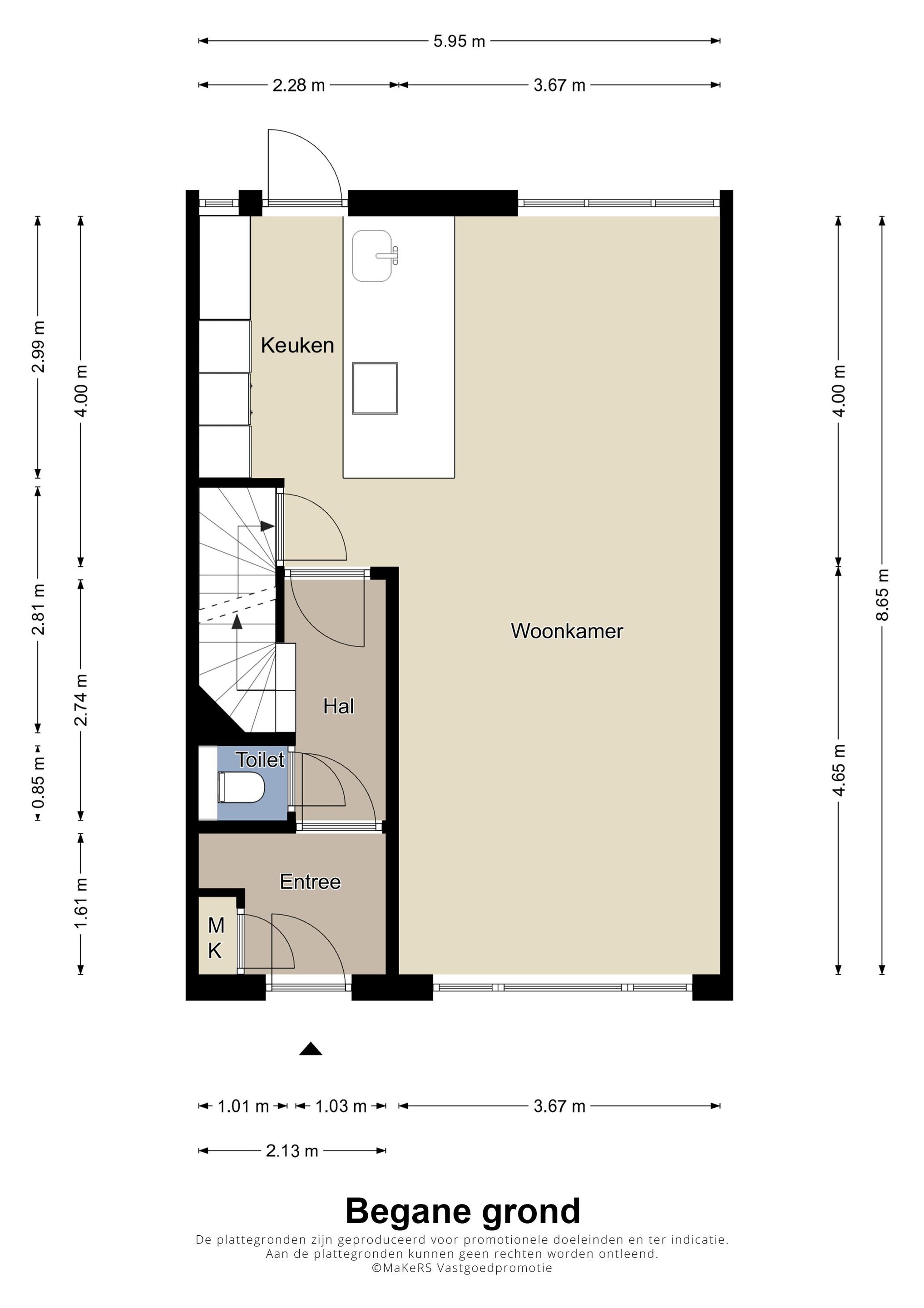
Begane grond
Souterrain:
Praktische provisiekelder.

Begane grond:
Entree/tochtportaal, meterkast.
Hal, toilet, sfeervolle en lichte woonkamer (voorzien van een airco-unit) met open keuken.
De moderne keuken (2023) is voorzien van een kookeiland en uitgerust met de volgende inbouwapparatuur: inductiekookplaat, afzuigkap, vaatwasser, oven, koelkast en diepvries.

Tuin:
De omsloten achtertuin is volledig betegeld. Aan de achterzijde bevindt zich de garage en een separate stenen berging. Ook is de tuin toegankelijk middels een achterom.

Eerste verdieping:
Overloop, 3 slaapkamers (1 kamer is voorzien van een inbouwkast) en de badkamer.
De moderne badkamer (2023) is voorzien van: een inloopdouche, wastafel met opbergmeubel en een toilet.

Tweede verdieping:
De tweede verdieping is bereikbaar middels een vaste trap. De zolder is praktisch ingedeeld met o.a. een 4e slaapkamer (met dakkapel 2025), wasruimte, berging en een multifunctionele ruimte die bijvoorbeeld als kantoor of extra bergruimte kan dienen.

Details
Centrale ligging;
Energielabel B;
Volledig gasloos;
Voorzien van kunststof kozijnen met HR ++ glas;
Voorzien van 12 zonnepanelen / Zonneplan / 2023 /eigendom;
Dak-en vloerisolatie;
Elektrische boiler op zolder (150 liter) en in de keuken (15 liter) / eigendom / Tesy / 2023;
Elektrische vloerverwarming op de badkamer;
Airco op de begane grond (2023) en de 1e verdieping (2024) / TCL;
De volledige elektra is in 2023 vernieuwd.

Deze verkoopinformatie is met de nodige zorgvuldigheid samengesteld. Hierbij zijn wij deels afhankelijk van informatie die wij van derden ontvangen. Aan onjuistheden en/of onvolkomenheden kunt u echter geen rechten ontlenen. Indien bepaalde informatie voor u van wezenlijk belang is dan adviseren wij u deze op juistheid te controleren. Onzerzijds wordt geen aansprakelijkheid aanvaardt voor enige onvolledigheid, onjuistheid of anderszins, dan wel de gevolgen daarvan.

Koper is te allen tijde gerechtigd voor eigen rekening een bouwkundige keuring te (laten) verrichten dan wel andere adviseurs te raadplegen teneinde een goed inzicht te verkrijgen over de staat van onderhoud.

Lees meer

Kenmerken

Overdracht

Prijs per m2
€ 2.206
Aangeboden sinds
24 maart 2026
Status
Beschikbaar
Aanvaarding
In overleg

Bouw

Soort woonhuis
Eengezinswoning, tussen woning
Soort bouw
Bestaande bouw
Bouwjaar
1948
Soort dak
Zadeldak
Staat van onderhouden binnen
Goed
Staat van onderhouden buiten
Goed

Oppervlakte en inhoud

Perceeloppervlakte
165 m2
Inhoud van de woning
564 m3
Oppervlakte externe bergruimte
22 m2
Oppervlakte overige inpandige ruimten
6 m2

Indeling

Aantal kamers
5
Aantal slaapkamers
4
Aantal woonlagen
4
Voorzieningen
Tuin, schuur/berging, glasvezel, airconditioning

Buitenruimte

Balkon
Nee
Schuur/berging
Ja

Maandlasten berekenen

De maandlasten voor je woning bestaan uit meer dan alleen de hypotheeklasten. Hieronder vind je een overzicht van de bijkomende kosten en lasten. Zo weet je precies wat je huis per maand gaat kosten. En met de handige vergelijkers kun je ook nog eens snel de beste deals sluiten!

  • Kaart
  • Streetview