Bruno Heisterdreef 10 6132 TH Sittard

136m2
Wonen
5
Kamers
315m2
Perceel
1998
Bouwjaar
Aan de Bruno Heisterdreef 10 in Sittard ligt deze verzorgde en instapklare twee onder een kapwoning met inpandige garage, eigen oprit en een diepe achtertuin met overkapping. De woning beschikt over een fijne indeling, veel lichtinval en is door de jaren heen goed onderhouden. Met onder andere 12 zonnepanelen, grotendeels houten kozijnen met HR++ beglazing en meerdere airco’s is het een comfortabel geheel waar je direct kunt wonen.

De begane grond is ruim opgezet en staat in directe verbinding met de tuin, waardoor binnen en buiten prettig in elkaar overlopen. De open keuken met kookeiland vormt het centrale punt van de woning en biedt volop ruimte om te koken en samen te zijn. De aangrenzende bijkeuken zorgt voor extra gemak en geeft toegang tot zowel de garage als de tuin.

Op de verdiepingen beschikt de woning over meerdere slaapkamers en een extra inloopkamer die flexibel te gebruiken is. De tweede verdieping, bereikbaar via een vaste trap, biedt een extra kamer die geschikt is als slaapkamer of werkruimte. De achtertuin is diep en verzorgd aangelegd met een combinatie van bestrating en groen. Onder de overkapping kun je beschut buiten zitten en dankzij de ligging geniet je van een goede mate van privacy.

De woning is gelegen in een rustige en kindvriendelijke woonomgeving met voldoende parkeergelegenheid. Voorzieningen zoals winkels, scholen en uitvalswegen richting onder andere Sittard en Maastricht zijn op korte afstand bereikbaar. De verzorgde voortuin en de oprit zorgen voor een nette eerste indruk en bieden direct toegang tot de inpandige garage.
Begane grond
Via de entree kom je binnen in de ontvangsthal, afgewerkt met een tegelvloer. Hier bevindt zich het zwevend toilet met fonteintje en de toegang tot de woonkamer.

De woonkamer is ruim opgezet en geniet van veel daglicht dankzij de grote raampartijen. De tegelvloer loopt door over de gehele begane grond en zorgt voor een rustige basis. De aanwezigheid van een airco-installatie draagt bij aan extra comfort, zowel in de zomer als in de winter. Vanuit de woonkamer is de trap naar de eerste verdieping bereikbaar.

Aan de achterzijde bevindt zich de open keuken met kookeiland. De keuken beschikt over voldoende werk- en kastruimte en is uitgerust met diverse inbouwapparatuur, waaronder een combi-stoomoven, een separate oven, een 5-pits inductiekookplaat (met gasaansluiting aanwezig), afzuigkap, koelkast, vriezer en vaatwasser. De opstelling maakt het een fijne plek om te koken en in contact te blijven met de rest van de leefruimte. Daarnaast is de keuken, evenals de aanbouw, voorzien van vloerverwarming.

Aansluitend ligt de bijkeuken. Hier bevinden zich de witgoedaansluitingen en is er ruimte voor een garderobe. Vanuit deze ruimte is er directe toegang tot zowel de achtertuin als de inpandige garage.

De garage is voorzien van elektra en beschikt over een elektrische sectionaalpoort. Ideaal voor het stallen van een auto, fietsen of extra opslag.

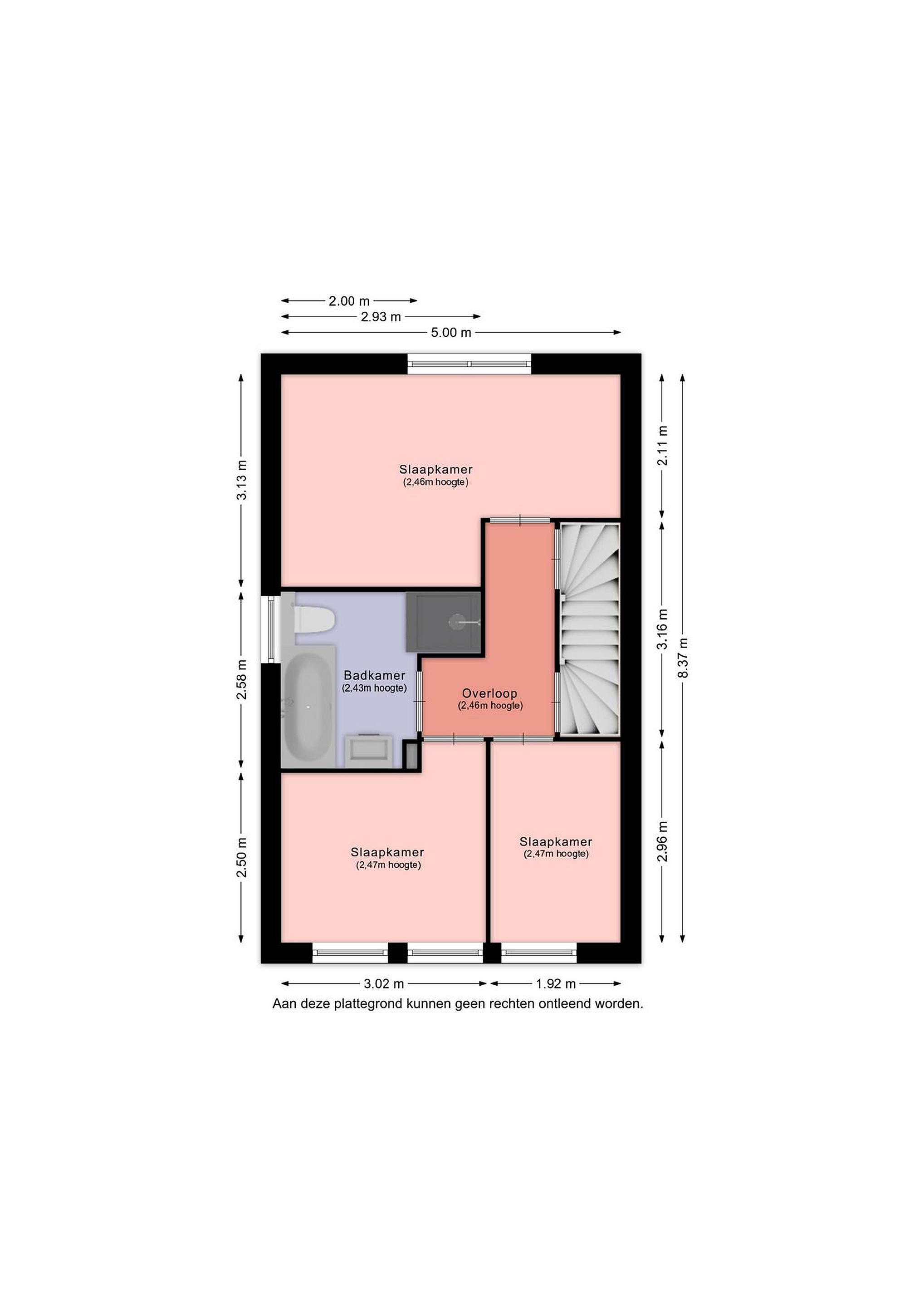
Eerste verdieping
De overloop vormt het centrale punt van de eerste verdieping en geeft toegang tot twee slaapkamers, een inloopkamer en de badkamer. De indeling is overzichtelijk en sluit goed aan op elkaar, wat zorgt voor een prettige en comfortabele woonlaag.

De slaapkamers zijn licht en netjes afgewerkt met een pvc-vloer. Dankzij de aanwezige raampartijen komt er veel daglicht binnen en in combinatie met de houten kozijnen met HR++ beglazing en rolluiken is het hier aangenaam verblijven. De hoofdslaapkamer is daarnaast voorzien van een airco-installatie, wat extra comfort biedt. De inloopkamer vormt een mooie aanvulling op deze verdieping en kan naar wens worden ingericht, bijvoorbeeld als kleedkamer, werkruimte of hobbykamer.

De badkamer is volledig betegeld en compleet uitgevoerd. Hier beschik je over een douche, ligbad, badkamermeubel met wastafel en spiegel met verlichting, een toilet en een designradiator. Het raam zorgt voor prettig daglicht en natuurlijke ventilatie, wat bijdraagt aan een frisse en aangename ruimte.

Tweede verdieping
Via een vaste trap is de tweede verdieping bereikbaar. Bij bovenkomst kom je op een overloop die toegang geeft tot een extra kamer, welke geschikt is als vierde slaapkamer, werkkamer of hobbyruimte.

De ruimte is prettig van formaat en beschikt over voldoende lichtinval. Dankzij de aanwezige bergruimte in de schuine kap kan hier ook praktisch worden opgeborgen. Daarnaast is de kamer voorzien van een rolluik en airco wat zorgt voor extra comfort en verduistering wanneer gewenst.

Deze verdieping biedt daarmee een waardevolle aanvulling op de woning en kan volledig naar eigen wens worden ingericht.

Tuin
De achtertuin is diep en verzorgd aangelegd en biedt een fijne combinatie van bestrating en een grasveld. Direct achter de woning bevindt zich een ruim terras met overkapping, waar je beschut kunt zitten en het hele jaar door van buiten kunt genieten.

Door de diepte van de tuin is er voldoende ruimte voor meerdere zitplekken, speelruimte of het plaatsen van tuinmeubilair. Het grasgedeelte zorgt voor een groen karakter en maakt de tuin geschikt voor zowel ontspanning als gebruik door bijvoorbeeld een gezin. De erfafscheidingen rondom dragen bij aan een prettige mate van privacy.

Daarnaast is de tuin praktisch in gebruik en goed bereikbaar, via de keuken en de bijkeuken. Hierdoor is de tuin niet alleen een fijne plek om te verblijven, maar ook functioneel in het dagelijks gebruik.

Details
- Energielabel A
- Volledig voorzien van HR++ beglazing
- Airco aanwezig in woonkamer, hoofdslaapkamer en zolder
- Open keuken met kookeiland en complete inbouwapparatuur
- Inpandige garage met elektrische sectionaal poort
- Bijkeuken met witgoedaansluitingen
- Diepe achtertuin met overkapping en privacy
- Eigen oprit met parkeergelegenheid
- 12 Zonnepanelen

De informatie is met de nodige zorgvuldigheid door ons samengesteld. Er kunnen geen rechten worden ontleend aan deze advertentie en brochure en aanvaarden wij geen enkele aansprakelijkheid voor enige onvolledigheid, onjuistheid of anderszins, dan wel de gevolgen daarvan. Maatvoeringen en oppervlakten zijn indicatief.

Lees meer

Kenmerken

Overdracht

Prijs per m2
€ 3.449
Aangeboden sinds
25 maart 2026
Status
Beschikbaar
Aanvaarding
In overleg

Bouw

Soort woonhuis
Eengezinswoning, twee-onder-een-kap woning
Soort bouw
Bestaande bouw
Bouwjaar
1998
Soort dak
Zadeldak
Staat van onderhouden binnen
Goed
Staat van onderhouden buiten
Goed

Oppervlakte en inhoud

Perceeloppervlakte
315 m2
Inhoud van de woning
436 m3
Oppervlakte gebouwgebonden buitenruimten
28 m2
Oppervlakte overige inpandige ruimten
33 m2

Indeling

Aantal kamers
5
Aantal slaapkamers
4
Aantal woonlagen
3
Voorzieningen
Tuin, rolluiken, airconditioning, schuifpui

Buitenruimte

Balkon
Nee
Schuur/berging
Nee

Maandlasten berekenen

De maandlasten voor je woning bestaan uit meer dan alleen de hypotheeklasten. Hieronder vind je een overzicht van de bijkomende kosten en lasten. Zo weet je precies wat je huis per maand gaat kosten. En met de handige vergelijkers kun je ook nog eens snel de beste deals sluiten!

  • Kaart
  • Streetview