Verkocht

Vegilinstraat 40 8521 KV Sint Nicolaasga

85m2
Wonen
4
Kamers
246m2
Perceel
1965
Bouwjaar
Let op, deze woning wordt alleen aangeboden aan inwoners van Sint Nicolaasga of omgeving!
Deze 2/1 kapwoning is levensloopbestendig, heeft energielabel C, een garage en is instapklaar. Door de slaapkamer en badkamer op de begane grond is deze fraaie woning ook geschikt voor senioren. Maar voor starters uiteraard ook een ideale woning. De woning heeft een uitbouw aan de achterzijde waar een bijkeuken en badkamer zijn gerealiseerd. De achtertuin is gelegen op het oosten en er staat nog een vrijstaande houten garage met aangebouwde berging.

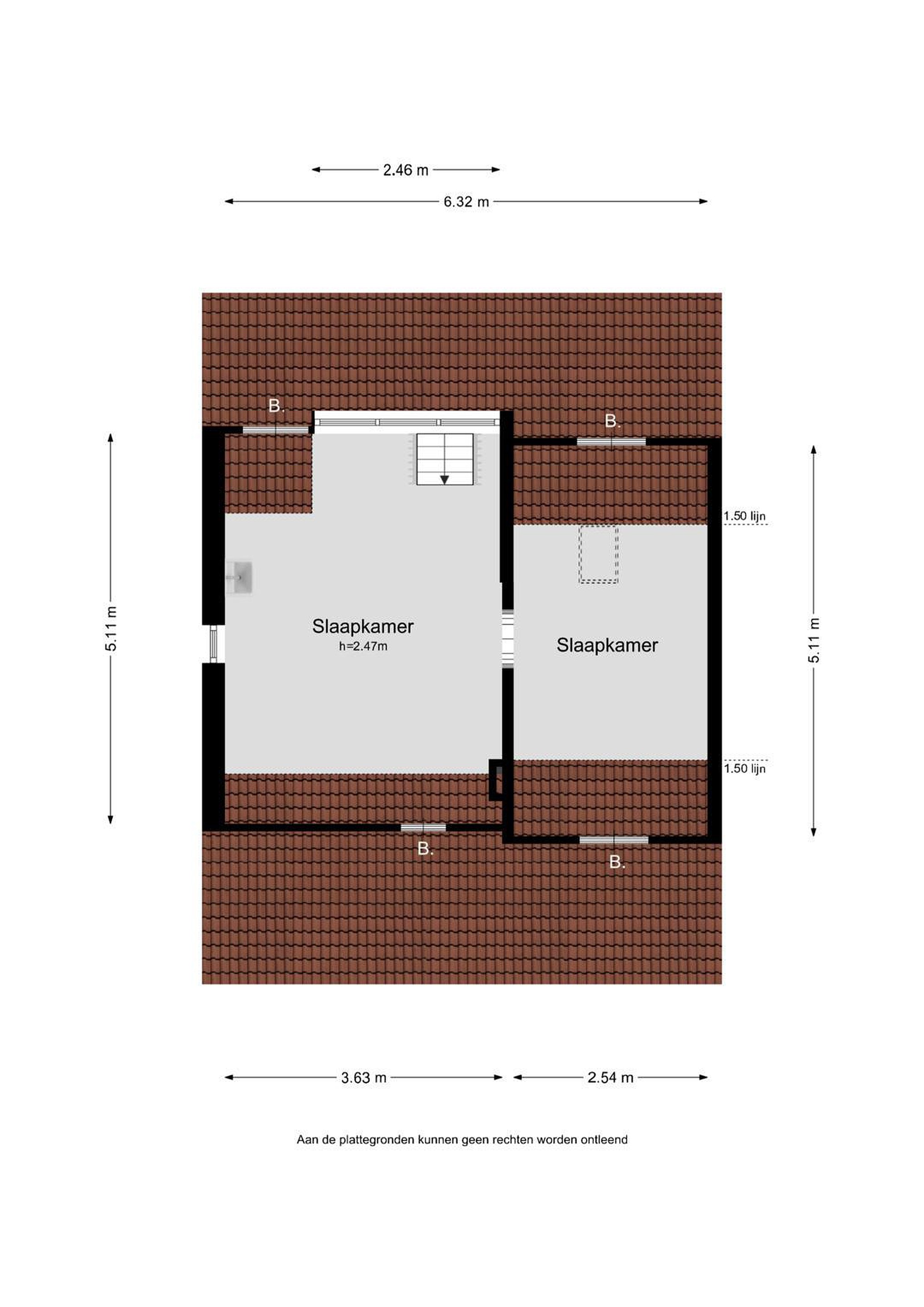
Op de verdieping is het mogelijk de huidige ruime inloopkast/berging als slaapkamer te gebruiken, waardoor er op de verdieping 2 slaapkamers zijn.
Kortom een knusse 2/1 kapwoning op loopafstand van scholen en het centrum met winkels en horeca.
Begane grond
We leiden je graag alvast rond:
We betreden de woning via de voordeur en komen in de hal met meterkast en toegang tot het toilet en de slaapkamer met wastafel. Rechts van de hal bevindt zich de woonkamer, een knusse en sfeervolle leefruimte met enkele inbouwkasten. Links van de hal bevindt zich de keuken, deze heeft een hoekkeukenopstelling welke is voorzien van diverse inbouwapparatuur zoals; koelkast, gaskookplaat, afzuigkap en vaatwasser. Via de keuken is ook de trapopgang toegankelijk. Achter de keuken bevindt zich de bijkeuken met cv-installatie en aansluiting voor de wasmachine en droger, tevens toegang tot de achtertuin. Via de bijkeuken kom je in de badkamer met 2e toilet, douche en wastafelmeubel.

Eerste verdieping
Op de verdieping bevinden zich een ruime slaapkamer met wastafel en een evt. 2e slaapkamer of inloopkast/berging. Achter de knieschotten is ook nog voldoende bergruimte.

Details
De woning is traditioneel gebouwd in 1965 en geïsoleerd d.m.v. dak- en spouwisolatie en grotendeels voorzien van HR+ en HR++ beglazing in deels houten en deels kunststof kozijnen. De woning wordt verwarmd d.m.v. centrale verwarming, de HR-combiketel is van 2021 en eigendom. In 2010 is de aanbouw gerealiseerd, in 2017 is de dakkapel van de slaapkamer geplaatst en in 2021 zijn de goten en boeidelen vervangen. De vloer van de begane grond is deels hout en deels beton(aanbouw), de verdiepingsvloer is van hout.

De Vegilinstraat 40 in het kort:
- 2/1 kapwoning
- garage
- 246 m2 perceeloppervlakte
- 86 m2 woonoppervlakte
- geschikt voor senioren
- slaapkamer en badkamer op begane grond
- ruime slaapkamer op verdieping
- evt. extra slaapkamer op verdieping mogelijk
- energielabel C
- centrale verwarming (cv-ketel van 2021)
- op loopafstand van scholen en winkels
- ideale starterswoning
- alleen voor inwoners van Sint Nicolaasga of omgeving

Wil je meer weten over het mooie Friese dorp Sint Nicolaasga lees dan hier verder.

Het dorp Sint Nicolaasga, door de Friezen Sint Nyk genoemd, ligt ten zuidwesten van Joure en ten noordwesten van Lemmer, prachtig gelegen tussen het Tjeukemeer en de Langweerder Wielen en op slechts enkele minuten van de A6, waardoor de bereikbaarheid zeer gunstig is voor bijvoorbeeld werken in of richting de Randstad. Het dorp heeft ca. 3.300 inwoners en heeft een rijk verenigingsleven, elk jaar is er de “Sint Nykster Merke” met de alom bekende allegorische optocht met prachtige praalwagens.

Sint Nicolaasga heeft een eigen jachthaven vanwaar er toegang is tot het Tjeukemeer. Ook kun je heerlijk wandelen in het Sint Nykster bos en een balletje slaan bij Burggraaf Golfclub, op slechts enkele minuten fietsen.
Ook recreatief heeft Sint Nicolaasga wat te bieden, zo is er het Vakantiepark Landgoed Eysinga State en diverse B&B’s, ook kun je er heerlijk eten bij de diverse restaurants in Sint Nicolaasga en directe omgeving. Sint Nicolaasga heeft zelfs een strand aan het Tjeukemeer.

Sint Nicolaasga heeft enkele basisscholen en kinderopvang, voor voortgezet onderwijs kun je naar Joure of Sneek. Het dorp heeft een klein centrum met enkele winkels waaronder de Jumbo, een groenteboer, bakker en slager, drogist, bloemist, kledingwinkel enz.

Ben je ook zo enthousiast over Sint Nicolaasga en omgeving, aarzel niet en bel ons dan meteen om een afspraak voor bezichtiging van de woning te maken.


Lees meer

Verkoopgeschiedenis

Aangeboden sinds
27 november 2025
Verkoopdatum
20 januari 2026
Looptijd
2 maanden

Kenmerken

Overdracht

Prijs per m2
€ 2.921
Aangeboden sinds
27 november 2025
Status
Verkocht
Aanvaarding
Direct

Bouw

Soort woonhuis
Eengezinswoning, twee-onder-een-kap woning
Soort bouw
Bestaande bouw
Bouwjaar
1965
Soort dak
Zadeldak
Staat van onderhouden binnen
Goed
Staat van onderhouden buiten
Goed

Oppervlakte en inhoud

Perceeloppervlakte
246 m2
Inhoud van de woning
307 m3
Oppervlakte externe bergruimte
22 m2

Indeling

Aantal kamers
4
Aantal slaapkamers
3
Aantal woonlagen
2
Voorzieningen
Tuin, schuur/berging, dakraam

Buitenruimte

Balkon
Nee
Schuur/berging
Ja

Maandlasten berekenen

De maandlasten voor je woning bestaan uit meer dan alleen de hypotheeklasten. Hieronder vind je een overzicht van de bijkomende kosten en lasten. Zo weet je precies wat je huis per maand gaat kosten. En met de handige vergelijkers kun je ook nog eens snel de beste deals sluiten!

  • Kaart
  • Streetview