Verkocht OV

Burg. IJsebaertstraat 3 4564 AJ Sint Jansteen

79m2
Wonen
4
Kamers
252m2
Perceel
1960
Bouwjaar
KANS VOOR STARTERS, POTENTIE OP TOPLOCATIE!
De prijs betreft een bieden vanaf prijs.

Starters opgelet: dit is je kans om jouw droomstart in Sint Jansteen te maken! Burgemeester IJsebaertstraat 3 is een 2-onder-1-kapwoning, gelegen in een rustige en groene straat waar je volop privacy hebt en toch alles binnen handbereik ligt. Het pand biedt een solide basis met volop potentie om helemaal naar eigen smaak te moderniseren en in te richten.

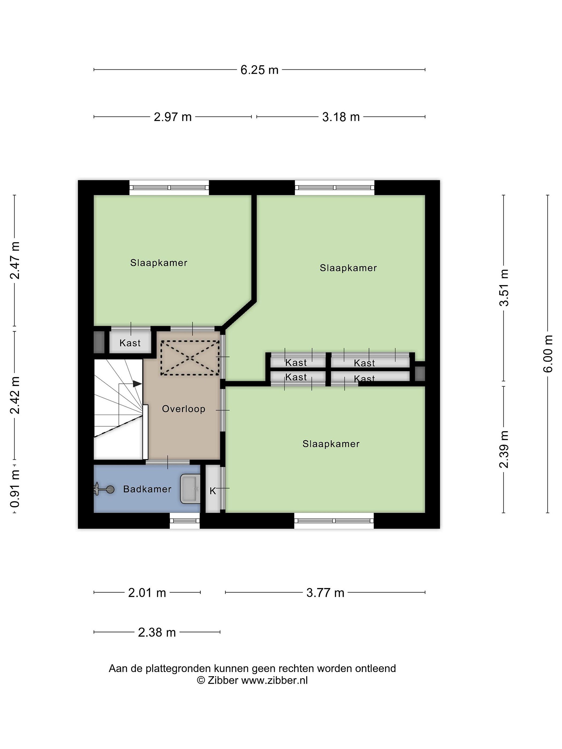
Dankzij de ruime oprit, eigen garage en flinke bergschuur/hobbyruimte is er voldoende plek voor auto’s, fietsen, tuinspullen of creatieve hobby’s. De woning heeft een praktische indeling met een woonkeuken, doorzonwoonkamer en bijkeuken op de begane grond, zodat je direct alle woonfuncties op één niveau hebt. Op de verdieping tref je een overloop, drie slaapkamers en een badkamer. Bovendien is er een handige vliering voor extra opslag.

Bijzonderheden
Voor extra informatie kun je terecht op onze website.

Sint Jansteen is een sfeervol dorp met een prettige mix van rust en bereikbaarheid. Alle dagelijkse voorzieningen, zoals winkels, scholen en sportfaciliteiten, vind je op korte afstand. De Belgische grens is binnen handbereik en Hulst ligt slechts enkele minuten verderop. Voor starters is dit een unieke kans: een woning die alles biedt om er je eigen plekje van te maken, op een toplocatie.

Rustig wonen met alles binnen handbereik, dat is hier gegarandeerd.
Kom langs en ervaar zelf de ruimte, mogelijkheden en toplocatie! Wij staan altijd voor je klaar.
Lees meer

Kenmerken

Overdracht

Prijs per m2
€ 2.519
Aangeboden sinds
24 december 2025
Status
Verkocht onder voorbehoud
Aanvaarding
In overleg

Bouw

Soort woonhuis
Eengezinswoning, twee-onder-een-kap woning
Soort bouw
Bestaande bouw
Bouwjaar
1960
Soort dak
Zadeldak
Staat van onderhouden binnen
Goed
Staat van onderhouden buiten
Goed

Oppervlakte en inhoud

Perceeloppervlakte
252 m2
Inhoud van de woning
311 m3
Oppervlakte externe bergruimte
33 m2
Oppervlakte overige inpandige ruimten
8 m2

Indeling

Aantal kamers
4
Aantal slaapkamers
3
Aantal woonlagen
2
Voorzieningen
Tuin, schuur/berging, rolluiken

Buitenruimte

Balkon
Nee
Schuur/berging
Ja

Maandlasten berekenen

De maandlasten voor je woning bestaan uit meer dan alleen de hypotheeklasten. Hieronder vind je een overzicht van de bijkomende kosten en lasten. Zo weet je precies wat je huis per maand gaat kosten. En met de handige vergelijkers kun je ook nog eens snel de beste deals sluiten!

  • Kaart
  • Streetview