Verkocht OV

Fresiahof 21 5482 RA Schijndel

118m2
Wonen
5
Kamers
227m2
Perceel
1973
Bouwjaar
VRIJE LIGGING!
Licht en sfeervol wonen in een ruime woning met doorzonwoonkamer en deels open keuken met provisiekast. Drie slaapkamers, badkamer en een zolder met volop mogelijkheden voor een vierde slaapkamer of hobbyruimte. Geniet van de ruime voortuin met twee bergingen en een zonnige achtertuin op het noordwesten met extra zijtuin, terras en veel privacy. Gelegen aan een rustig park, perfect voor gezinnen die comfort, ruimte en buitenleven willen combineren.

LOCATIE
De woning is gelegen in de rustige wijk Boschweg, aan een hofje met uitsluitend bestemmingsverkeer, wat zorgt voor een veilige en aangename woonomgeving. In de directe omgeving vindt u diverse voorzieningen, zoals winkels, scholen, sportfaciliteiten en speelplekken. Het bruisende centrum van Schijndel is binnen enkele minuten per fiets of auto bereikbaar. Via de nabijgelegen Structuurweg en N617 bent u bovendien snel onderweg naar ’s-Hertogenbosch of Eindhoven.
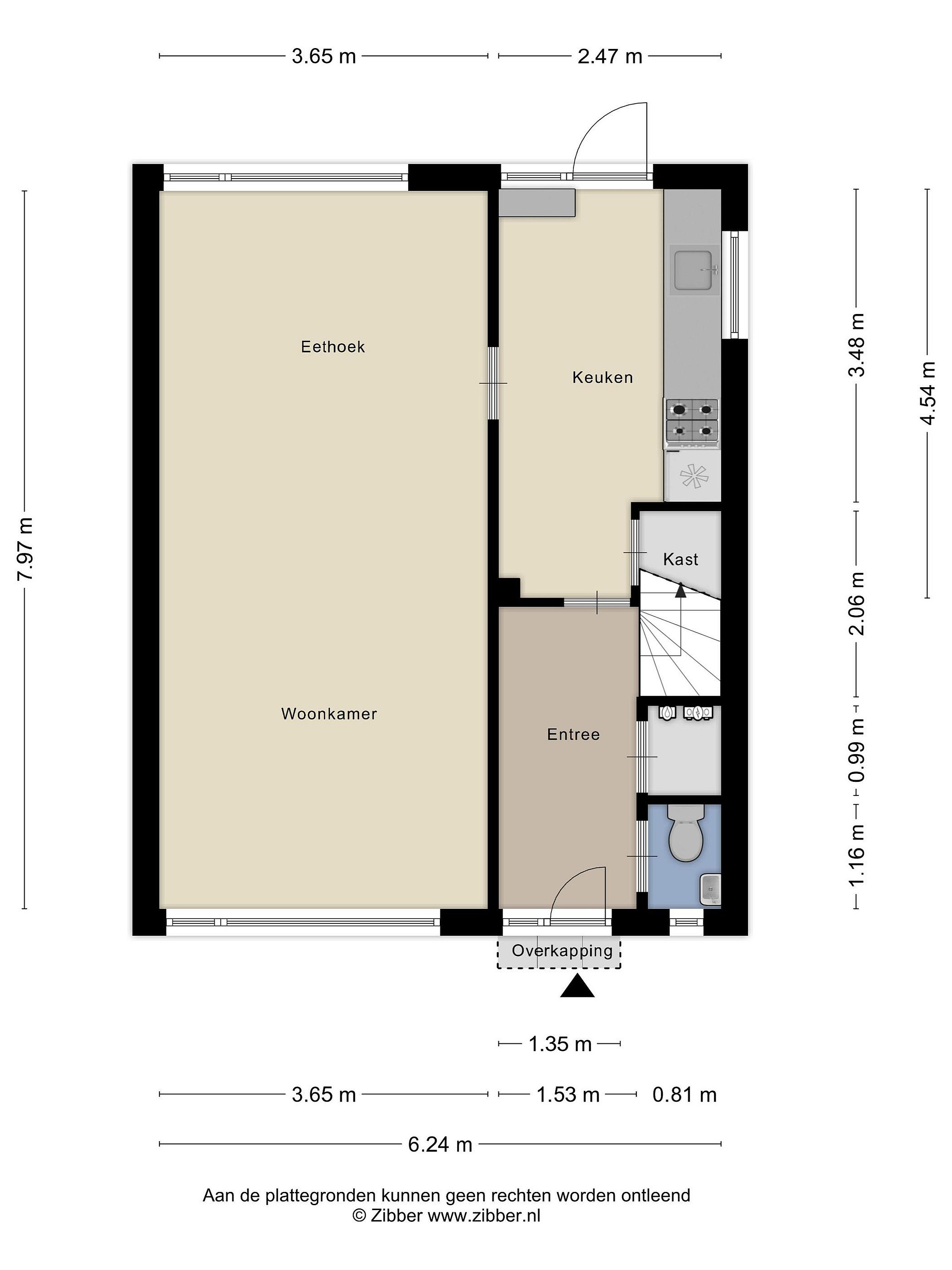
Begane grond
Bij binnenkomst in de hal vindt u de meterkast, het toilet met fonteintje en raam, en de trap naar de eerste verdieping. Vanuit hier loopt u door naar de keuken. De keuken is in de lengte opgesteld, deels open en voorzien van diverse inbouwapparatuur, waaronder een oven, 4-pits gaskookplaat en afzuigkap. Een praktische provisiekast biedt extra bergruimte. Vanuit de keuken stapt u direct de achtertuin in, waardoor koken en buiten leven prettig met elkaar verbonden worden. De doorzonwoonkamer is een lichte en ruime leefruimte, met grote ramen aan zowel de voor- als achterzijde die zorgen voor een overvloed aan daglicht. De gestucte wanden en plafonds in combinatie met de houten vloer geven de kamer een warme, sfeervolle uitstraling waar u zich direct thuis voelt.

Eerste verdieping
Via de overloop heeft u toegang tot drie ruime slaapkamers, een wasruimte en de badkamer. De slaapkamers zijn allen netjes afgewerkt met een laminaatvloer en gestucte wanden. De badkamer is grotendeels betegeld en uitgerust met een wastafelmeubel, staand toilet en een douchecabine

Tweede verdieping
Via een vaste trap bereik je de zolder. Deze verdieping is momenteel één grote open ruimte met een houtlook vinylvloer, twee dakramen en knieschotten die zorgen voor extra bergruimte. De ruimte biedt volop mogelijkheden: hier kun je eenvoudig een vierde slaapkamer, een fijne werkkamer of een hobbyruimte creëren. Ook is hier de c.v.-combi-ketel (2022) geplaatst.

Tuin
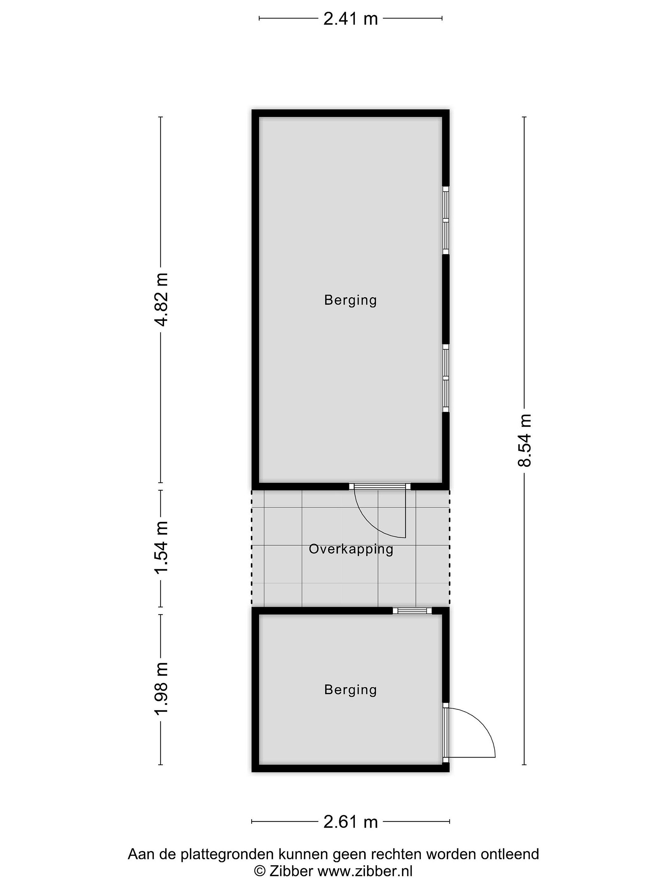
De woning beschikt over een ruime voortuin met twee stenen bergingen, ideaal voor opslag of als hobbyruimte. De achtertuin ligt op het noordwesten, waardoor je in de middag en avond van de zon kunt genieten. Dankzij de vrije ligging aan een park en het besloten karakter biedt de tuin veel privacy. De tuin is sfeervol ingericht met een terras en groene borders, en is verder uitgebreid met een zijtuin, waardoor er nog meer buitenruimte is om te genieten. Doordat de bergingen zich aan de voorzijde bevinden, kan de achtertuin optimaal worden benut.

Details
-Bouwjaar: 1973
-Perceeloppervlakte: 227 m2
-Woonoppervlakte: 118 m2
-Inhoud: ca. 419m3
-Energielabel C
-Hoekwoning
-Lichte doorzonwoonkamer
-3 slaapkamers (mogelijkheid tot 4e)
-Zonnige achtertuin met veranda
-Grotendeels voorzien van kunststof kozijnen
-Gelegen in rustige, kindvriendelijke woonstraat
-Woning dient wel wat aandacht (komt uit de verhuur)
-Aanvaarding in overleg

Deze informatie is door ons met de nodige zorgvuldigheid samengesteld. Onzerzijds wordt echter geen enkele aansprakelijkheid aanvaard voor enige onvolledigheid, onjuistheid of anderszins, dan wel de gevolgen daarvan. Alle opgegeven maten en oppervlakten zijn indicatief.

Lees meer

Kenmerken

Overdracht

Prijs per m2
€ 3.285
Aangeboden sinds
3 oktober 2025
Status
Verkocht onder voorbehoud
Aanvaarding
In overleg

Bouw

Soort woonhuis
Eengezinswoning, hoek woning
Soort bouw
Bestaande bouw
Bouwjaar
1973
Soort dak
Zadeldak
Staat van onderhouden binnen
Goed
Staat van onderhouden buiten
Goed

Oppervlakte en inhoud

Perceeloppervlakte
227 m2
Inhoud van de woning
419 m3
Oppervlakte externe bergruimte
16 m2
Oppervlakte gebouwgebonden buitenruimten
0 m2

Indeling

Aantal kamers
5
Aantal slaapkamers
4
Aantal woonlagen
3
Voorzieningen
Tuin, schuur/berging, glasvezel

Buitenruimte

Balkon
Nee
Schuur/berging
Ja

Maandlasten berekenen

De maandlasten voor je woning bestaan uit meer dan alleen de hypotheeklasten. Hieronder vind je een overzicht van de bijkomende kosten en lasten. Zo weet je precies wat je huis per maand gaat kosten. En met de handige vergelijkers kun je ook nog eens snel de beste deals sluiten!

  • Kaart
  • Streetview