Zwartewaalsestraat 25 3114 XV Schiedam

81m2
Wonen
3
Kamers
63m2
Perceel
1915
Bouwjaar
Wat een sfeervolle en verrassend ruime woning! In deze leuke straat in Schiedam vind je deze eengezinswoning waar gezelligheid en comfort samenkomen.

YESS! DIT WIL JE NIET MISSEN – DE HIGHLIGHTS OP EEN RIJ:
1. Ideaal als starterswoning of voor een klein gezin
2. Knusse, lichte woonkamer met fijne zithoek en eethoek
3. Nette keuken in L-vorm met veel werkruimte
4. Moderne badkamer met inloopdouche, wastafelmeubel en toilet
5. Twee ruime slaapkamers
6. Extra opbergzolder bereikbaar via vlizotrap
7. Fijne extra berging voorzien met wateraansluiting
8. Rustige ligging in een gezellige straat
9. Alles dichtbij: winkels, openbaar vervoer en scholen

Krijg je ook dat YESS-gevoel bij het lezen van deze punten? Dan nodigen wij je heel graag uit voor een bezichtiging van deze leuke woning!

DE LIGGING:
Je woont hier in De Gorzen, een van de leukste wijken van Schiedam-Zuid! De wijk heeft een gezellige, dorpse sfeer met alles binnen handbereik. De winkels aan de Groenelaan, leuke koffietentjes en buurtwinkels liggen letterlijk om de hoek. Voor een wandeling of een moment van rust ben je zo aan de Maasboulevard of in het groene Volkspark. Ook het centrum van Schiedam en de uitvalswegen richting Rotterdam, Vlaardingen en Delft zijn snel bereikbaar. Kortom: een heerlijke woonplek met karakter, levendigheid en het echte Schiedamse gevoel!

DE INDELING:
Je komt binnen in een hal die toegang biedt tot de ruime woonkamer. De woonkamer heeft een prettige lichtinval en genoeg ruimte voor een gezellige zithoek én eettafel. Dankzij de openslaande ramen aan de voorzijde heb je een fijne connectie met buiten. Bovendien is de woonkamer voorzien van airconditioning ideaal tijdens warme zomerdagen.

Vanuit de woonkamer heb je direct toegang tot de keuken én de spiltrap naar de bovenverdieping. De keuken is geplaatst in een speelse L-vorm en voorzien van voldoende kastruimte en werkblad. Vanuit de keuken bereik je de ruime, moderne badkamer. Deze is uitgerust met een inloopdouche, een stijlvol wastafelmeubel en een toilet. Hier vind je ook de aansluiting voor de wasmachine en de cv-ketel (2021).
Naast de badkamer bevindt zich een handige berging met wateraansluiting perfect voor extra opslag of als klusruimte.

Eerste verdieping
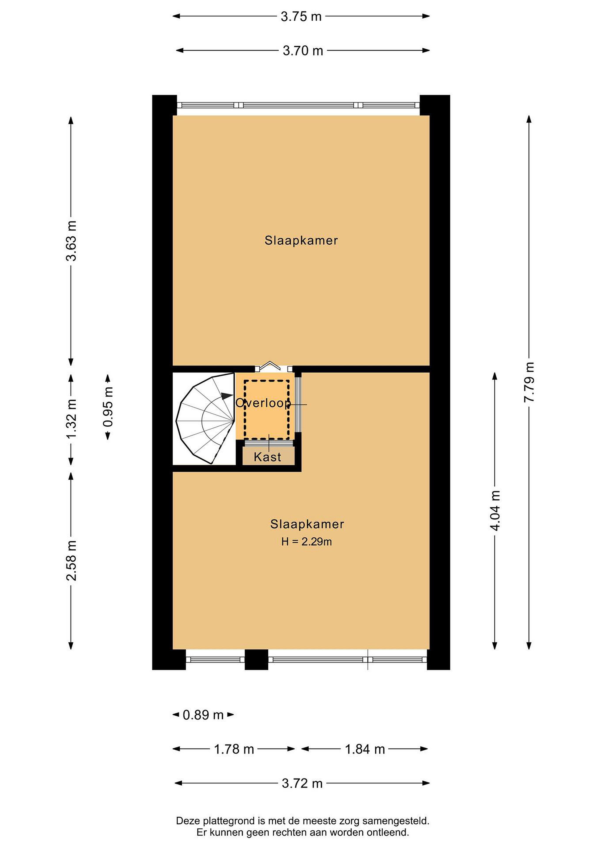
Op deze verdieping bevinden zich twee ruime slaapkamers: één aan de voorzijde en één aan de achterzijde. Beide kamers zijn voorzien van een dakkapel, waardoor er extra licht en ruimte ontstaat. Via een vlizotrap bereik je de zolder, ideaal als extra opbergruimte.

DE AFMETINGEN:
Voor de afmetingen en indeling, zie de plattegrond.

DE BIJZONDERHEDEN:
- Woonoppervlakte van ca. 81 m2;
- Bouwjaar 1915;
- Energielabel E;
- Kunststof kozijnen met dubbel glas;
- Verwarming en warm water middels C.V-ketel (merk: onbekend, bouwjaar: 2021);
- Eigen grond;
- Oplevering in overleg, kan snel;
- Project notaris van toepassing;
- Niet-zelf bewoningsclausule en as-is-where-is clausule van toepassing.

De Meetinstructie is gebaseerd op de NEN2580. De Meetinstructie is bedoeld om een meer eenduidige manier van meten toe te passen voor het geven van een indicatie van de gebruiksoppervlakte. De Meetinstructie sluit verschillen in meetuitkomsten niet volledig uit, door bijvoorbeeld interpretatieverschillen, afrondingen of beperkingen bij het uitvoeren van de meting.
Alle verstrekte informatie moet beschouwd worden als een uitnodiging tot het doen van een bod of om in onderhandeling te treden. Er kunnen geen rechten worden ontleend aan deze woninginformatie.

WIL JE EEN AFSPRAAK MAKEN OM DEZE WONING TE BEZICHTIGEN? JE MAG ONS BELLEN, MAILEN , APPEN OF LAAT EEN REACTIE ACHTER VIA DEZE SITE!

Lees meer

Kenmerken

Overdracht

Prijs per m2
€ 3.395
Aangeboden sinds
30 oktober 2025
Status
Beschikbaar
Aanvaarding
In overleg

Bouw

Soort woonhuis
Eengezinswoning, tussen woning
Soort bouw
Bestaande bouw
Bouwjaar
1915
Soort dak
Samengesteld dak
Staat van onderhouden binnen
Goed
Staat van onderhouden buiten
Goed

Oppervlakte en inhoud

Perceeloppervlakte
63 m2
Inhoud van de woning
309 m3
Oppervlakte overige inpandige ruimten
5 m2

Indeling

Aantal kamers
3
Aantal slaapkamers
2
Aantal woonlagen
3
Voorzieningen
Ventilatie, glasvezel, airconditioning

Buitenruimte

Balkon
Nee
Schuur/berging
Nee

Maandlasten berekenen

De maandlasten voor je woning bestaan uit meer dan alleen de hypotheeklasten. Hieronder vind je een overzicht van de bijkomende kosten en lasten. Zo weet je precies wat je huis per maand gaat kosten. En met de handige vergelijkers kun je ook nog eens snel de beste deals sluiten!

  • Kaart
  • Streetview