Westfrankelandsestraat 99 3117 AM Schiedam

158m2
Wonen
6
Kamers
98m2
Perceel
1928
Bouwjaar
Deze royale tussenwoning met maar liefst 158 m2 woonoppervlak en zonnige achtertuin is gelegen in Schiedam West.

De woning was vroeger verdeeld in een afzonderlijke beneden- en bovenwoning en zou daarom ook bijzonder geschikt kunnen zijn als kangoeroewoning of als werk- of praktijkruimte op de begane grond. Maar je kan het hele pand natuurlijk ook als woonhuis gebruiken.

Pluspunten van deze woning:
- keurig onderhouden
- 4 zonnepanelen (huur € 35 per maand)
- 4 slaapkamers
- 2 badkamers
- 2 keukens
- tuin gelegen op het Westen met berging en achterom
- eigen grond

De woning is centraal gelegen nabij openbaar vervoer en snelwegen. Voor de dagelijkse boodschappen kunt u terecht bij de buurtsuper. Het historisch centrum van Schiedam bevindt zich op 5 minuten fietsen. Hier vindt u het theater, winkels, restaurantjes en gezellige terrasjes. Kinderdagopvang, basisscholen en kinderspeelruimtes zijn in de directe omgeving aanwezig.

Zie jij wonen aan de Westfrankelandsestraat 99 helemaal zitten? Neem dan snel contact op met Moerman & de Jong Makelaars voor het maken van een afspraak!
Begane grond
Begane grond:
Entree, hal met trapopgang naar de 1e etage en toegang tot de (woon)kamer met open keuken en haard, de achterkamer / slaapkamer en de badkamer voorzien van douche, wastafelmeubel, toilet en wasmachine aansluiting. Zowel vanuit de achterkamer / slaapkamer als vanuit de badkamer is er toegang tot de achtertuin.
De (woon)kamer is zeer royaal, heeft aan de voorzijde een erker met glas in lood (boven)ramen en een moderne open keuken met ontbijtbar en inbouwapparatuur.

Tuin
De tuin is geheel betegeld en heeft een berging en achterom.

Eerste verdieping:
Overloop met toegang tot de badkamer en de woonkamer.
De woonkamer is heerlijk licht en ruim en aan de voorzijde bevindt zich de open keuken welke is voorzien van een aan twee zijden opgestelde keukeninrichting met inbouwapparatuur.
De badkamer is voorzien van een douche, wastafelmeubel, toilet en wasmachine aansluiting.
Het balkon is bereikbaar vanuit de woonkamer en de badkamer.

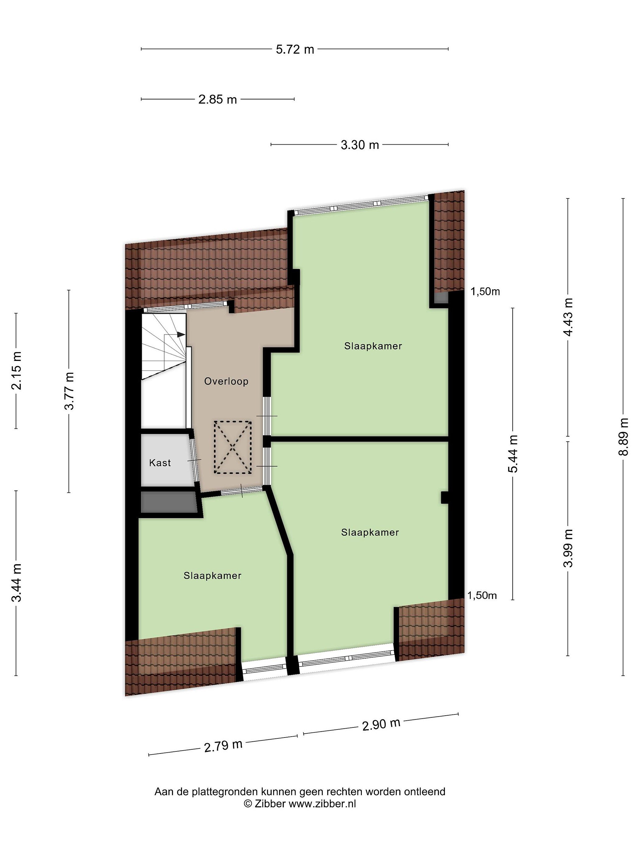
Tweede verdieping:
Ruime overloop met toegang tot drie slaapkamers en vaste kast met opstelling van de CV ketel.

Vliering
Via de overloop op de tweede verdieping is de vliering middels een Vlizotrap bereikbaar. De vliering is bijzonder ruim, heeft een dakraam, en dient als bergruimte.

Details
- 98 m2 eigen grond
- 158 m2 woonoppervlak
- Energielabel
- Geheel voorzien van dubbel glas
- Voorzien van vloerisolatie
- Keuken begane grond – 2018, 1e verdieping - 2020
- Badkamer begane grond – 2019, 1e verdieping – 2017
- CV ketel 2013
- Fundering op staal
- In opdracht van verkoper is een bouwkundige keuring uitgevoerd, het rapport kunt u inzien
- Bij deze woning (ouder dan 30 jaar) is de ouderdomsclausule van toepassing;
- Bij deze woning (gebouwd voor 1993) is de asbestclausule van toepassing.
- Voor de mogelijkheden mbt werk- of praktijkruimte verwijzen wij u naar het omgevingsloket

Biedlogboek
Vanaf 1 januari 2023 zijn makelaars wettelijk verplicht een biedlogboek bij te houden bij de verkoop van bestaande woningen (en wanneer de koper en/of de verkoper een particulier is). Biedingen kunt u per die datum, en indien gewenst, nog steeds mondeling met ons bespreken maar dient u daarna digitaal aan ons te bevestigen via Eerlijk Bieden.

Toelichtingsclausule BBMI/NEN2580
De meetinstructie is gebaseerd op de BBMI/NEN2580. De meetinstructie is bedoeld om een meer eenduidige manier van meten toe te passen voor het geven van een indicatie van de gebruiksoppervlakte. De meetinstructie sluit verschillen in meetuitkomsten niet volledig uit, door bijvoorbeeld interpretatieverschillen, afrondingen of beperkingen bij het uitvoeren van de meting.

Rechtsgeldige koopovereenkomst pas ná ondertekening
Een mondelinge overeenstemming tussen de particuliere verkoper en de particuliere koper is niet rechtsgeldig. Met andere woorden: er is geen koop. Er is pas sprake van een rechtsgeldige koop als de particuliere verkoper en de particuliere koper de koopovereenkomst hebben ondertekend. Dit vloeit voort uit artikel 7:2 Burgerlijk Wetboek. Een bevestiging van de mondelinge overeenstemming per e-mail of een toegestuurd concept van de koopovereenkomst wordt overigens niet gezien als een ‘ondertekende koopovereenkomst’.

Deze informatie is met zorg samengesteld, maar voor de juistheid ervan kan door Moerman & De Jong Makelaars geen aansprakelijkheid worden aanvaard, noch kan aan de vermelde gegevens enig recht worden ontleend. Nadrukkelijk is vermeld dat deze informatieverstrekking niet als een aanbieding of offerte mag worden beschouwd.

Lees meer

Kenmerken

Overdracht

Prijs per m2
€ 2.532
Aangeboden sinds
16 oktober 2025
Status
Beschikbaar
Aanvaarding
In overleg

Bouw

Soort woonhuis
Eengezinswoning, tussen woning
Soort bouw
Bestaande bouw
Bouwjaar
1928
Soort dak
Zadeldak
Staat van onderhouden binnen
Goed
Staat van onderhouden buiten
Goed

Oppervlakte en inhoud

Perceeloppervlakte
98 m2
Inhoud van de woning
570 m3
Oppervlakte externe bergruimte
6 m2

Indeling

Aantal kamers
6
Aantal slaapkamers
4
Aantal woonlagen
4
Voorzieningen
Tuin, balkon, schuur/berging

Buitenruimte

Balkon
Ja
Schuur/berging
Ja

Maandlasten berekenen

De maandlasten voor je woning bestaan uit meer dan alleen de hypotheeklasten. Hieronder vind je een overzicht van de bijkomende kosten en lasten. Zo weet je precies wat je huis per maand gaat kosten. En met de handige vergelijkers kun je ook nog eens snel de beste deals sluiten!

  • Kaart
  • Streetview