Verkocht

Kerklaan 66 3121 KE Schiedam

140m2
Wonen
4
Kamers
294m2
Perceel
1990
Bouwjaar
Een woning voor wie houdt van luxe, ruimte en zorgeloze duurzaamheid – klaar om zo te betrekken.

In de rustige en geliefde woonwijk Kethel staat een woning die alles in zich heeft om jarenlang met plezier te wonen. Kerklaan 66 is tot in detail afgewerkt, duurzaam gebouwd en voorzien van alle moderne gemakken die je mag verwachten van een huis van nu — en meer dan dat.

Wie hier binnenstapt, merkt het direct: dit is geen doorsnee woning. De combinatie van ruime opzet, strakke afwerking en licht in overvloed zorgt voor een aangename woonervaring. De begane grond is voorzien van vloerverwarming en een stijlvolle tegelvloer. De sfeervolle open haard maakt het geheel compleet.

De luxe woonkeuken, gerealiseerd in 2023, is een echte blikvanger: volledig uitgerust met onder andere een BORA kookplaat, Quooker, wijnklimaatkast, BORA oven en een ruime koel-/vriescombinatie. Perfect voor wie graag kookt, dineert of gewoon geniet van een mooi interieur.

Buiten is minstens zo goed nagedacht over comfort. De fraai aangelegde tuin gelegen aan het water biedt volop privacy en beschikt over twee uitnodigende overkappingen – één direct aan de woning en één vrijstaand achterin de tuin. Beide zijn vrijwel volledig afsluitbaar en voorzien van verstelbare lamellen op het dak, verlichting en verwarming, zodat je hier het hele jaar door kunt genieten.

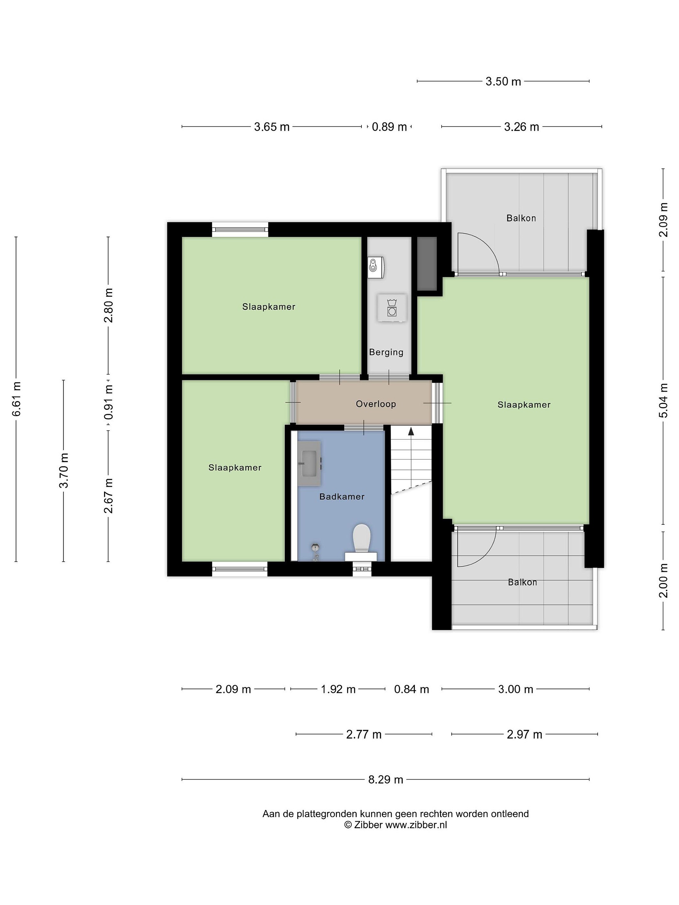
Op de eerste verdieping bevinden zich drie ruime slaapkamers en een stijlvolle badkamer met inloopdouche, vrijhangend toilet en brede wastafel. De opstelplaats voor wasmachine en droger en de CV ketel bevindt zich in een praktische bergruimte op de overloop. Aan beide zijden van het huis zijn dakterrassen gecreëerd: heerlijke plekken om buiten te zitten en van het uitzicht te genieten.

Duurzaam wonen is hier vanzelfsprekend. Met een warmtepomp, 15 zonnepanelen, vloerverwarming en een energielabel A+ bent u klaar voor de toekomst – energiezuinig en comfortabel tegelijk.

De woning staat op 294 m2 eigen grond en beschikt over een inpandige garage met toegang vanuit de woning (voorzien van elektrische deur, 2021) met daarvoor een oprit die ruimte biedt aan meerdere auto’s.

De locatie combineert rust met bereikbaarheid: natuurgebieden als Midden-Delfland en het Beatrixpark liggen om de hoek, winkelcentrum Hof van Spaland bevindt zich op loopafstand en de uitvalswegen brengen u in korte tijd naar Rotterdam of het centrum van Schiedam.
Details
Biedlogboek
Vanaf 1 januari 2023 zijn makelaars wettelijk verplicht een biedlogboek bij te houden bij de verkoop van bestaande woningen (en wanneer de koper en/of de verkoper een particulier is). Biedingen kunt u per die datum, en indien gewenst, nog steeds mondeling met ons bespreken maar dient u daarna digitaal aan ons te bevestigen via Eerlijk Bieden.

Toelichtingsclausule BBMI/NEN2580
De meetinstructie is gebaseerd op de BBMI/NEN2580. De meetinstructie is bedoeld om een meer eenduidige manier van meten toe te passen voor het geven van een indicatie van de gebruiksoppervlakte. De meetinstructie sluit verschillen in meetuitkomsten niet volledig uit, door bijvoorbeeld interpretatieverschillen, afrondingen of beperkingen bij het uitvoeren van de meting.

Rechtsgeldige koopovereenkomst pas ná ondertekening
Een mondelinge overeenstemming tussen de particuliere verkoper en de particuliere koper is niet rechtsgeldig. Met andere woorden: er is geen koop. Er is pas sprake van een rechtsgeldige koop als de particuliere verkoper en de particuliere koper de koopovereenkomst hebben ondertekend. Dit vloeit voort uit artikel 7:2 Burgerlijk Wetboek. Een bevestiging van de mondelinge overeenstemming per e-mail of een toegestuurd concept van de koopovereenkomst wordt overigens niet gezien als een ‘ondertekende koopovereenkomst’.

Deze informatie is met zorg samengesteld, maar voor de juistheid ervan kan door Moerman & De Jong Makelaars geen aansprakelijkheid worden aanvaard, noch kan aan de vermelde gegevens enig recht worden ontleend. Nadrukkelijk is vermeld dat deze informatieverstrekking niet als een aanbieding of offerte mag worden beschouwd.

Lees meer

Verkoopgeschiedenis

Aangeboden sinds
23 januari 2026
Verkoopdatum
27 maart 2026
Looptijd
2 maanden

Kenmerken

Overdracht

Prijs per m2
€ 5.357
Aangeboden sinds
23 januari 2026
Status
Verkocht
Aanvaarding
In overleg

Bouw

Soort woonhuis
Eengezinswoning, geschakelde woning
Soort bouw
Bestaande bouw
Bouwjaar
1990
Soort dak
Plat dak
Staat van onderhouden binnen
Goed
Staat van onderhouden buiten
Goed

Oppervlakte en inhoud

Perceeloppervlakte
294 m2
Inhoud van de woning
522 m3
Oppervlakte gebouwgebonden buitenruimten
30 m2
Oppervlakte overige inpandige ruimten
16 m2

Indeling

Aantal kamers
4
Aantal slaapkamers
3
Aantal woonlagen
2
Voorzieningen
Tuin, balkon, open haard, glasvezel, buitenzonwering

Buitenruimte

Balkon
Ja
Schuur/berging
Nee

Maandlasten berekenen

De maandlasten voor je woning bestaan uit meer dan alleen de hypotheeklasten. Hieronder vind je een overzicht van de bijkomende kosten en lasten. Zo weet je precies wat je huis per maand gaat kosten. En met de handige vergelijkers kun je ook nog eens snel de beste deals sluiten!

  • Kaart
  • Streetview