Verkocht

Kerklaan 10 3121 KD Schiedam

106m2
Wonen
5
Kamers
108m2
Perceel
1940
Bouwjaar
Sfeervol wonen in Oud Kethel

In het charmante Oud Kethel ligt deze karakteristieke twee-onder-een-kapwoning — een huis met sfeer en een warm dorps gevoel. Hier woon je rustig, met natuurgebied Midden-Delfland letterlijk om de hoek, terwijl ook het centrum van Schiedam en Rotterdam binnen handbereik zijn.

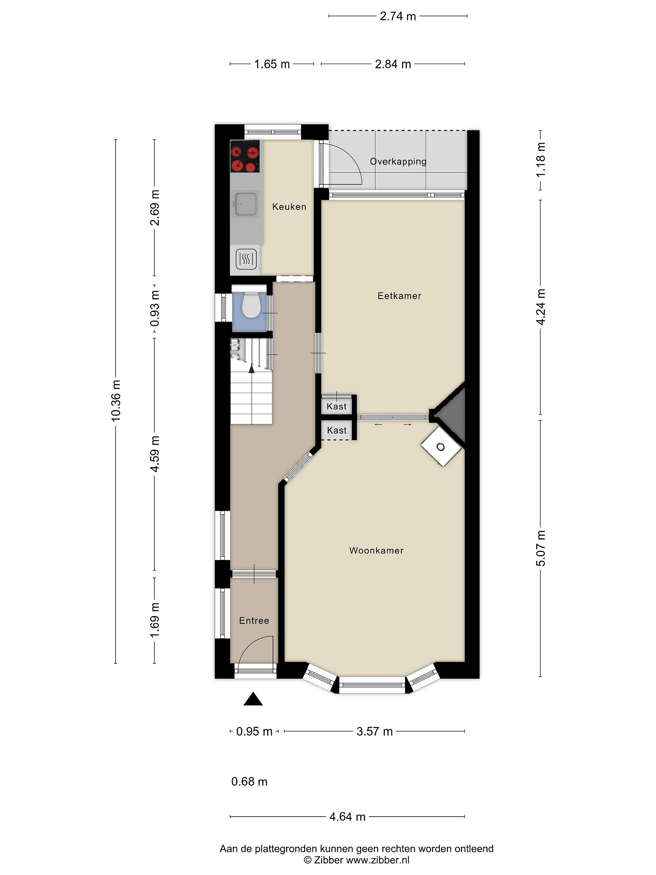
Bij het binnenkomen ervaar je meteen de warmte en charme van het huis — met glas-in-loodramen, paneeldeuren, een sfeervolle erker en een terrazzo vloer die het karakter van vroeger ademt. De en-suite met schuifdeuren in de woonkamer scheidt het sfeervolle zitgedeelte van de eetkamer aan de tuinzijde.

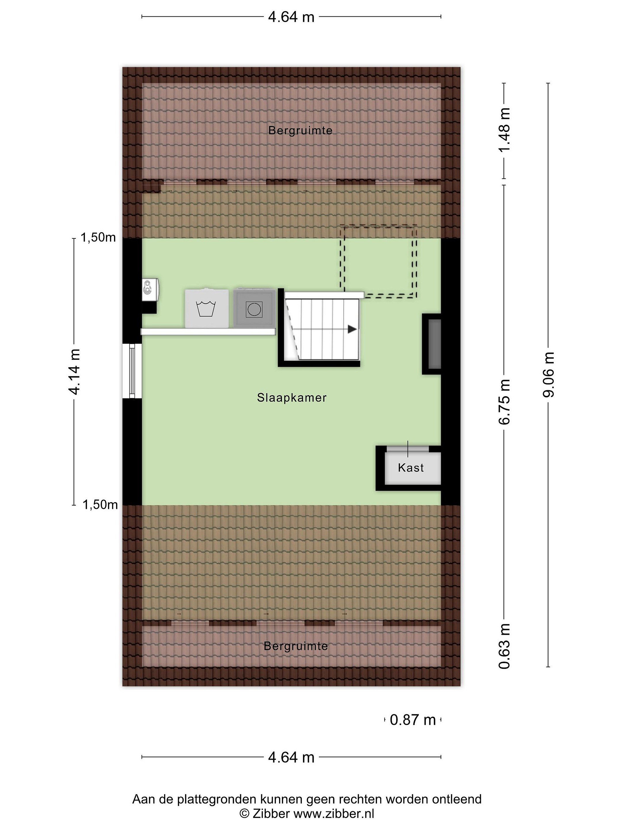
De keuken heeft een nette keukeninrichting en biedt toegang tot de zonnige achtertuin met berging en achterom. Op de eerste verdieping vind je drie slaapkamers, waarvan de achterkamer is voorzien van openslaande deuren naar het balkon. Een bergruimte tussen de kamers zorgt voor praktische opbergruimte. Op zolder is een royale open ruimte met aansluiting voor wasmachine en droger: perfect als vierde slaapkamer, werkkamer of speelzolder. Achter de knieschotten is volop extra bergruimte.

Hoewel de woning op sommige punten wat liefde en modernisering vraagt, is de basis over het algemeen goed onderhouden — met o.a. isolatie, dubbel glas en zonnepanelen.

Kortom: een huis met karakter en potentie, op een heerlijke plek waar kinderen nog buiten spelen en buren elkaar kennen.
Details
- Bouwjaar 1940
- Woonoppervlak 106 m2
- Perceeloppervlak 108 m2
- Energielabel B
- Zonnepanelen, vloerisolatie, gevelisolatie, dakisolatie, dubbel glas
- In opdracht van verkoper is een bouwkundige keuring uitgevoerd, het rapport is ter inzage
- Ouderdoms- asbest en niet zelfbewoningsclausule van toepassing
- Oplevering kan op korte termijn

Biedlogboek
Vanaf 1 januari 2023 zijn makelaars wettelijk verplicht een biedlogboek bij te houden bij de verkoop van bestaande woningen (en wanneer de koper en/of de verkoper een particulier is). Biedingen kunt u per die datum, en indien gewenst, nog steeds mondeling met ons bespreken maar dient u daarna digitaal aan ons te bevestigen via Eerlijk Bieden.

Toelichtingsclausule BBMI/NEN2580
De meetinstructie is gebaseerd op de BBMI/NEN2580. De meetinstructie is bedoeld om een meer eenduidige manier van meten toe te passen voor het geven van een indicatie van de gebruiksoppervlakte. De meetinstructie sluit verschillen in meetuitkomsten niet volledig uit, door bijvoorbeeld interpretatieverschillen, afrondingen of beperkingen bij het uitvoeren van de meting.

Rechtsgeldige koopovereenkomst pas ná ondertekening
Een mondelinge overeenstemming tussen de particuliere verkoper en de particuliere koper is niet rechtsgeldig. Met andere woorden: er is geen koop. Er is pas sprake van een rechtsgeldige koop als de particuliere verkoper en de particuliere koper de koopovereenkomst hebben ondertekend. Dit vloeit voort uit artikel 7:2 Burgerlijk Wetboek. Een bevestiging van de mondelinge overeenstemming per e-mail of een toegestuurd concept van de koopovereenkomst wordt overigens niet gezien als een ‘ondertekende koopovereenkomst’.

Deze informatie is met zorg samengesteld, maar voor de juistheid ervan kan door Moerman & De Jong Makelaars geen aansprakelijkheid worden aanvaard, noch kan aan de vermelde gegevens enig recht worden ontleend. Nadrukkelijk is vermeld dat deze informatieverstrekking niet als een aanbieding of offerte mag worden beschouwd.


Lees meer

Verkoopgeschiedenis

Aangeboden sinds
17 maart 2026
Verkoopdatum
24 april 2026
Looptijd
één maand

Kenmerken

Overdracht

Prijs per m2
€ 4.481
Aangeboden sinds
17 maart 2026
Status
Verkocht
Aanvaarding
In overleg

Bouw

Soort woonhuis
Eengezinswoning, twee-onder-een-kap woning
Soort bouw
Bestaande bouw
Bouwjaar
1940
Soort dak
Zadeldak
Staat van onderhouden binnen
Goed
Staat van onderhouden buiten
Goed

Oppervlakte en inhoud

Perceeloppervlakte
108 m2
Inhoud van de woning
374 m3
Oppervlakte externe bergruimte
5 m2

Indeling

Aantal kamers
5
Aantal slaapkamers
4
Aantal woonlagen
3
Voorzieningen
Tuin, balkon, schuur/berging

Buitenruimte

Balkon
Ja
Schuur/berging
Ja

Maandlasten berekenen

De maandlasten voor je woning bestaan uit meer dan alleen de hypotheeklasten. Hieronder vind je een overzicht van de bijkomende kosten en lasten. Zo weet je precies wat je huis per maand gaat kosten. En met de handige vergelijkers kun je ook nog eens snel de beste deals sluiten!

  • Kaart
  • Streetview