Joop den Uyllaan 110 3119 VH Schiedam

146m2
Wonen
4
Kamers
100m2
Perceel
2002
Bouwjaar
Op een steenworp afstand van het centrum van Schiedam staat deze ruime en uitstekend onderhouden eengezinswoning met een woonoppervlak van 146 m2.

Wat deze woning extra aantrekkelijk maakt: ze is gelegen op EIGEN GROND, volledig geïsoleerd en voorzien van maar liefst 11 zonnepanelen. Dat betekent lage energielasten en direct wooncomfort in een duurzaam huis met energielabel A.

De woning beschikt over een lichte woonkamer met vide, een royale woonkeuken, drie slaapkamers (het is mogelijk een vierde slaapkamer te creëren), een nette badkamer, een balkon, een inpandige berging/bijkeuken en een fijne achtertuin met achterom. Daarbij profiteert u van een eigen parkeerplaats direct voor de woning.

Centrale ligging nabij het centrum, groenvoorzieningen en park, scholen, kinderdagverblijven, openbaar vervoer en uitvalswegen richting Rotterdam, Delft en Den Haag.

Zie jij wonen aan de Joop den Uyllaan 110 helemaal zitten? Neem dan snel contact op met Moerman & de Jong Makelaars voor het maken van een afspraak!
Begane grond
Begane grond
Entree met ruime hal, trap naar de eerste verdieping, toilet en meterkast. Vanuit de hal is er toegang tot de royale inpandige berging/bijkeuken, die ook vanaf straatzijde toegankelijk is. De woonkeuken is ingericht met een moderne keukenopstelling (2020) voorzien van diverse inbouwapparatuur: vaatwasser, afzuigkap, inductiekookplaat, koelkast en oven. Vanuit de keuken bereikt u zowel de achtertuin als via een trap de eerste verdieping. De achtertuin is gelegen op het noorden en beschikt over een achterom.

Eerste verdieping
De eerste verdieping is bereikbaar via zowel de hal als de woonkeuken. Hier bevindt zich de ruime en lichte woonkamer met vide en openslaande deuren naar een zonnig balkon op het zuiden met groot zonnescherm. U geniet hier van een vrij uitzicht over molens, groen en water.

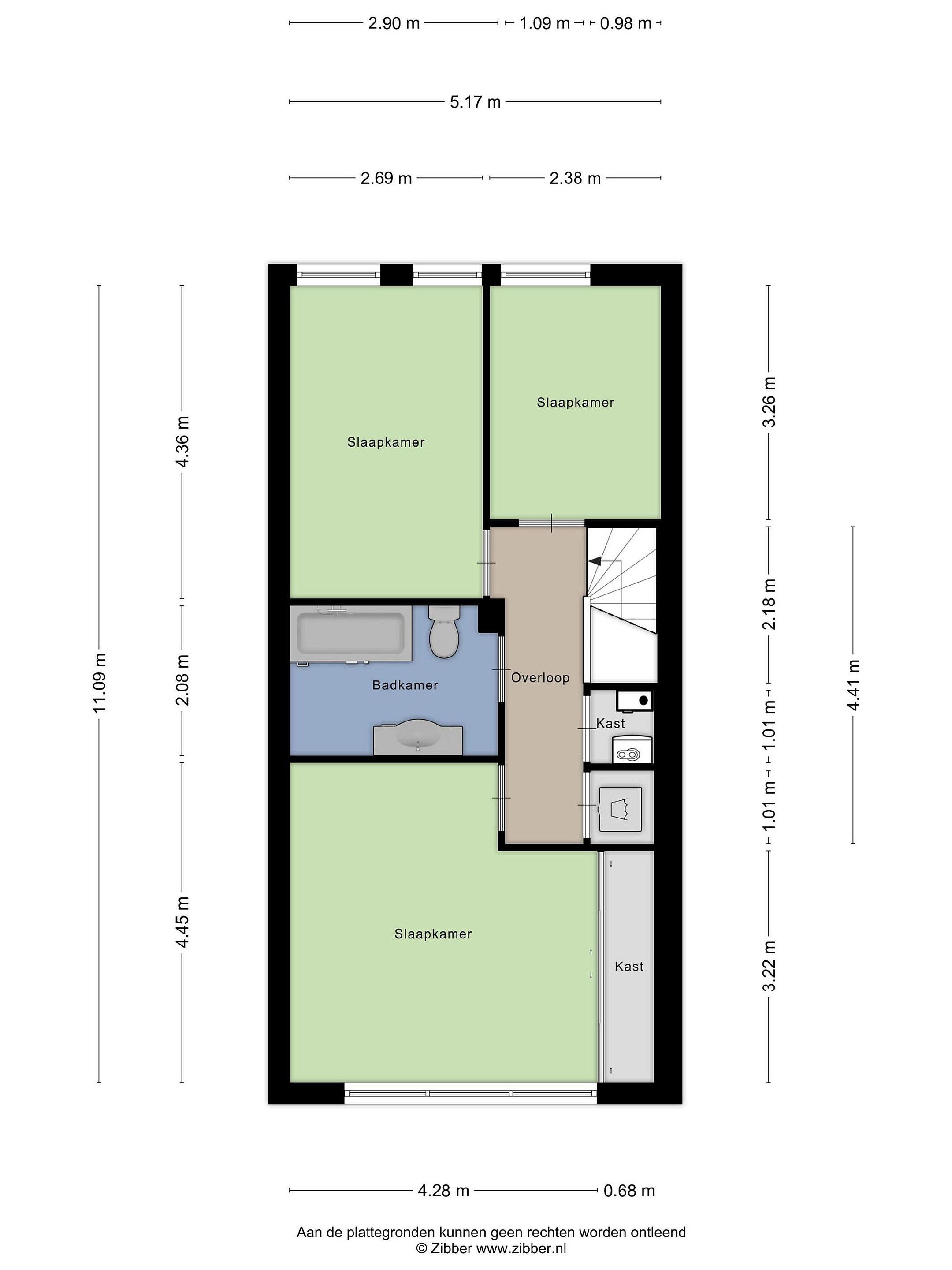
Tweede verdieping
Overloop met twee vaste kasten (wasmachineaansluiting en CV-opstelling, ketel uit 2022) en toegang tot drie slaapkamers en de badkamer. De volledig betegelde badkamer is voorzien van een toilet, ligbad en wastafelmeubel.

Details
- Gelegen op eigen grond
- Volledig geïsoleerd, energielabel A
- 11 zonnepanelen
- Eigen parkeerplaats voor de woning
- Keuken vernieuwd in 2020
- CV-ketel uit 2022
- Schilderwerk 2024/2025
- Zonnescherm aan de voorzijde op de 1e verdieping
- Bouwjaar 2002

Biedlogboek Vanaf 1 januari 2023 zijn makelaars wettelijk verplicht een biedlogboek bij te houden bij de verkoop van bestaande woningen (en wanneer de koper en/of de verkoper een particulier is). Biedingen kunt u per die datum, en indien gewenst, nog steeds mondeling met ons bespreken maar dient u daarna digitaal aan ons te bevestigen via Eerlijk Bieden. Toelichtingsclausule BBMI/NEN2580 De meetinstructie is gebaseerd op de BBMI/NEN2580. De meetinstructie is bedoeld om een meer eenduidige manier van meten toe te passen voor het geven van een indicatie van de gebruiksoppervlakte. De meetinstructie sluit verschillen in meetuitkomsten niet volledig uit, door bijvoorbeeld interpretatieverschillen, afrondingen of beperkingen bij het uitvoeren van de meting.

Rechtsgeldige koopovereenkomst pas ná ondertekening
Een mondelinge overeenstemming tussen de particuliere verkoper en de particuliere koper is niet rechtsgeldig. Met andere woorden: er is geen koop. Er is pas sprake van een rechtsgeldige koop als de particuliere verkoper en de particuliere koper de koopovereenkomst hebben ondertekend. Dit vloeit voort uit artikel 7:2 Burgerlijk Wetboek. Een bevestiging van de mondelinge overeenstemming per e-mail of een toegestuurd concept van de koopovereenkomst wordt overigens niet gezien als een ‘ondertekende koopovereenkomst’.

Deze informatie is met zorg samengesteld, maar voor de juistheid ervan kan door Moerman & De Jong Makelaars geen aansprakelijkheid worden aanvaard, noch kan aan de vermelde gegevens enig recht worden ontleend. Nadrukkelijk is vermeld dat deze informatieverstrekking niet als een aanbieding of offerte mag worden beschouwd.




Lees meer

Kenmerken

Overdracht

Prijs per m2
€ 3.938
Aangeboden sinds
9 september 2025
Status
Beschikbaar
Aanvaarding
In overleg

Bouw

Soort woonhuis
Eengezinswoning, tussen woning
Soort bouw
Bestaande bouw
Bouwjaar
2002
Soort dak
Plat dak
Staat van onderhouden binnen
Goed
Staat van onderhouden buiten
Goed

Oppervlakte en inhoud

Perceeloppervlakte
100 m2
Inhoud van de woning
515 m3
Oppervlakte gebouwgebonden buitenruimten
14 m2

Indeling

Aantal kamers
4
Aantal slaapkamers
3
Aantal woonlagen
3
Voorzieningen
Tuin, balkon, glasvezel

Buitenruimte

Balkon
Ja
Schuur/berging
Nee

Maandlasten berekenen

De maandlasten voor je woning bestaan uit meer dan alleen de hypotheeklasten. Hieronder vind je een overzicht van de bijkomende kosten en lasten. Zo weet je precies wat je huis per maand gaat kosten. En met de handige vergelijkers kun je ook nog eens snel de beste deals sluiten!

  • Kaart
  • Streetview