Hoogstraat 169 3111 HG Schiedam

87m2
Wonen
3
Kamers
80m2
Perceel
1906
Bouwjaar
Karakteristiek pand met veel potentie, gelegen in het sfeervolle hart van Schiedam.

Dit bijzondere pand biedt een woonoppervlak van 87 m2 en nog eens 41 m2 aan overige inpandige ruimte. Het ligt aan de levendige Hoogstraat, midden in het historische stadscentrum. De begane grond is verrassend ruim en multifunctioneel — ideaal als winkel-, werk- óf leefruimte.

De toegevoegde artist impressions (foto 3 en 5) laten goed zien hoe de begane grond kan worden omgevormd tot een sfeervolle woonruimte. Daarmee biedt dit pand de unieke mogelijkheid om of geheel als woning te worden gebruikt óf wonen en werken te combineren.

Hoewel het pand onderhoud vraagt, geeft dit toekomstige bewoners juist de kans om het geheel naar eigen smaak en inzicht te moderniseren.

Ligging en bereikbaarheid
De ligging is uitstekend: midden tussen winkels, horeca en culturele voorzieningen. Openbaar vervoer en uitvalswegen naar Rotterdam, Den Haag en Delft liggen
binnen handbereik.

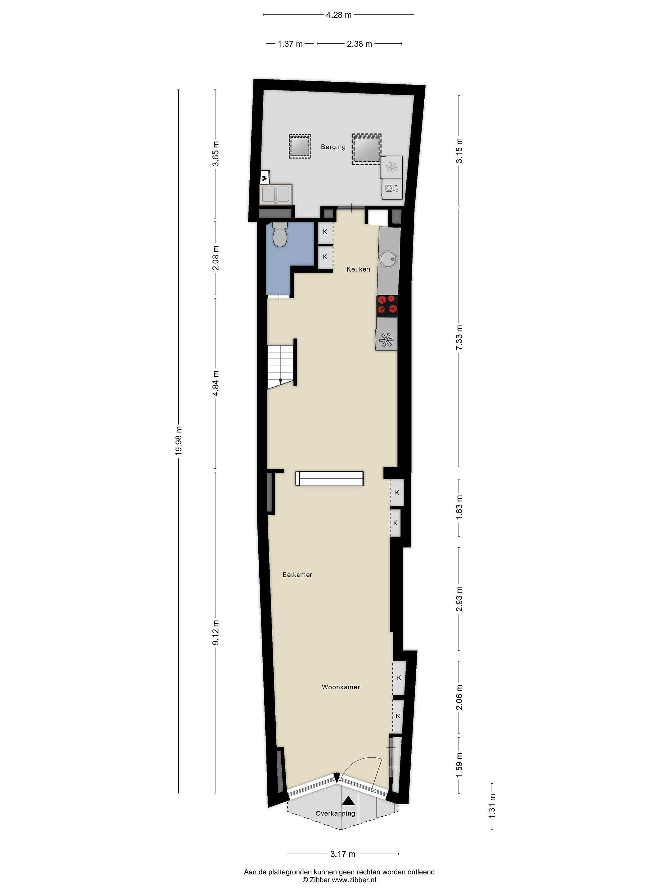
Begane grond
Begane grond:
Entree, ruime multifunctionele ruimte met verschillende hoogtes, achterin een keuken, toilet en bergruimte.
Eerste verdieping: Overloop met toegang tot een kamer met dakraam; vanuit deze kamer toegang tot de badkamer voorzien van toilet, ligbad en wastafel.

Tweede verdieping:
Woonkamer met open keuken en toegang tot het platte dak.


Details
- Woonoppervlakte: 87 m2
- Overige inpandige ruimte: 41 m2
- Perceeloppervlakte: 80 m2
- Gelegen binnen beschermd stadsgezicht
- Gemengde bestemming
- Eigen grond
- Bouwkundig rapport ter inzage
- Niet-zelfbewoningsclausule en “as is where is”-clausule van toepassing

Biedlogboek
Vanaf 1 januari 2023 zijn makelaars wettelijk verplicht een biedlogboek bij te houden bij de verkoop van bestaande woningen (en wanneer de koper en/of de verkoper een particulier is). Biedingen kunt u per die datum, en indien gewenst, nog steeds mondeling met ons bespreken maar dient u daarna digitaal aan ons te bevestigen via Eerlijk Bieden.

Toelichtingsclausule BBMI/NEN2580
De meetinstructie is gebaseerd op de BBMI/NEN2580. De meetinstructie is bedoeld om een meer eenduidige manier van meten toe te passen voor het geven van een indicatie van de gebruiksoppervlakte. De meetinstructie sluit verschillen in meetuitkomsten niet volledig uit, door bijvoorbeeld interpretatieverschillen, afrondingen of beperkingen bij het uitvoeren van de meting.

Rechtsgeldige koopovereenkomst pas ná ondertekening
Een mondelinge overeenstemming tussen de particuliere verkoper en de particuliere koper is niet rechtsgeldig. Met andere woorden: er is geen koop. Er is pas sprake van een rechtsgeldige koop als de particuliere verkoper en de particuliere koper de koopovereenkomst hebben ondertekend. Dit vloeit voort uit artikel 7:2 Burgerlijk Wetboek. Een bevestiging van de mondelinge overeenstemming per e-mail of een toegestuurd concept van de koopovereenkomst wordt overigens niet gezien als een ‘ondertekende koopovereenkomst’.

Deze informatie is met zorg samengesteld, maar voor de juistheid ervan kan door Moerman & De Jong Makelaars geen aansprakelijkheid worden aanvaard, noch kan aan de vermelde gegevens enig recht worden ontleend. Nadrukkelijk is vermeld dat deze informatieverstrekking niet als een aanbieding of offerte mag worden beschouwd.

Lees meer

Kenmerken

Overdracht

Prijs per m2
€ 3.448
Aangeboden sinds
2 maart 2026
Status
Beschikbaar
Aanvaarding
In overleg

Bouw

Soort woonhuis
Eengezinswoning, tussen woning
Soort bouw
Bestaande bouw
Bouwjaar
1906
Soort dak
Samengesteld dak
Staat van onderhouden binnen
Redelijk
Staat van onderhouden buiten
Redelijk

Oppervlakte en inhoud

Perceeloppervlakte
80 m2
Inhoud van de woning
453 m3
Oppervlakte overige inpandige ruimten
41 m2

Indeling

Aantal kamers
3
Aantal slaapkamers
1
Aantal woonlagen
3
Voorzieningen

Buitenruimte

Balkon
Nee
Schuur/berging
Nee

Maandlasten berekenen

De maandlasten voor je woning bestaan uit meer dan alleen de hypotheeklasten. Hieronder vind je een overzicht van de bijkomende kosten en lasten. Zo weet je precies wat je huis per maand gaat kosten. En met de handige vergelijkers kun je ook nog eens snel de beste deals sluiten!

  • Kaart
  • Streetview