Laan van Vredestein 21 2552 DT 's-Gravenhage

120m2
Wonen
4
Kamers
146m2
Perceel
1988
Bouwjaar
Deze gemoderniseerde en instapklare eengezinswoning combineert comfort, ruimte en een unieke ligging aan het water. De woning beschikt over een royale voortuin, een zonnige op zuidoosten gelegen achtertuin met eigen vlonder aan het water en een lichte woonkamer met originele serre en glazen dak, wat zorgt voor een zee aan daglicht. Parkeren kan op eigen terrein en daarnaast is er een parkeergarage/box direct tegenover de woning. Verder is de woning voorzien van een moderne open keuken met inbouwapparatuur, verzorgd sanitair en een praktische bijkeuken – een compleet en sfeervol thuis op een fijne locatie

________________________________________
OMGEVING
De woning is gelegen aan de Laan van Vredestein in de wijk Houtwijk (Loosduinen), een rustige en kindvriendelijke woonomgeving. Op loopafstand bevindt zich een kleinschalig winkelcentrum met een gevarieerd aanbod voor de dagelijkse boodschappen. In de directe omgeving is veel groen aanwezig, met diverse parken zoals ’t Kleine Hout, het Florence Nightingalepark en het Bokkefortpark. Het strand van Kijkduin ligt op circa 15 minuten fietsen.

________________________________________
INDELING
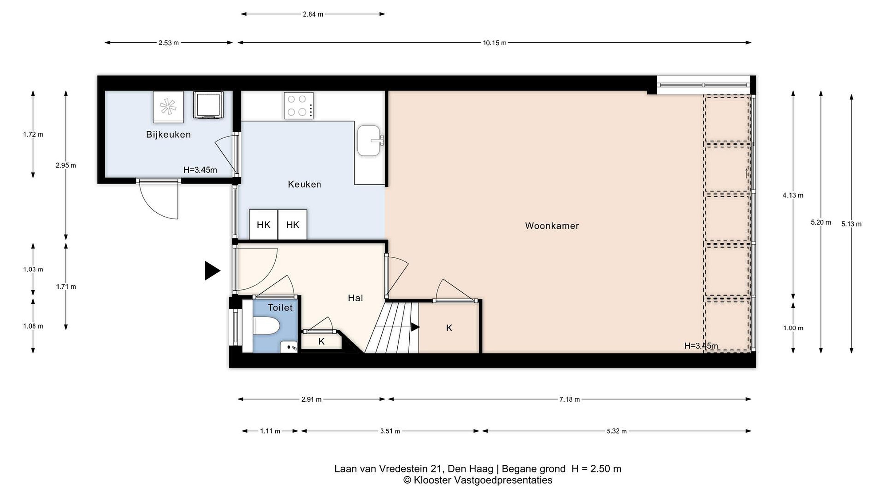
Begane grond
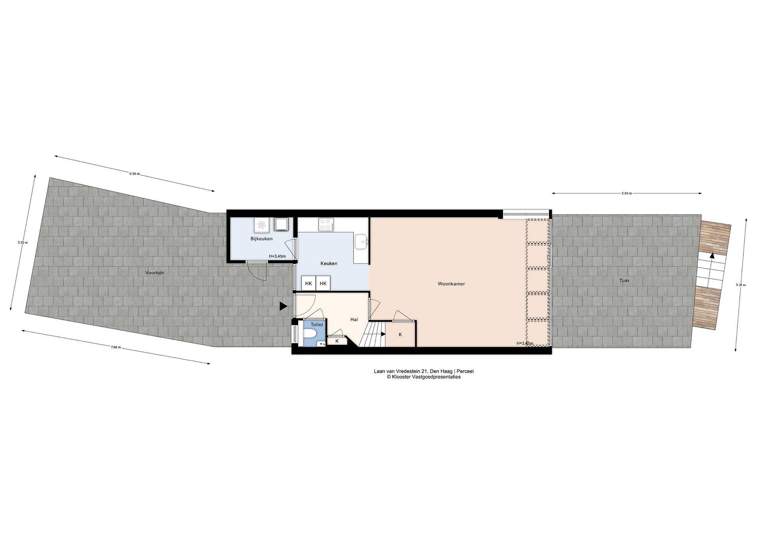
Voortuin met parkeergelegenheid op eigen terrein. Entree van de woning met hal, meterkast en modern toilet voorzien van een zwevend closet en fonteintje.
De open keuken heeft een moderne, rustige uitstraling en staat in directe verbinding met de woonkamer. De keuken is praktisch ingedeeld en voorzien van diverse inbouwapparatuur en veel werk- en opbergruimte. Aansluitend bevindt zich de bijkeuken met opstelplaats voor wasmachine en droger.
De ruime woonkamer is heerlijk licht dankzij de grote raampartijen en de originele serre met glazen dak. De warme afwerking, houttinten en groene accentwand zorgen voor een gezellige en uitnodigende sfeer. Via de openslaande deuren is er direct toegang tot de achtertuin, waardoor binnen en buiten naadloos in elkaar overlopen.
De zonnige achtertuin beschikt over een ruim terras, biedt veel privacy en ligt direct aan het water met een eigen vlonder – een heerlijke plek om te ontspannen en van het buitenleven te genieten.
________________________________________
Eerste verdieping
Overloop. Aan de achterzijde bevindt zich een lichte en ruime slaapkamer. De moderne badkamer is sfeervol en licht dankzij het dakraam en de rustige kleurstelling. De badkamer is voorzien van een comfortabele inloopdouche met glazen wand, een zwevend toilet en een stijlvol wastafelmeubel met spiegelkast. De nette afwerking en tijdloze materialen maken dit een prettige ruimte om de dag te beginnen of af te sluiten.
Aan de voorzijde bevindt zich een tweede slaapkamer met een dubbel dakraam, wat zorgt voor veel natuurlijk licht.
________________________________________
Tweede verdieping
De royale zolderkamer is licht en veelzijdig, met een prettige plafondhoogte en meerdere dakramen. Een rustige ruimte die uitstekend geschikt is als extra slaapkamer, werkruimte of hobbykamer.

Parkeergarage (seperaat):
Aan de overzijde van de woning bevindt zich de parkeergarage/box. De garage heeft een oppervlakte van circa 16 m2 en is voorzien van een vliering, wat zorgt voor extra praktische bergruimte. Voorzien van elektra met een eigen meter.

BIJZONDERHEDEN
- Gelegen op eigen grond;
- 10 zonnepanelen;
- Volledig voorzien van dubbel glas;
- Parkeergelegenheid op eigen terrein voor twee auto’s;
- Parkeergarage/box separaat te koop voor € 45.000,- kosten koper;
- Zonnige achtertuin aan het water met veel privacy;
- Verwarming middels HR-CV-ketel Remeha Avanta 2024;
- Close-in boiler Daalderop 2019:
- Goede bereikbaarheid met het openbaar vervoer: buslijnen 21, 26, 31, 456 en N3 en tramlijn 2;
- Bijdrage voor vrijwillige vve garage € 22,50 per jaar;
- Verkoopvoorwaarden, clausules en biedingen verlopen via Eerlijk Bieden.
Lees meer

Kenmerken

Overdracht

Prijs per m2
€ 4.780
Aangeboden sinds
30 januari 2026
Status
Beschikbaar
Aanvaarding
In overleg

Bouw

Soort woonhuis
Eengezinswoning, tussen woning
Soort bouw
Bestaande bouw
Bouwjaar
1988
Soort dak
Zadeldak
Staat van onderhouden binnen
Goed
Staat van onderhouden buiten
Goed

Oppervlakte en inhoud

Perceeloppervlakte
146 m2
Inhoud van de woning
380 m3
Oppervlakte externe bergruimte
26 m2
Oppervlakte overige inpandige ruimten
5 m2

Indeling

Aantal kamers
4
Aantal slaapkamers
3
Aantal woonlagen
3
Voorzieningen
Tuin, kabel-tv, dakraam

Buitenruimte

Balkon
Nee
Schuur/berging
Nee

Maandlasten berekenen

De maandlasten voor je woning bestaan uit meer dan alleen de hypotheeklasten. Hieronder vind je een overzicht van de bijkomende kosten en lasten. Zo weet je precies wat je huis per maand gaat kosten. En met de handige vergelijkers kun je ook nog eens snel de beste deals sluiten!

  • Kaart
  • Streetview