Verkocht OV

Dassenrade 138 2544 MH 's-Gravenhage

138m2
Wonen
5
Kamers
106m2
Perceel
2008
Bouwjaar
Ruime 5-kamer gezinswoning 138 m2 met zonnige tuin, berging & veel licht


Ben je op zoek naar een modern familiehuis met een grote tuin, drie goede slaapkamers en een royale zolderverdieping? Dassenrade 138 biedt het allemaal. Je woont hier in stadsdeel Bouwlust en Vrederust in een jonge, groene woonomgeving met water, speeltuinen en buurtwinkels om de hoek. Winkellocaties als Stede, Leyweg en de centra van Wateringse Veld liggen dichtbij, net als scholen en OV; met de auto zit je zo op de A4/A12/A13 en sta je in ca. 15 minuten op Kijkduin of in het centrum.


Bijzonderheden
- Woonoppervlakte 138 m2
- Perceel 106 m2
- Bouwjaar 2008, moderne isolatie en dubbel glas
- Erfpacht: eeuwigdurend, canon afgekocht
- Zonnige achtertuin met berging
- Parkeren in de straat
- Cv-ketel 2008
- Oplevering in overleg


Locatie & bereikbaarheid
- Dagelijkse voorzieningen, basisscholen, sport en groen op loop/fietsafstand
- Winkelgebieden Leyweg en Wateringse Veld snel bereikbaar
- OV in de buurt met directe verbindingen richting centrum, HS/CS en strand
- Auto: snelle aansluiting op A4/A12/A13

Interesse? Plan direct je bezichtiging.

Dit is zo’n huis waar je direct in kunt: licht, ruim en praktisch met een fijne tuin voor de kids of borrels met vrienden.

Aan deze presentatie kunnen geen rechten worden ontleend.
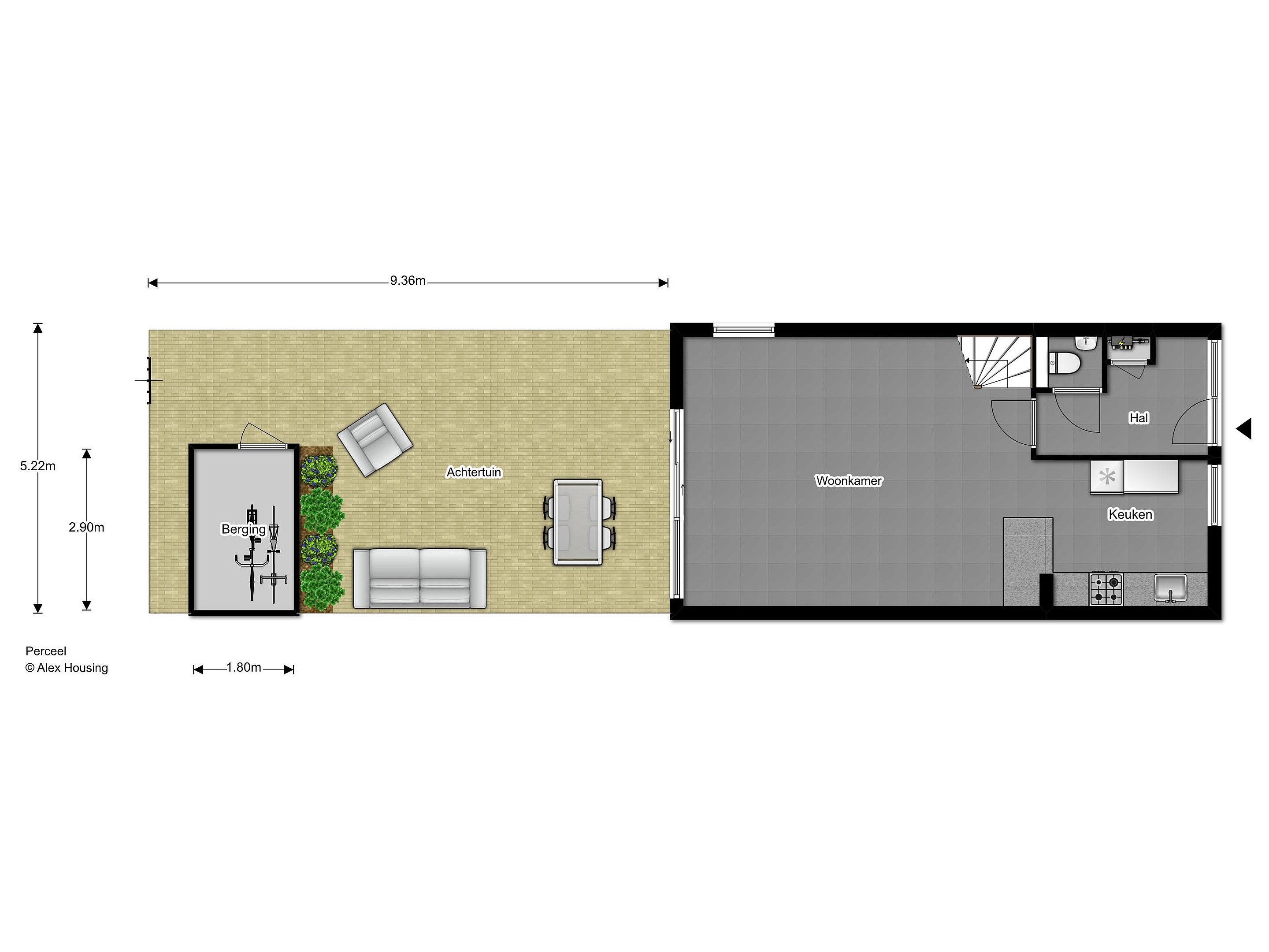
Begane grond
Begane grond
Entree met hal, meterkast en modern toilet met fontein. Aan de voorzijde de open keuken met o.a. 6-pits fornuis, oven/magnetron, afzuigkap en koel-vries. Tuingerichte woonkamer (ca. 6.23 × 4.85 m) met brede schuifpui naar de achtertuin. Achtertuin (ca. 9.36 × 5.22 m) verzorgd, met vrijstaande berging (ca. 2.90 × 1.80 m) en achterom.

Eerste verdieping
Overloop, 3 slaapkamers (waarvan één met Frans balkon) en een volledig betegelde badkamer met inloopdouche, wastafelmeubel en tweede toilet.

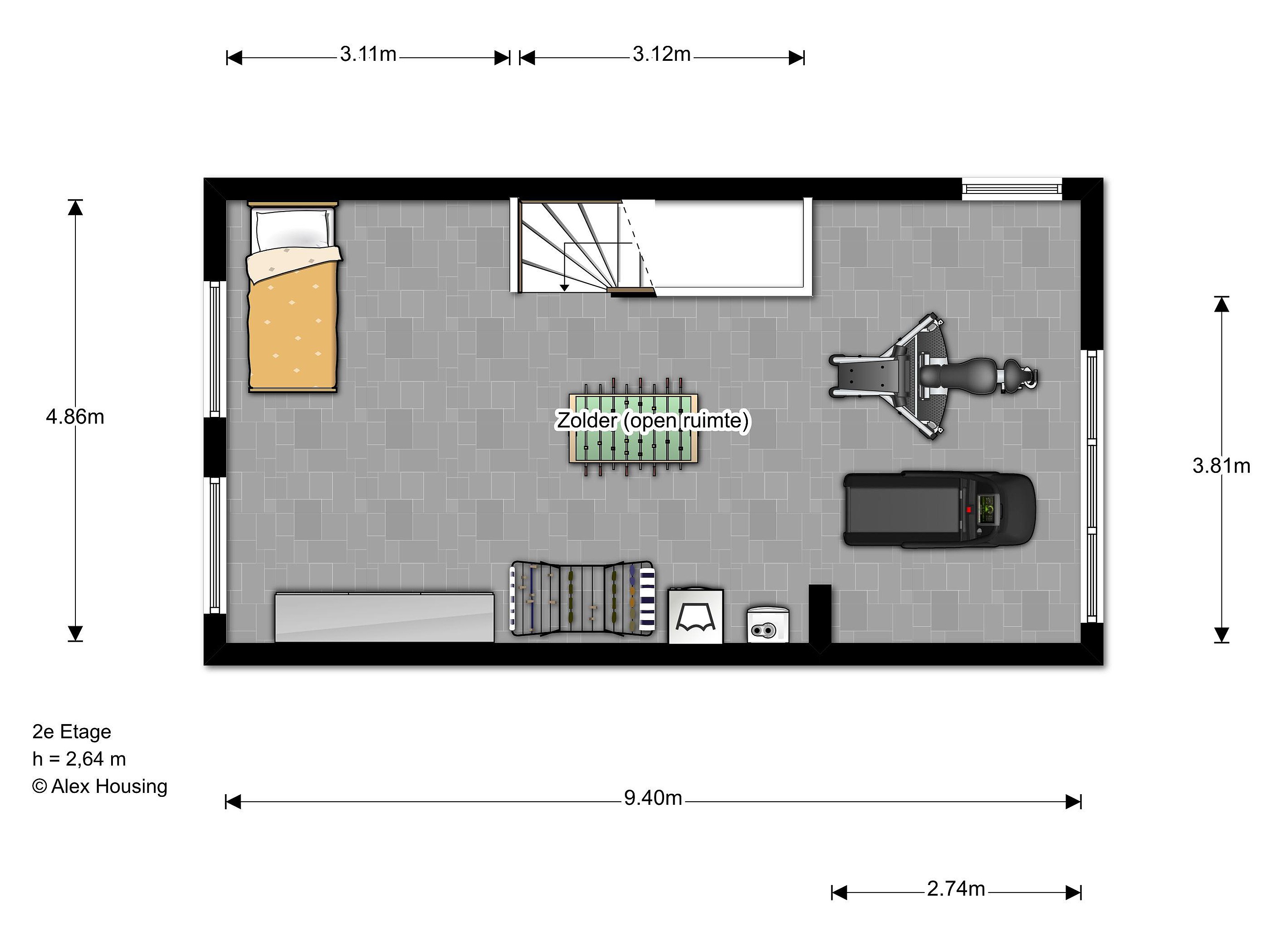
Tweede verdieping
Grote open zolderkamer (ca. 9.40 × 4.85 m), hier vind je de was-/drogeraansluiting, cv-opstelplaats en mechanische ventilatie. Desgewenst eenvoudig te splitsen in extra (slaap)kamer(s).

Lees meer

Kenmerken

Overdracht

Prijs per m2
€ 4.123
Aangeboden sinds
5 september 2025
Status
Verkocht onder voorbehoud
Aanvaarding
In overleg

Bouw

Soort woonhuis
Eengezinswoning, eind woning
Soort bouw
Bestaande bouw
Bouwjaar
2008
Soort dak
Plat dak
Staat van onderhouden binnen
Uitstekend
Staat van onderhouden buiten
Uitstekend

Oppervlakte en inhoud

Perceeloppervlakte
106 m2
Inhoud van de woning
406 m3
Oppervlakte externe bergruimte
5 m2

Indeling

Aantal kamers
5
Aantal slaapkamers
4
Aantal woonlagen
3
Voorzieningen
Tuin

Buitenruimte

Balkon
Nee
Schuur/berging
Nee

Maandlasten berekenen

De maandlasten voor je woning bestaan uit meer dan alleen de hypotheeklasten. Hieronder vind je een overzicht van de bijkomende kosten en lasten. Zo weet je precies wat je huis per maand gaat kosten. En met de handige vergelijkers kun je ook nog eens snel de beste deals sluiten!

  • Kaart
  • Streetview