Beekjufferhof 1 2492 RD 's-Gravenhage

189m2
Wonen
6
Kamers
281m2
Perceel
2002
Bouwjaar
Welkom aan de groene rand van Leidschenveen, waar je deze stijlvolle, moderne en verrassend ruime twee-onder-een-kapwoning (ca. 189 m2 woonoppervlakte) vindt. Deze fijne gezinswoning beschikt over een luxe woonkeuken, vier royale slaapkamers met mogelijkheid tot een vijfde, een zeer ruime garage, een oprit voor twee auto’s en een heerlijke achtertuin met volop privacy.

De woning ligt in een van de meest geliefde delen van Leidschenveen, aan een autoluwe straat met veel groen, speelplekken en een voetbalveld om de hoek. Bovendien wandel je zó naar het prachtige recreatiegebied Nieuwe Driemanspolder — perfect voor natuurliefhebbers. Scholen, kinderopvang, winkelcentrum Leidschenveen, station RandstadRail én diverse uitvalswegen liggen allemaal op slechts enkele minuten afstand.

Licht, ruimte en comfort op de begane grond
Via de beschutte voortuin met ruime oprit betreed je de woning. De hal is uitnodigend en ruim, met garderobe, meterkast en een modern toilet met fonteintje.
De lichte, tuingerichte woonkamer aan de voorzijde biedt volop leefruimte en sluit naadloos aan op de uitgebouwde woonkeuken — een echte eyecatcher. Hier kook je in stijl dankzij de witte hoogglans kasten, granieten werkbladen en hoogwaardige inbouwapparatuur: een flexibele inductiekookplaat, afzuigkap, vaatwasser, Quooker, oven, magnetron, ingebouwd koffiezetapparaat, koelkast, separate vrieskast en een spoelbak.

Vanuit de keuken schuif je zo de heerlijke achtertuin in via de grote schuifpui. De achtertuin biedt veel privacy en heeft een handige achterom. De vrijstaande stenen garage is voorzien van elektra en biedt ruimte voor opslag, een werkbank of je tweede auto. De gehele begane grond is afgewerkt met een nette plavuizenvloer.

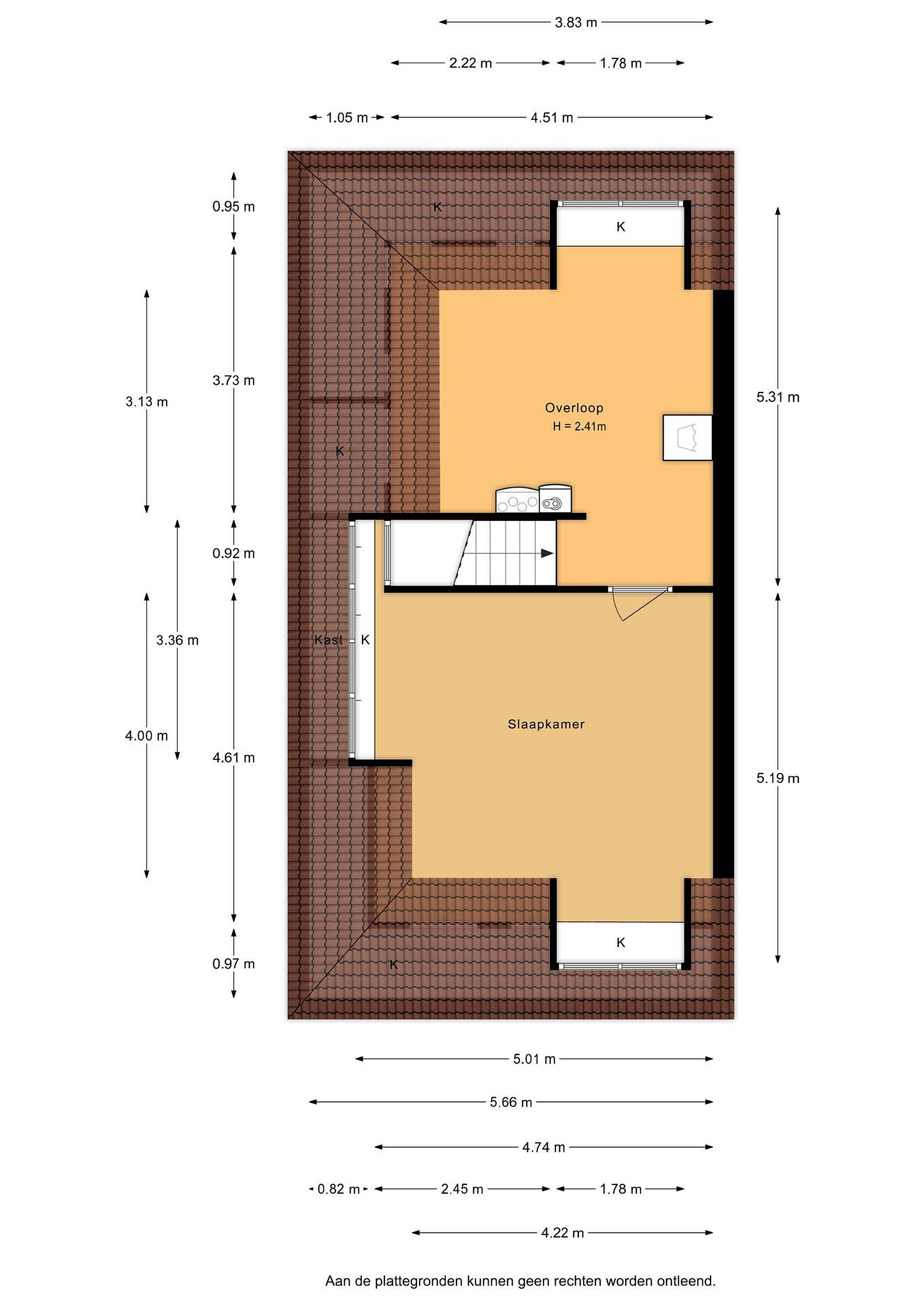
Eerste verdieping met dakterras en moderne badkamer
De overloop op de eerste verdieping is licht en ruim dankzij het grote zijraam en beschikt over een praktische vaste kast. Aan de achterzijde bevindt zich de riante hoofdslaapkamer met dubbele openslaande deuren naar een woningbreed dakterras — een unieke plek om in alle rust van de zon te genieten.
Aan de voorzijde bevinden zich twee ruime slaapkamers. Op deze verdieping tref je ook het tweede toilet (met fonteintje) én een stijlvolle, moderne badkamer met ligbad, ruime inloopdouche, dubbele wastafel met onder- en bovenkasten, een handdoekradiator en een raam voor daglicht en ventilatie. Ook deze verdieping is volledig voorzien van een laminaatvloer.

Tweede verdieping met veel ruimte en potentie
De tweede verdieping is verrassend ruim. Aan de achterzijde vind je een grote zolderkamer met dakkapel, waar ook de aansluitingen voor de wasmachine en droger zijn geplaatst, evenals de opstelling van de Agpo HR Optifor ventilatie-unit en de Nefit HR-combiketel. Deze ruimte biedt volop mogelijkheden om in te richten als werkkamer, logeerkamer of extra slaapkamer.

Aan de voorzijde ligt nog een grote slaapkamer met maar liefst twee dakkapellen: een aan de voorzijde en een aan de zijkant van de woning. Achter de knieschotten is veel bergruimte beschikbaar. De overloop biedt voldoende plek om eventueel een vijfde slaapkamer te realiseren.

Rust, ruimte en bereikbaarheid
Deze woning biedt het beste van twee werelden: een rustige en kindvriendelijke omgeving met veel groen én alle dagelijkse voorzieningen binnen handbereik. Je woont hier heerlijk ruim, met veel comfort en privacy — en tegelijkertijd ben je binnen enkele minuten in Den Haag, Rotterdam of op de snelweg.

Ben je op zoek naar een royaal familiehuis met een luxe uitstraling, praktische indeling, een riante tuin en perfecte ligging in Leidschenveen? Dan is dit je kans! Neem snel contact met ons op en kom deze prachtige woning met eigen ogen bewonderen.

Aanvullende informatie:
- Perceelgrootte: 281 m2
- Eigen grond
- Bouwjaar: 2002
- Prive oprijlaan met parkeergelegenheid voor 2 auto’s
- Vrijstaande stenen garage
- Woonoppervlakte: ca. 189 m2 (meetrapport NEN-2580 aanwezig)
- Oppervlakte garage: ca. 24 m2 (meetrapport NEN-2580 aanwezig)
- Energielabel A
- In 2020 zijn de plavuizen geplaatst, zijn keuken, badkamer en toiletten vervangen
- uitgebouwde woon keuken aan de achterzijde
- Volledig houten kozijnen en HR++ glas
- Dakkapellen op de zolderverdieping zijn van kunststof.
- CV-ketel Nefit 2016, regelmatig onderhouden
- Balansventilatie
- Alarmsysteem
- Gratis parkeergelegenheid
- Centraal gelegen nabij alle faciliteiten en openbaar vervoer
- Opgang naar diverse uitvalswegen A4/A12/A13 in een paar minuten rijden
- Oplevering in overleg



Welcome to the green edge of Leidschenveen, where you’ll find this stylish, modern and surprisingly spacious semi-detached home (approx. 189 m2 of living space).
This beautifully finished family home offers a luxurious kitchen-diner, four generous bedrooms with the potential for a fifth, a spacious detached garage, a private driveway for two cars and a sunny, private rear garden.

The property is located in one of the most desirable and spacious parts of Leidschenveen, on a quiet, low-traffic street surrounded by greenery, play areas and even a football field just around the corner. Nature lovers will enjoy the short walk to the Nieuwe Driemanspolder recreational area, with walking paths, ponds and abundant birdlife. Within five minutes by car, you’ll reach key motorways, RandstadRail station, Leidschenveen shopping centre, schools, childcare facilities, sports fields and a medical centre.

Light, space and comfort on the ground floor
The front garden is sheltered and welcoming, with a spacious private driveway and access to the large garage. Step inside the home via the bright hallway, which features a cloakroom, meter cupboard and a modern toilet with hand basin.

The sunny, garden-facing living room at the front of the house flows beautifully into the extended luxury kitchen at the rear — a real eye-catcher. This modern kitchen features sleek white high-gloss cabinetry, granite countertops and high-end built-in appliances, including a flexible induction hob, extractor hood, dishwasher, Quooker boiling water tap, oven, microwave, built-in coffee machine, refrigerator, separate freezer and a stainless steel sink.

From the kitchen, large sliding doors open directly onto the private, sunny rear garden, which also offers a rear entrance. The detached garage (approx. 24 m2) is fitted with electricity and offers plenty of space for storage, a workbench or even a second car. The entire ground floor is finished with stylish tiled flooring (installed in 2020).

First floor with roof terrace and modern bathroom
The spacious landing on the first floor is filled with light thanks to a large side window and includes a built-in storage closet. At the rear of the house is the impressive main bedroom with double doors leading to a wide, full-length roof terrace — the perfect place to unwind in peace and privacy.

At the front, you'll find two additional spacious bedrooms. This floor also features a second toilet (with hand basin) and a sleek, modern bathroom fully tiled and equipped with a bathtub, walk-in shower, double vanity with upper and lower cabinets, a towel radiator, and a window for natural light and ventilation. The entire first floor is finished with a modern laminate floor.

Second floor with space and potential
The second floor is surprisingly spacious. At the rear is a large attic bedroom with a dormer window, along with the laundry area (washing machine and dryer connections), the Agpo HR Optifor ventilation system and the Nefit HR combi boiler (2016, regularly maintained).

At the front is another generous bedroom with not one, but two dormers — one at the front and another on the side of the house. Behind the knee walls, you’ll find lots of practical storage space. The landing also offers plenty of space to create a fifth bedroom or home office.

Peaceful, green surroundings with excellent accessibility
This home truly offers the best of both worlds: a peaceful, family-friendly neighbourhood full of green space, plus all daily amenities within easy reach. You’ll enjoy spacious and luxurious living with maximum privacy — all while being just minutes from The Hague, Rotterdam, and key highways.

Are you looking for a generous, high-quality family home with a smart layout, elegant finishes, a beautiful garden and a perfect location in Leidschenveen? Don’t miss this opportunity — get in touch with us today to schedule your viewing. You really have to see this home in person!

Additional information:
- Plot size: 281 m2
- Freehold property
- Year of construction: 2002
- Private driveway with parking for 2 cars
- Detached brick garage (approx. 24 m2, with electricity)
- Living area: approx. 189 m2 (NEN-2580 measurement report available)
- Energy label: A
- Kitchen, bathroom and toilets replaced in 2020
- Extended kitchen-diner at the rear
- Full wooden window frames with HR++ glass
- Dormer windows on top floor are made of maintenance-free plastic
- Nefit central heating boiler (2016), regularly serviced
- Balanced ventilation system (Agpo HR Optifor)
- Alarm system
- Ample free parking in the area
- Centrally located near all amenities and public transport
- Quick access to major roads A4 / A12 / A13
- Delivery in consultation
Lees meer

Kenmerken

Overdracht

Prijs per m2
€ 4.841
Aangeboden sinds
5 januari 2026
Status
Beschikbaar
Aanvaarding
In overleg

Bouw

Soort woonhuis
Eengezinswoning, twee-onder-een-kap woning
Soort bouw
Bestaande bouw
Bouwjaar
2002
Staat van onderhouden binnen
Uitstekend
Staat van onderhouden buiten
Goed

Oppervlakte en inhoud

Perceeloppervlakte
281 m2
Inhoud van de woning
634 m3
Oppervlakte externe bergruimte
24 m2
Oppervlakte gebouwgebonden buitenruimten
13 m2

Indeling

Aantal kamers
6
Aantal slaapkamers
5
Aantal woonlagen
3
Voorzieningen
Tuin, balkon, kabel-tv, schuifpui

Buitenruimte

Balkon
Ja
Schuur/berging
Nee

Maandlasten berekenen

De maandlasten voor je woning bestaan uit meer dan alleen de hypotheeklasten. Hieronder vind je een overzicht van de bijkomende kosten en lasten. Zo weet je precies wat je huis per maand gaat kosten. En met de handige vergelijkers kun je ook nog eens snel de beste deals sluiten!

  • Kaart
  • Streetview