Hopweg 48A 8313 RK Rutten

131m2
Wonen
4
Kamers
955m2
Perceel
1955
Bouwjaar
Vrij wonen, omringd door rust en ruimte, met toch alle voorzieningen binnen handbereik, dat is precies wat deze charmante hoekwoning aan de Hopweg 48A te bieden heeft. Gelegen midden in de uitgestrekte landerijen van Rutten ervaart u hier elke dag een weids uitzicht en een heerlijk gevoel van vrijheid, terwijl u binnen enkele minuten in Lemmer bent.

De woning staat op een royaal perceel van maar liefst 955 m2 en is in de afgelopen jaren volledig gemoderniseerd en uitstekend onderhouden. Dankzij de kunststof kozijnen met HR++ glas en de volledige isolatie is het wooncomfort hoog en het energieverbruik aangenaam laag. De aanwezigheid van maar liefst 23 zonnepanelen, verdeeld over de woning en de schuur, onderstreept het duurzame karakter.
Binnen wordt u verwelkomd door een lichte en sfeervolle woonkamer met balken plafond en uitgebouwde eetkamer. De moderne keuken vormt een fijne plek om te koken en samen te komen. Aansluitend vindt u een praktische, lange bijkeuken met een kastenwand, wasmachineopstelling en volop bergruimte.

Op de verdieping zijn drie comfortabele slaapkamers en een moderne badkamer, compleet met inloopdouche, toilet en een stijlvol wastafelmeubel. Daarnaast beschikt de woning over een handige bergzolder.

Ook buiten is het genieten. De ruime tuin biedt alle mogelijkheden om te ontspannen, te tuinieren of te genieten van het uitzicht. De grote schuur met aangrenzend tuinhuis en glazen pui maakt het geheel compleet en biedt tal van gebruiksmogelijkheden, van hobbyruimte tot sfeervolle buitenplek.

Hier woont u landelijk en vrij, met de levendigheid en voorzieningen van Lemmer op slechts enkele minuten rijden, en zelfs prima per fiets bereikbaar. Een unieke kans voor wie op zoek is naar ruimte, comfort en rust in een prachtige omgeving.
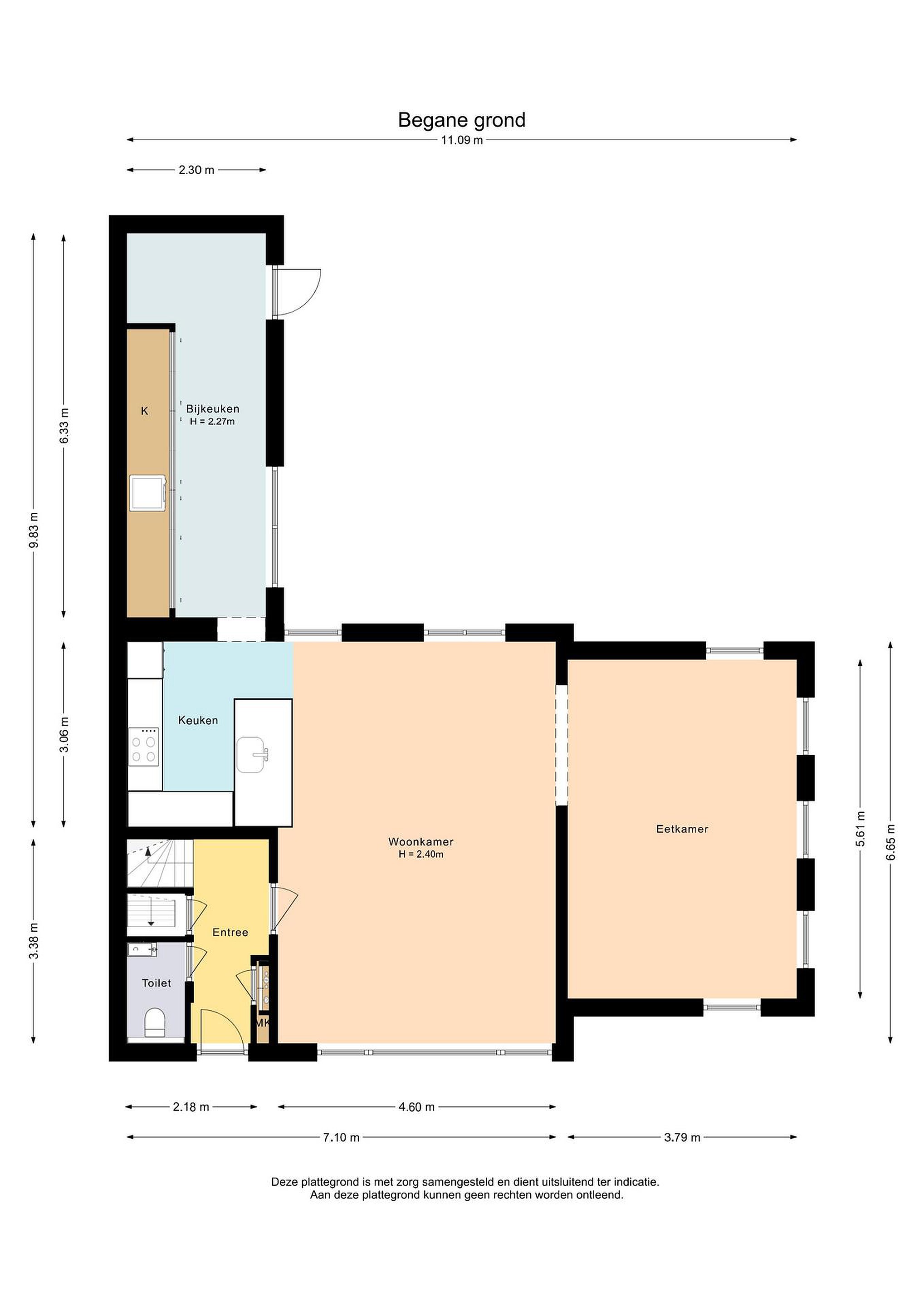
Begane grond
entree/hal, meterkast, toilet met fontein, kelder, trapopgang, sfeervolle en lichte woonkamer met aangebouwde eetkamer voorzien van airco, moderne keuken met schiereiland en diverse inbouwapparatuur zoals: inductie kookplaat, koelkast, vaatwasser, oven en Quooker. Via de keuken komt u in de bijkeuken met kastenwand voor de wasmachine opstelling.

Eerste verdieping
overloop, 3 slaapkamers waarvan 1 voorzien van airco en badkamer met wastafelmeubel, inloopdouche en toilet.

Details
Aanvullende informatie:
- bouwjaar 1955
- gebruiksoppervlakte wonen 131 m2
- overig inpandige ruimte 4 m2
- externe bergruimte 73 m2
- inhoud 494 m3
- energielabel A+
- voorzien van warmtepomp
- compleet gemoderniseerd en geïsoleerd
- 23 zonnepanelen
- kunststof kozijnen met HR++ glas
- 3 slaapkamers
- voorzien van airco
- grote schuur met tuinhuis
- aanvaarding in onderling overleg


Lees meer

Kenmerken

Overdracht

Prijs per m2
€ 3.656
Aangeboden sinds
10 april 2026
Status
Beschikbaar
Aanvaarding
In overleg

Bouw

Soort woonhuis
Eengezinswoning, hoek woning
Soort bouw
Bestaande bouw
Bouwjaar
1955
Soort dak
Samengesteld dak
Staat van onderhouden binnen
Goed
Staat van onderhouden buiten
Goed

Oppervlakte en inhoud

Perceeloppervlakte
955 m2
Inhoud van de woning
494 m3
Oppervlakte externe bergruimte
73 m2
Oppervlakte overige inpandige ruimten
4 m2

Indeling

Aantal kamers
4
Aantal slaapkamers
3
Aantal woonlagen
3
Voorzieningen
Tuin, airconditioning

Buitenruimte

Balkon
Nee
Schuur/berging
Nee

Maandlasten berekenen

De maandlasten voor je woning bestaan uit meer dan alleen de hypotheeklasten. Hieronder vind je een overzicht van de bijkomende kosten en lasten. Zo weet je precies wat je huis per maand gaat kosten. En met de handige vergelijkers kun je ook nog eens snel de beste deals sluiten!

  • Kaart
  • Streetview