Verkocht

Brabanthoeven 55 5244 HH Rosmalen

116m2
Wonen
5
Kamers
160m2
Perceel
1981
Bouwjaar
Deze riante en slim uitgebouwde tussenwoning heeft alles in huis: een moderne keuken, vier (slaap)kamers, lekker veel leefruimte en een zonnige tuin op het zuidwesten mét overkapping. En dat allemaal in een groene, kindvriendelijke buurt waar je met plezier thuiskomt.

Je woont hier in de wijk Sparrenburg: rustig, ruim opgezet en omringd door groen. Sporten, spelen en ontspannen liggen letterlijk om de hoek. Sporthal De Hazelaar, zwembad Kwekkelstijn, tennisbanen, speeltuin ’t Kwekkeltje en natuurgebied De Zandverstuiving – je hoeft je hier nooit te vervelen.
Ook praktisch gezien zit je top: basisschool, kinderopvang, theater Perron 3 en winkels zijn op loop- of fietsafstand. Met de trein sta je in een paar minuten in hartje ’s-Hertogenbosch. Ideaal!

Begane grond – licht, ruim en sfeervol
Je komt binnen in een nette hal met toilet en meterkast. De woonkamer is heerlijk tuingericht en voelt meteen goed: strak afgewerkt, visgraat pvc met vloerverwarming en grote ramen die zorgen voor bakken daglicht.

De open keuken uit 2024 aan de voorzijde is modern, stoer zwart en van alle gemakken voorzien: Bora inductieplaat met geïntegreerde afzuiging, ingebouwde wijnkoelkast, combi-oven, vaatwasser, koelkast , Quooker en een gezellig barretje. Koffie of thee in twee seconden – dat is nog eens luxe.

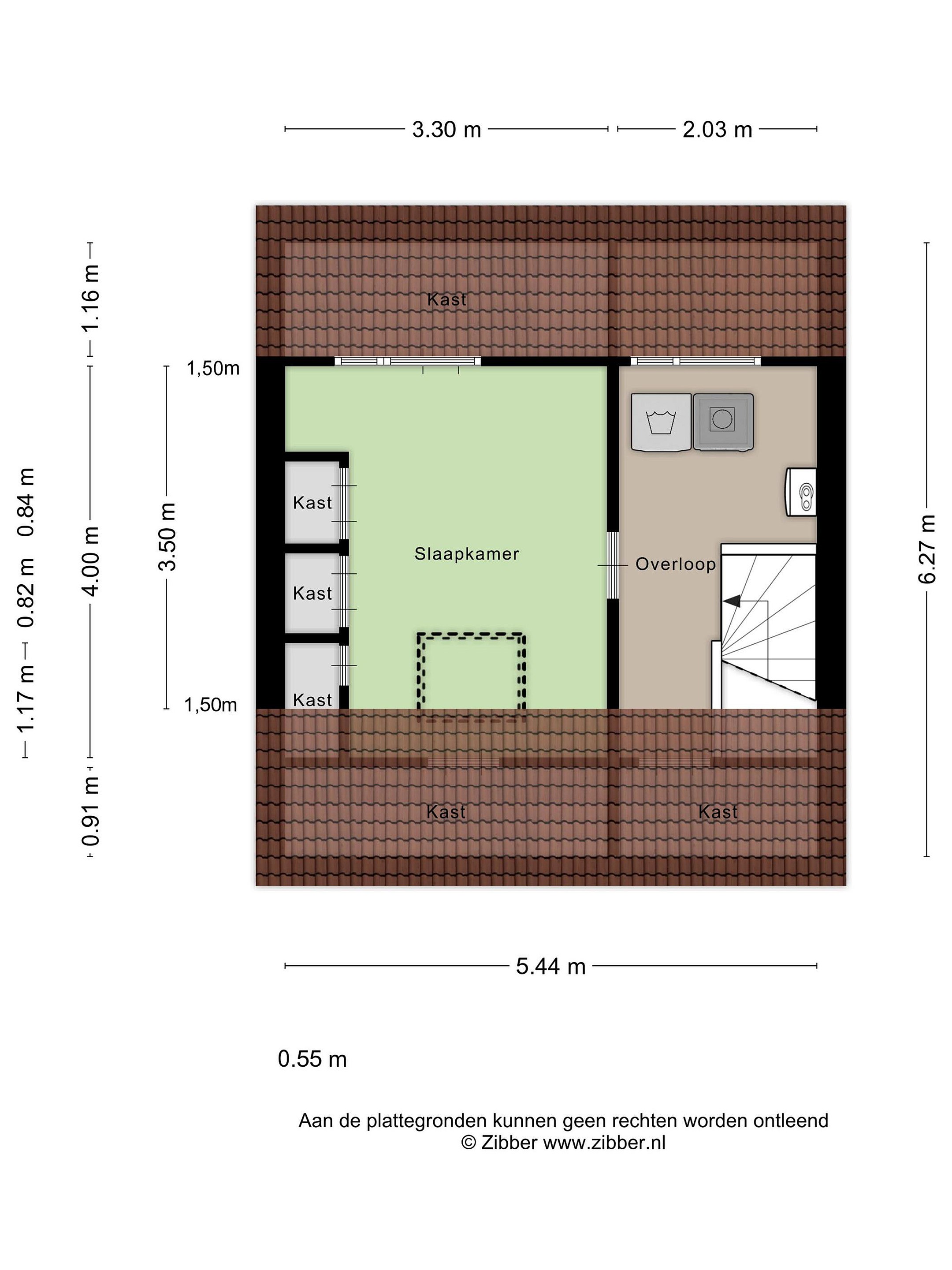
Eerste verdieping – lekker slapen
Op deze verdieping vind je drie prima slaapkamers: twee aan de achterzijde, één aan de voorzijde. De badkamer is modern en compleet met inloopdouche, breed wastafelmeubel en tweede toilet. Dankzij het raam heb je hier fijn daglicht en frisse lucht.

Tweede verdieping – ruimtebonus!
Hier verrast de woning ook. Dankzij de dakkapel over de volle breedte is een volwaardige extra verdieping ontstaan. Een royale vierde slaapkamer, veel bergruimte én een praktische voorzolder met cv-ketel (2017) en wasmachineaansluitingen.
Warm in de zomer? Geen zorgen – de airco zorgt voor koele nachten.

Tuin – zon, rust en gezelligheid
De tuin ligt perfect op het zuidwesten. Zonliefhebbers: dit is jullie plek! Met de sfeervolle overkapping verleng je het buitenseizoen moeiteloos. Barbecue aan, drankje erbij – klaar.
Achterin staat een ruime berging voor fietsen en tuingereedschap, bereikbaar via de brandgang.

De pluspunten:
Instapklare tussenwoning
Moderne, luxe keuken met barretje en wijnkoelkast en strakke afwerking
Grote woonkamer met visgraad parketvloer
Tuin op het zuid/westen met overkapping
Vier (slaap)kamers
Goed gelegen
Lees meer

Verkoopgeschiedenis

Aangeboden sinds
6 februari 2026
Verkoopdatum
5 maart 2026
Looptijd
één maand

Kenmerken

Overdracht

Prijs per m2
€ 4.177
Aangeboden sinds
6 februari 2026
Status
Verkocht
Aanvaarding
In overleg

Bouw

Soort woonhuis
Eengezinswoning, tussen woning
Soort bouw
Bestaande bouw
Bouwjaar
1981
Staat van onderhouden binnen
Uitstekend
Staat van onderhouden buiten
Uitstekend

Oppervlakte en inhoud

Perceeloppervlakte
160 m2
Inhoud van de woning
410 m3
Oppervlakte externe bergruimte
12 m2
Oppervlakte gebouwgebonden buitenruimten
16 m2

Indeling

Aantal kamers
5
Aantal slaapkamers
4
Aantal woonlagen
3
Voorzieningen
Tuin, buitenzonwering, airconditioning

Buitenruimte

Balkon
Nee
Schuur/berging
Nee

Maandlasten berekenen

De maandlasten voor je woning bestaan uit meer dan alleen de hypotheeklasten. Hieronder vind je een overzicht van de bijkomende kosten en lasten. Zo weet je precies wat je huis per maand gaat kosten. En met de handige vergelijkers kun je ook nog eens snel de beste deals sluiten!

  • Kaart
  • Streetview