Verkocht

Voorstraat 49 4702 EM Roosendaal

122m2
Wonen
4
Kamers
209m2
Perceel
1925
Bouwjaar
Bent u op zoek naar een vrijstaande woning met karakter, sfeer en ruimte in een van de leukste straten van Roosendaal?

Dan is dit uw kans! De Voorstraat is een charmante en rustige straat met een gevarieerd straatbeeld, waar iedere woning zijn eigen uitstraling heeft. Het bruisende centrum van Roosendaal bevindt zich op slechts tien minuten lopen en biedt een uitgebreid winkelaanbod, gezellige cafés, terrassen en sfeervolle restaurants – hier is altijd iets te beleven.
Met alle dagelijkse voorzieningen letterlijk om de hoek woont u hier op een locatie die comfort, gemak en levendigheid perfect combineert.
Deze degelijke en goed onderhouden woning combineert charme met comfort. Oorspronkelijk gebouwd in 1925, maar eind jaren zeventig grondig verbouwd, waardoor de woning klaar is voor modern woonplezier. De begane grond is voorzien van een betonvloer, en er zijn een bijkeuken, toilet en badkamer aangebouwd. Op de eerste verdieping zijn de muren recht opgetrokken, waardoor alle slaapkamers ruim en praktisch zijn ingedeeld.
De woning is nagenoeg volledig geïsoleerd. De stenen berging in de tuin is in spouw gebouwd. Zo geniet u niet alleen van comfort binnen, maar ook van een praktische buitenruimte.

Waarom u hier wilt wonen

Begane grond
Bij binnenkomst valt direct de sfeervolle woonkamer op, voorzien van een fraaie schouw met houtkachel en een massief houten vloer – een heerlijke plek om te ontspannen. De open trap naar de verdieping geeft de ruimte extra karakter.
De moderne keuken is ruim opgezet en uitgerust met diverse inbouwapparatuur, waaronder een gaskookplaat, magnetron, koelkast en vaatwasser. Hier kunt u met gemak een smakelijke maaltijd bereiden.
Aansluitend bevindt zich de royale bijkeuken met aansluitingen voor wasapparatuur. Vanuit de bijkeuken bereikt u zowel de badkamer als de toiletruimte.
De volledig betegelde badkamer is voorzien van een wastafelmeubel, doucheruimte en designradiator. Vanuit de bijkeuken heeft u tevens directe toegang tot de achtertuin.

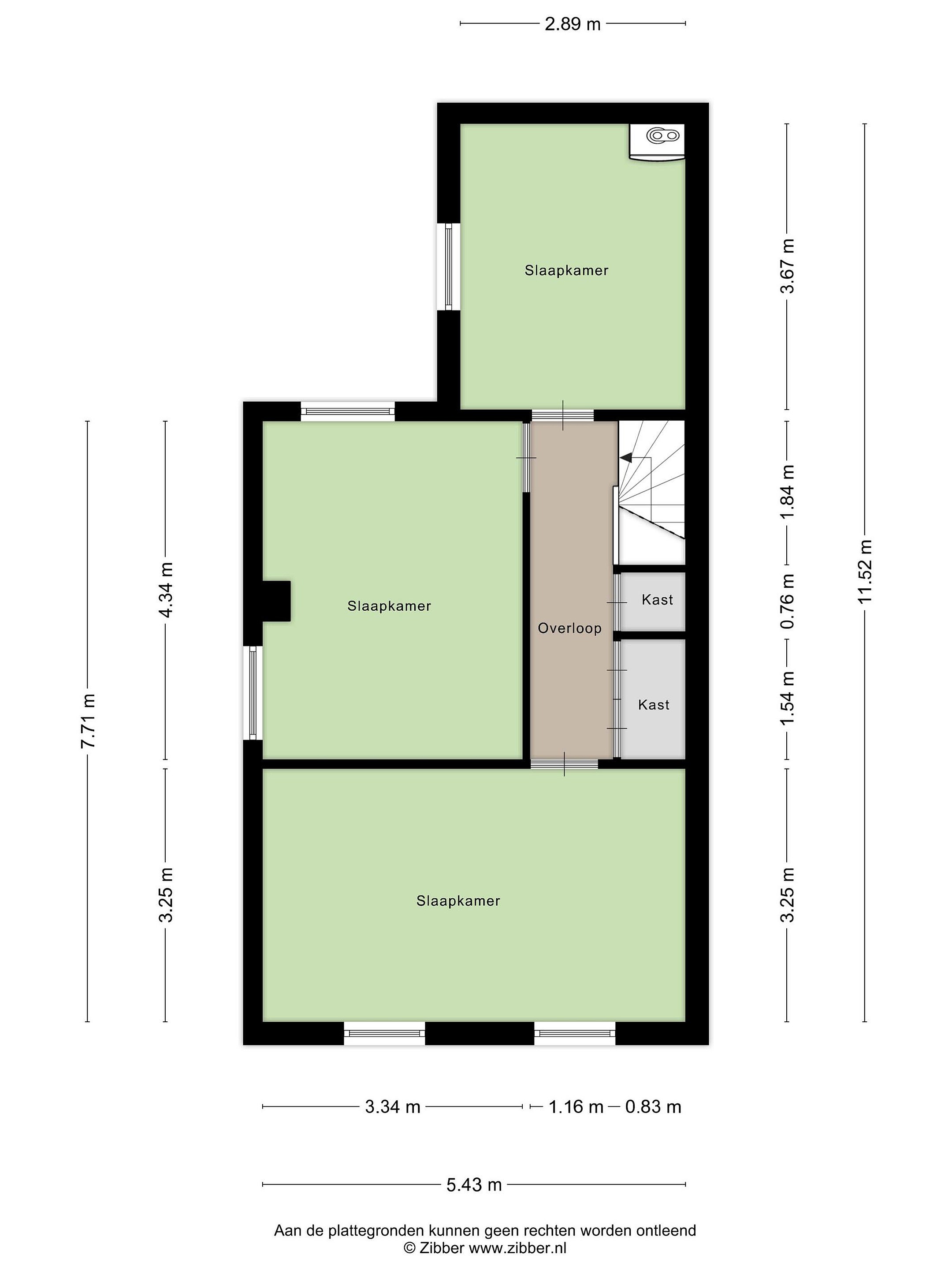
Eerste verdieping
De eerste verdieping beschikt over drie ruime slaapkamers (voorheen vier) en een royale overloop met vaste kasten. In één van de slaapkamers bevindt zich de cv-ketel (huur).
De gehele verdieping is voorzien van een nette laminaatvloer en gemetselde wanden. Dankzij de grote raampartijen geniet u hier van veel natuurlijke lichtinval.

Tuin
De diepe, verzorgde achtertuin biedt volop privacy en is ingericht met sierbestrating, plantenborders en een buitenkraan.
Achterin de tuin bevindt zich een grote, in spouw gebouwde stenen schuur over de volledige breedte van het perceel – ideaal voor opslag, hobby’s of als werkruimte. Daarnaast is er een praktisch haardhouthok aanwezig.
Via de zijpoort bereikt u eenvoudig de Voorstraat.

Tot slot
Deze charmante woning combineert karakter, comfort en ruimte met een uitstekende ligging op een levendige locatie. Een ideale keuze voor starters, jonge gezinnen of iedereen die op zoek is naar een woning met sfeer én mogelijkheden.
Plan snel een bezichtiging en ervaar zelf de unieke sfeer en mogelijkheden die deze woning te bieden heeft!
Lees meer

Verkoopgeschiedenis

Aangeboden sinds
26 oktober 2025
Verkoopdatum
8 december 2025
Looptijd
één maand

Kenmerken

Overdracht

Prijs per m2
€ 2.705
Aangeboden sinds
26 oktober 2025
Status
Verkocht
Aanvaarding
In overleg

Bouw

Soort woonhuis
Eengezinswoning, vrijstaande woning
Soort bouw
Bestaande bouw
Bouwjaar
1925
Soort dak
Plat dak
Staat van onderhouden binnen
Goed
Staat van onderhouden buiten
Goed

Oppervlakte en inhoud

Perceeloppervlakte
209 m2
Inhoud van de woning
453 m3
Oppervlakte externe bergruimte
16 m2
Oppervlakte gebouwgebonden buitenruimten
4 m2

Indeling

Aantal kamers
4
Aantal slaapkamers
3
Aantal woonlagen
2
Voorzieningen
Tuin, schuur/berging, kabel-tv

Buitenruimte

Balkon
Nee
Schuur/berging
Ja

Maandlasten berekenen

De maandlasten voor je woning bestaan uit meer dan alleen de hypotheeklasten. Hieronder vind je een overzicht van de bijkomende kosten en lasten. Zo weet je precies wat je huis per maand gaat kosten. En met de handige vergelijkers kun je ook nog eens snel de beste deals sluiten!

  • Kaart
  • Streetview