Verkocht OV

Tjarda van Starkenborghstraat 28 6045 HE Roermond

87m2
Wonen
5
Kamers
170m2
Perceel
1962
Bouwjaar
Wonen in een fijne gezinswoning op een rustige, kindvriendelijke locatie, met vier slaapkamers, een diepe tuin op het zuiden én vrij uitzicht aan de voorzijde? Deze leuke tussenwoning in de wijk ‘Kitskensberg’ ligt aan een rustige straat, vlak bij een basisschool, winkels en de speeltuin “Kitskensberg”. Ook de uitvalswegen (A73/A2) zijn snel bereikbaar, wat dit een praktische en prettige plek maakt om thuis te komen. De woning is netjes onderhouden en biedt een goede basis om, in je eigen tempo, verder naar wens in te richten.

Indeling

Kelder:
Ruime provisiekelder met goede stahoogte en aansluiting voor de wasmachine.

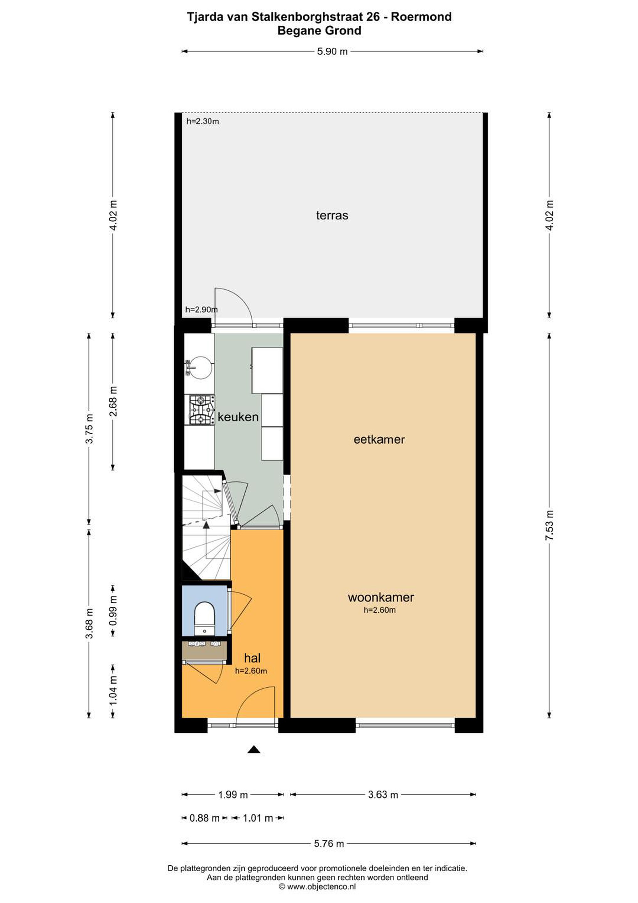
Begane grond
Je komt binnen in een nette hal met vernieuwde meterkast, toilet (halfhoog betegeld) en trapopgang. Vanuit hier heb je toegang tot de sfeervolle woonkamer met doorlopende laminaatvloer en prettige lichtinval. De hardhouten kozijnen met dubbele beglazing en elektrische rolluiken zorgen voor comfort en isolatie. De aparte gesloten keuken ligt aan de achterzijde, is netjes afgewerkt met een tegelvloer en voorzien van een 5-pits gaskookplaat, oven, afzuigkap en spoelbak. Vanuit hier bereik je zowel de praktische kelder als het overdekte terras in de achtertuin.

Eerste verdieping
De overloop leidt naar vier slaapkamers en de badkamer. Eén van de kamers is momenteel ingericht als inloopkast. Alle kamers zijn voorzien van laminaatvloer, hardhouten kozijnen met dubbele beglazing en rolluiken. De geheel betegelde badkamer is compact maar compleet, met een hoekbad/douchecombinatie, wastafelmeubel en handdoekradiator.

Tweede verdieping
Via een vlizotrap bereik je de ruime zolderverdieping. Hier bevinden zich de CV-ketel (gehuurd, 2024), de omvormer van de 8 zonnepanelen (eveneens gehuurd) en extra bergruimte. Dankzij de ruime afmetingen is het mogelijk om hier, na plaatsing van een vaste trap, een extra slaapkamer of werkkamer te realiseren.

Buitenruimte
De achtertuin is gelegen op het zuiden en heeft een diepte van ca. 14 meter. Je vindt hier een fijn terras onder een nette overkapping, een waterpunt aan de achtergevel en een ruime stenen berging met elektra. De tuin is bereikbaar via een achterom, ideaal voor fietsen, kliko’s of gewoon gemak.

Bijzonderheden
- Gelegen in rustige straat zonder directe overburen
- Vier slaapkamers op de eerste verdieping
- Diepe achtertuin op het zuiden met overkapping en achterom
- Hardhouten kozijnen met dubbel glas (2002) en grotendeels rolluiken
- CV ketel en 8 zonnepanelen zijn gehuurd
- Op loopafstand van school, speeltuin en winkels
- Uitvalswegen richting A73/A2 snel bereikbaar

Kortom: een nette, verrassend ruime woning met veel potentie op een fijne plek in Roermond. Perfect voor gezinnen, starters of wie op zoek is naar ruimte en vrijheid in een kindvriendelijke wijk.

Belangrijke informatie
* Deze informatiebrochure is met de grootste zorg samengesteld en deels gebaseerd op gegevens die wij van derden hebben ontvangen. Ondanks deze zorgvuldigheid kunnen aan eventuele fouten, onvolkomenheden of onjuistheden in de verstrekte informatie geen rechten worden ontleend. De verkopend makelaar aanvaardt geen aansprakelijkheid voor eventuele fouten, onjuistheden of de gevolgen daarvan. Alle opgegeven maten en oppervlakten zijn indicatief. Wij adviseren u om informatie die voor u van wezenlijk belang is, zelfstandig te controleren. Een bezichtiging van de woning of onroerende zaak biedt de beste indruk en geeft u de mogelijkheid om het object te beoordelen en te onderzoeken, zodat u zich volledig kunt overtuigen van de staat en eigenschappen ervan;

* Koper is te allen tijde gerechtigd om voor eigen rekening een bouwkundig onderzoek te (laten) verrichten, dan wel andere adviseurs te raadplegen teneinde een goed inzicht te verkrijgen in de staat van onderhoud of andere aspecten van de onroerende zaak. Koper dient bij het doen van een bod wel direct aan te geven of hij een dergelijk onderzoek wenst.
Lees meer

Kenmerken

Overdracht

Prijs per m2
€ 2.983
Aangeboden sinds
1 oktober 2025
Status
Verkocht onder voorbehoud
Aanvaarding
In overleg

Bouw

Soort woonhuis
Eengezinswoning, tussen woning
Soort bouw
Bestaande bouw
Bouwjaar
1962
Soort dak
Zadeldak
Staat van onderhouden binnen
Goed
Staat van onderhouden buiten
Goed

Oppervlakte en inhoud

Perceeloppervlakte
170 m2
Inhoud van de woning
420 m3
Oppervlakte externe bergruimte
10 m2
Oppervlakte gebouwgebonden buitenruimten
24 m2
Oppervlakte overige inpandige ruimten
27 m2

Indeling

Aantal kamers
5
Aantal slaapkamers
4
Aantal woonlagen
4
Voorzieningen
Tuin, schuur/berging

Buitenruimte

Balkon
Nee
Schuur/berging
Ja

Maandlasten berekenen

De maandlasten voor je woning bestaan uit meer dan alleen de hypotheeklasten. Hieronder vind je een overzicht van de bijkomende kosten en lasten. Zo weet je precies wat je huis per maand gaat kosten. En met de handige vergelijkers kun je ook nog eens snel de beste deals sluiten!

  • Kaart
  • Streetview