Heinsbergerweg 153 6045 CE Roermond

153m2
Wonen
6
Kamers
170m2
Perceel
1939
Bouwjaar
Karakter, sfeer en verrassend veel leefruimte komen samen in deze charmante jaren ’30 woning, waar authentieke details op harmonieuze wijze worden gecombineerd met hedendaags wooncomfort. Hoge plafonds, glas-in-loodramen en een sfeervolle woonkamer met houtkachel geven de woning een warme en karaktervolle uitstraling.

De woning beschikt over 5 volwaardige slaapkamers en twee badkamers, waaronder een royale ensuite badkamer met ligbad, inloopdouche en een sauna voor extra ontspanning in eigen huis. De diepe achtertuin met diverse terrassen vormt daarnaast een heerlijke buitenruimte waar u in alle rust kunt genieten van het buitenleven.

Een ideale woning voor wie op zoek is naar ruimte, karakter en comfort, op een centrale locatie in Roermond.

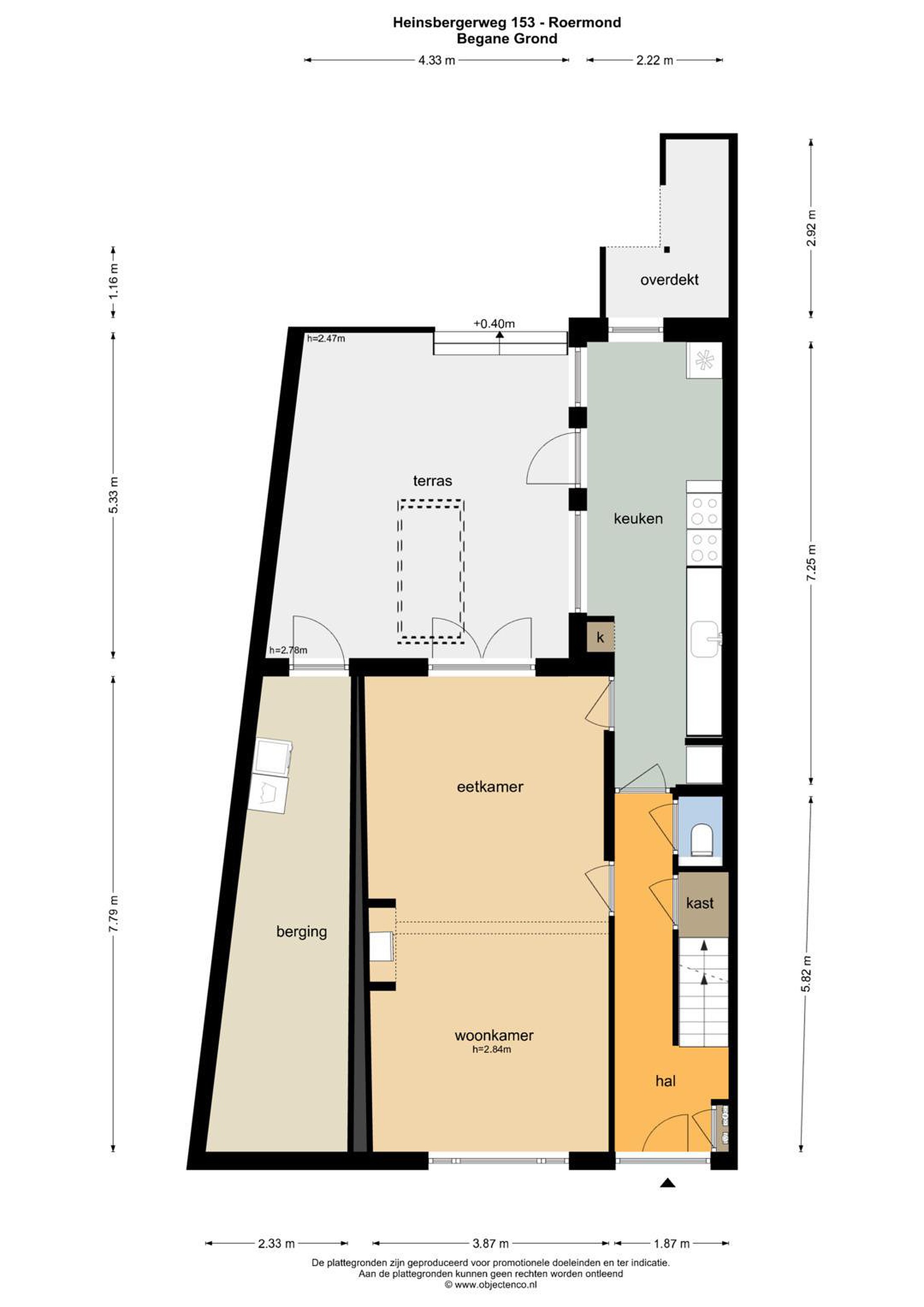
Begane grond
Via de karakteristieke entree betreedt u de sfeervolle hal met authentieke wandbetimmering, Portugese azulejos-tegels en glas-in-loodramen. Vanuit de hal zijn de woonkamer, het moderne toilet, de provisiekelder en de trapopgang naar de eerste verdieping bereikbaar. De woonkamer is ruim en sfeervol ingericht en wordt gekenmerkt door de hoge plafonds en de fraaie lichtinval. De ruimte is ingericht met een zitgedeelte aan de voorzijde en een eetgedeelte aan de achterzijde. De houtkachel vormt een echte blikvanger en zorgt voor extra warmte en sfeer tijdens de wintermaanden. Aan de achterzijde van de woning bevindt zich de ruime keuken. Deze keuken is uitgevoerd met een robuust werkblad, een groot fornuis met afzuigkap, oven en diverse kastruimte. Dankzij de grote raampartijen en de deur naar de tuin is dit een lichte en prettige ruimte.

Eerste verdieping
Op de eerste verdieping bevinden zich drie volwaardige slaapkamers en twee badkamers, waarvan één als ensuite badkamer is verbonden aan de hoofdslaapkamer. De hoofdslaapkamer is royaal van opzet en biedt volop ruimte voor een kingsize bed en kastruimte. De ensuite badkamer is modern en hoogwaardig afgewerkt en beschikt over een ligbad, een ruime inloopdouche, een stijlvol wastafelmeubel en een sauna, waardoor u in alle rust kunt genieten van extra comfort en wellness in eigen huis. De warme materialen en de verfijnde mozaïektegels geven de ruimte een elegante en luxe uitstraling. Daarnaast bevindt zich op deze verdieping een tweede badkamer, voorzien van een toilet, een inloopdouche en een vaste wastafel. Alle slaapkamers zijn netjes afgewerkt en voorzien van een keurige laminaatvloer, wat zorgt voor een verzorgde en uniforme uitstraling.

Tweede verdieping
De tweede verdieping is ingericht met een ruime overloop, vanwaar twee slaapkamers bereikbaar zijn. Dankzij de praktische indeling en de prettige daglichttoetreding vormt deze verdieping een volwaardige en veelzijdige woonlaag. De ruimtes lenen zich uitstekend voor gebruik als extra slaapkamers, maar bieden tevens mogelijkheden voor bijvoorbeeld een werkkamer, hobbyruimte, fitnessruimte of een comfortabele loungekamer.

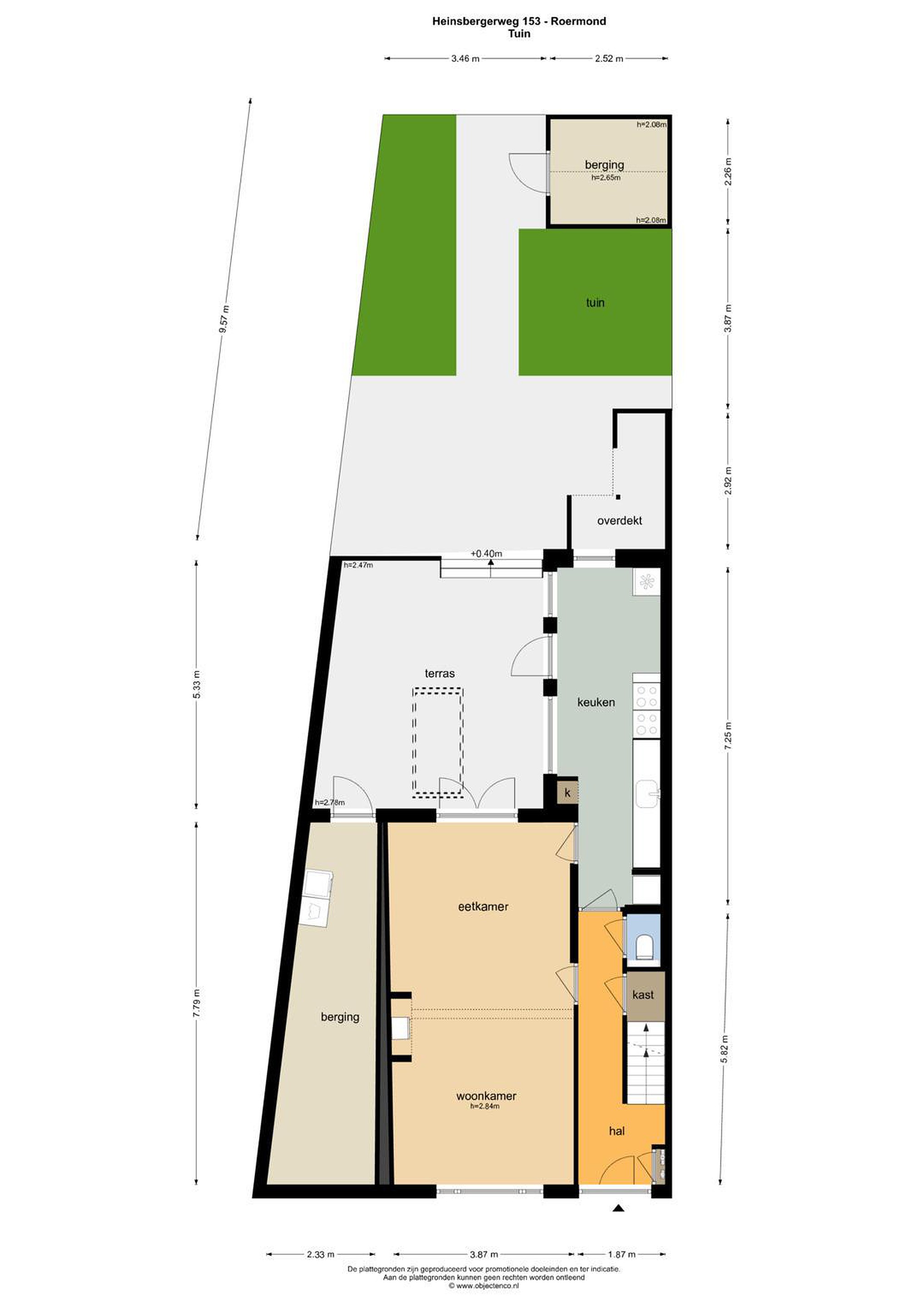
Buitenruimte
De achtertuin is verzorgd en sfeervol aangelegd en biedt meerdere beschutte plekken om in alle rust te ontspannen. Dankzij de doordachte indeling ontstaat een prettige balans tussen zon en schaduw, waardoor u hier op ieder moment van de dag comfortabel kunt verblijven. Achter in de tuin bevindt zich een praktisch tuinhuis, ideaal voor het opbergen van tuingereedschap en overige benodigdheden. Daarnaast beschikt de tuin over een gezellige tikibar, die een bijzonder en uitnodigend element vormt en de perfecte setting biedt voor lange zomeravonden en sfeervolle momenten met familie en vrienden.

Inpandige poortdoorgang
Aan de linkerzijde van de woning bevindt zich een brede, inpandige poortdoorgang met dubbele deuren naar de achterzijde van het perceel. De ruimte is halfhoog betegeld, praktisch in gebruik en tevens geschikt voor opslag. Hier bevinden zich bovendien de aansluitingen voor het witgoed.

Bijzonderheden
- Karakteristieke woning met veel authentieke details
- 5 volwaardige slaapkamers
- 2 badkamers waarvan 1 ensuite badkamer met ligbad en inloopdouche en sauna
- Verzorgde achtertuin met veel privacy
- Inpandige poortdoorgang naar de achterzijde van het perceel
- Woonoppervlakte circa 153 m2
- Bouwjaar 1939
- Energielabel C (dak- en spouwmuurisolatie)
- Deels kunststof en deels houten kozijnen met grotendeels dubbele beglazing

Belangrijke informatie
* Deze informatie is met de grootste zorg samengesteld en deels gebaseerd op gegevens die wij van derden hebben ontvangen. Ondanks deze zorgvuldigheid kunnen aan eventuele fouten, onvolkomenheden of onjuistheden in de verstrekte informatie geen rechten worden ontleend. De verkopend makelaar aanvaardt geen aansprakelijkheid voor eventuele fouten, onjuistheden of de gevolgen daarvan. Alle opgegeven maten en oppervlakten zijn indicatief. Wij adviseren u om informatie die voor u van wezenlijk belang is, zelfstandig te controleren. Een bezichtiging van de woning of onroerende zaak biedt de beste indruk en geeft u de mogelijkheid om het object te beoordelen en te onderzoeken, zodat u zich volledig kunt overtuigen van de staat en eigenschappen ervan;

* Koper is te allen tijde gerechtigd om voor eigen rekening een bouwkundig onderzoek te (laten) verrichten, dan wel andere adviseurs te raadplegen teneinde een goed inzicht te verkrijgen in de staat van onderhoud of andere aspecten van de onroerende zaak. Koper dient bij het doen van een bod wel direct aan te geven of hij een dergelijk onderzoek wenst.
Lees meer

Kenmerken

Overdracht

Prijs per m2
€ 2.451
Aangeboden sinds
13 maart 2026
Status
Beschikbaar
Aanvaarding
In overleg

Bouw

Soort woonhuis
Eengezinswoning, tussen woning
Soort bouw
Bestaande bouw
Bouwjaar
1939
Soort dak
Zadeldak
Staat van onderhouden binnen
Goed
Staat van onderhouden buiten
Goed

Oppervlakte en inhoud

Perceeloppervlakte
170 m2
Inhoud van de woning
596 m3
Oppervlakte externe bergruimte
20 m2
Oppervlakte gebouwgebonden buitenruimten
25 m2
Oppervlakte overige inpandige ruimten
9 m2

Indeling

Aantal kamers
6
Aantal slaapkamers
5
Aantal woonlagen
4
Voorzieningen
Tuin, schuur/berging, rolluiken

Buitenruimte

Balkon
Nee
Schuur/berging
Ja

Maandlasten berekenen

De maandlasten voor je woning bestaan uit meer dan alleen de hypotheeklasten. Hieronder vind je een overzicht van de bijkomende kosten en lasten. Zo weet je precies wat je huis per maand gaat kosten. En met de handige vergelijkers kun je ook nog eens snel de beste deals sluiten!

  • Kaart
  • Streetview