Verkocht

Ir H.h. van Kollaan 18 2283 NC Rijswijk

104m2
Wonen
5
Kamers
108m2
Perceel
1996
Bouwjaar
ENGLISH VERSION DOWN BELOW

Bent u opzoek naar een goed onderhouden en comfortabele woning in de rustige wijk Te Werve? Lees dan verder!

De woning is goed geïsoleerd, voorzien van 12 zonnepanelen en split airco units, waardoor een energielabel A geen verrassing is. De toiletruimte, badkamer en keuken zijn in 2017 volledig vernieuwd en dragen daarmee bij aan het comfort.

Naast een ruime voor- en achtertuin, beschikt de woning ook over een ruim dakterras. Voor iedereen is er, zowel binnen als buiten de woning, een plekje te vinden om te ontspannen.

De ligging van de woning is geweldig! In de nabije omgeving van de woning zijn alle voorzieningen voor handen. Winkels en winkelcentra, zoals Doctor H. Colijnlaan, stadscentrum De Bogaard en Oud Rijswijk zijn op korte afstand beschikbaar. Andere voorzieningen zoals scholen, recreatie, openbaarvervoer (inclusief treinstation Rijswijk) en uitvalswegen naar snelwegen A4, A12 en A13 zijn direct voorhanden.

Indeling
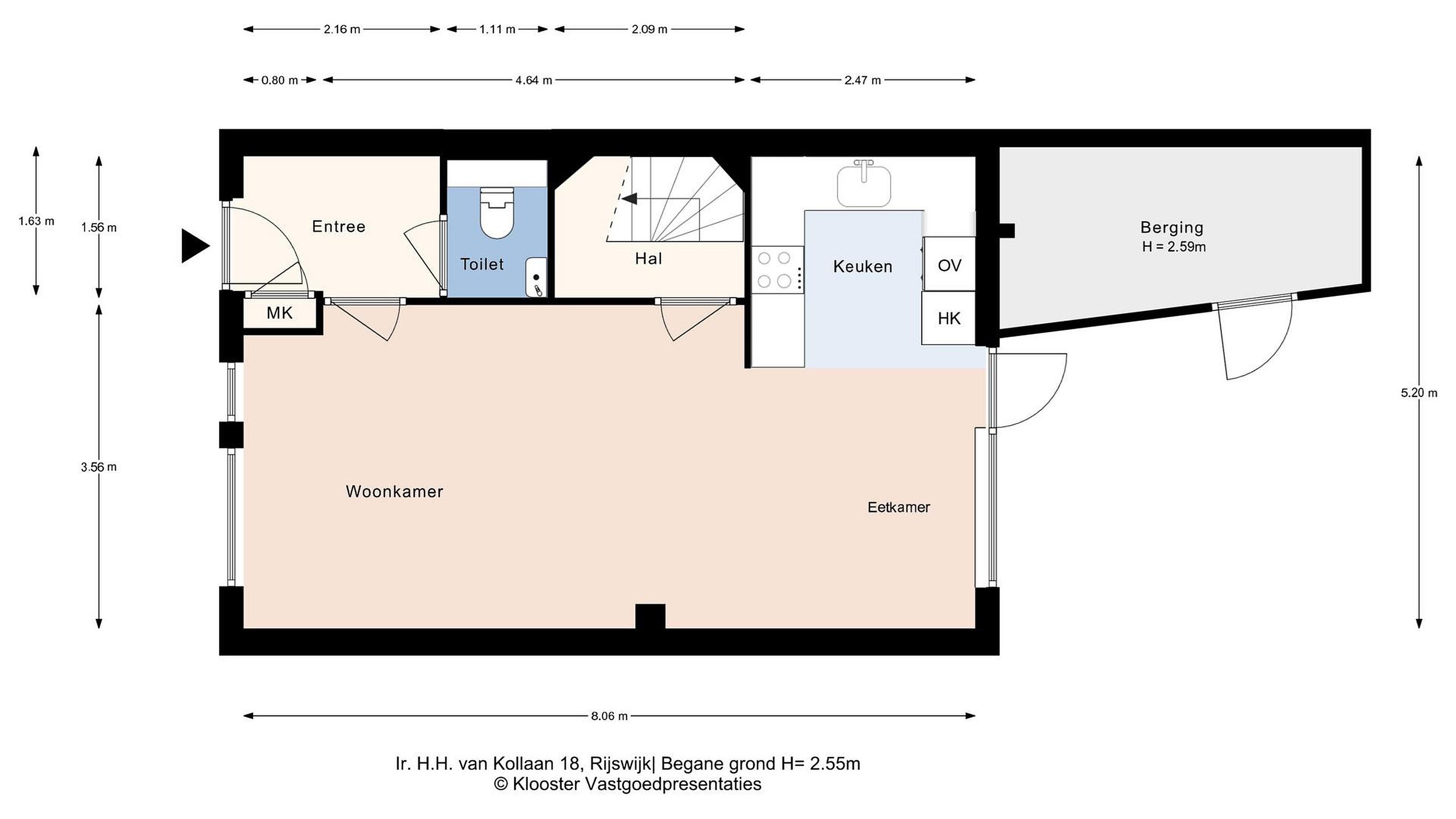
Begane grond
In de hal is de meterkast gesitueerd. De meterkast is aangepast en gemoderniseerd, t.b.v. de zonnepanelen. Ook treffen we hier de slimme meter, gasmeter en de glasvezelverbinding. In de hal treffen we ook de toiletruimte. De toiletruimte is ruim en voorzien van een hangend toilet en wasbak met fontein. De toiletruimte is in 2017 geïnstalleerd.

Vanuit de hal is er een deur naar de woonkamer. De woonkamer is gelegen aan de voorzijde van de woning. De deur naar het trappenhuis en de trapkast is verplaatst, waardoor er een meer praktische situatie is gecreëerd en meer ruimte in de woonkamer.

De eetkamer is aan de achterzijde van de woning gelegen, naast de keuken. De eerste airco is geïnstalleerd in het eetgedeelte. De keuken is geïnstalleerd in 2017 en is voorzien van een inductie kookplaat van 80 cm breed met 4 zones, afzuigkap, koel-/vriescombinatie, vaatwasser, oven en voldoende kastruimte.

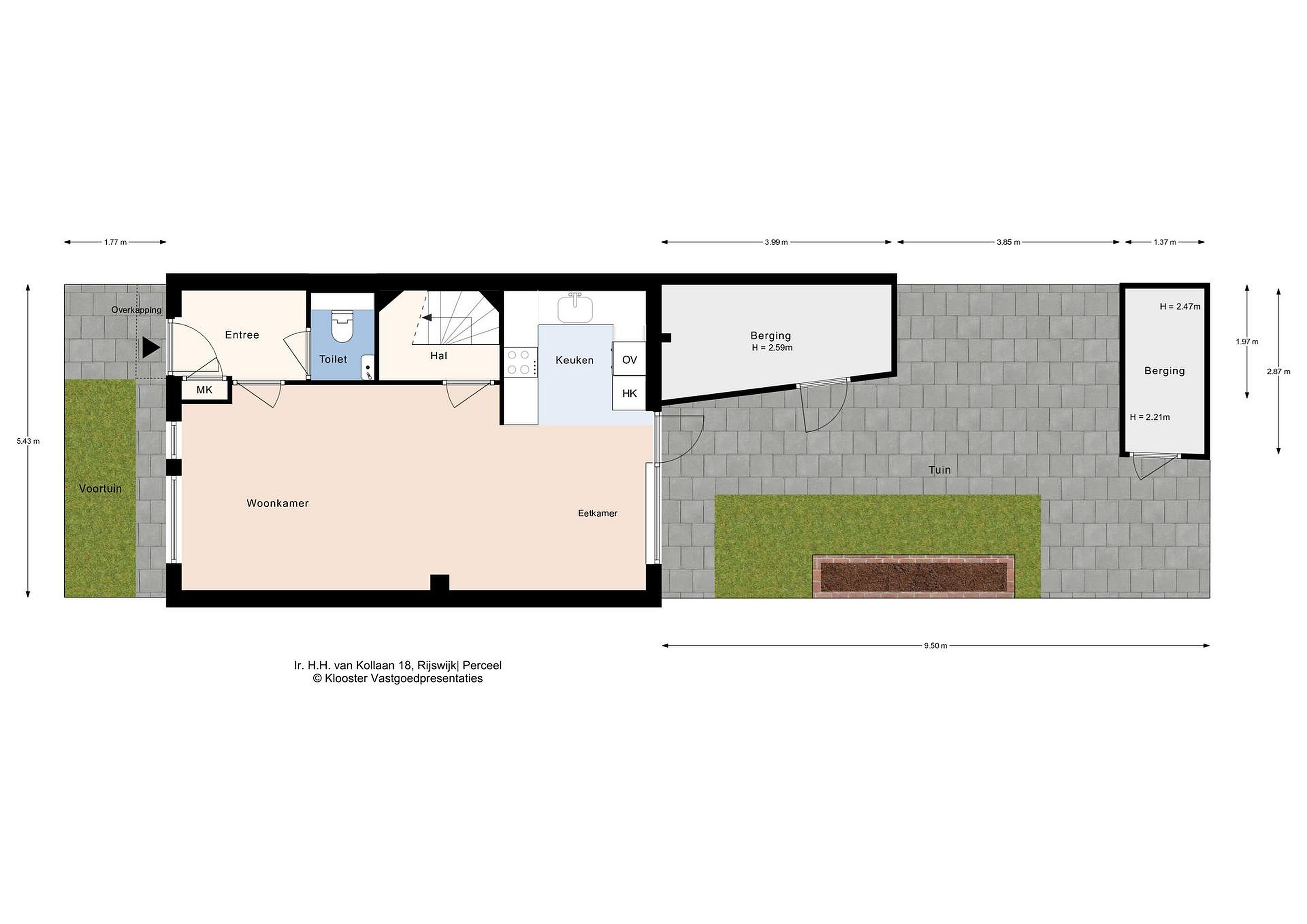
Middels een openslaande deur is er toegang tot de achtertuin. Er is een stenen berging die grenst aan de woning. Achterin de tuin is nog een 2e houten berging geplaatst.

Eerste verdieping
De overloop geeft toegang tot alle vertrekken op deze verdieping. Hier treffen we 3 slaapkamers en een badkamer. 2 slaapkamers zijn gelegen aan de voorzijde van de woning. De 3e slaapkamer en de badkamer treffen we aan de achterzijde van de woning. Alle slaapkamers zijn ruim. De badkamer is ook zeer ruim en voorzien van een inloopdouche, hangend toilet met inbouwreservoir, inloopdouche, dubbele wastafel met meubel en een handdoelradiator.

Vanaf de overloop treffen we de trapopgang naar de tweede verdieping. In het trappengat naar de tweede verdieping is de tweede airco geplaatst. Deze airco kan zowel de eerste als de tweede verdieping koelen en verwarmen.

Tweede verdieping
Op de overloop van de tweede verdieping treffen we de opstelplaats van de wasmachine en de droger. Ook is hier de CV geïnstalleerd. Tevens hangt hier de omvormer en zijn er 2 extra groepen aangelegd, 1 voor de omvormer van de zonnepanelen en 1 voor de wasmachine en droger.

Een openslaande deur geeft toegang tot het ruime dakterras aan de voorzijde van de woning. Op het dakterras is ook de buitenunit van de airco’s geplaatst. Er zijn screens geplaatst aan de buitenzijde van de raamkozijnen.

De ruimte op deze verdieping is zeer ruim en kan goed dienen als vierde slaapkamer of als werkkamer. Er is een dakkapel geplaatst met kunststof kozijnen met HR++ glas en elektrische screens aan de buitenzijde van de kozijnen. Er is ook nog een kleine vliering aan de voorzijde van de woning.

Kortom, een ruime, goed onderhouden en comfortabele eengezinswoning, in een rustige buurt met de nodige voorzieningen, zoals scholen, winkels, openbaar vervoer en recreatie.
Interesse? Wacht niet te lang en neem vandaag nog contact met ons op, om een bezichtiging te plannen.
Details
Kenmerken van de woning:
- Type woning   : eengezinswoning, met voor- en achtertuin, dakterras en 2 bergingen
- Bouwjaar   : 1996
- Woonoppervlakte : 104,7 m2
- Aantal slaapkamers : 4 slaapkamers
- De woning is gelegen op eigen grond
- Energielabel    : A label, geldig tot 23-06-2027
- Verwarming en warmwater middels CV combiketel Remeha Tzerra (2016 en eigendom)
- De woning is voorzien van 2 airco’s, 1 op de begane grond en 1 in het trappengat van de 1e naar de 2e verdieping
- 12 zonnepanelen (2017, eigendom)
- Moderne keuken met inbouwapparatuur
- Moderne badkamer met inloopdouche
- De woning is voorzien van houten kozijnen en dubbel glas en HR+ glas, met uitzondering van enkele bovenramen die van enkel glas zijn. De dakkapel is voorzien van kunststof kozijnen met HR++ glas


Are you looking for a well-maintained and comfortable home
in the quiet Te Werve neighborhood ? Then read on!

The house is well insulated, equipped with 12 solar panels and split air conditioning units, making an energy label A no surprise. The toilet, bathroom, and kitchen were completely renovated in 2017, thereby contributing to the comfort.

In addition to a spacious front and back garden, the house also features a large roof terrace. There is a spot for everyone to relax, both inside and outside the home.

The location of the home is fantastic! All amenities are available in the immediate vicinity. Shops and shopping centers, such as Doctor H. Colijnlaan, De Bogaard city center, and Oud Rijswijk, are within easy reach. Other amenities such as schools, recreation, public transport (including Rijswijk train station), and access roads to the A4, A12, and A13 motorways are immediately at hand.

Layout
Ground floor
The meter cupboard is situated in the hallway. The meter cupboard has been modified and modernized for the solar panels. Here, we also find the smart meter, gas meter, and fiber optic connection. The toilet room is also located in the hallway. The toilet room is spacious and equipped with a wall-mounted toilet and a washbasin with a hand basin. The toilet room was installed in 2017.

From the hallway, there is a door to the living room. The living room is located at the front of the house. The door to the stairwell and the cupboard under the stairs has been relocated, creating a more practical layout and more space in the living room.

The dining room is located at the rear of the house, next to the kitchen. The first air conditioner is installed in the dining area. The kitchen was installed in 2017 and is equipped with an 80 cm wide induction hob with 4 zones, an extractor hood, a fridge-freezer, a dishwasher, an oven, and ample cupboard space.

The back garden is accessible through French doors. There is a stone storage shed adjacent to the house. A second wooden shed is located at the back of the garden.

First floor
The landing provides access to all rooms on this floor. Here we find 3 bedrooms and a bathroom. 2 bedrooms are located at the front of the house. The 3rd bedroom and the bathroom are located at the rear of the house. All bedrooms are spacious. The bathroom is also very spacious and equipped with a walk-in shower, a wall-mounted toilet with concealed cistern, a double sink with vanity unit, and a heated towel rail.

From the landing, we find the staircase to the second floor. The second air conditioner is installed in the stairwell to the second floor. This air conditioner can cool and heat both the first and second floors.

Second floor
On the landing of the second floor, we find the location for the washing machine and dryer. The central heating system is also installed here. Furthermore, the inverter is located here, and two additional circuits have been installed : one for the solar panel inverter and one for the washing machine and dryer.

French doors provide access to the spacious roof terrace at the front of the house. The outdoor unit of the air conditioners is also located on the roof terrace. Screens have been installed on the outside of the window frames.

The space on this floor is very spacious and can serve well as a fourth bedroom or home office. A dormer window has been installed with PVC frames with HR++ glass and electric screens on the outside of the frames. There is also a small loft at the front of the house.

In short, a spacious, well-maintained, and comfortable family home in a quiet neighborhood with all the necessary amenities, such as schools, shops, public transport, and recreation.
Interested? Don't wait too long and contact us today to schedule a viewing.


Features of the property:
- Property type     : single-family home, with front and back garden, roof terrace and 2 storage rooms
- Year of construction   : 1996
- Living area     : 104.7 m2
- Number of bedrooms  : 4 bedrooms
- The property is situated on private land.
- Energy label     : A label, valid until 23-06-2027
- Heating and hot water via Remeha central heating combi boiler Tzerra (2016 and owned)
- The house is equipped with 2 air conditioners, 1 on the ground floor and 1 in the stairwell from the 1st to the 2nd floor .
- 12 solar panels (2017, owned)
- Modern kitchen with built-in appliances
- Modern bathroom with walk-in shower
- The house is fitted with wooden frames and double glazing and HR+ glass, with the exception of a few upper windows which are single glazed. The dormer is fitted with uPVC frames with HR++ glass.

Lees meer

Verkoopgeschiedenis

Aangeboden sinds
15 maart 2026
Verkoopdatum
11 mei 2026
Looptijd
2 maanden

Kenmerken

Overdracht

Prijs per m2
€ 4.728
Aangeboden sinds
15 maart 2026
Status
Verkocht
Aanvaarding
In overleg

Bouw

Soort woonhuis
Eengezinswoning, tussen woning
Soort bouw
Bestaande bouw
Bouwjaar
1996
Soort dak
Samengesteld dak
Staat van onderhouden binnen
Uitstekend
Staat van onderhouden buiten
Uitstekend

Oppervlakte en inhoud

Perceeloppervlakte
108 m2
Inhoud van de woning
390 m3

Indeling

Aantal kamers
5
Aantal slaapkamers
4
Aantal woonlagen
3
Voorzieningen
Tuin, schuur/berging, ventilatie, kabel-tv, glasvezel, buitenzonwering, airconditioning

Buitenruimte

Balkon
Nee
Schuur/berging
Ja

Maandlasten berekenen

De maandlasten voor je woning bestaan uit meer dan alleen de hypotheeklasten. Hieronder vind je een overzicht van de bijkomende kosten en lasten. Zo weet je precies wat je huis per maand gaat kosten. En met de handige vergelijkers kun je ook nog eens snel de beste deals sluiten!

  • Kaart
  • Streetview