Endezant 23 2285 LH Rijswijk

146m2
Wonen
4
Kamers
228m2
Perceel
2006
Bouwjaar
Bent u op zoek naar een woning waarbij slapen op de begane grond een must is, dan bent u hier aan het juiste adres.

Deze 2 laags hoekwoning (ca. 146m2) is uniek voor minder validen. De woning beschikt over een ruime woonkamer, slaapkamer, badkamer op de begane grond maar heeft ook het genot van een terras aan de woonkamer en heerlijke tuin aan het water, op de eerste verdieping treft u 2 ruime slaapkamers, een riant dakterras en een mogelijkheid voor een tweede badkamer.

Kortom, deze woning heeft alles!

De woning is gelegen in "Park Endezant" en is keurig onderhouden en gunstig gelegen nabij winkels, scholen, recreatie-/sportvoorzieningen, openbaar vervoer en de hoofdwegen naar de A4, A12 en A13
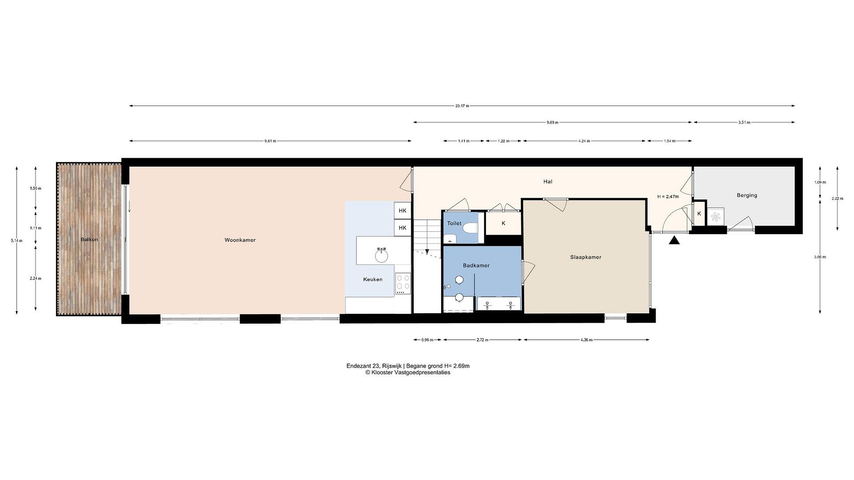
Begane grond
Middels keurig verzorgde voortuin toegang tot de woning. Entree, ruime hal v.v. berging aan de voorzijde, verwarmd spoeltoilet met fontein, meterkast, technische ruimte (alwaar opstelplaats cv-combi ketel (Remeha), zonneboiler, omvormer zonnepanelen, mechanische ventilatie box. Aan de voorzijde van de woning treft u de ruime ouderslaapkamer v.v. rolluiken (elektrisch) en badkamer ensuite. De moderne en zeer uitgebreide badkamer is in 2023 geplaatst en v.v. zitmogelijkheid, inloopdouche met dubbele regendouche, handdouche, dubbel wastafelmeubel, wandkast, gietvloer met vloerverwarming, verwarmde spiegel en handdoekradiator. vanuit de hal toegang tot de riante woonkamer met open keuken, veel daglicht door de hoekligging en een ruim terras aan het water (ZW). De keuken is keurig onderhouden en v.v. inductie kookplaat, afzuigkap, combi-oven, koel-/vriescombinatie en vaatwasser.

1e verdieping: overloop v.v. wasruimte alwaar opstelplaats wasmachine-/droger, toilet en wastafel (tevens geeft deze ruimte u de mogelijkheid een tweede badkamer te creëren). Grote slaapkamer aan de voorzijde van de woning met eveneens elektrische rolluiken en vaste kast, een berging in de hal en aan de achterzijde een ruime slaapkamer met toegang tot het zonnige en zeer ruime dakterras. Tevens beschikt de woning over een zeer verzorgde en keurige voor-en zij tuin met berging en doorgang naar de vlonder aan het water.

Deze woning is van alle gemakken voorzien!

Details
- Type woning: hoekwoning
- Bouwjaar 2006
- De woning is gelegen op eigen grond
- Woonoppervlak: ca. 146 m2
- Geheel v.v. dubbel glas
- De woning is goed geïsoleerd
- Begane grond v.v. rolluiken
- Woonkamer en ouderslaapkamer v.v. airco
- Uitgevoerde werkzaamheden: badkamer vervangen (2023) met gietvloer en vloerverwarming, riolering vervangen (2022), volledig geschilderd (2021), pvc-vloer (2023)
- Oplevering in overleg

Lees meer

Kenmerken

Overdracht

Prijs per m2
€ 4.945
Aangeboden sinds
23 april 2026
Status
Beschikbaar
Aanvaarding
In overleg

Bouw

Soort woonhuis
Eengezinswoning, hoek woning
Soort bouw
Bestaande bouw
Bouwjaar
2006
Staat van onderhouden binnen
Goed
Staat van onderhouden buiten
Goed

Oppervlakte en inhoud

Perceeloppervlakte
228 m2
Inhoud van de woning
560 m3
Oppervlakte externe bergruimte
7 m2
Oppervlakte gebouwgebonden buitenruimten
51 m2
Oppervlakte overige inpandige ruimten
6 m2

Indeling

Aantal kamers
4
Aantal slaapkamers
3
Aantal woonlagen
2
Voorzieningen
Tuin, balkon, schuur/berging, ventilatie, rolluiken, buitenzonwering, schuifpui

Buitenruimte

Balkon
Ja
Schuur/berging
Ja

Maandlasten berekenen

De maandlasten voor je woning bestaan uit meer dan alleen de hypotheeklasten. Hieronder vind je een overzicht van de bijkomende kosten en lasten. Zo weet je precies wat je huis per maand gaat kosten. En met de handige vergelijkers kun je ook nog eens snel de beste deals sluiten!

  • Kaart
  • Streetview