Noordeinde 11 2231 LK Rijnsburg

202m2
Wonen
6
Kamers
395m2
Perceel
1929
Bouwjaar
Te Koop! Noordeinde 11, 2231 LK te Rijnsburg

Vraagprijs: € 949.000,- k.k.
Woonoppervlakte: ca. 202 m2 | Gebruiksoppervlakte totaal: ca. 295 m2
Perceel: ca. 395 m2 | Inhoud: ca. 975 m3 | Energielabel: G
Oplevering: in overleg (kan snel)

Kijk ook op de persoonlijke web site van deze woning: noordeinde11.nl

Wonen in een karakteristiek jaren ’30 pand met ruimte, sfeer en volop mogelijkheden!

Met oog voor detail gebouwd in 1929 en gelegen op een uitstekende locatie nabij het centrum van Rijnsburg, staat deze vrijstaande woning aan het Noordeinde 11. Een pand vol charme, historie én potentie. Kenmerkend zijn de fraaie jaren ’30-details, zoals de hoge plafonds, de karakteristieke daklijn, het balkon met openslaande deuren, klassieke raampartijen en de stijlvolle erker aan de voorzijde.

En met ca. 202 m2 woonoppervlakte, een multi-functionele ruimte van ca. 93 m2 én een royale tuin op het westen, is dit niet alleen een bijzonder familiehuis, maar ook een kans voor wie wonen en werken wil combineren. De aanwezige gemengd-2 bestemming maakt gebruik voor o.a. praktijkruimte of atelier aan huis mogelijk.

Ligging:

Het Noordeinde 11 is een uitstekende locatie nabij het centrum van Rijnsburg, op steenworp afstand van de winkelcentrum de 'Hoftuin'. Hier doet u uw boodschappen lopend, geniet u van het dorpskarakter én zit u binnen no-time met de fiets op het strand van Katwijk aan Zee of in het historische centrum van Leiden. Ook de uitvalswegen richting Amsterdam, Den Haag of Schiphol zijn binnen enkele minuten bereikbaar.

Begane grond:

Via de authentieke voordeur komt u in de royale hal met trapopgang, trapkast, meterkast en toilet. Vanuit hier toegang tot de woonkamer en de keuken.

De lichte woonkamer van ca. 36 m2 met een plafondhoogte van 2.90 meter, klassieke schouw met open haard en sfeervolle erker aan de voorzijde, ademt de sfeer van de jaren ’30. Grote ramen zorgen voor veel lichtinval en zicht op het straatbeeld.

De ruime woonkeuken is functioneel opgezet in een hoekopstelling en beschikt over diverse inbouwapparatuur en voldoende ruimte voor een eethoek. De keuken heeft directe toegang tot de aangebouwde garage/berging, voorheen in gebruik als bollenschuur (ca. 46 m2). Hier vindt u een keukenblok, douchegelegenheid, opstelling CV en toegang tot de bovenliggende zolderverdieping.

Achter de berging is een serre van ca. 29 m2 aangebouwd, met openslaande deuren naar de achtertuin. Een heerlijke plek om ook op koelere dagen van het buitenleven te genieten.

Eerste verdieping:

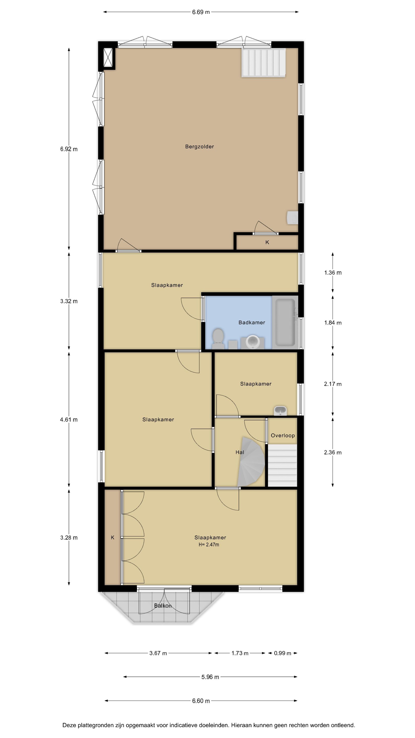
De overloop geeft toegang tot vier slaapkamers en een badkamer. De hoofdslaapkamer aan de voorzijde heeft een vaste kastwand én openslaande deuren naar het karakteristieke balkon. De badkamer is eenvoudig maar functioneel ingericht en voorzien van een ligbad/douchecombinatie, wastafelmeubel en tweede toilet.

Via de vierde slaapkamer is er toegang tot de grote bovengelegen bergzolder van ca. 46 m2, met hoge raampartijen en een interne trap naar de begane grond. Ook is er vanuit deze ruimte een losse trap naar enorme zolderruimte in de kap (stahoogte), daar liggen ook diverse uitbreiding mogelijkheden.

Tweede verdieping:

Op de zolderverdieping treft u de vijfde slaapkamer, voorzien van een dakkapel en extra dakraam. Deze ruimte is ideaal als logeer- of werkkamer.

Buitenruimte:

De diepe achtertuin ligt op het westen, biedt veel privacy en is ideaal voor wie houdt van zon in de middag en avond. Een fijne plek voor gezinnen, hobbytuiniers of gewoon om lekker buiten te zijn. De tuin is te bereiken via de serre en ook via de multi-functionele ruimte.

Bijzonderheden:

Karakteristieke jaren ’30 woning
Bouwjaar 1929 – authentieke details aanwezig
Vrijstaand familiehuis met veel ruimte én potentie
Woonoppervlakte ca. 202 m2 / totaal gebruiksoppervlakte ca. 295 m2
Perceel van 395 m2 / inhoud ca. 975 m3
5 slaapkamers, heel veel berg- en zolderruimte
Grote multifunctionele ruimte (voormalige bollenschuur) met verdieping
Gemengd-2 bestemming: wonen en/of werken toegestaan
Riante serre met openslaande deuren
Tuin op het westen
Energielabel G – houdt u rekening met toekomstige verduurzaming
Verwarming via CV-installatie: Bosch en Vaillant.
NEN 2580 Meetcertificaat aanwezig
Let op: De Niet-bewoning clausule en de Asbest- en Ouderdomsclausule zijn van toepassing
Oplevering in overleg, kan snel

Interesse?

Dit is een woning met karakter én toekomst. Ideaal voor grote gezinnen, mensen met een bedrijf aan huis of iedereen die de ruimte en uitstraling van vroeger wil combineren met het comfort van nu. Maak snel een afspraak met Makelaar Ronald Kooitje voor een bezichtiging. U bent van harte welkom!

Deze verkoopinformatie is met zorg samengesteld. Er kunnen echter geen rechten aan worden ontleend. Ten aanzien van eventuele onjuistheden aanvaarden wij geen aansprakelijkheid.
Lees meer

Kenmerken

Overdracht

Prijs per m2
€ 4.693
Aangeboden sinds
17 september 2025
Status
Beschikbaar
Aanvaarding
In overleg

Bouw

Soort woonhuis
Eengezinswoning, vrijstaande woning
Soort bouw
Bestaande bouw
Bouwjaar
1929
Soort dak
Zadeldak
Staat van onderhouden binnen
Goed
Staat van onderhouden buiten
Goed

Oppervlakte en inhoud

Perceeloppervlakte
395 m2
Inhoud van de woning
975 m3
Oppervlakte gebouwgebonden buitenruimten
17 m2
Oppervlakte overige inpandige ruimten
92 m2

Indeling

Aantal kamers
6
Aantal slaapkamers
5
Aantal woonlagen
3
Voorzieningen
Tuin, schuur/berging, open haard, kabel-tv, glasvezel

Buitenruimte

Balkon
Nee
Schuur/berging
Ja

Maandlasten berekenen

De maandlasten voor je woning bestaan uit meer dan alleen de hypotheeklasten. Hieronder vind je een overzicht van de bijkomende kosten en lasten. Zo weet je precies wat je huis per maand gaat kosten. En met de handige vergelijkers kun je ook nog eens snel de beste deals sluiten!

  • Kaart
  • Streetview