Verkocht OV

Van Bleiswijkhof 10 5121 HG Rijen

128m2
Wonen
5
Kamers
242m2
Perceel
1970
Bouwjaar
In dit rustig hofje ligt deze ruime hoekwoning met 4 slaapkamers. De tuin ligt op het zuidoosten, heeft een overkapping en een ruime berging met achterom en een extra brede poort aan de voorzijde. De gehele woning is v.v. dubbel glas. Een basisschool, bossen, winkels en uitvalswegen bevinden zich op loopafstand.
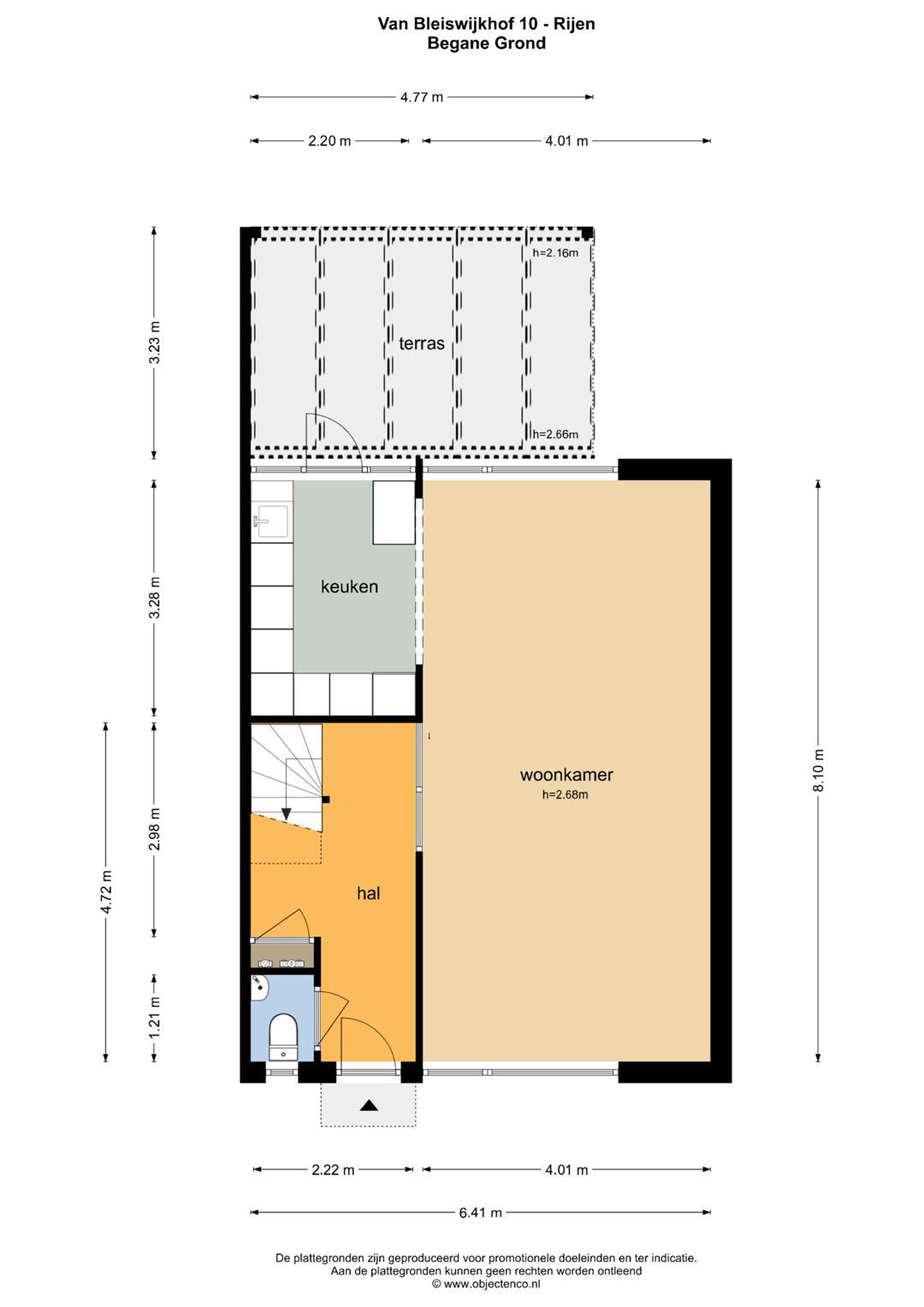
Begane grond
Entree/hal (4,72 m. x 2,22 m.) met garderobe, toilet met fonteintje, trapopgang, meterkast (6 groepen, 2 aardlekschakelaar en glasvezel) en ingang naar woonkamer. De hal is voorzien van een laminaatvloer. Tussen de hal en woonkamer zit een groot raam voor extra lichtinval en een houten, landelijke schuifdeur.

De woonkamer:
De woonkamer (8,10 m. x 4,01 m.) heeft een laminaatvloer. De wanden zijn glad afgewerkt en het plafonds is v.v. schuurwerk. De witte, aluminium kozijnen zijn v.v. HR+ glas. De ruimte is v.v. airconditioning.

De keuken
De open keuken (3,28 m. x 2,20 m.) ligt aan de achterzijde van de woning. Er staat een keukenblok in hoekopstelling met voldoende kastruimte in onder- en bovenkasten. De keuken is voorzien van een 4-pits gaskookplaat, een oven, een RVS afzuigkap, een vaatwasser en een koel-/vriescombinatie. De laminaatvloer is doorgetrokken vanuit de woonkamer. Het hardhouten kozijn met loopdeur geeft u toegang tot de achtertuin.

Eerste verdieping
Overloop met toegang tot 3 ruime slaapkamers, de badkamer en de vaste trap naar de tweede verdieping. Alle aluminium kozijnen op deze verdieping zijn voorzien van dubbel glas.

Slaapkamer 1
Aan de achterzijde van de woning gelegen ruime slaapkamer (4,32 m. x 4,03).

Slaapkamer 2
Aan de voorzijde gelegen ruime slaapkamer (3,68 m. x 4,03 m.).

Slaapkamer 3
Deze slaapkamer ligt aan de achterzijde (3,31 m. x 2,23 m).

De badkamer
De geheel betegelde badkamer (2,55 m. x 2,20 m.) ligt aan de voorzijde en is v.v. een ligbad en een douchecabine, beiden v.v. een thermostaatkraan. Verder is er een hangend toilet en een wastafelmeubel met twee lades en een zwevende kast.



Tweede verdieping
Via vaste trap bereikbare zolderverdieping. Op de voorzolder (5,09 m. x 2,33 m.) bevindt zich de cv-ketel (huur; Intergas 2017 € 40,18 per maand) en vindt u de wasaansluitingen en de installatie voor de mechanische ventilatie.

Slaapkamer 4
Deze slaapkamer (5,00/3,74 m. x 4,03 m.) heeft een laminaatvloer en het plafond is afgewerkt met stucplaten. Aan de achterzijde vindt u een groot Velux dakraam v.v. dubbel glas.

Tuin
De achtertuin
De achtertuin (ca. 14,40 m. x 8,61 m.) is gelegen op het zuidoosten. Direct achter de woning staat een antraciet, aluminium terrasoverkapping met transparant, polycarbonaat dak, zodat u de lichtinval in uw woonkamer behoud. De tuin is v.v. tegels, een kunststof gazon en een buitenkraan. Achter in de tuin staat een berging (6,65 m. x 2,10 m.) v.v. elektra en een poort voor achterom. Aan de voorzijde, naast de woning, vindt u een extra brede poort.

Details
- ruime woning
- woonkamer met airconditioning
- open keuken
- 4 ruime slaapkamers
- ruime tuin op het zuidoosten met achterom, zijpoort en berging; mogelijkheid stallen motor
- gehele woning v.v. dubbel glas
- parkeerplaatsen voor de deur
- toilet verouderd
- u dient rekening te houden met het vernieuwen van de houten delen aan de voorzijde van de woning (boven het raam van de woonkamer) en het
schilderwerk van de houten delen
- cv-ketel is een huurketel welke verwijderd kan worden zonder kosten, overgenomen kan worden (€ 40,18 per maand) of afgekocht kan worden
- nabij bossen, basisscholen en uitvalswegen

Lees meer

Kenmerken

Overdracht

Prijs per m2
€ 2.930
Aangeboden sinds
20 oktober 2025
Status
Verkocht onder voorbehoud
Aanvaarding
In overleg

Bouw

Soort woonhuis
Eengezinswoning, hoek woning
Soort bouw
Bestaande bouw
Bouwjaar
1970
Soort dak
Zadeldak
Staat van onderhouden binnen
Goed
Staat van onderhouden buiten
Goed

Oppervlakte en inhoud

Perceeloppervlakte
242 m2
Inhoud van de woning
453 m3
Oppervlakte gebouwgebonden buitenruimten
15 m2

Indeling

Aantal kamers
5
Aantal slaapkamers
4
Aantal woonlagen
3
Voorzieningen
Tuin, schuur/berging, glasvezel, airconditioning, dakraam

Buitenruimte

Balkon
Nee
Schuur/berging
Ja

Maandlasten berekenen

De maandlasten voor je woning bestaan uit meer dan alleen de hypotheeklasten. Hieronder vind je een overzicht van de bijkomende kosten en lasten. Zo weet je precies wat je huis per maand gaat kosten. En met de handige vergelijkers kun je ook nog eens snel de beste deals sluiten!

  • Kaart
  • Streetview