Willem de Kooning Allee 17 3161 DT Rhoon

147m2
Wonen
4
Kamers
80m2
Perceel
2024
Bouwjaar
Een moderne, energiezuinige woning waar luxe, comfort en ruimte samenkomen. Dit is nieuwbouw wonen op z’n allerbest!

YESS! DIT WIL JE NIET MISSEN – DE HIGHLIGHTS OP EEN RIJ:

1. Bouwjaar 2024: splinternieuw en volledig instapklaar;
2. Energielabel A++++ met bodemwarmtepomp;
3. Gasloos, volledig geïsoleerd en toekomstbestendig;
4. 10 zonnepanelen voor lage energielasten;
5. Royale en lichte woonverdieping met open keuken;
6. Prachtige keuken met kookeiland;
7. Heerlijke woonkamer met grote raampartijen;
8. Groot terras op het zuiden;
9. Vrij uitzicht over de polder vanaf het terras;
10. Drie volwaardige slaapkamers;
11. Twee badkamers – ideaal voor gezin of gasten.

Krijg je ook dat YESS-gevoel bij het lezen van deze punten? Dan nodigen wij je heel graag uit voor een bezichtiging van deze leuke woning!

DE LIGGING:
Je woont hier aan de Willem de Kooning Allee in Rhoon, in een moderne, ruim opgezette en groene woonwijk waar rust en comfort perfect samenkomen. De wijk heeft een prettige, bijna dorpse sfeer met veel aandacht voor groen, waterpartijen en brede straten. Een omgeving waar je je snel thuis voelt en waar het dagelijks leven ontspannen aanvoelt.

In de directe omgeving vind je alle voorzieningen die je nodig hebt. Voor je dagelijkse boodschappen, winkels en horecagelegenheden kun je terecht in het gezellige centrum van Rhoon, dat op korte afstand ligt. Ook scholen, kinderopvang en sportverenigingen bevinden zich in de buurt, wat deze locatie ideaal maakt voor zowel gezinnen als stellen.

Liefhebber van natuur en buitenleven? Dan zit je hier helemaal goed. Op korte afstand liggen diverse natuur- en recreatiegebieden, zoals de Rhoonse Grienden, Klein Profijt en de polders rondom Rhoon. Perfect voor een fijne wandeling, een rondje hardlopen of een ontspannen fietstocht in het groen.

Ook qua bereikbaarheid is de ligging uitstekend. Het openbaar vervoer is goed geregeld met bus- en metroverbindingen richting Rotterdam en omliggende plaatsen. Met de auto ben je bovendien binnen enkele minuten op de A15 en A29, waardoor je snel richting Rotterdam, de Hoeksche Waard of verder de Randstad in rijdt.

DE INDELING:

Begane grond:
Je komt aan bij de woning en parkeert je auto op je eigen parkeerplaats. YESS! Via de entree stap je binnen in de hal, waar je toegang hebt tot de trapopgang, een praktische trapkast en een modern afgewerkt toilet met fonteintje.

Aan de voorzijde bevindt zich een ruime slaapkamer met een fijne plafondhoogte en prettig daglicht. Ideaal als master bedroom, maar ook perfect te gebruiken als werk- of logeerkamer. En-suite beschik je over een nette badkamer, voorzien van een douche en wastafel: comfortabel en praktisch ingericht.

Extra fijn is de inpandige berging, perfect voor fietsen, opslag of hobbyspullen. Alles netjes en uit het zicht!

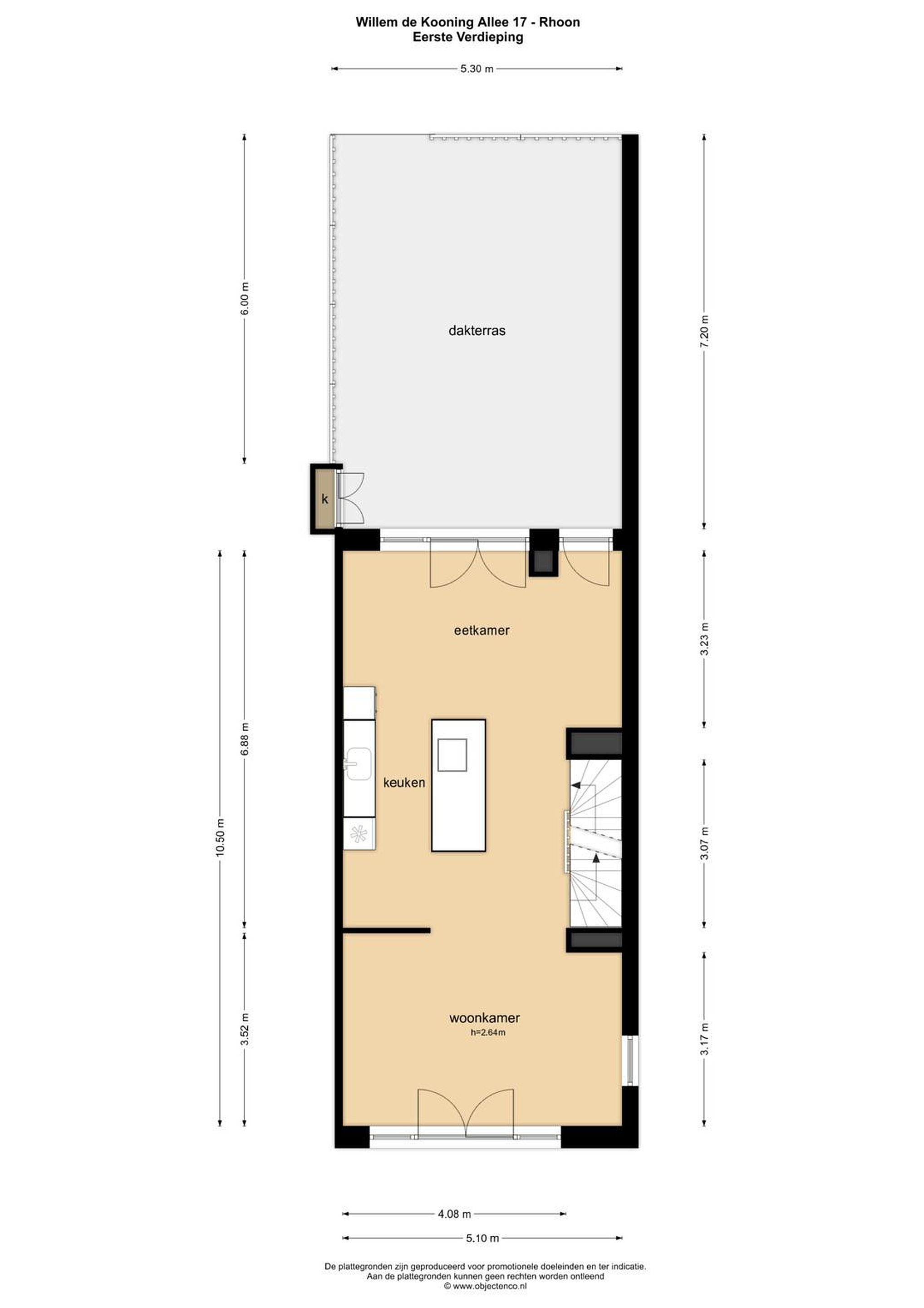
Eerste verdieping:
Via de trap kom je op de woonverdieping en hier gebeurt het écht. Je stapt binnen in de ruime en lichte woonkamer, waar grote raampartijen zorgen voor een heerlijke hoeveelheid daglicht. Hier creëer je moeiteloos een comfortabele zithoek waar je na een lange dag heerlijk kunt ontspannen.

Midden in de woonkamer bevindt zich de prachtige keuken met kookeiland. De keuken is praktisch opgesteld en biedt volop ruimte om uitgebreid te koken én gezellig te tafelen. De open verbinding tussen koken, eten en wonen maakt deze verdieping perfect voor lange avonden met vrienden of familie.

En dan… het absolute hoogtepunt: via openslaande deuren stap je zo het royale terras op. Een fantastische buitenruimte waar je de hele dag kunt genieten van zon, rust en een prachtig uitzicht over de polder. Een echte verlenging van je woonkamer!

Tweede verdieping:
Op de bovenste verdieping kom je op de overloop met toegang tot twee ruime slaapkamers. Beide kamers zijn prettig van formaat en flexibel in te delen als slaap-, werk- of hobbykamer. Dankzij de goede indeling en fijne lichtinval voelen de kamers heerlijk ruim aan.

Daarnaast vind je hier een tweede badkamer, compleet uitgevoerd met een ligbad, douche, wastafel en toilet. Ideaal voor gezinnen of gasten: geen ochtendspits meer in de badkamer!

DE AFMETINGEN:
Voor de afmetingen en indeling, zie de plattegrond.

DE BIJZONDERHEDEN:
- Zeer energiezuinige woning met energielabel A++++;
- Bouwjaar: 2024;
- Volledig geïsoleerd;
- Voorzien van een warmtepomp, boiler van 200L en WTW;
- Woonoppervlakte: ca. 147 m2;
- Twee badkamers;
- Groot terras van maar liefst 38 m2 ;
- Eigen parkeerplaats;
- Moderne installaties en luxe afwerking;
- VvE-bijdrage € 55,06 per maand (parkeerplaats en gedeelde ruimtes);
- Oplevering: in overleg.

De Meetinstructie is gebaseerd op de NEN2580. De Meetinstructie is bedoeld om een meer eenduidige manier van meten toe te passen voor het geven van een indicatie van de gebruiksoppervlakte. De Meetinstructie sluit verschillen in meetuitkomsten niet volledig uit, door bijvoorbeeld interpretatieverschillen, afrondingen of beperkingen bij het uitvoeren van de meting.
Alle verstrekte informatie moet beschouwd worden als een uitnodiging tot het doen van een bod of om in onderhandeling te treden. Er kunnen geen rechten worden ontleend aan deze woninginformatie.

Ben jij net zo enthousiast als wij over deze woning? Bel, mail of app ons gerust voor een afspraak of laat je gegevens achter via deze site!
Lees meer

Kenmerken

Overdracht

Prijs per m2
€ 4.932
Aangeboden sinds
26 januari 2026
Status
Beschikbaar
Aanvaarding
In overleg

Bouw

Soort woonhuis
Eengezinswoning, eind woning
Soort bouw
Bestaande bouw
Bouwjaar
2024
Soort dak
Plat dak
Staat van onderhouden binnen
Goed
Staat van onderhouden buiten
Goed

Oppervlakte en inhoud

Perceeloppervlakte
80 m2
Inhoud van de woning
533 m3
Oppervlakte gebouwgebonden buitenruimten
74 m2

Indeling

Aantal kamers
4
Aantal slaapkamers
3
Aantal woonlagen
3
Voorzieningen
Tuin, kabel-tv, fransbalkon

Buitenruimte

Balkon
Nee
Schuur/berging
Nee

Maandlasten berekenen

De maandlasten voor je woning bestaan uit meer dan alleen de hypotheeklasten. Hieronder vind je een overzicht van de bijkomende kosten en lasten. Zo weet je precies wat je huis per maand gaat kosten. En met de handige vergelijkers kun je ook nog eens snel de beste deals sluiten!

  • Kaart
  • Streetview