Verkocht

Aaltsengoed 138 3882 KJ Putten

118m2
Wonen
5
Kamers
135m2
Perceel
2010
Bouwjaar
“Fijne gezinswoning met aangebouwde serre in de geliefde wijk Bijsteren”

Op een leuke plek in de geliefde en kindvriendelijke wijk Bijsteren in Putten staat deze verzorgde, uitgebouwde middenwoning uit 2010 met energielabel A+ en zonnige achtertuin op het zuidwesten. Een fijn gezinshuis met vier slaapkamers, een complete keuken en als echte blikvanger de heerlijke aangebouwde serre aan de achterzijde. Een plek waar binnen en buiten mooi in elkaar overlopen en waar je het hele jaar door prettig kunt zitten.
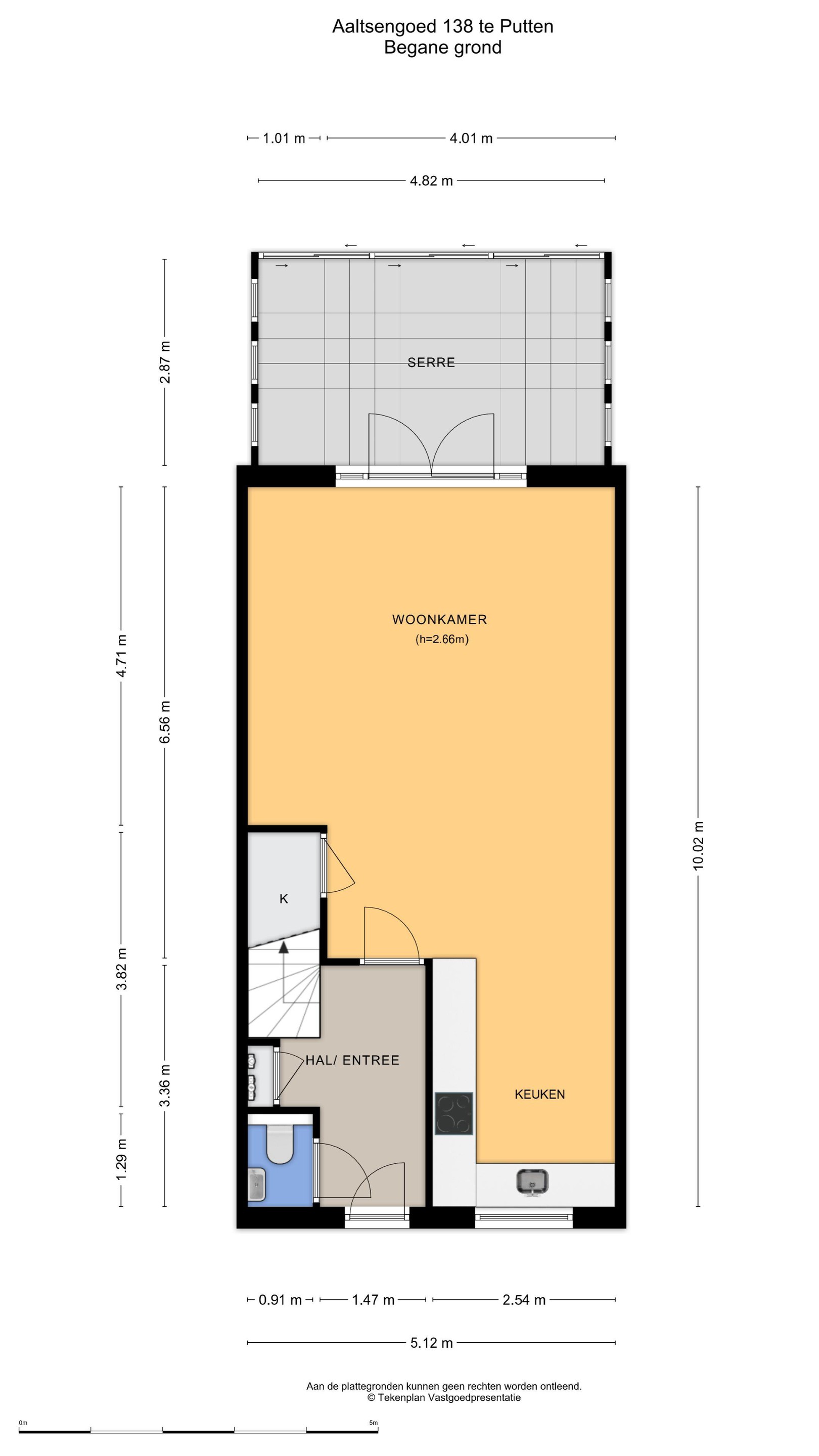
Via de voordeur komen we binnen in de bovengemiddeld ruime hal. Hier bevinden zich de meterkast, de trapopgang en een nette, tijdloze toiletruimte met fonteintje. Vanuit de hal lopen we door de stoere zwarte deur naar de living. Wat direct opvalt zijn de strak gestucte plafonds en wanden en het fijne ruimtelijke gevoel. De openslaande deuren naar de veranda zorgen voor veel licht en maken het buitenleven echt onderdeel van de woonkamer. Leuke details zijn de moderne wandlampjes die het geheel een eigentijdse uitstraling geven.

Er is voldoende ruimte voor een royale zithoek en een gezellige eethoek. De keuken is compleet uitgevoerd en voorzien van onder andere een gasfornuis, oven-magnetroncombinatie, koel-vriescombinatie en uiteraard een vaatwasser. In de trapkast is volop bergruimte aanwezig. Alles is aanwezig voor een prettig dagelijks gezinsleven.

Vanuit de woonkamer lopen we door naar de veranda, en die trekt toch meteen de aandacht. De ruime veranda ligt direct aan de achtergevel en is voorzien van glazen schuifpanelen, spotjes en verwarming. Hierdoor kun je hier vrijwel het hele jaar door zitten. Een verlengstuk van de woonkamer dus. Een fijne plek voor een barbecue, een borrel met vrienden of een chillplek voor de kinderen.
De achtertuin ligt gunstig op het zuidwesten, waardoor je hier tot in de avond van de zon kunt genieten. De tuin is verzorgd aangelegd met kunstgras en bestrating en beschikt over een berging en een achterom. Doordat er geen blok woningen direct achter de tuin ligt, ervaar je hier veel privacy.

Via de hal lopen we naar de eerste verdieping. Ook hier zien we weer het nette stucwerk op de wanden en plafond en de moderne wandlampen komen terug. Op deze verdieping bevinden zich drie slaapkamers. Twee fijne kinderkamers en een ruime masterbedroom met inbouwkast. De slaapkamers aan de zonzijde zijn voorzien van elektrische rolluiken. De badkamer is praktisch ingericht met een douche, een toilet en een wastafelmeubel.

De tweede verdieping biedt verrassend veel ruimte. Hier is een goede vierde slaapkamer gerealiseerd met een groot dakraam. In de andere ruimte, eveneens met dakraam, bevinden zich de aansluitingen voor wasmachine en droger en de cv-installatie. Daarnaast is er voldoende bergruimte en via een vliering is er nog extra plek voor spullen die je minder vaak nodig hebt.

Dit is een prettig en compleet familiehuis op een fijne plek in Putten!

Bijzonderheden op een rij:
- energielabel A+
- heerlijke afsluitbare serre
- 4 slaapkamers
- elektrische rolluiken
- bouwjaar: 2010
- zonnige achtertuin tot in de avond
- strak gestucte plafonds en wanden in de gehele woning
- prettige buurt waar bewoners lang blijven wonen
- complete keuken
- veel privacy in de tuin
- speellocaties om de hoek

Waarom is het hier zo fijn wonen?
De wijk Bijsteren is een van de jongere woonwijken van Putten en staat bekend als een prettige, ruim opgezette en kindvriendelijke buurt. Veel bewoners wonen hier al lange tijd, wat zorgt voor een fijne en betrokken sfeer in de wijk. Speelplekken, basisscholen en sportvoorzieningen liggen op korte afstand. Ook het gezellige dorpscentrum van Putten, met diverse winkels, horeca en supermarkten, is binnen enkele minuten fietsen bereikbaar. Daarnaast ben je vanuit Bijsteren snel op de uitvalswegen richting Harderwijk, Nijkerk en de A28. Een fijne plek om te wonen dus, waar rust, ruimte en voorzieningen mooi samenkomen.
Lees meer

Verkoopgeschiedenis

Aangeboden sinds
12 maart 2026
Verkoopdatum
8 mei 2026
Looptijd
2 maanden

Kenmerken

Overdracht

Prijs per m2
€ 4.364
Aangeboden sinds
12 maart 2026
Status
Verkocht
Aanvaarding
In overleg

Bouw

Soort woonhuis
Eengezinswoning, tussen woning
Soort bouw
Bestaande bouw
Bouwjaar
2010
Soort dak
Zadeldak
Staat van onderhouden binnen
Goed
Staat van onderhouden buiten
Goed

Oppervlakte en inhoud

Perceeloppervlakte
135 m2
Inhoud van de woning
426 m3
Oppervlakte externe bergruimte
5 m2
Oppervlakte gebouwgebonden buitenruimten
14 m2

Indeling

Aantal kamers
5
Aantal slaapkamers
4
Aantal woonlagen
3
Voorzieningen
Tuin, schuur/berging, ventilatie, rolluiken, glasvezel, buitenzonwering, dakraam

Buitenruimte

Balkon
Nee
Schuur/berging
Ja

Maandlasten berekenen

De maandlasten voor je woning bestaan uit meer dan alleen de hypotheeklasten. Hieronder vind je een overzicht van de bijkomende kosten en lasten. Zo weet je precies wat je huis per maand gaat kosten. En met de handige vergelijkers kun je ook nog eens snel de beste deals sluiten!

  • Kaart
  • Streetview