Verkocht

Koppelstraat 2 4645 RD Putte

114m2
Wonen
4
Kamers
620m2
Perceel
1954
Bouwjaar
Waarom je hier wil wonen.

Zoek je rust, ruimte en comfort zonder in te leveren op bereikbaarheid?
Dan is deze royale twee-onder-één-kapwoning in Putte precies wat je zoekt.
Hier woon je in een verzorgde, ruime woning met een heerlijke groene tuin, in een omgeving waar de dagelijkse drukte plaatsmaakt voor ontspanning. Een plek waar je kunt genieten van het buitenleven, met de stad altijd dichtbij.

Ruimte, licht en comfort.

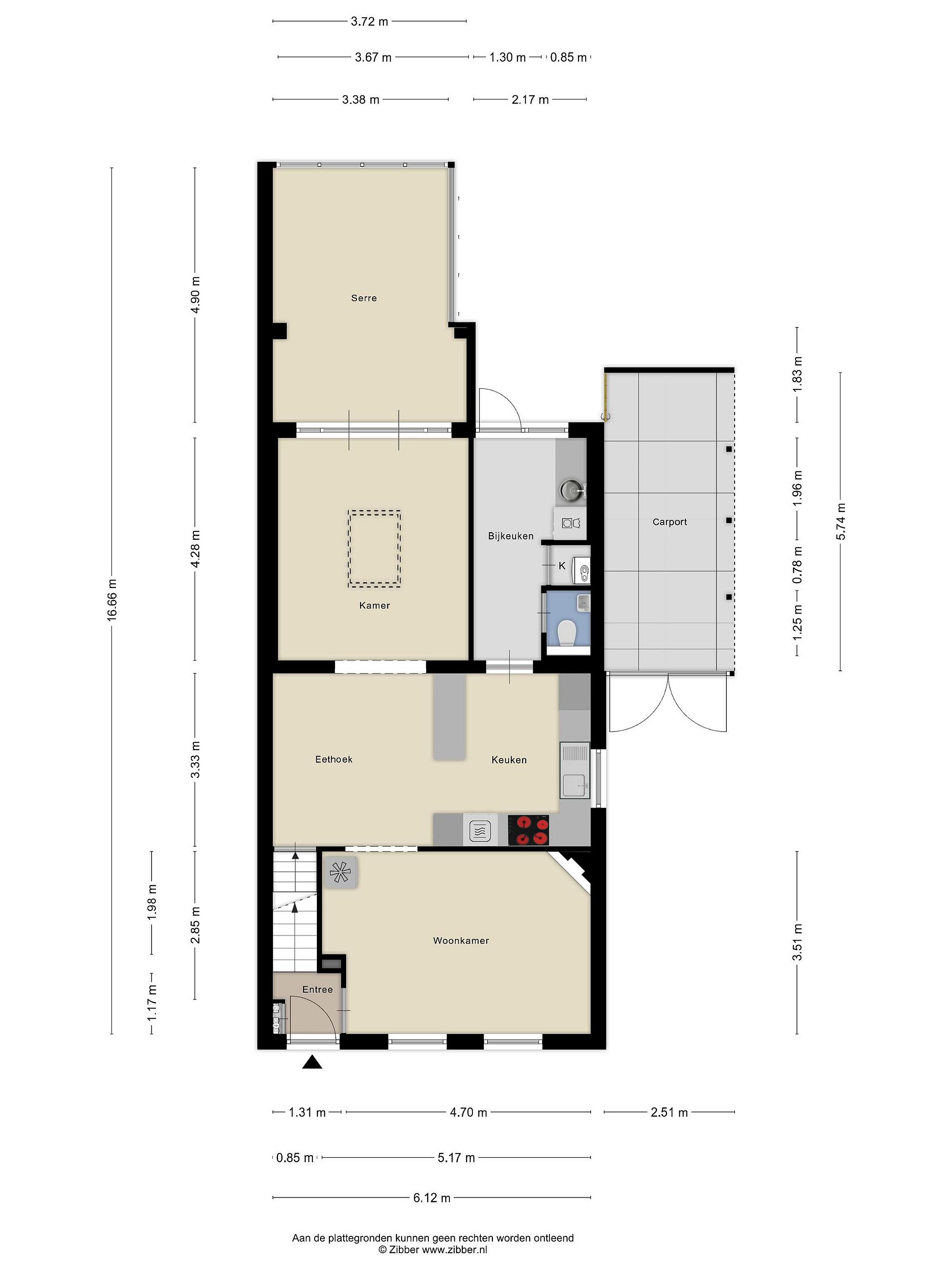
De woning biedt verrassend veel leefruimte en is uitstekend onderhouden. De sfeervolle woonkamer met pelletkachel en lichtkoepel vormt het hart van het huis. Dankzij de openslaande tuindeuren en grote raampartijen geniet je van veel licht en een direct contact met buiten. Aangrenzend bevindt zich de serre met glazen schuifwanden en terrasverwarmer, een comfortabele plek waar je het hele jaar door kunt genieten van het buitengevoel.

De moderne open keuken is volledig uitgerust met inbouwapparatuur en vormt een logische verbinding tussen wonen en koken. Aangrenzend bevindt zich de praktische bijkeuken die beschikt over extra bergruimte, witgoedaansluitingen en een toiletruimte.

1e verdieping.

Op de eerste verdieping bevinden zich drie volwaardige slaapkamers, waarvan twee met ingebouwde kasten. De moderne badkamer is voorzien van een ligbad met douchefunctie, dubbele wastafel, tweede toilet en designradiator. Alle slaapkamers beschikken over rolluiken, wat zorgt voor comfort en rust.

2e verdieping.
De tweede verdieping is via een vaste trap bereikbaar en ingericht als extra kamer en voorzien van airconditioning. Een vlizotrap geeft toegang tot de bergzolder met extra opslagruimte.

Tuin en buitenruimte.

De fraai aangelegde, zonnige achtertuin biedt volop privacy en meerdere zitplekken om van de dag te genieten. De natuurlijke begroeiing zorgt voor een groen en beschut karakter.

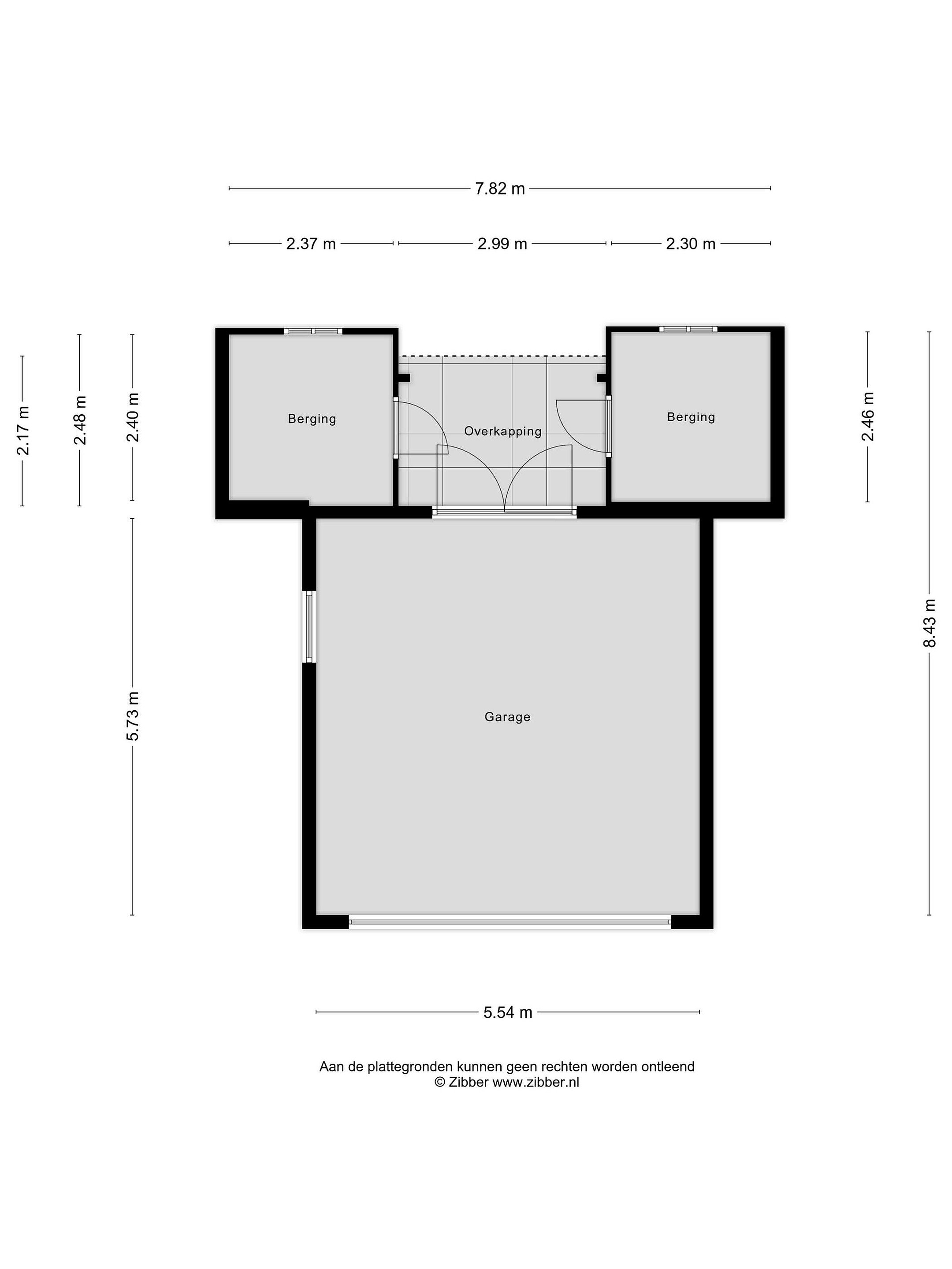
Achter op het perceel bevindt zich een dubbele stenen garage met elektrische deur en isolatie – ideaal voor hobby’s of het stallen van voertuigen. De dubbele oprit biedt parkeergelegenheid op eigen terrein. Daarnaast is er een houten berging en een kippenren aanwezig. Aan de voorzijde van het perceel bevindt zich een carport met nog extra parkeergelegenheid op eigen terrein.

Duurzaam en energiezuinig

De woning is met zorg gemoderniseerd en beschikt over:

8 zonnepanelen

HR++-beglazing

Dak-, vloer- en gevelisolatie

Energielabel B

Zo woon je niet alleen comfortabel, maar ook duurzaam en toekomstgericht.

Ligging

De woning ligt in het gezellige grensdorp Putte, bekend om zijn gemoedelijke sfeer en groene omgeving. In het dorp vind je supermarkten, winkels, basisscholen, kinderopvang, een apotheek en diverse sportverenigingen.

Binnen circa 20 minuten bereik je zowel Bergen op Zoom als Antwerpen, en via de A58/A4 zijn ook steden als Roosendaal, Breda en Rotterdam goed bereikbaar. Zo combineer je de rust van buiten wonen met de voordelen van centrale ligging en uitstekende verbindingen.

Belangrijkste kenmerken

Woonoppervlakte: ca. 114 m2

Perceeloppervlakte: 620 m2 eigen grond

Bouwjaar: 1954 – gedeeltelijke modernisering in 2018

Vrijstaande dubbele garage met dubbele oprit

8 zonnepanelen

Dak-, vloer- en gevelisolatie

HR++-beglazing

Energielabel B

Zonnige tuin met veel privacy

Oplevering in overleg

Kortom:
Een verzorgde, ruime woning met karakter en comfort, ideaal voor wie het drukke leven wil verruilen voor rust, ruimte en kwaliteit.
Hier woon je in alle vrijheid – met alles wat belangrijk is binnen handbereik.
Lees meer

Verkoopgeschiedenis

Aangeboden sinds
10 november 2025
Verkoopdatum
4 februari 2026
Looptijd
3 maanden

Kenmerken

Overdracht

Prijs per m2
€ 4.605
Aangeboden sinds
10 november 2025
Status
Verkocht
Aanvaarding
In overleg

Bouw

Soort woonhuis
Eengezinswoning, twee-onder-een-kap woning
Soort bouw
Bestaande bouw
Bouwjaar
1954
Soort dak
Zadeldak
Staat van onderhouden binnen
Goed
Staat van onderhouden buiten
Goed

Oppervlakte en inhoud

Perceeloppervlakte
620 m2
Inhoud van de woning
434 m3
Oppervlakte externe bergruimte
44 m2
Oppervlakte gebouwgebonden buitenruimten
32 m2
Oppervlakte overige inpandige ruimten
9 m2

Indeling

Aantal kamers
4
Aantal slaapkamers
3
Aantal woonlagen
3
Voorzieningen
Tuin, schuur/berging, rolluiken, airconditioning, rookkanaal, dakraam

Buitenruimte

Balkon
Nee
Schuur/berging
Ja

Maandlasten berekenen

De maandlasten voor je woning bestaan uit meer dan alleen de hypotheeklasten. Hieronder vind je een overzicht van de bijkomende kosten en lasten. Zo weet je precies wat je huis per maand gaat kosten. En met de handige vergelijkers kun je ook nog eens snel de beste deals sluiten!

  • Kaart
  • Streetview