De Wherelanden 135 1441 ZM Purmerend

161m2
Wonen
6
Kamers
129m2
Perceel
2018
Bouwjaar
Tussen het 'Leeghwaterpark' en het centrum van Purmerend vindt u dit schitterend, gevarieerd en compacte woonwijkje genaamd 'Klein Where'. Door de verschillende kleuren gevelsteen en wisselende kapvormen heeft het rijtje een heel speelse en aantrekkelijke uitstraling.
Dit huis betreft er een van het grootste type genaamd 'De Brouwer' (maar liefst 614m3) met daaraan zelfs toegevoegd een grote glazen serre staat nu te koop wegens emigratieplannen. Aan de achterzijde heeft u mooi ruim uitzicht door ligging in verlengde van de entree met binnenplaats waaraan deze 11 Hofwoningen alle hun eigen parkeerplaats hebben! Bijkomend voordeel is dat u daardoor straks langer genieten kan de ondergaande zon.
Deze woning is zeer luxe, strak en ruimtelijk ingedeeld werkelijk om zó te betrekken!
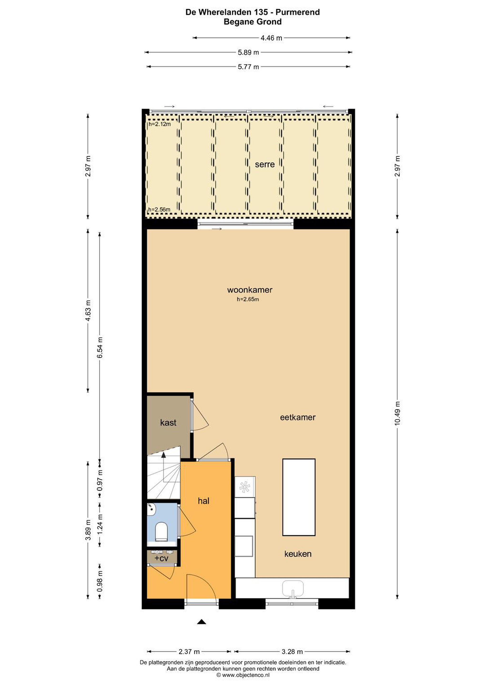
Begane grond
Hal, modern toilet, trapopgang, witte hoogglans frontkeuken, brede woonkamer en glazen serre met toegang tot zonnige achtertuin (zw)

Eerste verdieping
Overloop, drietal slaapkamers variërend van bijna 10 tot 16m2, badkamer en separate toiletruimte.

Tweede verdieping
Grote overloop vierde-, en vijfde slaapkamer (beiden ca. 12m2)

Tuin
Beide tuinen zijn voorzien van onderhoudsvrije bestrating met groot type licht tegels. De achtertuin is afgeschermd door toegangspoort en solide schuttingen rondom waardoor privacy gegarandeerd is.

Details
-Grootste type met bijna 180m2 woongenot (161m2 met extra glazen serre van17,5m2)
-Brede schuifpui
-Zeer luxe woonkeuken
-Hygiënische harde vloerbedekking
-Vloerverwarming op álle verdiepingen
-Airco op álle verdiepingen
-Toepassing rolluiken, screens en interne raamdecoratie
-5 tal grote slaapkamers
-Rechte gevels aan voor en achterzijde (614m3)
-Drietal dakvensters
-Flinke vliering met ruime stahoogte
-Buitenverlichting alsmede opbouwverlichting inclusief
-Eigen parkeerplaats aansluitend aan achtertuin (op zw)
-Elektrische auto eenvoudig thuis laden door plaatsen eigen wallbox
-Eigen grond

Lees meer

Kenmerken

Overdracht

Prijs per m2
€ 4.262
Aangeboden sinds
2 september 2025
Status
Beschikbaar
Aanvaarding
In overleg

Bouw

Soort woonhuis
Eengezinswoning, tussen woning
Soort bouw
Bestaande bouw
Bouwjaar
2018
Soort dak
Zadeldak
Staat van onderhouden binnen
Uitstekend
Staat van onderhouden buiten
Uitstekend

Oppervlakte en inhoud

Perceeloppervlakte
129 m2
Inhoud van de woning
613 m3
Oppervlakte externe bergruimte
6 m2
Oppervlakte gebouwgebonden buitenruimten
17 m2
Oppervlakte overige inpandige ruimten
11 m2

Indeling

Aantal kamers
6
Aantal slaapkamers
5
Aantal woonlagen
4
Voorzieningen
Tuin, schuur/berging, ventilatie, rolluiken, glasvezel, buitenzonwering, airconditioning, schuifpui, dakraam

Buitenruimte

Balkon
Nee
Schuur/berging
Ja

Maandlasten berekenen

De maandlasten voor je woning bestaan uit meer dan alleen de hypotheeklasten. Hieronder vind je een overzicht van de bijkomende kosten en lasten. Zo weet je precies wat je huis per maand gaat kosten. En met de handige vergelijkers kun je ook nog eens snel de beste deals sluiten!

  • Kaart
  • Streetview