Verkocht OV

Klaproosstraat 4 6611 DK Overasselt

158m2
Wonen
5
Kamers
340m2
Perceel
2004
Bouwjaar
TE KOOP:
Deze verrassend ruime 2-onder-1-kapwoning beschikt over een royale geïsoleerde garage (39 m2), vier slaapkamers, een gemoderniseerde badkamer en een heerlijke tuin met een gewilde overkapping. Deze woning is ideaal voor gezinnen en biedt alles wat u nodig heeft.
Nieuwsgierig geworden? Vul snel een contactformulier in op onze website dan plannen we samen een bezichtiging in. Wie weet wordt dit jouw nieuwe (t)huis!

Bij binnenkomst komt u in de entree/hal, waarna u het toilet, meterkast en trapopgang naar de 1ste verdieping aantreft. Vanuit hier heeft u toegang tot de lichte woonkamer met open keuken, gebouwd in 2004 (48 m2) . De keuken beschikt over een granieten aanrecht en is voorzien van diverse ingebouwde apparatuur, waaronder een koelkast, magnetron, hete luchtoven, afzuigkap, inductiekookplaat (2018) en vaatwasser (2022). Dankzij de grote raampartij in de keuken geniet u van een prettig uitzicht over de staat en prettig lichtinval in de keuken.
Via de openslaande tuindeuren heeft u toegang tot de achtertuin. Midden in de woonkamer bevindt zich een gezellige houtkachel (ter overname). Vanuit de keuken is er tevens toegang tot de ruime garage. Deze garage is gebouwd in spouw en goed geïsoleerd. Naast de elektrische garagedeur is er een separate loopdeur voor gemakkelijke toegang. Naast het parkeren in de straat is er op eigen terrein voldoende ruimte voor het parkeren van minstens twee auto’s.
1ste verdieping:
Overloop met drie ruime slaapkamers (17 m2, 14 m2 en 10 m2), allemaal voorzien van een laminaatvloer, radiatoren, houten kozijnen, horren en rolluiken. Tussen twee van deze slaapkamers bevindt zich een grote walk-in closet. De complete en reeds gemoderniseerde badkamer (2024) is uitgerust met een ligbad, inloopdouche, tweede toilet, elektrische vloerverwarming, mechanische ventilatie en een wastafelmeubel.

2de verdieping:
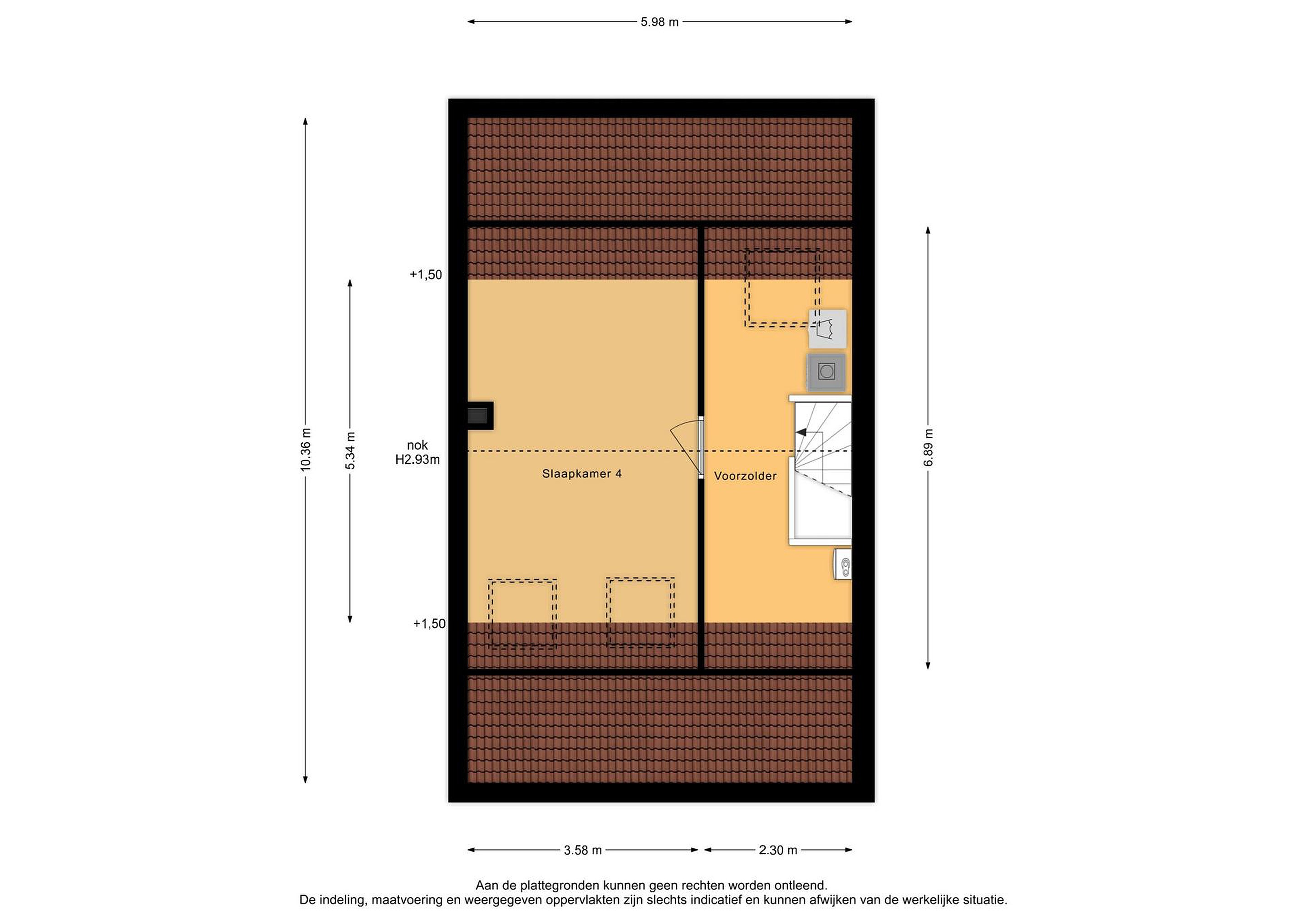
Een overloop met aansluitingen voor de wasmachine, droger en de CV-combiketel (Nefit TrendLine HRC30 CW5, 2024). De overloop beschikt over veel bergruimte. De zeer royale vierde slaapkamer (19 m2) is voorzien van Veluxramen en biedt uitbreidingsmogelijkheden. Door het plaatsen van een dakkapel kan hier mogelijk een vijfde slaapkamer of werkkamer worden gerealiseerd.



Tuin:
De mooi aangelegde achtertuin ligt op het Zuidoosten en beschikt over een terras waar je in de zon kunt genieten, maar ook heerlijk onder het elektrische zonnescherm de schaduw kunt opzoeken. De tuin is aangelegd met een gazon en diverse groene beplanting. De eyecatcher in deze tuin is ongetwijfeld de in 2019 geplaatste, zeer gewilde overkapping met berging.

Ligging:
Overasselt maakt deel uit van de gemeente Heumen en is een schitterend dorp. Aan de ene kant stroomt de Maas met zijn uitgestrekte uiterwaarden, terwijl aan de andere kant de Overasseltse en Hatertse Vennen liggen. Dankzij de vele fiets- en wandelpaden is dit unieke natuurgebied uitstekend bereikbaar. Nijmegen en de A73/A50 liggen op korte afstand, en het dorp telt ongeveer 2.700 inwoners. Hier vind je alle benodigde voorzieningen, zoals een basisschool, diverse winkels, een bibliotheek, huisarts, tandarts en fysiotherapie. Overasselt heeft een actief verenigingsleven, sporthal en sportvelden, evenals een verenigingsgebouw.

Bijzonderheden:
- Definitief energielabel A
- Gelegen in een geliefde woonwijk in Overasselt
- Voorzien van 16 stuks zonnepanelen (2020)
- Cv combiketel Nefit trendline HRC30 CW5 december 2024 geïnstalleerd
- Alle slaapkamers 1ste verdieping voorzien van rolluiken
- Royale, geïsoleerde en inpandig te bereiken garage (Elektrische roldeur en een geïsoleerde loopdeur)
- grondwater Puls is aanwezig (de pomp zelf verhuisd mee met huidige eigenaren)
Lees meer

Kenmerken

Overdracht

Prijs per m2
€ 3.665
Aangeboden sinds
14 november 2025
Status
Verkocht onder voorbehoud
Aanvaarding
In overleg

Bouw

Soort woonhuis
Eengezinswoning, twee-onder-een-kap woning
Soort bouw
Bestaande bouw
Bouwjaar
2004
Soort dak
Zadeldak
Staat van onderhouden binnen
Goed
Staat van onderhouden buiten
Goed

Oppervlakte en inhoud

Perceeloppervlakte
340 m2
Inhoud van de woning
672 m3
Oppervlakte externe bergruimte
7 m2
Oppervlakte overige inpandige ruimten
39 m2

Indeling

Aantal kamers
5
Aantal slaapkamers
4
Aantal woonlagen
3
Voorzieningen
Tuin, schuur/berging, rolluiken, glasvezel, buitenzonwering, rookkanaal

Buitenruimte

Balkon
Nee
Schuur/berging
Ja

Maandlasten berekenen

De maandlasten voor je woning bestaan uit meer dan alleen de hypotheeklasten. Hieronder vind je een overzicht van de bijkomende kosten en lasten. Zo weet je precies wat je huis per maand gaat kosten. En met de handige vergelijkers kun je ook nog eens snel de beste deals sluiten!

  • Kaart
  • Streetview