Verkocht

Aart van der Neerweg 12 1191 EE Ouderkerk aan de Amstel

101m2
Wonen
6
Kamers
145m2
Perceel
1967
Bouwjaar
CREEER JOUW DROOMHUIS: GEZINSWONING MET 5 SLAAPKAMERS, 10 ZONNEPANELEN EN ZONNIGE TUIN

(** English text below**) Deze fijne, lichte eengezinswoning aan de Aart van der Neerweg 12 (bouwjaar 1967) biedt volop ruimte én mogelijkheden. Met maar liefst vijf slaapkamers is dit een ideale gezinswoning. De woning is gedateerd, maar biedt alle kansen om geheel naar eigen inzicht en smaak te moderniseren. Daarnaast is een uitbouw aan de achterzijde van de begane grond mogelijk, waardoor een royale leefkeuken of extra ruime woonkamer kan worden gerealiseerd.
De woning beschikt over een voortuin en een zonnige achtertuin op het zuid/oosten, een stenen schuur en een achterom.
Schuin aan de overzijde biedt verkoper tevens een garagebox (16 m2) te koop aan voor € 45.000,- k.k.. Kopers van deze woning genieten voorkeur bij aankoop van de garage.

Omgeving
Wonen in het groen met de stad binnen handbereik. In Ouderkerk aan de Amstel ervaart u de rust, ruimte en sterke dorpsgemeenschap, terwijl Amsterdam en Amstelveen eenvoudig per fiets en OV bereikbaar zijn. De woonomgeving is bijzonder geschikt voor gezinnen met maar liefst drie basisscholen, diverse speelvoorzieningen, sportverenigingen, winkels en gezellige horeca op loopafstand. Ook de sfeervolle historische dorpskern aan de Amstel ligt dichtbij en biedt een charmante plek voor een wandeling of een terrasje.
Voor recreatie ligt ook de Ouderkerkerplas op loopafstand, een geliefde plek voor zwemmen, watersporten, duiken, wandelen, hardlopen, fietsen, spelen en ontspannen aan het strand. Fiets- en natuurliefhebbers kunnen daarnaast hun hart ophalen in de uitgestrekte polder en natuurgebied De Rondehoep, waar u geniet van prachtige vergezichten.

Bereikbaarheid
De bereikbaarheid is uitstekend. Met de auto bent u snel op de uitvalswegen (A10, A2, A9) richting Amsterdam, Utrecht en Schiphol. Schiphol ligt op circa 15–20 minuten en is ook goed bereikbaar met bus 300 die ca. 8 keer per uur rijdt, ook is er een nachtverbinding. Station Bijlmer bereikt u binnen ca.10 minuten, ideaal voor trein, metro en internationale verbindingen.

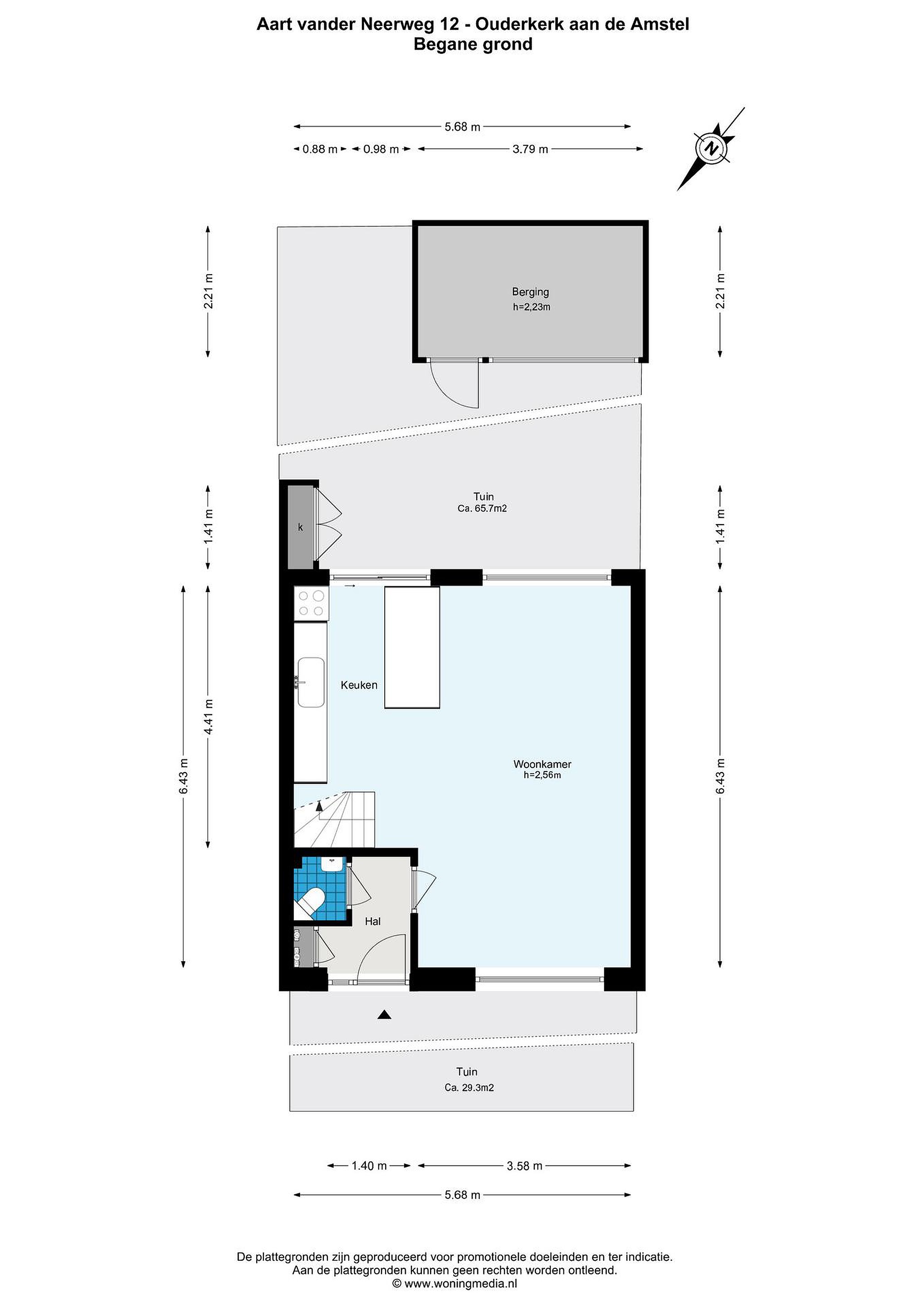
Begane grond
Begane grond
Via de voortuin bereikt u de entree. In de hal bevinden zich de meterkast en het toilet.
De lichte woonkamer beschikt over een grote raampartij aan zowel de voor- als achterzijde, wat zorgt voor een prettige lichtinval gedurende de dag. De kunststof kozijnen zijn uitgevoerd met HR dubbel glas. De wenteltrap geeft toegang tot de eerste en tweede verdieping.
De open keuken ligt aan de achterzijde en heeft een glazen schuifdeur naar de tuin. De achtertuin is gelegen op het zuid/oosten en biedt voldoende ruimte om de woonkamer uit te bouwen.
Achter in de tuin staat een stenen schuur (8,4m2). Dankzij de achterom kunnen fietsen eenvoudig worden gestald.

Eerste verdieping

Via de wenteltrap bereikt u de overloop. Aan de voorzijde bevindt zich de badkamer met toilet, wastafel en douche. Er is de mogelijkheid om de badkamer te vergroten en naar eigen wens te moderniseren.           
Aan de straatzijde ligt een ruime slaapkamer met inbouwkast. Aan de achterzijde bevindt zich de master bedroom met praktische inbouwkastenwand. Daarnaast is er nog een extra kamer met inbouwkast, ideaal als kinderkamer of studeerruimte.
Ook op deze verdieping zijn er kunststof kozijnen met HR isolatie glas.

Tweede verdieping

De volwaardige zolderverdieping is optimaal benut en beschikt over twee ruime slaapkamers, beide voorzien van een royale dakkapel waardoor een verrassend lichte en comfortabele woonlaag is ontstaan.
De slaapkamer aan de voorzijde is uitgevoerd met een circa 3 meter brede, hoge dakkapel met onderhoudsvriendelijke kunststof kozijnen met HR++ beglazing. Dit zorgt niet alleen voor een prettige lichtinval, maar ook voor uitstekende isolerende eigenschappen en extra wooncomfort. Deze kamer heeft ook een ruime inbouwkast.
Aan de achterzijde bevindt zich eveneens een ruime slaapkamer met een grote dakkapel, eveneens voorzien van kunststof kozijnen met HR isolatieglas. Deze kamer beschikt over een eigen wastafel en is daarmee zeer geschikt als tienerkamer, logeerkamer of werkruimte. In de praktische inbouwkast is de cv-ketel (Intergas, bouwjaar 2007) netjes weggewerkt.

Vliering
Boven de zolderetage bevindt zich een praktische vliering. Deze is geïsoleerd en biedt verrassend veel bergruimte.

Details
Duurzaamheid / zonnepanelen
De woning is voorzien van diverse energiebesparende maatregelen. Zo is de woning grotendeels uitgerust met HR- en HR++ glas en heeft een energielabel C, wat netjes is voor een woning uit 1967. De kruipruimte is geïsoleerd met isolatiekorrels en de zolderverdieping is voorzien van isolatie, wat zorgt voor extra warmtebehoud.
Daarnaast zijn in 2019 10 zonnepanelen geplaatst die ca. 2.930 kWh per jaar opwekken. Deze voorzieningen zorgen voor lagere energielasten.
Kortom: een woning met ruimte, licht en enorme potentie – klaar om te worden getransformeerd tot een eigentijds en comfortabel familiehuis.

Bijzonderheden
- Gebruiksoppervlak wonen 101 m2
- Bouwjaar 1967
- Energielabel C
- Voorzien van HR en HR++ isolatie glas
- 10 zonnepanelen
- Vijf slaapkamers
- Uitbouw begane grond mogelijk
- Zonnige achtertuin op het zuid/oosten
- Stenen schuur (8,4 m2) en achterom
- Cv-ketel Intergas (2007)
- Los te koop garagebox (16 m2) schuin aan de overzijde voor € 45.000,- k.k.
- In de koopakte zal een asbest-, ouderdoms- en niet bewonersclausule worden opgenomen
- Gelegen in groene, kindvriendelijke omgeving nabij Amsterdam en Amstelveen
- Dichtbij uitvalswegen en openbaar vervoer en Schiphol in ca 20 minuten bereikbaar

CREATE YOUR DREAM HOME: FAMILY HOUSE WITH 5 BEDROOMS, 10 SOLAR PANELS AND SUNNY GARDEN

Introduction
This lovely, bright family home at Aart van der Neerweg 12 (built in 1967) offers plenty of space and possibilities. With no fewer than five bedrooms, this is an ideal family home. The house is dated, but offers every opportunity to modernise it entirely according to your own insights and taste. In addition, an extension at the rear of the ground floor is possible, allowing for a spacious kitchen or extra-large living room.
The house has a front garden and a sunny south/east-facing back garden, a stone shed and a back entrance. Diagonally opposite, there is also a garage box (16 m2) for sale for €45,000 (costs payable by buyer).

Surroundings
Living in the countryside with the city within easy reach. In Ouderkerk aan de Amstel, you can enjoy peace and quiet, space and a strong village community, while Amsterdam and Amstelveen are easily accessible by bicycle and public transport. The residential area is particularly suitable for families, with no fewer than three primary schools, various playgrounds, sports clubs, shops and cosy restaurants within walking distance. The atmospheric historic village centre on the Amstel is also nearby and offers a charming place for a walk or a drink on a terrace.
For recreation, the Ouderkerkerplas is also within walking distance, a popular spot for swimming, water sports, diving, walking, running, cycling, playing and relaxing on the beach. Cycling and nature lovers can also indulge themselves in the vast polder and nature reserve De Rondehoep, where you can enjoy beautiful views.

Accessibility
Accessibility is excellent. By car, you can quickly reach the motorways (A10, A2, A9) towards Amsterdam, Utrecht and Schiphol. Schiphol is approximately 15-20 minutes away and is also easily accessible by bus 300, which runs approximately 8 times an hour, and there is also a night service. Bijlmer station can be reached in about 10 minutes, ideal for train, metro and international connections.

Ground floor
The entrance is accessed via the front garden. The hall contains the meter cupboard and toilet.
The bright living room has large windows at both the front and rear, providing pleasant light throughout the day. The plastic window frames are fitted with HR double glazing. The spiral staircase provides access to the first and second floors.
The open kitchen is located at the rear and has a sliding glass door to the garden.

Garden
The front garden is approximately 5.15 metres deep and 5.70 metres wide and has a path leading to the front door. This space offers plenty of opportunities to create an attractive and well-maintained front garden to your own taste, for example with greenery or paving.

The spacious back garden is approximately 11.60 metres deep and 5.70 metres wide and is conveniently located on the sunny south/east, allowing you to enjoy the sun almost all day long. The garden has a practical back entrance, a stone shed for bicycles and garden tools, and an extra storage cupboard right next to the back door of the kitchen — ideal for extra storage.


First floor
The spiral staircase leads to the landing. At the front is the bathroom with toilet, washbasin and shower. There is the possibility to enlarge the bathroom and modernise it to your own liking. On the street side is a spacious bedroom with built-in wardrobe. At the rear is the master bedroom with practical built-in wardrobe wall. There is also an extra room with built-in wardrobe, ideal as a children's room or study.
This floor also has plastic window frames with HR insulation glass.

Attic floor
The full attic floor has been optimally utilised and has two spacious bedrooms, both with a generous dormer window, creating a surprisingly light and comfortable living space.
The bedroom at the front has a approximately 3-metre wide, high dormer window with low-maintenance plastic window frames with HR++ glazing. This not only provides pleasant light, but also excellent insulating properties and extra living comfort. This room also has a spacious built-in wardrobe.
At the rear, there is also a spacious bedroom with a large dormer window, also fitted with plastic frames with HR insulation glass. This room has its own washbasin, making it ideal as a teenager's room, guest room or workspace. The central heating boiler (Intergas, built in 2007) is neatly concealed in the practical built-in cupboard.
Loft
Above the attic floor is a practical loft. It is insulated and offers a surprising amount of storage space.
Sustainability / solar panels
The house has been fitted with various energy-saving measures. For example, the house is largely equipped with HR and HR++ glass and has an energy label C, which is impressive for a house built in 1967. The crawl space is insulated with insulation granules and the attic floor is insulated, which provides extra heat retention. In addition, 10 solar panels were installed in 2019, generating approximately 2,930 kWh per year. These facilities ensure lower energy costs.
In short: a home with space, light and enormous potential – ready to be transformed into a contemporary and comfortable family home.

Details
- Usable living area 101 m2
- Year of construction 1967
- Energy label C
- Equipped with HR and HR++ insulation glass
- 10 solar panels
- Five bedrooms
- Ground floor extension possible
- Sunny south/east-facing back garden
- Stone shed (8.4 m2) and back entrance
- Intergas central heating boiler (2007)
- Garage box (16 m2) for sale separately diagonally opposite for €45,000 (costs payable by buyer)
- The purchase agreement will include an asbestos, age and non-occupancy clause
- Located in a green, child-friendly area near Amsterdam and Amstelveen
- Close to major roads and public transport, Schiphol Airport approximately 20 minutes away



Lees meer

Verkoopgeschiedenis

Aangeboden sinds
28 februari 2026
Verkoopdatum
10 april 2026
Looptijd
één maand

Kenmerken

Overdracht

Prijs per m2
€ 5.446
Aangeboden sinds
28 februari 2026
Status
Verkocht
Aanvaarding
Direct

Bouw

Soort woonhuis
Eengezinswoning, tussen woning
Soort bouw
Bestaande bouw
Bouwjaar
1967
Soort dak
Dwarskap
Staat van onderhouden binnen
Redelijk
Staat van onderhouden buiten
Goed

Oppervlakte en inhoud

Perceeloppervlakte
145 m2
Inhoud van de woning
380 m3
Oppervlakte externe bergruimte
8 m2
Oppervlakte overige inpandige ruimten
0 m2

Indeling

Aantal kamers
6
Aantal slaapkamers
5
Aantal woonlagen
4
Voorzieningen
Tuin, schuur/berging, kabel-tv, dakraam

Buitenruimte

Balkon
Nee
Schuur/berging
Ja

Maandlasten berekenen

De maandlasten voor je woning bestaan uit meer dan alleen de hypotheeklasten. Hieronder vind je een overzicht van de bijkomende kosten en lasten. Zo weet je precies wat je huis per maand gaat kosten. En met de handige vergelijkers kun je ook nog eens snel de beste deals sluiten!

  • Kaart
  • Streetview